Kornel VI (z wiatą) ENERGO







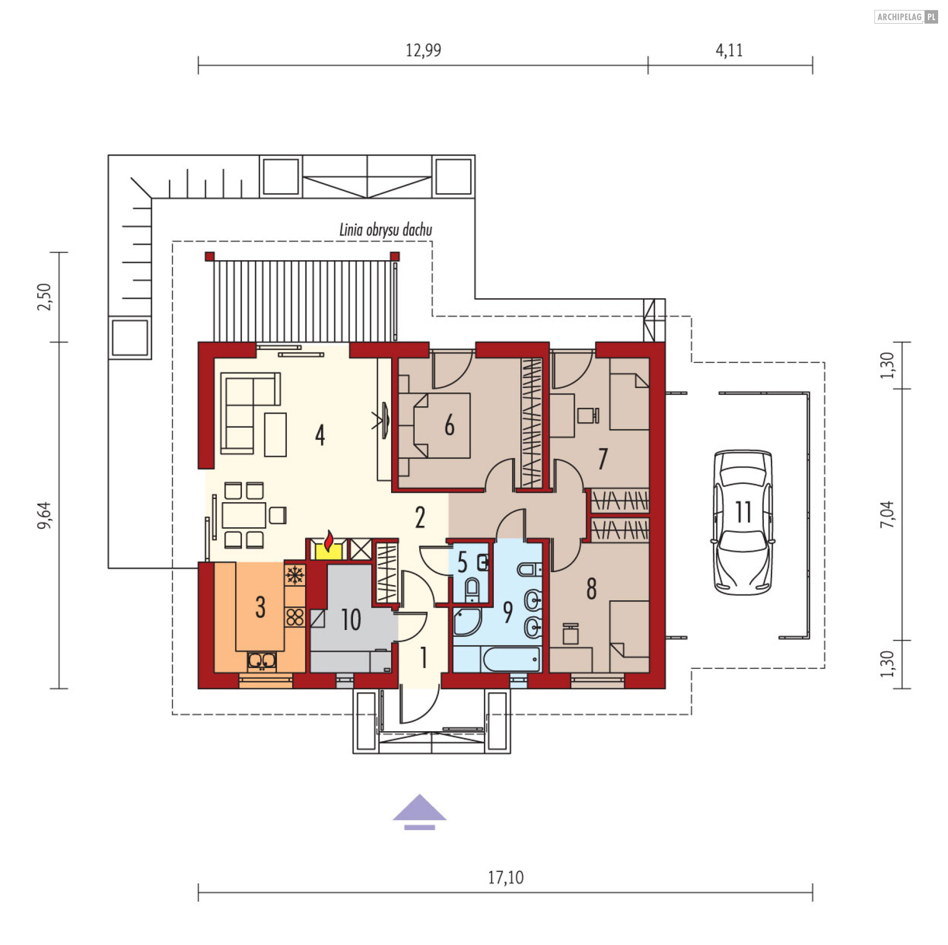
Charakterystyka: Dom parterowy, niepodpiwniczony,
z wiatą samochodową
Przeznaczenie: Dom dla 2-4-osobowej
rodziny
Technologia i
konstrukcja:
Ściany zewnętrzne: murowane,
dwuwarstwowe, bloczki keramzytowe Box Term firmy Termat 24 cm, ocieplenie wełna
mineralna 20 cm
Ściany wewnętrzne: nośne i działowe
murowane, bloczki keramzytowe Box Term firmy Termat 24 cm i 10 cm
Strop: gęstożebrowy Teriva, ocieplenie
wełna mineralna 30 cm
Dach: konstrukcja
drewniana, dachówka ceramiczna płaska Bergamo firmy
Röben, więźba
dachowa dostępna również w systemie prefabrykacji drewnianej
Rozwiązania
instalacyjne:
Ogrzewanie: kocioł gazowy
kondensacyjny, rozprowadzenie ciepła: grzejniki
Wentylacja: grawitacyjna
OZE: kolektory słoneczne
Wykończenie:
Elewacje: tynk cienkowarstwowy mineralny
Stolarka: drewniana, PVC lub
aluminiowa, drzwi wejściowe firmy Hörmann, rolety zewnętrzne w systemie CleverBox firmy BeClever
Otoczenie: system tarasowy
ProDeck - deska kompozytowa Terra w kolorze złoty dąb
Wersje - zapytaj o dostepność:
- Kornel
ENERGO – inne zaakcentowanie strefy wejściowej, bez zadaszenia tarasu
ogrodowego
- Kornel II ENERGO – inne
wykończenie elewacji, inne zaakcentowanie strefy wejściowej
- Kornel III ENERGO - inne
zaakcentowanie strefy wejściowej, bez zadaszenia tarasu ogrodowego
- Kornel IV ENERGO – inne
zaakcentowanie strefy wejściowej, bez zadaszenia tarasu ogrodowego, z systemem
suchej zabudowy ścian działowych Rigips, wiązary prefabrykowane
- Kornel V ENERGO – inne
zaakcentowanie strefy wejściowej, bez zadaszenia tarasu ogrodowego
- Kornel VI ENERGO – różne wersje
garaży
- każda wersja z wiatą, garażem jedno- lub dwustanowiskowym oraz bez garażu
- odbicie lustrzane do każdej wersji
Istnieje
techniczna możliwość:
- podpiwniczenia budynku
- zbliźniaczenia lub wykonania domu dwulokalowego
- wykonania budynku w technologii szkieletowej
