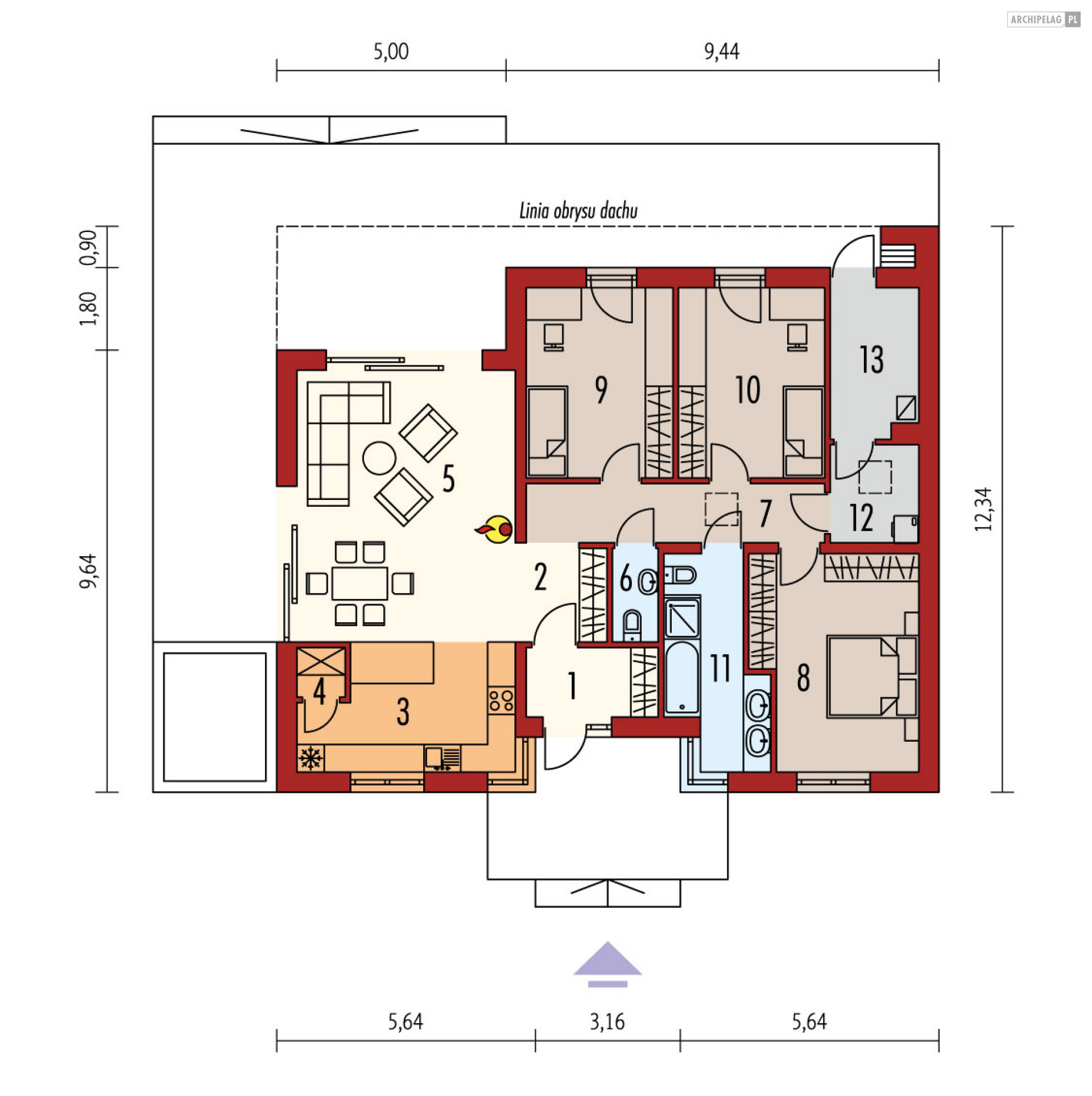
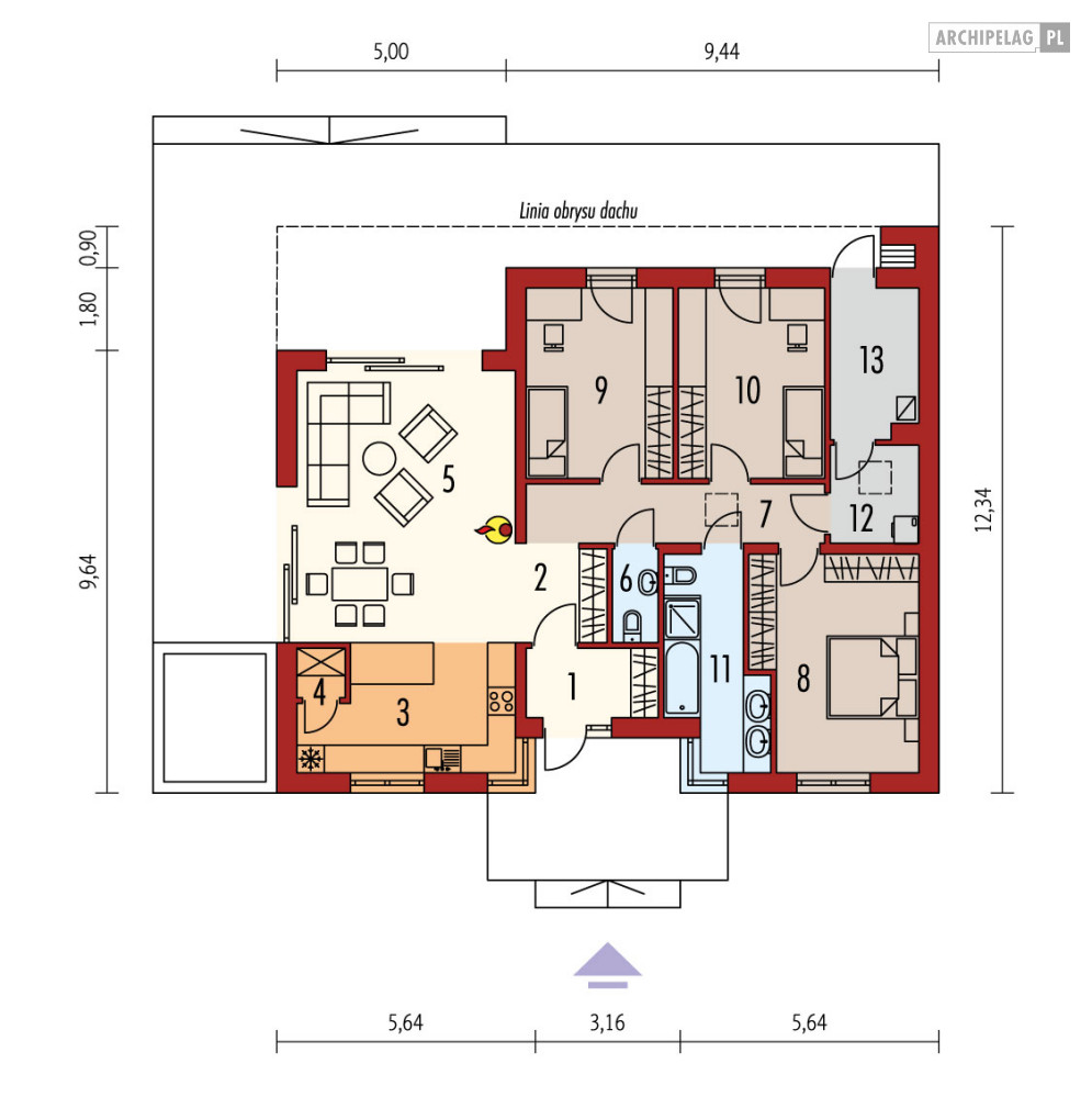
Mini 4 MODERN







Charakterystyka: Dom parterowy, niepodpiwniczony,
z garażem jednostanowiskowym
Przeznaczenie: Dom dla 2-4-osobowej
rodziny
Technologia i
konstrukcja:
Ściany zewnętrzne: murowane,
dwuwarstwowe, beton komórkowy firmy H+H 24 cm, ocieplenie styropian Termo
Organika 20 cm
Ściany wewnętrzne: nośne i działowe
murowane, beton komórkowy firmy H+H 24 cm i 12 cm
Dach: stropodach pełny,strop gęstożebrowy
Teriva, ocieplenie wełna mineralna Isover 30 cm
Rozwiązania
instalacyjne:
Ogrzewanie: kocioł gazowy
kondensacyjny firmy Viessmann, rozprowadzenie ciepła: grzejniki firmy Purmo
Wentylacja: grawitacyjna
Wykończenie:
Elewacje: tynk cienkowarstwowy
mineralny w kolorze białym TO-PA001 z palety firmy Termo Organika, okładzina
drewniana w układzie pionowym z efektem 3D z barwionego modrzewia syberyjskiego
lub świerku skandynawskiego
Stolarka: drewniana, PVC lub
aluminiowa, drzwi tarasowe podnoszono-przesuwne typu HS aluminiowo-drewniane INNOVIEW firmy Fakro, istnieje możliwość montażu rolet zewnętrznych w systemie QuadBox firmy BeClever, drzwi
wejściowe firmy Hörmann
Okna dachowe: okna do dachów
płaskich firmy Fakro
Otoczenie: kostka betonowa i
płyty tarasowe firmy Libet, system tarasowy ProDeck - deska kompozytowa Terra w
kolorze orzech
Wersje domów w serii Mini 4 - zapytaj o dostępność:
- Mini 4 –
wersja podstawowa, 3 sypialnie, dach czterospadowy
- Mini 4 (wiązary) – układ funkcji taki sam jak w wersji podstawowej,
system suchej zabudowy ścian działowych Rigips, wiązary prefabrykowane,
rozwiązania materiałowo-technologiczne Grupy Saint-Gobain
- Mini 4 w. II – układ funkcji podobny do wersji podstawowej (inny układ
otworów okiennych i drzwiowych), 3 sypialnie, zadaszony taras ogrodowy, dach
dwuspadowy z okapami
- Mini 4 w. III – układ funkcji podobny do wersji podstawowej (inny
układ otworów okiennych i drzwiowych),4 sypialnie, zadaszony
taras ogrodowy, dach dwuspadowy bez okapów
- Mini 4 MODERN – układ funkcji podobny do wersji podstawowej (zmiany w
strefie wejściowej, kuchni, kotłowni, inny układ otworów okiennych i
drzwiowych), 3 sypialnie, dach płaski
- Mini 4 PLUS – instalacje energooszczędne firmy Viessmann: pompa
ciepła, wentylacja mechaniczna z rekuperacją, system fotowoltaiczny oraz
ogrzewanie podłogowe firmy Purmo
- Mini 4 PLUS reco – instalacje energooszczędne firmy Vaillant:
pompa ciepła, wentylacja mechaniczna z rekuperacją, system fotowoltaiczny oraz
ogrzewanie podłogowe firmy Purmo
- wszystkie
wersje o podobnym układzie funkcji oraz z inną propozycją wykończenia elewacji
- wszystkie wersje z trzema wariantami garaży: bez garażu, z garażem jedno- i
dwustanowiskowym
- odbicie lustrzane do każdej wersji
Wszystkie
wersje domów możliwe
w dwóch standardach/wariantach instalacyjnych:
- ENERGO: kocioł gazowy kondensacyjny, grzejniki, wentylacja
grawitacyjna, OZE: kolektory słoneczne
- ENERGO PLUS: pompa ciepła, ogrzewanie podłogowe, wentylacja
mechaniczna, OZE: system fotowoltaiczny
Istnieje
techniczna możliwość:
- podpiwniczenia budynku
- zmiany kąta nachylenia dachu do 30º oraz adaptacji poddasza na strych
- wykonania budynku w technologii szkieletowej
Warianty działek dla wersji domu z garażem jedno- i dwustanowiskowym:
