Moniczka II (wersja B)








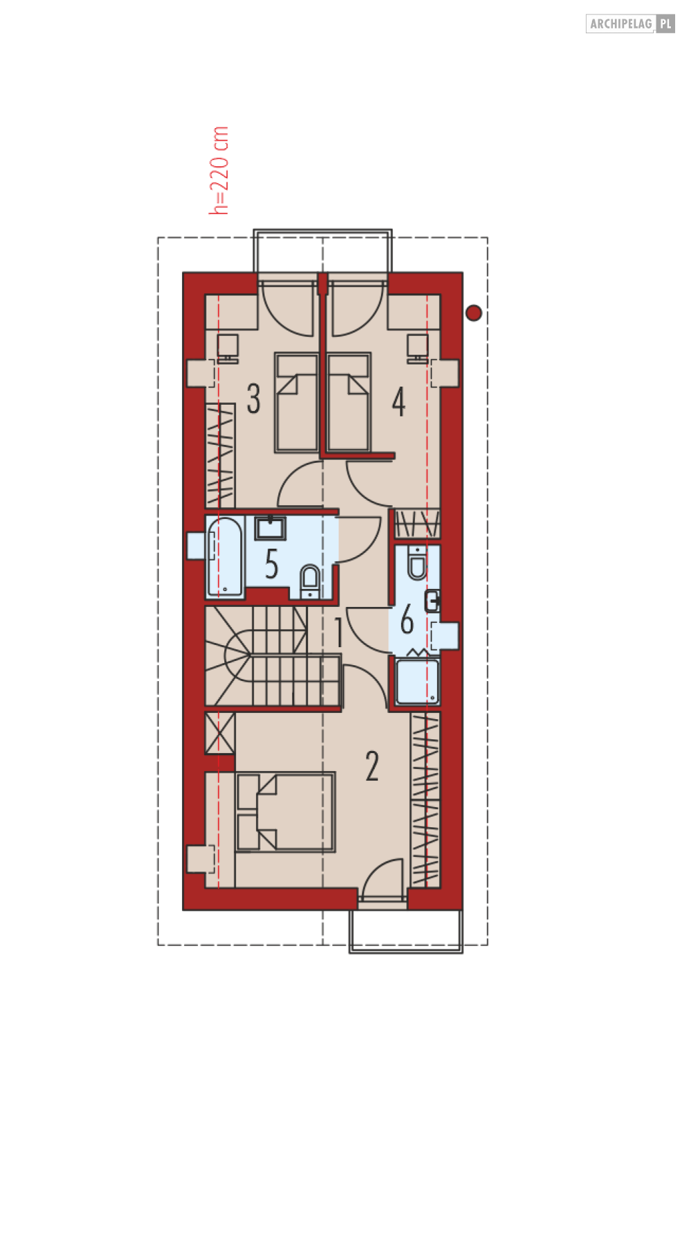
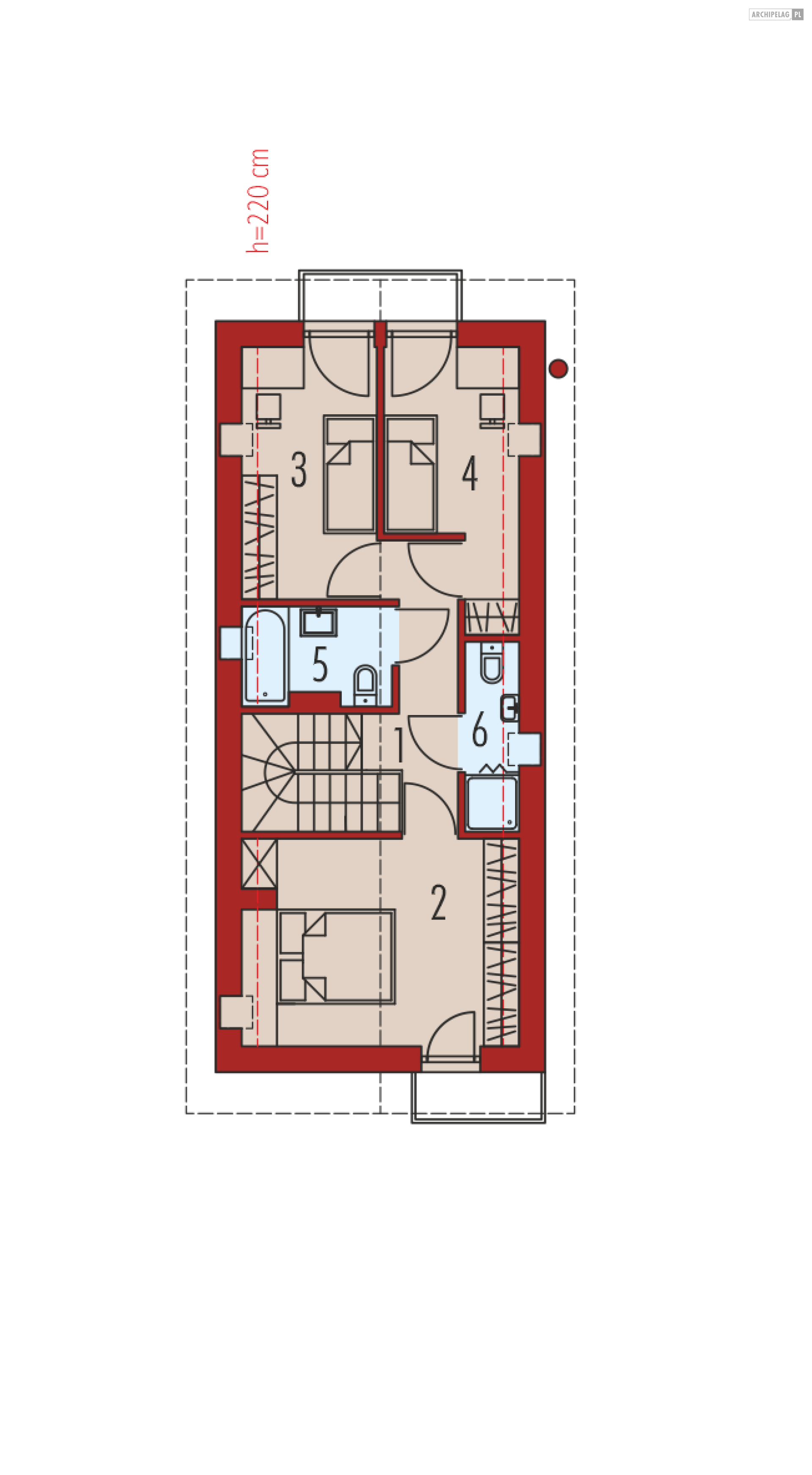
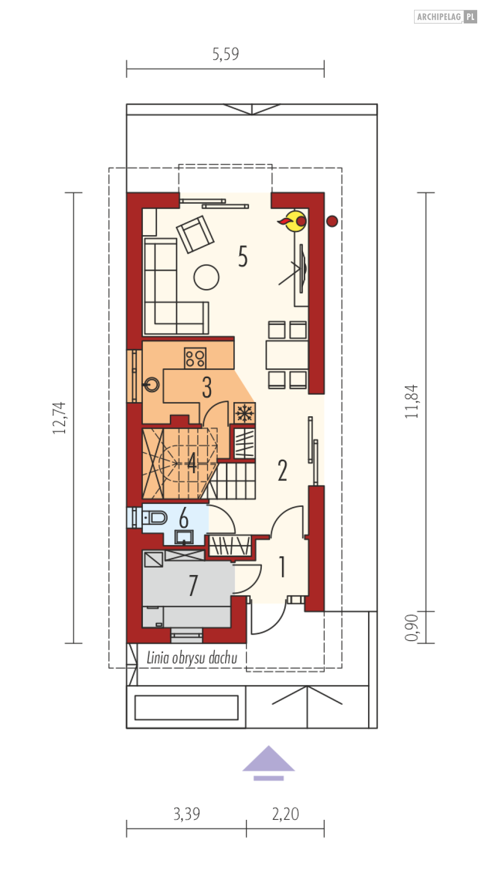
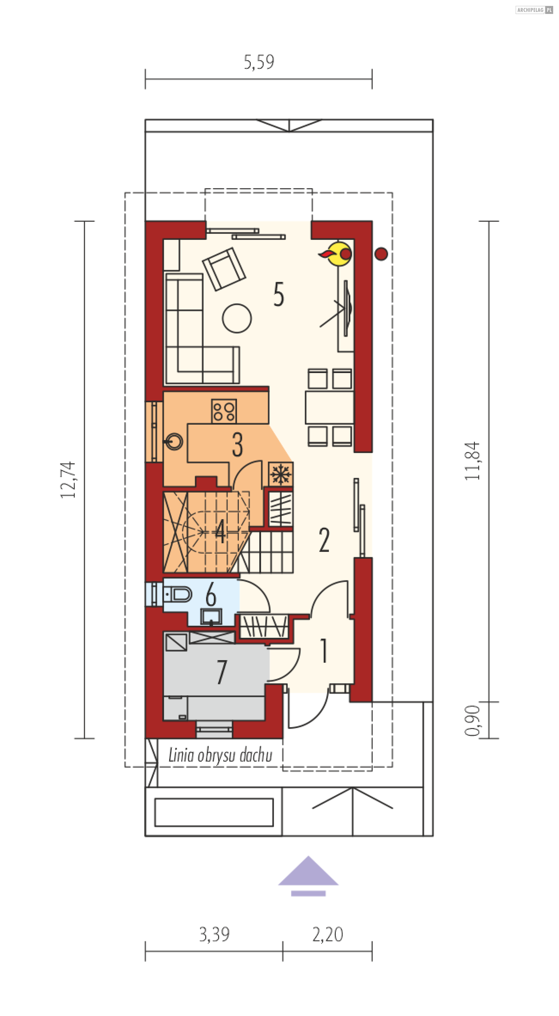
Charakterystyka: Dom z poddaszem
użytkowym, niepodpiwniczony
Przeznaczenie: Dom dla 2-4-osobowej
rodziny
Technologia i
konstrukcja:
Ściany zewnętrzne: murowane,
dwuwarstwowe, beton komórkowy firmy H+H 24 cm, ocieplenie styropian Termo
Organika 20 cm
Ściany wewnętrzne: ścianki działowe
murowane, beton komórkowy firmy H+H 24 cm i 12 cm
Strop międzypiętrowy: gęstożebrowy Teriva
Dach: konstrukcja drewniana,
dachówka płaska, ocieplenie wełna mineralna Isover 30 cm
Inne: schody wewnętrzne
drewniane
Rozwiązania
instalacyjne:
Ogrzewanie: kocioł gazowy
kondensacyjny firmy Viessmann, rozprowadzenie ciepła: grzejniki firmy Purmo
Wentylacja: grawitacyjna
Dodatkowo: stacja uzdatniania wody firmy Viessmann
OZE: kolektory słoneczne
Wykończenie:
Elewacje: tynk cienkowarstwowy
mineralny w kolorze białym TO-PA001 i szarym TO-GY010 z palety firmy Termo
Organika, okładzina drewniana w kolorze jasny orzech
Stolarka: drewniana, PVC lub
aluminiowa, drzwi tarasowe podnoszono-przesuwne typu HS aluminiowo-drewniane Innoview
firmy Fakro, rolety zewnętrzne w systemie QuadBox firmy BeClever, drzwi
wejściowe firmy Hörmann
Okna połaciowe: rozwiązania
technologiczne i wyłaz dachowy firmy Fakro
Otoczenie: kostka betonowa i
płyty tarasowe firmy Libet, system tarasowy ProDeck - deska kompozytowa Terra w
kolorze orzech
Wersje domów w serii Moniczka
- zapytaj o dostępność:
- Moniczka – wersja podstawowa,
dom piętrowy, 2 sypialnie, dach z okapami o kącie nachylenia 30°
- Moniczka II (wersja A) – podobny
układ funkcji, dłuższy budynek, dom z poddaszem użytkowym, 3 sypialnie i 2
łazienki na poddaszu, dach z okapami o kącie nachylenia 45°
- Moniczka II (wersja B) – inna
propozycja wykończenia materiałowo-kolorystycznego elewacji
- Moniczka II (wersja C,D) – inna
propozycja wykończenia materiałowo-kolorystycznego elewacji, dach bez okapów
- Moniczka III ENERGO PLUS reco -
układ funkcji jak w wersji II, dłuższy i szerszy budynek, dom z poddaszem
użytkowym, 3 sypialnie i 2 łazienki na poddaszu, dach bez okapów o kącie
nachylenia 45°, energooszczędne instalacje firmy Vaillant
- Moniczka IV (wersja A) – podobny układ funkcji, inna propozycja wykończenia
materiałowo-kolorystycznego elewacji, dach bez okapów o kącie nachylenia 45°
- Moniczka IV (wersja B) – podobny układ funkcji
jak w wersji A, inna propozycja wykończenia materiałowo-kolorystycznego
elewacji, dach bez okapów o kącie nachylenia 45°
- odbicie lustrzane do wszystkich wersji
Wszystkie wersje domów możliwe w dwóch standardach/wariantach
instalacyjnych:
- ENERGO: piec gazowy kondensacyjny, grzejniki, wentylacja grawitacyjna
- ENERGO PLUS: pompa ciepła, ogrzewanie podłogowe, wentylacja
mechaniczna, dodatkowo panele fotowoltaiczne
Istnieją techniczne możliwości wykonania zmian:
- podpiwniczenia budynku
- wykonania budynku w technologii szkieletowej
- dokonania zmian funkcjonalnych wg indywidualnych wymagań
