Lea II (z wiatą)








Charakterystyka: Dom parterowy z
poddaszem użytkowym, niepodpiwniczony
Przeznaczenie: Dom dla 3-5-osobowej
rodziny
Technologia i
konstrukcja:
Ściany zewnętrzne: murowane,
dwuwarstwowe, beton komórkowy firmy H+H 24 cm, ocieplenie styropian Termo
Organika 20 cm
Ściany wewnętrzne: nośne i działowe
murowane, beton komórkowy firmy H+H 24 cm i 12 cm
Strop: międzypiętrowy
gęstożebrowy Teriva
Dach: konstrukcja drewniana,
ocieplenie wełna mineralna Isover 30
cm, dachówka ceramiczna płaska Bergamo firmy Röben
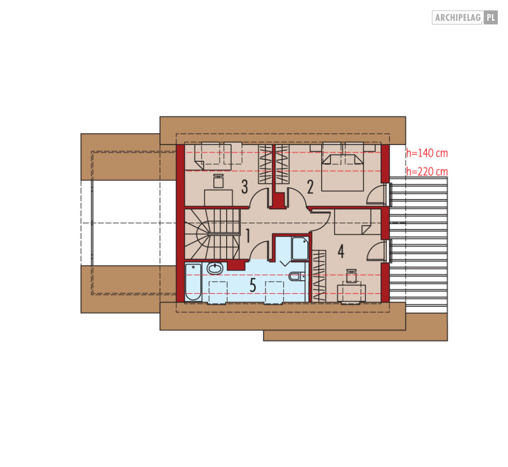
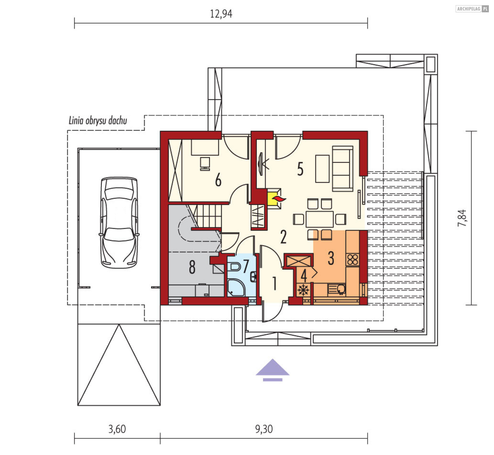
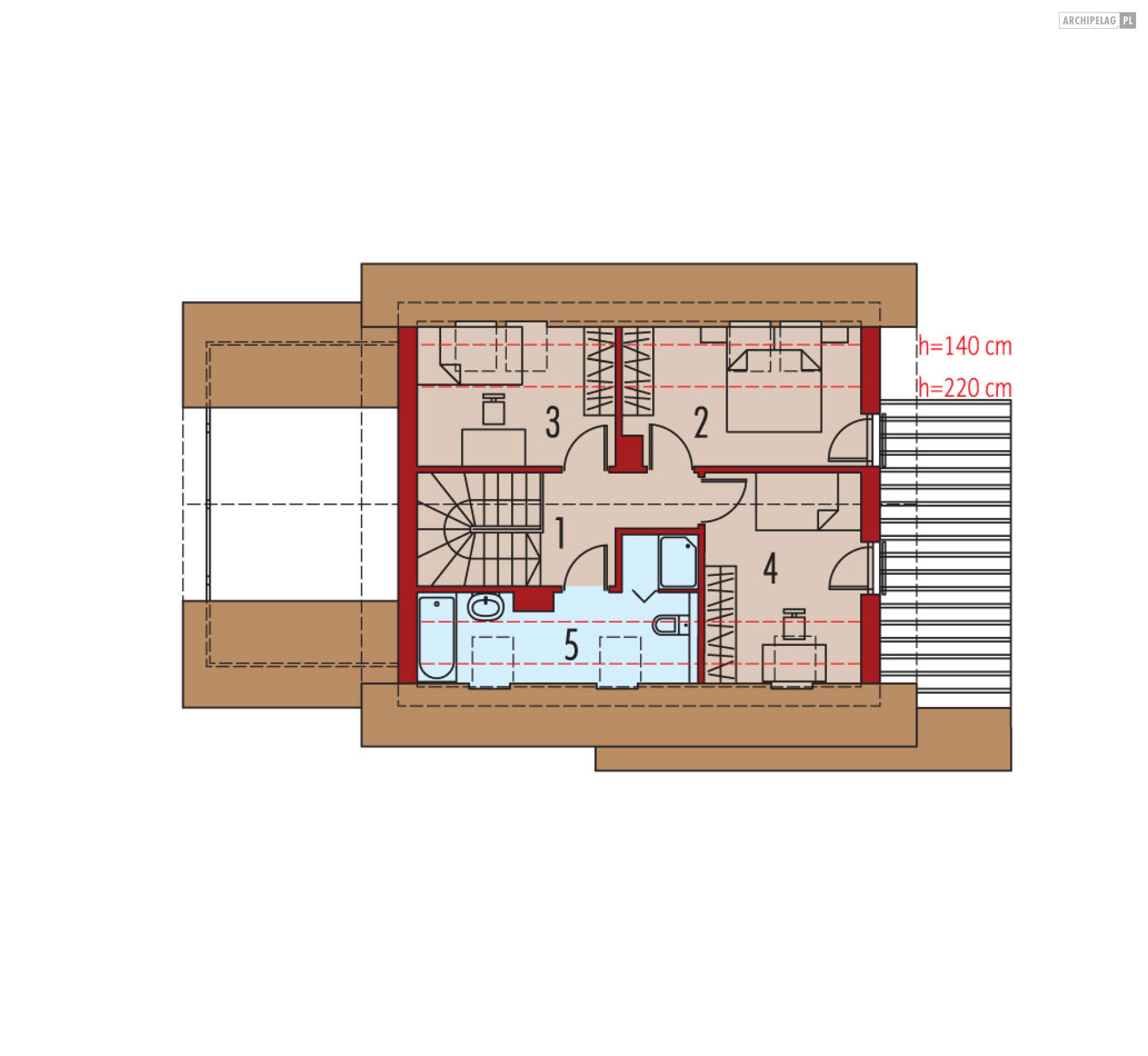
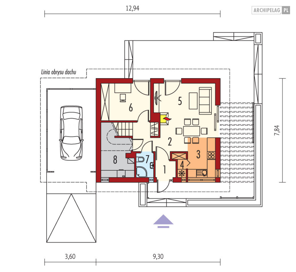
Schody: schody wewnętrzne drewniane
Rozwiązania instalacyjne:
Ogrzewanie: kocioł gazowy
kondensacyjny firmy Viessmann, rozprowadzenie ciepła: grzejniki firmy Purmo
Wentylacja: grawitacyjna
OZE: kolektory słoneczne firmy Viessmann
Dodatkowo: stacja uzdatniania wody firmy Viessmann
Wykończenie:
Elewacje: tynk cienkowarstwowy
mineralny w kolorze białym TO-PA 001 z palety firmy Termo Organika
Stolarka: drewniana, PVC lub
aluminiowa, drzwi tarasowe podnoszono-przesuwne typu HS, rolety zewnętrzne w systemie
CleverBox firmy BeClever
Okna połaciowe: rozwiązania
technologiczne i wyłaz dachowy firmy Velux
Otoczenie: kostka betonowa i płyty tarasowe firmy Libet, system
tarasowy ProDeck - deska kompozytowa Terra w kolorze orzech
Pobierz ekspercki poradnik VELUX i dowiedz się jak wybrać okna dachowe
Wersje w serii Lea - zapytaj o dostępność:
- Lea – wersja podstawowa
- Lea (wersja A) – inne wykończenie elewacji
- Lea (wersja B) – inne wykończenie elewacji
- Lea II (z wiatą) – inne wykończenie elewacji, dobudowana wiata na
jedno auto
- wszystkie wersje takim samym układzie funkcji oraz z inną
propozycją wykończenia elewacji
- wszystkie wersje z trzema wariantami garaży: bez garażu, z garażem
jedno- i dwustanowiskowym
- odbicie lustrzane do każdej wersji
Wszystkie
wersje domów możliwe w dwóch standardach/wariantach instalacyjnych:
- ENERGO: kocioł gazowy kondensacyjny, grzejniki, wentylacja
grawitacyjna, OZE: kolektory słoneczne
- ENERGO PLUS: pompa ciepła, ogrzewanie podłogowe, wentylacja
mechaniczna, OZE: system fotowoltaiczn
Istnieją techniczne możliwości wykonania
zmian:
-
podpiwniczenia budynku
- wykonania budynku w technologii szkieletowej
- dokonania zmian funkcjonalnych wg indywidualnych wymagań
