Rafael V
 
 
 
     
 
 
 
Ściany zewnętrzne trójwarstwowe wykonano z energooszczędnych pustaków ceramicznych.
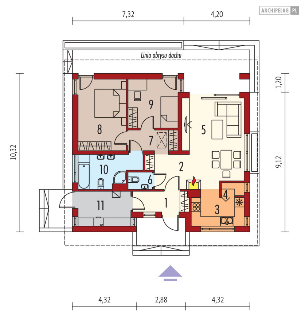
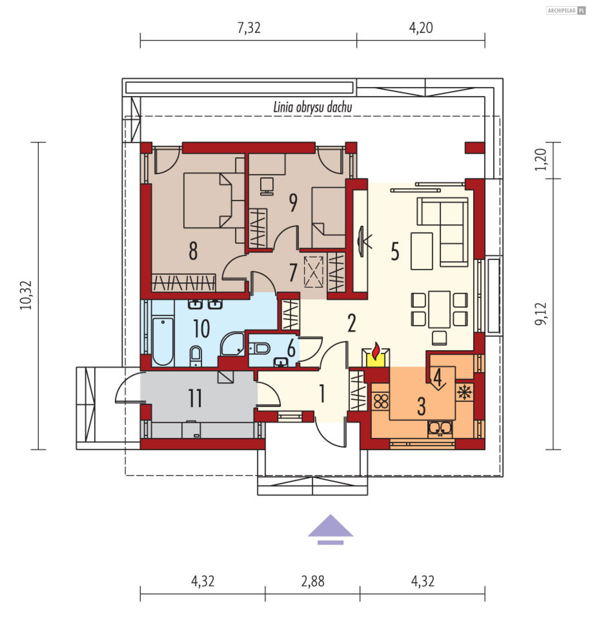
Charakterystyka: Dom parterowy, niepodpiwniczony
Przeznaczenie: Dom dla 2-3-osobowej rodziny
Technologia
i konstrukcja:
Ściany zewnętrzne: murowane,
trójwarstwowe, pustaki ceramiczne 24 cm, ocieplenie 10 cm, warstwa licowa z
cegły klinkierowej 11,5 cm firmy Röben
Ściany wewnętrzne: murowane, pustaki ceramiczne 24 cm, ścianki działowe
pustaki ceramiczne 11,5 cm
Strop: strop gęstożebrowy Teriva
Dach: konstrukcja drewniana, ocieplenie wełna mineralna 30 cm, dachówka
ceramiczna Piemont Titan firmy Röben, więźba dachowa dostępna również
w systemie prefabrykacji drewnianej
Rozwiązania
instalacyjne:
Ogrzewanie: kocioł
gazowy, rozprowadzenie ciepła: grzejniki
Wentylacja: grawitacyjna
OZE: kolektory słoneczne
Wykończenie:
Elewacja: cegły licowe
klinkierowe firmy Röben 11,5 cm, typ Malmo perłowobiała, elementy
nadprożowe i parapety ceglane firmy Röben
Stolarka: drewniana, PCV lub aluminiowa, drzwi wejściowe firmy Hörmann
Wersje - zapytaj o dostępność:
- Rafael - podobny układ
funkcji, 2 sypialnie, mniejsza powierzchnia użytkowa, ściany zewnętrzne
dwuwarstwowe, bez garażu
- Rafael G1 - podobny układ funkcji,
2 sypialnie, mniejsza powierzchnia użytkowa, dach o kącie nachylenia 25°,
ściany zewnętrzne dwuwarstwowe, z garażem jednostanowiskowym
-
Rafael G1 (bliźniak) – wariant w
zabudowie bliźniaczej
- Rafael II – podobny układ funkcji,
jadalnia z wykuszem, ściany zewnętrzne dwuwarstwowe, bez garażu i z garażem
jednostanowiskowym
- Rafael III – podobny układ
funkcji, jadalnia bez wykusza z wersji II, ściany zewnętrzne dwuwarstwowe, bez
garażu i z garażem jednostanowiskowym
- Rafael IV – dom z rozwiązaniami
firmy Rigips i wiązarami prefabrykowanymi, podobny układ funkcji, standard
ociepleń ENERGO, ściany zewnętrzne dwuwarstwowe, bez garażu i z garażem
jednostanowiskowym
- Rafael V G1 – wariant z garażem
jednostanowiskowym
- Rafael VI ECONOMIC – podobny układ
funkcji, 2 sypialnie, mniejsza powierzchnia użytkowa, standard ociepleń ENERGO,
bez garażu i z garażem jednostanowiskowym
-
Rafael G1 (30 st), Rafael II (30 st),
Rafael III (30 st), Rafael III G1 (30 st), Rafael IV G1 (30 st), Rafael VI
ECONOMIC (30 st) – warianty z dachami o kącie nachylenia 30°
- każda
wersja z inną propozycją wykończenia elewacji
- odbicie lustrzane do każdej wersji
Istnieje techniczna możliwość:
- podpiwniczenia
- wykonania budynku w technologii szkieletowej
- zmiany kąta nachylenia dachu do 30° oraz adaptacji poddasza na strych
Atuty
projektu okiem architekta:
- Doskonałe
parametry cieplne dzięki zastosowaniu ścian trójwarstwowych w energooszczędnej
technologii 
- Kompaktowe i ergonomiczne wnętrze z czytelnym podziałem na strefę dzienna i
nocną
- Dwie sypialnie z wyjściem na taras
- Funkcjonalne szafy wnękowe
- Kuchnia z praktyczną spiżarnią
- Duże przeszklenia w salonie oraz jadalni z widokiem na ogród
- Zacieniony taras
- Nieszablonowa elewacja
- Zadaszona strefa wejściowa – ochrona przed deszczem i śniegiem
- Prosta forma i dwuspadowy dach – ekonomiczna realizacja
- Duże pomieszczenie kotłowni pozwala na zastosowanie dowolnego źródła
ogrzewania
 
 
 
 
 
 
 
 
 
 
 
 
 
 
 
 
 
 
 
 
 
 
 
 
 
 
 
 
 
 
 
 
             
 
 
 
 
 
 
 
                                         
 
                                         
                         
                         
                     
                         
                        