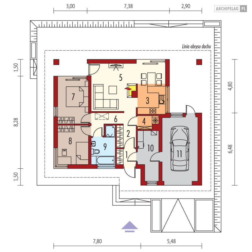
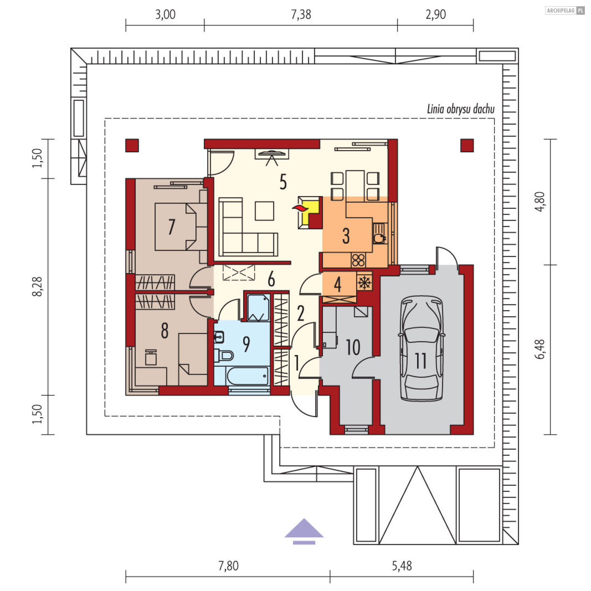
Tori III G1 ECONOMIC (wersja A)
 
 
 
     
 
 
 
Charakterystyka: Dom parterowy, niepodpiwniczony,
z garażem jednostanowiskowym
Przeznaczenie: Dom dla 2-3-osobowej
rodziny 
Technologia i
konstrukcja:
Ściany zewnętrzne: murowane,
dwuwarstwowe, beton komórkowy 24 cm, ocieplenie wełna mineralna 12 cm
Ściany wewnętrzne: nośne i działowe murowane,
cegła wapienno-piaskowa 24 cm, 18 cm i 12 cm
Strop: gęstożebrowy Teriva, ocieplenie
wełna mineralna firmy Isover 30 cm
Dach: konstrukcja drewniana,
ocieplenie wełna mineralna Isover 30
 cm, blacha na rąbek stojący, więźba dachowa dostępna również
w systemie prefabrykacji drewnianej
Schody: schody wewnętrzne drewniane
Inne: marka Isover, Rigips i Weber zapewniają najwyższą jakość wbudowanych produktów: paroizolacje, systemy podłogowe, zaprawy, kleje, hydroizolacje
Rozwiązania instalacyjne:
Ogrzewanie: kocioł gazowy
kondensacyjny firmy Viessmann, rozprowadzenie ciepła: grzejniki firmy Purmo
Wentylacja: grawitacyjna
OZE: kolektory słoneczne firmy Viessmann
Dodatkowo: stacja uzdatniania wody firmy Viessmann 
Wykończenie:
Elewacje: tynk cienkowarstwowy
mineralny, okładzina drewniana
Stolarka: drewniana, PVC lub
aluminiowa, drzwi tarasowe podnoszono-przesuwne typu HS aluminiowo-drewniane
Innowiev firmy Fakro, drzwi wejściowe i brama garażowa firmy Hörmann
Otoczenie: kostka betonowa i
płyty tarasowe firmy Libet, system tarasowy ProDeck - deska kompozytowa Terra w
kolorze orzech
Wersje w serii Tori - zapytaj o dostępność:
- Tori – wersja podstawowa
- Tori II – podobny układ funkcjonalny, dach 4-spadowy 
- Tori III – podobny układ funkcjonalny, dach 2-spadowy
- Tori III ECONOMIC (wersja A, B) – podobny układ funkcjonalny, dach 2-spadowy
- wszystkie wersje o podobnym układzie funkcji oraz z inną propozycją
wykończenia elewacji i pokrycia dachu
- wszystkie wersje z dwoma wariantami garaży: bez garażu, z garażem
jednostanowiskowym
- odbicie lustrzane do każdej wersji
Wszystkie
wersje domów możliwe w dwóch standardach/wariantach instalacyjnych:
- ENERGO: kocioł gazowy kondensacyjny, grzejniki, wentylacja
grawitacyjna, OZE: kolektory słoneczne
- ENERGO PLUS: pompa ciepła, ogrzewanie podłogowe, wentylacja
mechaniczna, OZE: kolektory słoneczne lub panele fotowoltaiczne
Istnieją techniczne możliwości wykonania
zmian:
-
podpiwniczenia budynku
- wykonania budynku w technologii szkieletowej 
- dokonania zmian funkcjonalnych wg indywidualnych wymagań
 
 
 
 
 
 
 
 
 
 
 
 
 
 
 
 
 
 
 
 
 
 
 
 
 
 
 
 
 
 
 
 
             
 
 
 
 
 
 
 
                                         
 
                                         
                         
                         
                     
                         
                        