Agnieszka 2







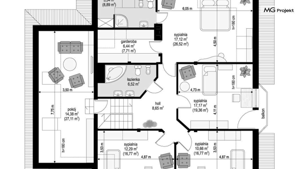
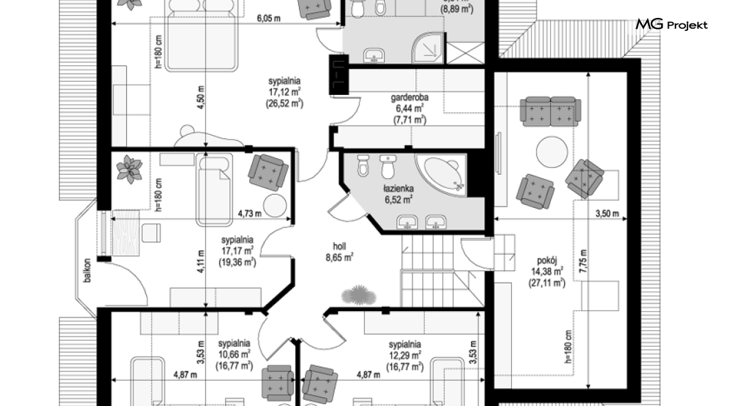
Projekt domu Agnieszka 2 to wariantowa wersja projektu Agnieszka. Dom został pomniejszony, zaplanowano w nim pojedynczy garaż. Budynek zyskał nową szatę zewnętrzną: zmienione lukarny dachowe, podcień wejściowy z dodatkowymi słupami z przyporami. Fragmenty ścian i cokół zostały obłożone kamieniem, dobrze komponującym się z gładkimi powierzchniami ścian i dachem. Wnętrze domu Agnieszka 2 mieści na parterze duży salon z jadalnią, połączony z holem i obszerną kuchnią z wyspą. Na parterze zaprojektowano dodatkowy pokój z odrębną łazienką oraz garaż z kotłownią. W projekcie Agnieszka 2, na poddaszu zaplanowano cztery sypialnie i dwie łazienki. Sypialnia rodziców ma własną łazienkę i garderobę. Nad garażem mieści się strych - do dowolnego zagospodarowania. Projekt domu Agnieszka 2 dostępny jest w wersjach do wyboru na olej opałowy lub z instalacją na kocioł gazowy, a także w wersji odbicia lustrzanego. Zapraszamy do zapoznania się z pełną ofertą pracowni MG Projekt: projekt domu Agnieszka, projekt domu Agnieszka 3, projekt domu Agnieszka 3 B
