Benedykt Bliźniak







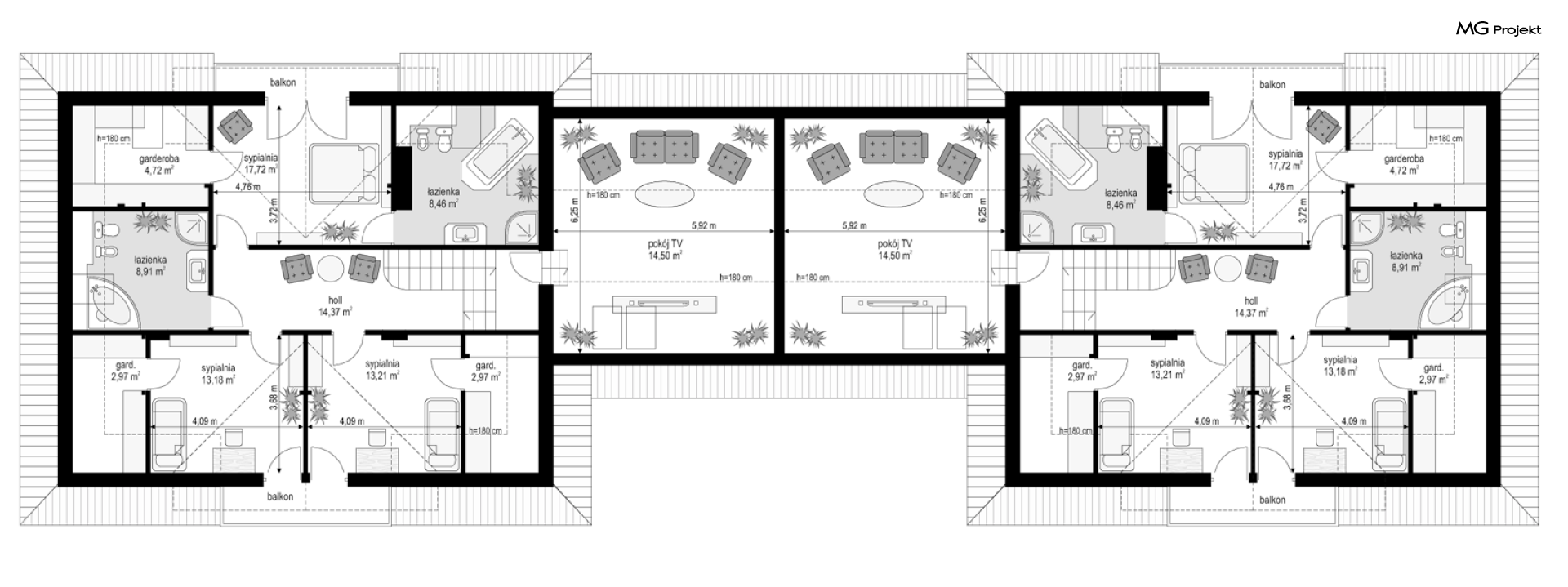
Projekt domu Benedykt Bliźniak jest wersją wariantową projektu domu Benedykt - tym razem w wersji budynku do zabudowy bliźniaczej. Dwie identyczne połówki domu połączone ze sobą garażami tworzą klarowną kompozycję brył. Dom wymaga dość szerokiej działki, ale efekt końcowy na pewno zadowoli każdego inwestora. Benedykt Bliźniak jest typowym domem z poddaszem użytkowym, z wielospadowymi dachami i dużymi szerokimi lukarnami od strony frontowej i ogrodowej. We wnętrzu domu, na parterze zaprojektyowano otwarty na hol salon z jadalnią i częściowo osłoniętą kuchnię, oraz dodatkowy pokój i część gospodarczą z garażem. Na poddaszu przewidziano trzy sypialnie oraz dwie łazienki - w tym apartament rodziców z własną łazienką i garderobą. W projekcie Benedykt Bliźniak, nad garażem, powstał strych, który można wykorzystać na cele użytkowe: kino domowe, pokój sportowy, ewentualnie dodatkowe pokoje sypialne. Dom jest doskonałą propozycją dla deweloperów lub inwestorów indywidualnych, którzy posiadają większą działkę i chcą wybudować dom bliźniaczy, aby na drugiej połówce zarobić po sprzedaży. Zapraszamy do zapoznania się z pełną ofertą pracowni MG Projekt: projekt domu Benedykt, projekt domu Benedykt 2, projekt domu Benedykt 3, projekt domu Benedykt 4, projekt domu Benedykt 5, projekt domu Benedykt Bliźniak.
UWAGA! Koszty realizacji oraz dane techniczne dotyczą połowy bliźniaka.
