Cypisek 2






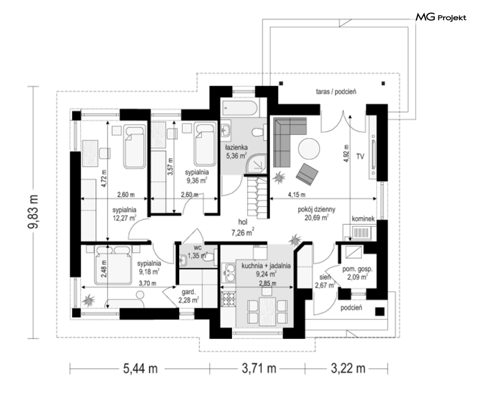
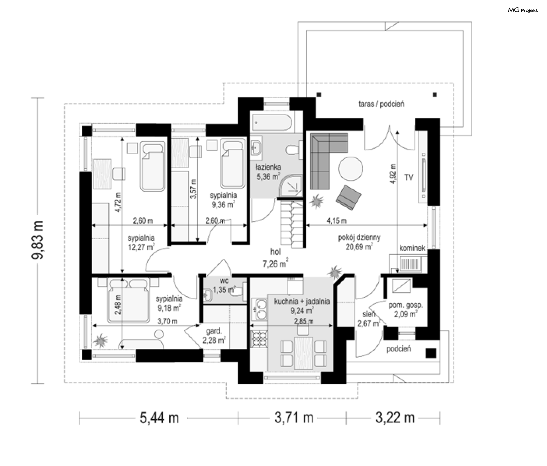
Projekt domu Cypisek 2 to powiększona wersja projektu Cypisek. Parterowy dom dla 4-osobowej rodziny, przekryty prostym, dwuspadowym dachem, z nieużytkowym strychem, który można zaadaptować na poddasze. Elewacja frontowa domu została urozmaicona narożnym podcieniem wejściowym, oraz zadaszonym wykuszem kuchni. Elewację ogrodową wzbogacają szerokie drzwi wyjściowe z salonu na taras, oraz podcień nad częścią tarasu. Cała bryła budynku - choć prosta, została ciekawie skomponowana. Tradycyjne dachy łączą się tutaj z nowoczesnym detalem i materiałami. Wnętrze parteru w domku Cypisek 2 podzielono na część dzienną i nocną - z trzema sypialniami i łazienką. W części dziennej zaprojektowano salon z narożnym kominkiem i wygodną kuchnię z kącikiem jadalnym w wykuszu. Schodki z holu prowadzą na strych nieużytkowy, który można z łatwością można zaadaptować na dodatkowe poddasze. Dostępna jest także wersja projektu Cypisek 2 w odbiciu lustrzanym. Zapraszamy do zapoznania się z pełną ofertą pracowni MG Projekt: projekt domu Cypisek, projekt domu Cypisek 2, projekt domu Cypisek 3, projekt domu Cypisek 4.
-
Projekt szamba szczelnego0 zł399 zł
-
Charakterystyka energetyczna0 zł200 zł
-
Pakiet energooszczędny0 zł150 zł
-
Dziennik budowy0 zł60 zł
-
Tablica budowy0 zł120 zł
-
Wersja elektroniczna projektu550 zł
-
Pakiet kosztorys inwestorski550 zł
-
Pakiet ogrzewanie podłogowe470 zł
-
Powietrzna pompa ciepła470 zł
-
Pakiet wentylacja mechaniczna i kominek DGP470 zł
-
Dodatkowy egzemplarz projektu500 zł
-
Pakiet kotłownia na paliwo stałe470 zł
-
Pakiet instalacja fotowoltaiczna470 zł
-
Pakiet klimatyzacja w domu470 zł
-
Pakiet gruntowa pompa ciepła470 zł
-
Pakiet odkurzacz centralny470 zł
-
Pakiet płaszcz wodny470 zł
-
Pakiet kominek DGP399 zł
-
Projekty altan i grillów ogrodowych650 zł
-
Pakiet instalacja solarna470 zł

opieką konsultacyjną w trakcie budowy domu