Cypisek 4







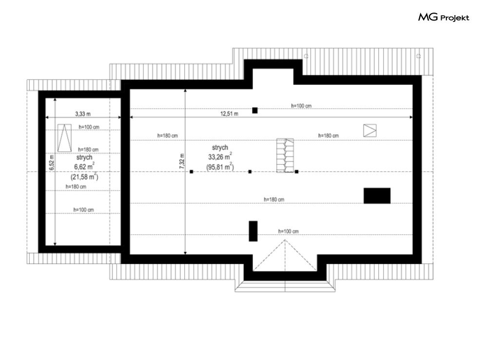
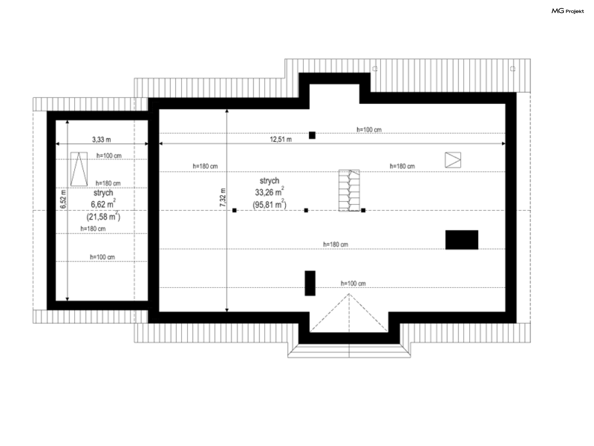
Projekt domu Cypisek 4 to kolejna wersja popularnego projektu Cypisek. Parterowy dom dla 4-osobowej rodziny, przekryty prostym dwuspadowym dachem, z nieużytkowym strychem, który można zaadaptować na poddasze. Elewacja frontowa została ładnie urozmaicona narożnym wejściem, oraz zadaszonym wykuszem kuchni. Elewację ogrodową wzbogacają szerokie drzwi wyjściowe z salonu na taras, oraz podcień nad częścią tarasu. Cała bryła domu Cypisek 4 - choć prosta, została ciekawie skomponowana. Tradycyjne dachy łączą się tutaj z nowoczesnym detalem i materiałami. Wnętrze parteru podzielono na część dzienną i nocną - z trzema sypialniami i łazienką. W części dziennej zaprojektowano salon z narożnym kominkiem i wygodną kuchnię z kącikiem jadalnym w wykuszu. W wygodnej kotłowni znajdzie się miejsce na kocioł gazowy, ale również zamiennie na kocioł na paliwo stałe. Schodki z holu prowadzą na strych nieużytkowy, który można dość łatwo zaadaptować na dodatkowe poddasze. Pracownia posiada wersję projektu domu Cypisek 4 w odbiciu lustrzanym. Zapraszamy do zapoznania się z pełną ofertą pracowni MG Projekt: projekt domu Cypisek, projekt domu Cypisek 2, projekt domu Cypisek 3.
