Dom z Widokiem 3







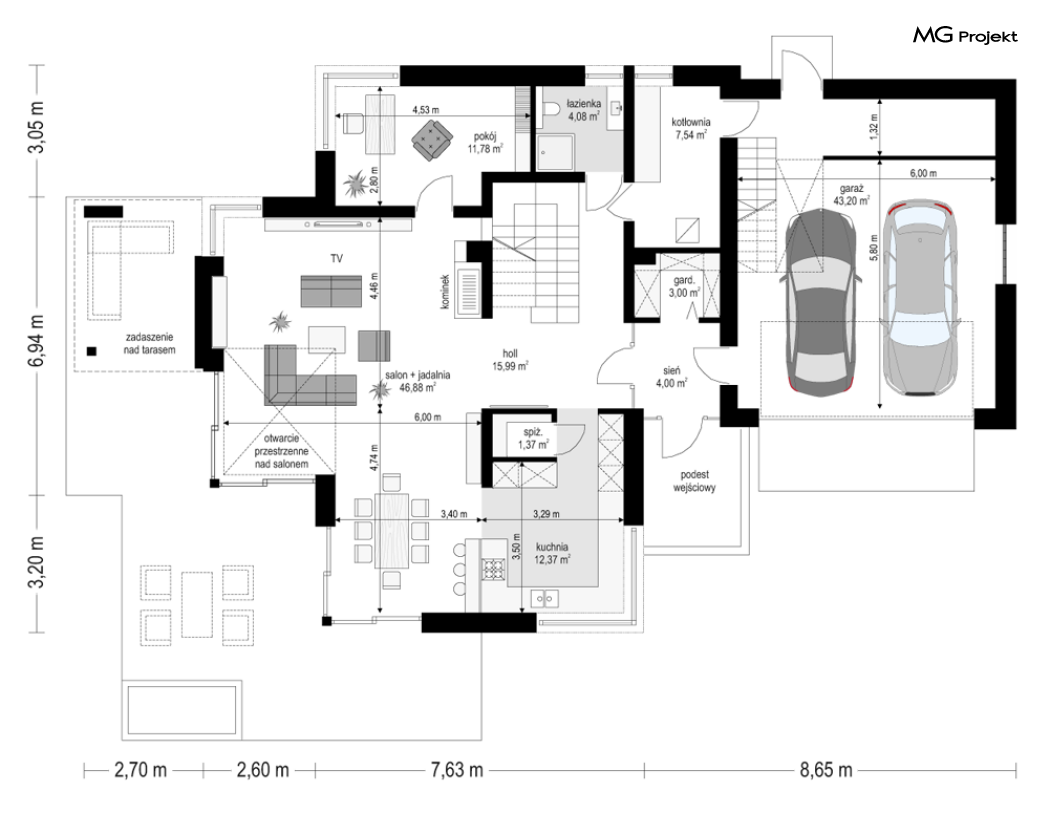
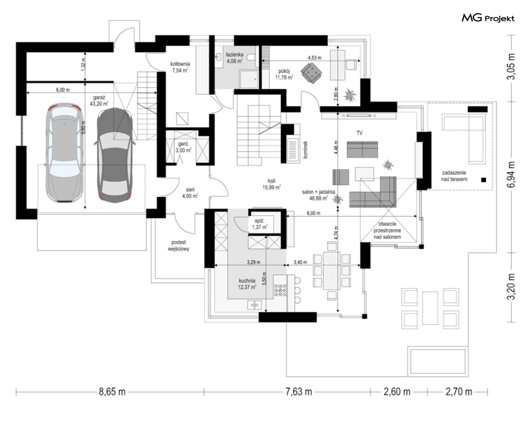
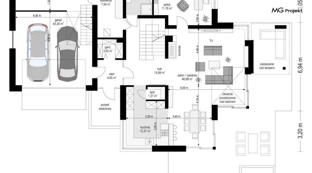
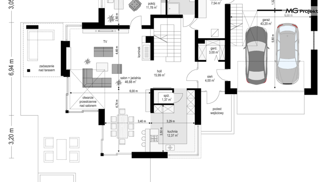
Projekt domu Dom z widokiem 3 jest wariantową wersją popularnego projektu Dom z widokiem. Dom z Widokiem 3 został dość znacznie zmniejszony, jego powierzchnia jest o 30 % mniejsza, podobnie jak koszty realizacji budynku. Jednocześnie dom nie stracił na reprezentacyjnym wyglądzie, ani na programie użytkowym i funkcjonalności wnętrz. Został po prostu "odchudzony" tam, gdzie można było sobie na to pozwolić. W rezultacie powstała elegancka niewielka miejska rezydencja - piętrowa, składająca się z zasadniczej dwukondygnacyjnej i kilku parterowych brył. Projekt domu Dom z widokiem 3 dedykowany jest w szczególności na trudniejsze działki, z niekorzystną orientacją wjazdu w stosunku do nasłonecznienia - z ogrodem z boku lub przodu domu. Architektura domostwa to spokojna nowoczesność, z dopasowanymi harmonijnie materiałami wykończeniowymi i detalami. Jedną z głównych atrakcji jest tutaj piękne okno narożne w salonie i pustka z przestrzennym otwarciem na antresolę na piętrze. To zasadniczy fragment kształtujący całość wnętrza domu. Uzupełnieniem są: przeszklony przestronny przedsionek, częściowo otwarta kuchnia oddzielona prostopadłościenną bryłą spiżarni i zabudowy kuchennej, reprezentacyjne schody połączone ze ścianą kominkową.
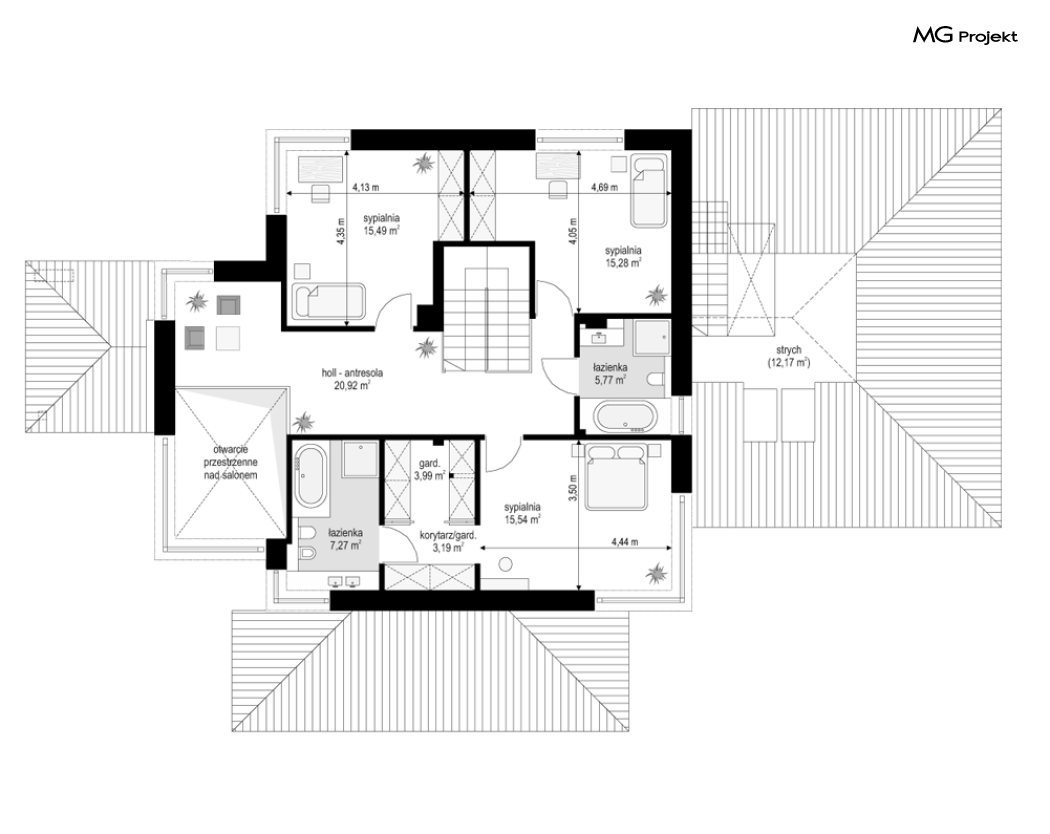
Parter Domu z Widokiem to także jadalnia, dodatkowy pokój (gabinet, lub sypialnia gościnna), łazienka, kotłownia i garaż, z dodatkową przestrzenią magazynowo-gospodarczą i własnym strychem. Na piętrze przewidziano trzy sypialnie, w tym apartament rodziców z własną oddzielną łazienką i garderobą, ogólnodostępną łazienkę i antresolę - bibliotekę. We wnętrzu przewidziano wszystko, co może być potrzebne do komfortowego życia 4-5 domownikom. Dom z widokiem 3, tak jak pozostałe projekty domów z serwii, dzięki tarasom i podcieniowi, pięknie łączy się z otaczającym ogrodem. Duże przeszklenia dodatkowo otwierają budynek na otaczającą przyrodę. Dom został zaprojektowany jako energooszczędny (bardzo łatwo zaadaptować go do standardu NF40). Stosunek powierzchni do uzyskanego efektu jest w projekcie bardzo korzystny. Projekt domu Dom z widokiem 3 będzie niedrogi w eksploatacji, a sama budowa będzie zdecydowanie mniej kosztowna niż w przypadku pierwszego projektu. Pracownia oferuje też wersję domku w odbiciu lustrzanym, wariant projektu głębszy o 100+120 cm, ze zmienionym układem pomieszczeń na parterze i piętrze, pompą ciepła oraz dostosowaniem do NF40 (Dom z Widokiem 3 wariant B). Zapraszamy do zapoznania się z pełną ofertą pracowni MG Projekt tej serii: Dom z widokiem, Dom z widokiem 2, Dom z widokiem 2C, , Dom z widokiem 3F, Dom z widokiem 4, Dom z widokiem 5, Dom z widokiem 6, Dom z widokiem 6B, Dom z widokiem B, Dom z widokiem E

