Kasjopea 3
 
 
 
     
 
 
 
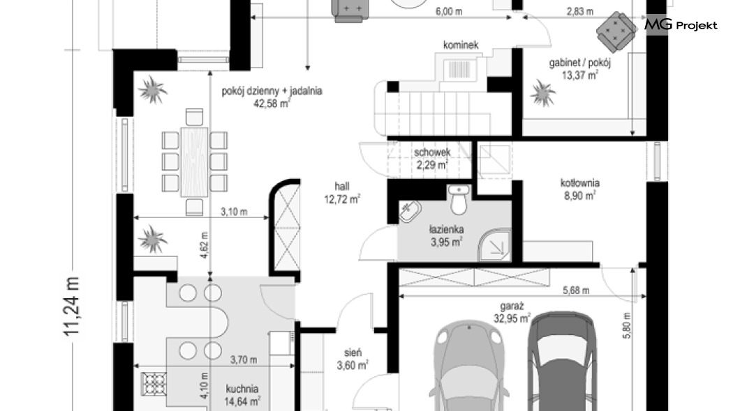
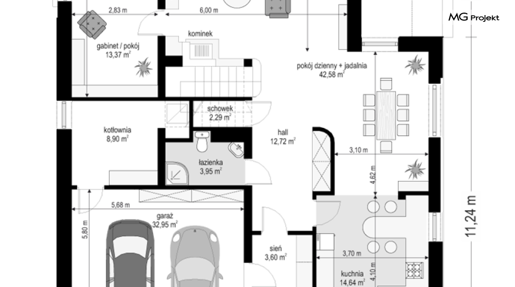
Projekt domu Kasjopea 3 to przeznaczony dla rodziny cztero-sześcioosobowej dom jednorodzinny. Piętrowy budynek przykryty wielospadowym dachem. Zwarta, prosta w budowie bryła budynku z dobudowanym garażem została urozmaicona okładziną klinkierową elewacji, oraz podcieniami - wejściowym i ogrodowym. W Kasjopea 3 położyliśmy szczególny nacisk na czystość i prostotę formy budynku. Oszczędny detal dodaje bryle dyskretnej elegancji. Wnętrze również zaplanowano tak, aby podziały pomieszczeń były klarowne - bez zbędnych korytarzy, a same pokoje były przestronne i miały optymalny kształt. Na parterze zaprojektowano salon z jadalnią i holem, z częściowo otwartą kuchnią, oraz dodatkowy pokój - gabinet lub sypialnię gościnną. Na piętrze umieszczono trzy sypialnie z garderobami i szafami wbudowanymi, oraz dużą łazienkę. Istnieje możliwość wygospodarowania dodatkowego czwartego pokoju na piętrze - likwidując garderobę. Pracownia posiada wersję odbicia lustrzanego projektu Kasjopea 3 oraz kilka wersji: podstawowa (projekt domu Kasjopea) i jej wersja odświeżona (projekt domu Kasjopea 8), bliźniak (projekt domu Kasjopea 2), pomniejszona (projekt domu Kasjopea 4), komfortowa (projekt domu Kasjopea 5), największa (projekt domu Kasjopea 6), z nowocześniejszą architekturą (projekt domu Kasjopea 7) oraz z wyższym kątem nachylenia dachu (projekt domu Kasjopea 7 B).
 
 
 
 
 
 
 
 
 
 
 
 
 
 
 
 
 
 
 
 
 
 
 
 
 
 
 
 
 
 
 
 
 
 
 
 
 
 
 
 
 
 
 
 
 
 
 
 
             
 
 
 
 
 
 
 
 
 
 
 
 
 
                                         
 
                                         
                         
                         
                     
                         
                        