Jamnik






Projekt domu Jamnik to wygodny budynek na bardzo wąską działkę - nawet 15-metrową.
Projekt Jamnik architektura i wnętrze
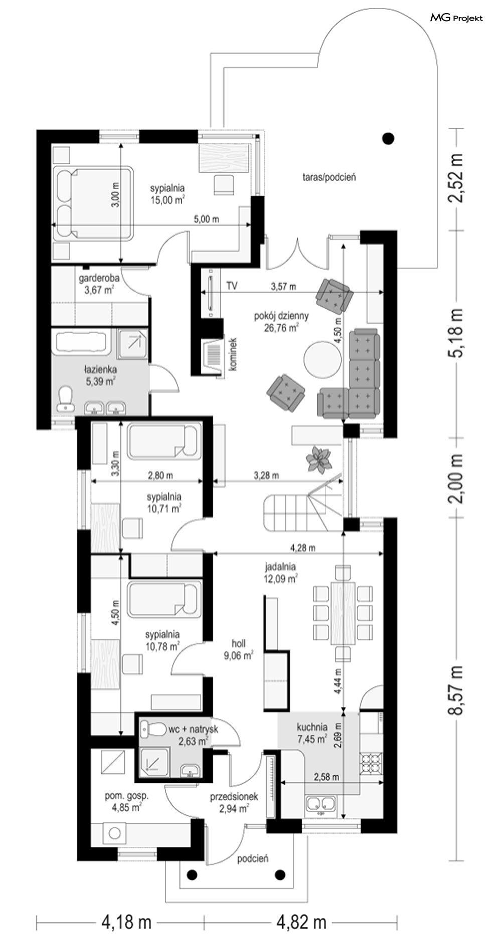
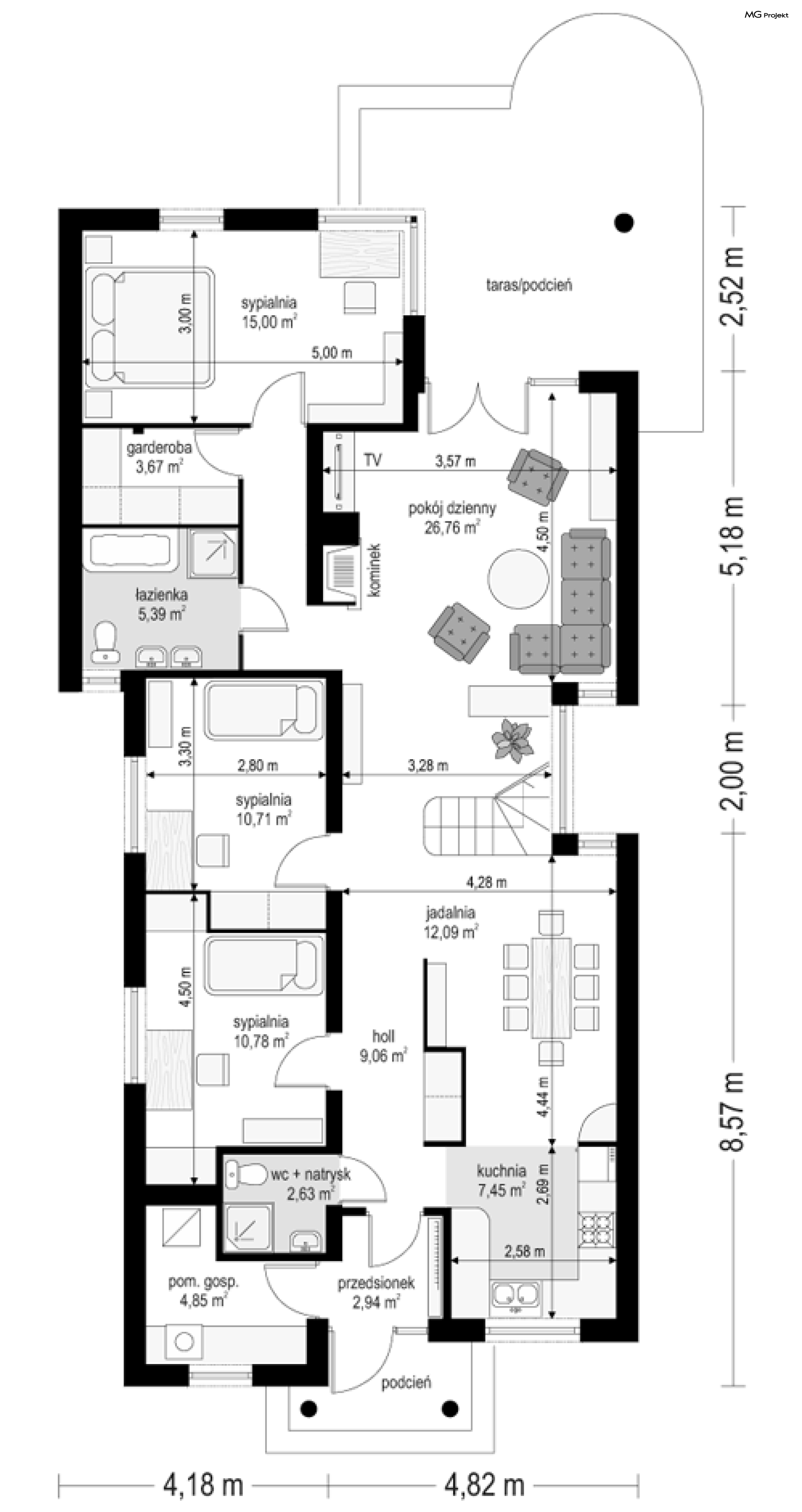
Bryła projektu Jamnik przekryta została wielospadowym dachem z dobudowanym garażem. Wnętrze domu Jamnik jest zaplanowane tak, aby można było zamieszkać w pierwszym etapie tylko na parterze projektu Jamnik. W projekcie domku Jamnik zaplanowano strych, który można zagospodarować na pokoje, zwiekszając w ten sposób powierzchnię użytkową projektu Jamnik. W projekcie domu Jamnik wnętrze salonu z jadalnią i holem tworzy dużą otwartą przestrzeń dzienną. Z salonu wychodzimy na zadaszony taras.
Pracownia MGProjekt posiada projekt domu Jamnik w odbiciu lustrzanym oraz wersje z garażem i poddaszem użytkowym: Projekt domu Jamnik, Projekt domu Jamnik 2, Projekt domu Jamnik 3.
