Dom na miarę 2







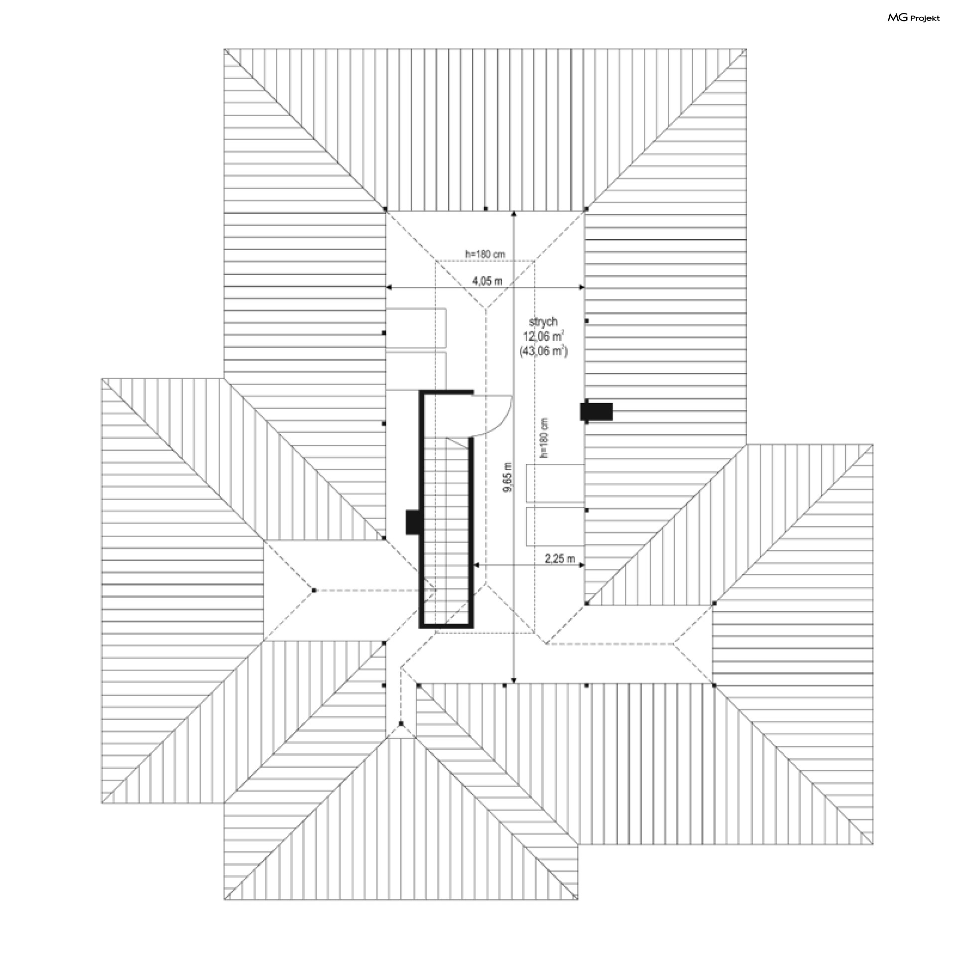
Projekt domu „Dom na miarę 2” jest nieco powiększoną wersją wariantową projektu Dom na miarę. Jest to parterowy dom jednorodzinny dla 4-5 osobowej rodziny - wersja z dwustanowiskowym garażem. Budynek zbudowany jest na rzucie wydłużonego wgłęb działki prostokąta, z dobudowanymi poprzecznymi bryłami salonu z podcieniem i garażu. Dom przykrywa wielospadowy dach o kącie nachylenia 30 stopni. Nad wnętrzem parteru kryje się spory strych, możliwy do zaadaptowania na poddasze. Dom doskonale nadaje się na wąską działkę w wjazdem od południa. Dzięki umieszczeniu większości okien części dziennej na bocznej i frontowej elewacji wnętrze jest idealnie oświetlone, a boczny i wysunięty na front ogródek będzie prawidłowo nasłoneczniony. Dom ma nowoczesny wygład. Główna bryła i detale tworzą ciekawą, a zarazem spokojną architekturę. Wnętrze domu podzielono na części : dzienną, sypialnie i część gospodarczą. Do budynku wchodzimy z przedsionka prosto do holu ze schodami na strych (poddasze). Otwarta przestrzeń salonu, jadalni i kuchni tworzy duże dzienne wnętrze – serce domostwa. Nieco z tyłu zaprojektowaliśmy trzy sypialnie, z garderobami i szafami wbudowanymi, łazienkę i oddzielne wc. Wygodny garaż na dwa auta + przestrzeń gospodarczo-magazynowa dopełniają wnętrze parteru. Na górze mamy jeszcze duży strych, który może służyć jako domowy magazyn, lub można go wykorzystać na cele użytkowe - do wyboru. Dom powinien być niedrogi z budowie i późniejszym utrzymaniu. „Dom na miarę” jest energooszczędny - ma bardzo dobre ocieplenia przegród. Łatwo można go dostosować do standardu NF40. Zapraszamy do zapoznania się z pełną ofertą pracowni MG Projekt: Dom na miarę.
