Joanna 2







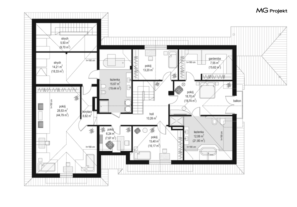
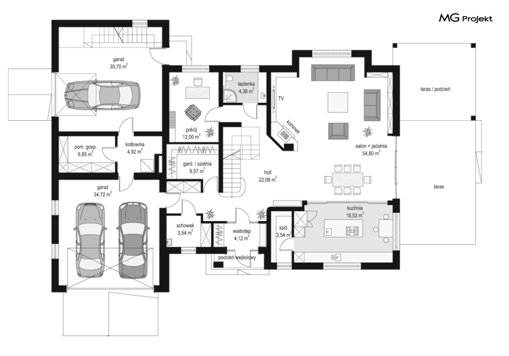
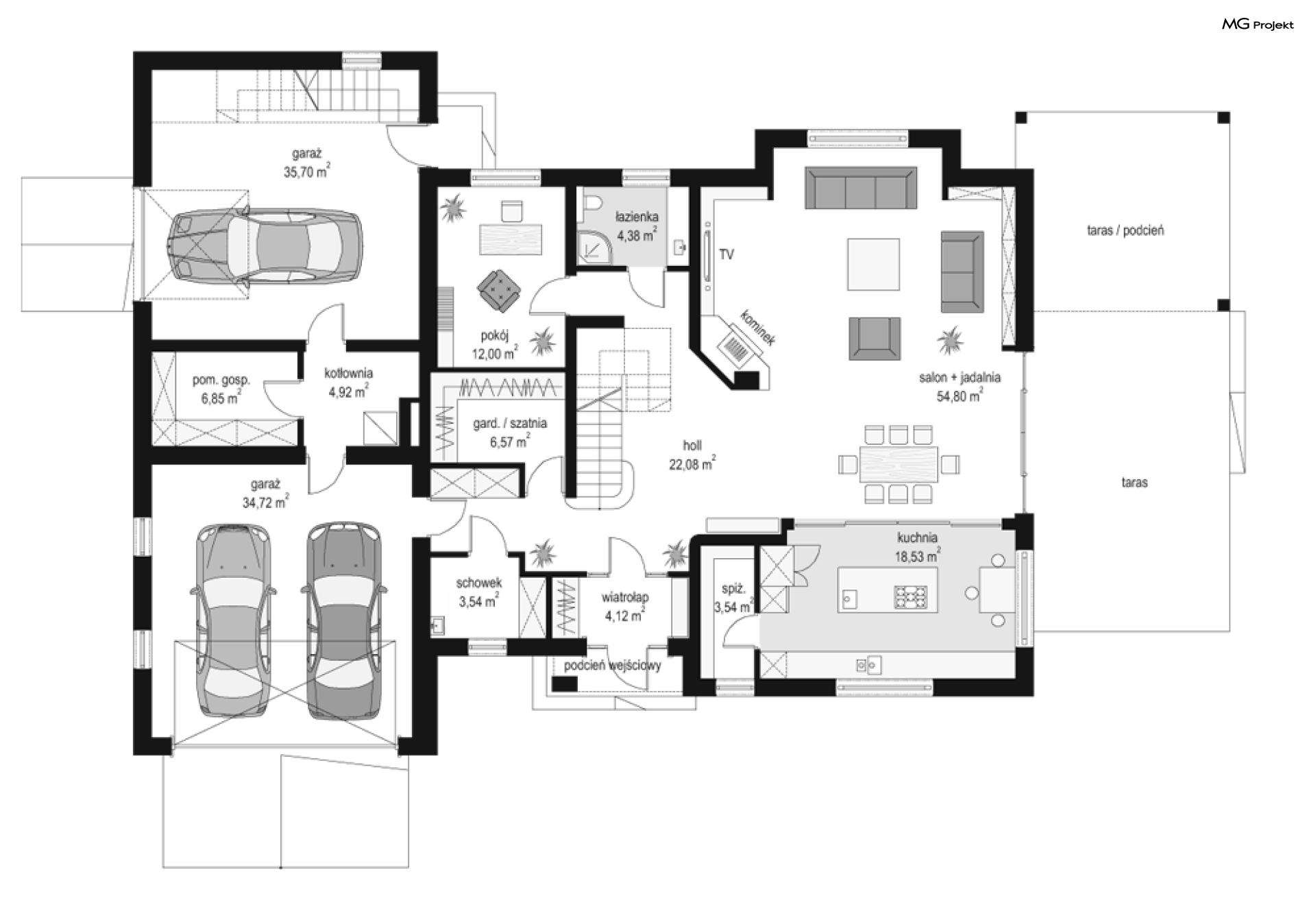
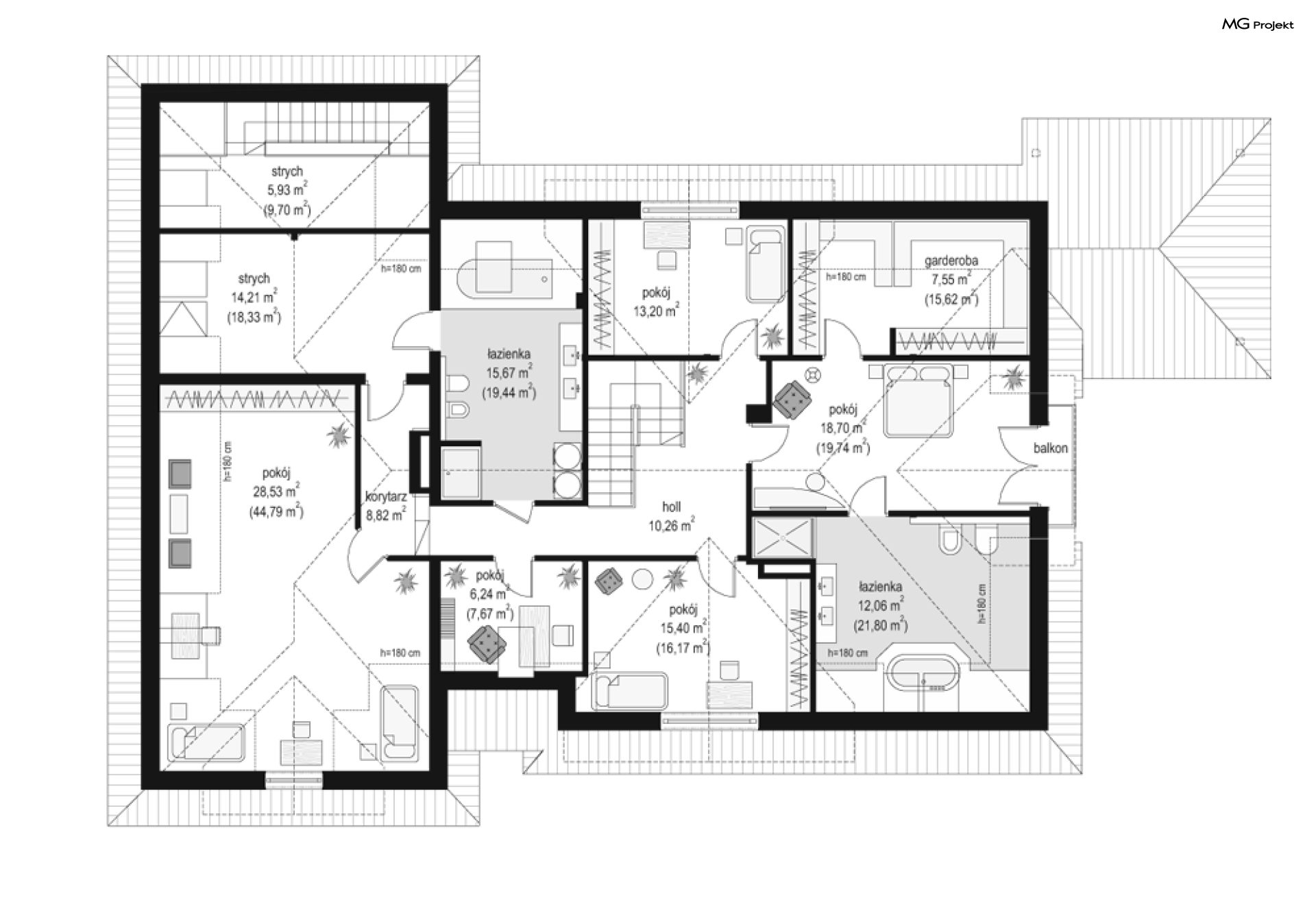
Projekt domu Joanna 2 jest nową odsłoną jednego z naszych dużych domów, cieszących się uznaniem – projektu Joanna. Tym razem dom został powiększony. Zmieniła się też jego stylistyka zewnętrzna. Elewację zdobi okładzina z płytek klinkierowych. Dom zyskał inną nową kolorystykę. Projekt domu Joanna 2 to idealna podmiejska czy wiejska rezydencja, dla Inwestorów spragnionych dużej przestrzeni. To duży dom, z dużą ilością pomieszczeń i przede wszystkim piękną otwartą przestrzenią dzienną, oraz bardzo rozbudowaną częścią garażowo – gospodarczą. Bryła domu to typowy polski dachowiec, z wielospadowym dachem przykrywającym rzut budynku w kształcie litery „T”. Tradycyjnie ukształtowana bryła domu z poddaszem użytkowym i lukarnami połączona została z nowoczesnymi materiałami i kolorystyką. Całość tworzy dom o nowoczesnej, ale stonowanej stylistyce. Stojąc przed domem czujemy jego skalę - nie ma wątpliwości, że to „kawał chaty” :). Wnętrze podzielono na parterze na część dzienną, oraz część gospodarczą, a na poddaszu zaprojektowano sypialnie i zapasową przestrzeń rekreacyjną i magazynową. Na parterze głównym pokojem jest salon, połączony z holem i kuchnią. Kuchnia z wyspą i spiżarnią. Z salonu wychodzimy na częściowo zadaszony taras. Na parterze przewidziano dodatkowy pokój z łazienką, szatnię i część gospodarczą złożoną z garażu, kotłowni, i dwóch dodatkowych pomieszczeń gospodarczych ( jedno z nich to drugi garaż ). Na poddaszu mamy piękny apartament rodziców, z garderobami, pokojem kąpielowym i tarasem, sypialnie dzieci, wielką ogólną łazienkę, dodatkowy pokój gościnny, oraz przestrzeń rekreacyjną nad garażem, z dodatkowymi dwoma strychami. Co tu dużo opowiadać - dom jest naprawdę luksusowy. Pracownia posiada równiez projekt domu Joanna 2 w odbiciu lustrzanym.
