Rezydencja Parkowa 3 D







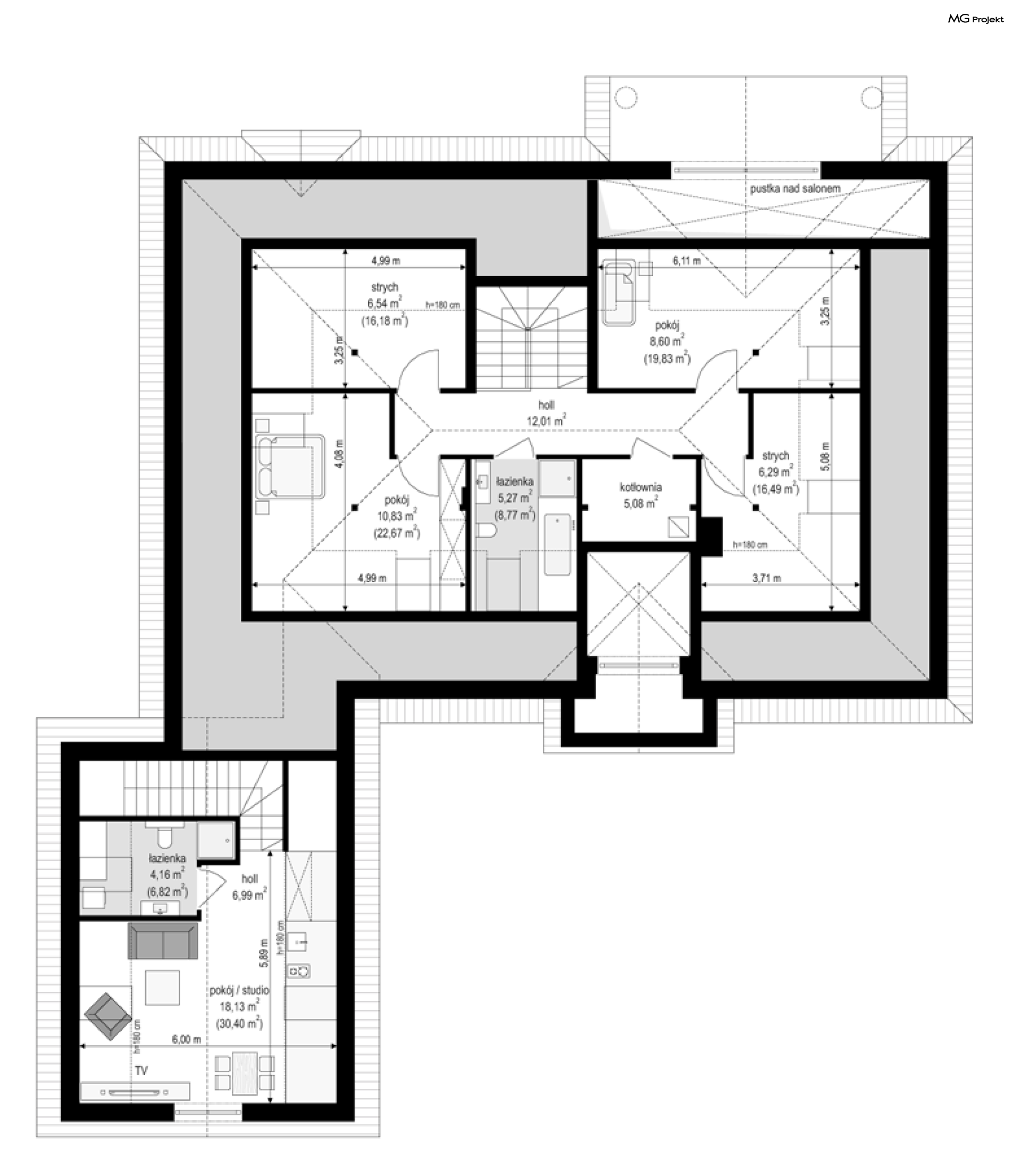
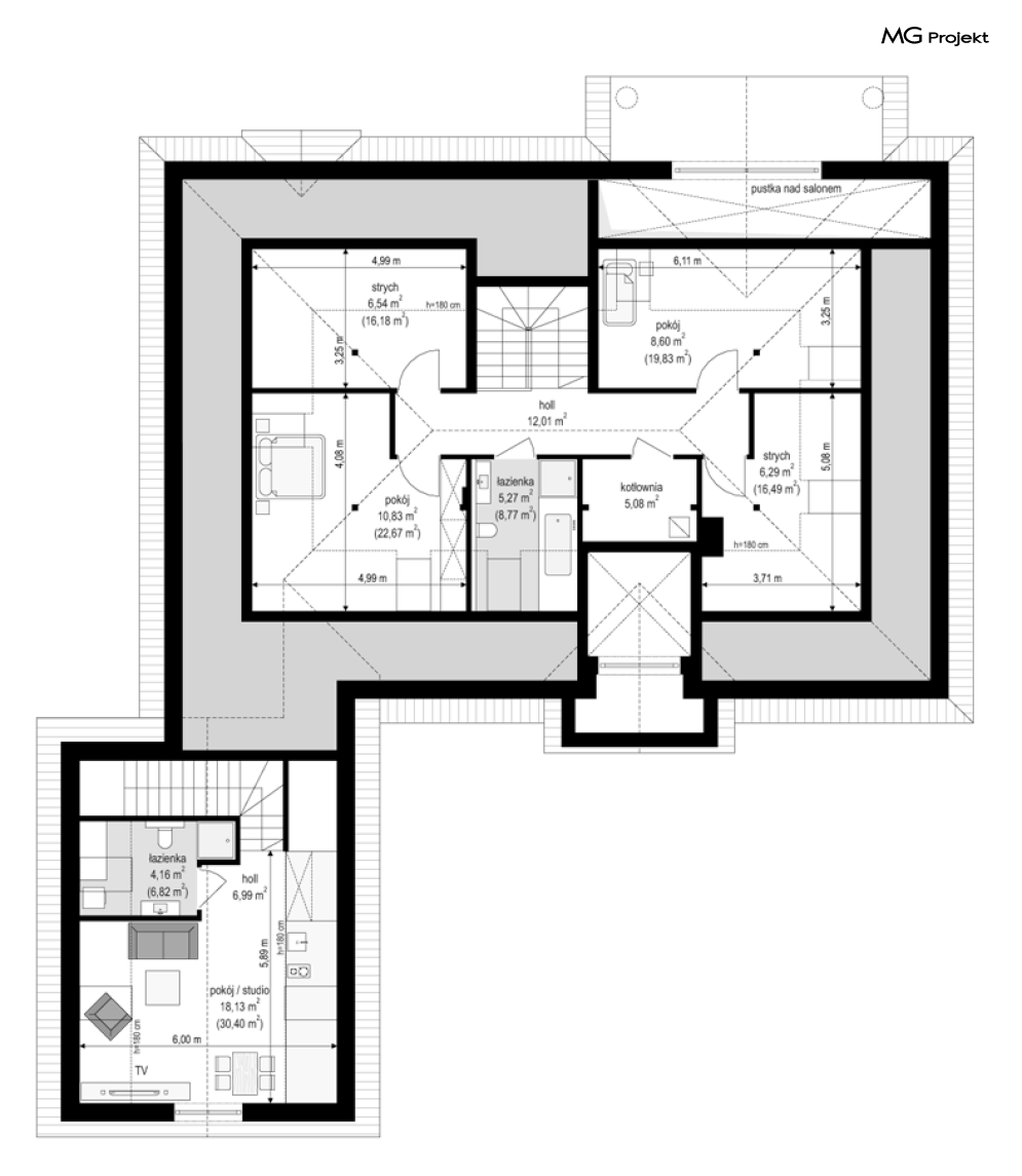
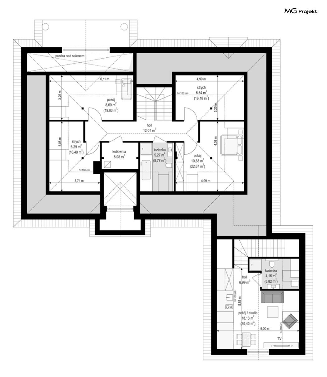
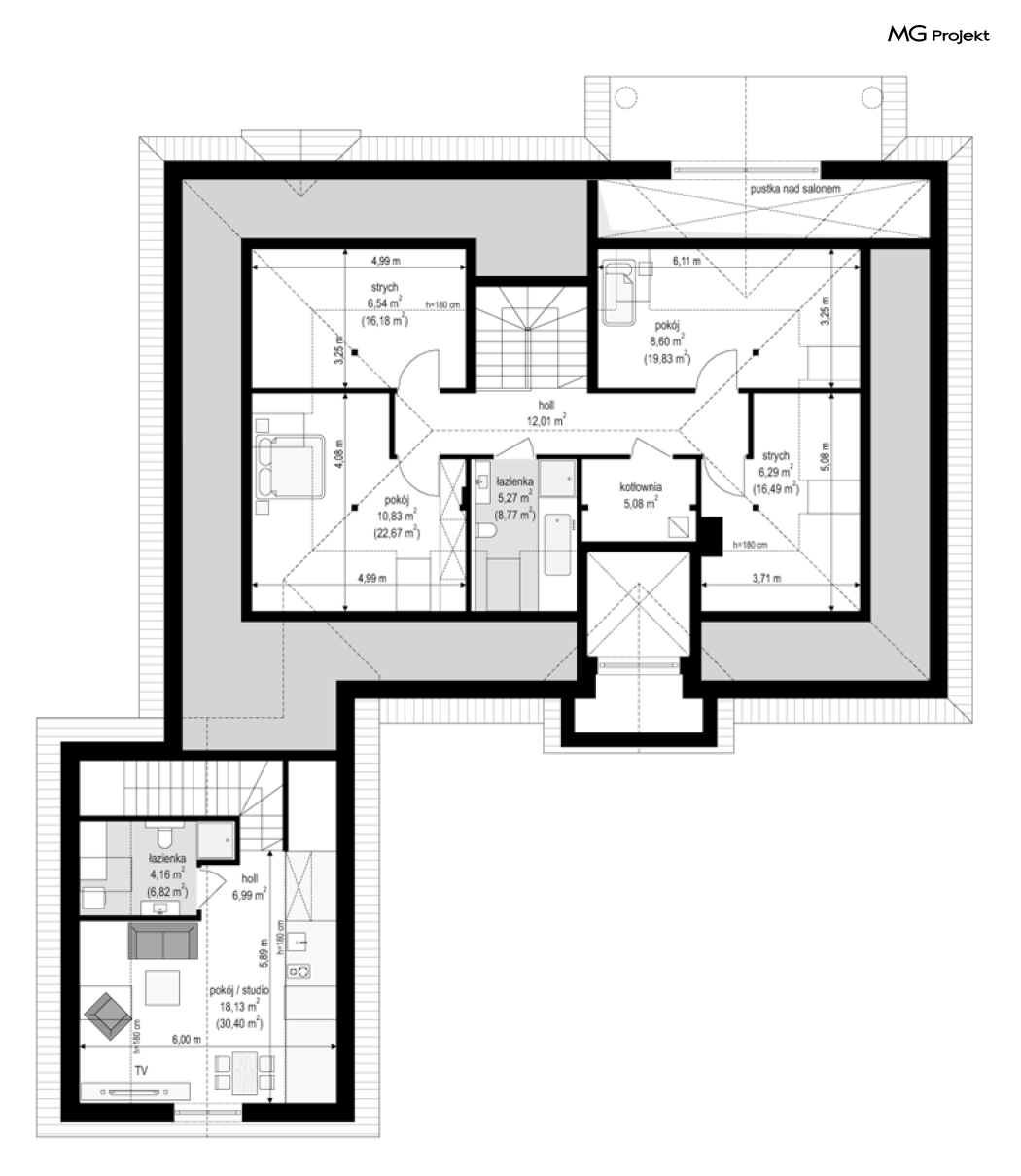
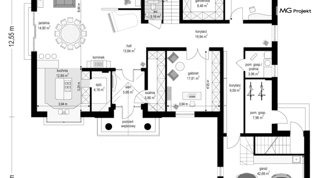
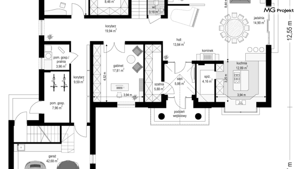
Projekt domu Rezydencja Parkowa 3 D jest to kolejny projekt domu z docenionej przez Klientów kolekcji „Rezydencja parkowa”. Tym razem jest to projekt Rezydencja parkowa 3 wariant D. Projekt choć zachowuje ogólnie podobną stylistykę i detale, to jednak różni się zasadniczo od bazowej wersji. Przede wszystkim budynek jest zwężony, zmniejszony, ma zagospodarowane poddasze, a prócz tego ma przewidziane nad garażem na poddaszu dodatkowe mieszkanko – służbówkę dla gosposi. Architektura domu Rezydencja Parkowa 3 D nawiązuje do polskiego dworku, oraz do detali amerykańskich rezydencji. Elewacja frontowa urozmaicona jest pięknym wejściowym podcieniem z kolumnami i łukowym oknem. Dobudowana część garażowa tworzy boczą oficynę, a cały front układa się w literę L. Od strony ogrodu dom ozdabia szeroki podcień nad tarasem i piękne wysokie łukowe okno salonu, otwierające wnętrze na ogród. Kilka słów o wnętrzu: Na parterze przewidziano otwartą część dzienną salonu połączonego z jadalnią i holem. Przestrzeń dzienna otwiera się szerokim podwyższonym przeszkleniem na obszerny podcień, taras i ogród. Wysokie okno w salonie zastosowano dzięki pustce nad częścią salonu, które otwiera wnętrze aż do sufitu. Z boku przy obszernej sieni mamy zaprojektowaną piękną kuchnię ze spiżarnią. W części prywatnej parteru przewidziano część państwa domu: sypialnię z łazienką i garderobą, oraz duży gabinet – bibliotekę. W skrzydle gospodarczym budynku mamy dwustanowiskowy wygodny garaż, dwa pomieszczenia gospodarcze (w tym pralnię) , oraz osobne wejście i schody na poddasze nad garażem z osobnym mieszkaniem dla gosposi. Na poddaszu domu zaprojektowano dwie wygodne sypialnie, łazienkę i dodatkowe dwa pomieszczenia strychowe, bądź magazynowe. Dom Rezydencja Parkowa 3 D jest komfortową, reprezentacyjną willą dla 3-4cioosobowej rodziny. Zwarta bryła i przemyślana konstrukcja zapewni szybką i efektywną budowę., a zastosowane w projekcie energooszczędne materiały i technologie zapewnią niedrogie koszty późniejszego utrzymania domu. Zapraszamy do zapoznania się z pełną ofertą pracowni MG Projekt: (projekt domu Rezydencja Parkowa), (projekt domu Rezydencja Parkowa 2), (projekt domu Rezydencja Parkowa 3), (projekt domu Rezydencja Parkowa 3C), (projekt domu Rezydencja Parkowa 4).
Uwaga do kosztów realizacji:
Koszty dotyczą projektu z piwnicą i z poddaszem.
Przy wariancie bez piwnicy oraz z niezagospodarowanym strychem koszt budowy jest niższy - odpowiednio o:
SSO - 50 313 zł / SSZ - 54 580 zł /
RW - 65 566 zł / RDPK - 120 146 zł
-
Projekt szamba szczelnego0 zł399 zł
-
Charakterystyka energetyczna0 zł200 zł
-
Pakiet energooszczędny0 zł150 zł
-
Dziennik budowy0 zł60 zł
-
Tablica budowy0 zł120 zł
-
Wersja elektroniczna projektu550 zł
-
Pakiet kosztorys inwestorski550 zł
-
Pakiet ogrzewanie podłogowe470 zł
-
Powietrzna pompa ciepła470 zł
-
Pakiet wentylacja mechaniczna i kominek DGP470 zł
-
Dodatkowy egzemplarz projektu500 zł
-
Pakiet kotłownia na paliwo stałe470 zł
-
Pakiet instalacja fotowoltaiczna470 zł
-
Pakiet klimatyzacja w domu470 zł
-
Pakiet gruntowa pompa ciepła470 zł
-
Pakiet odkurzacz centralny470 zł
-
Pakiet płaszcz wodny470 zł
-
Pakiet kominek DGP399 zł
-
Projekty altan i grillów ogrodowych650 zł
-
Pakiet instalacja solarna470 zł

opieką konsultacyjną w trakcie budowy domu
