Julka







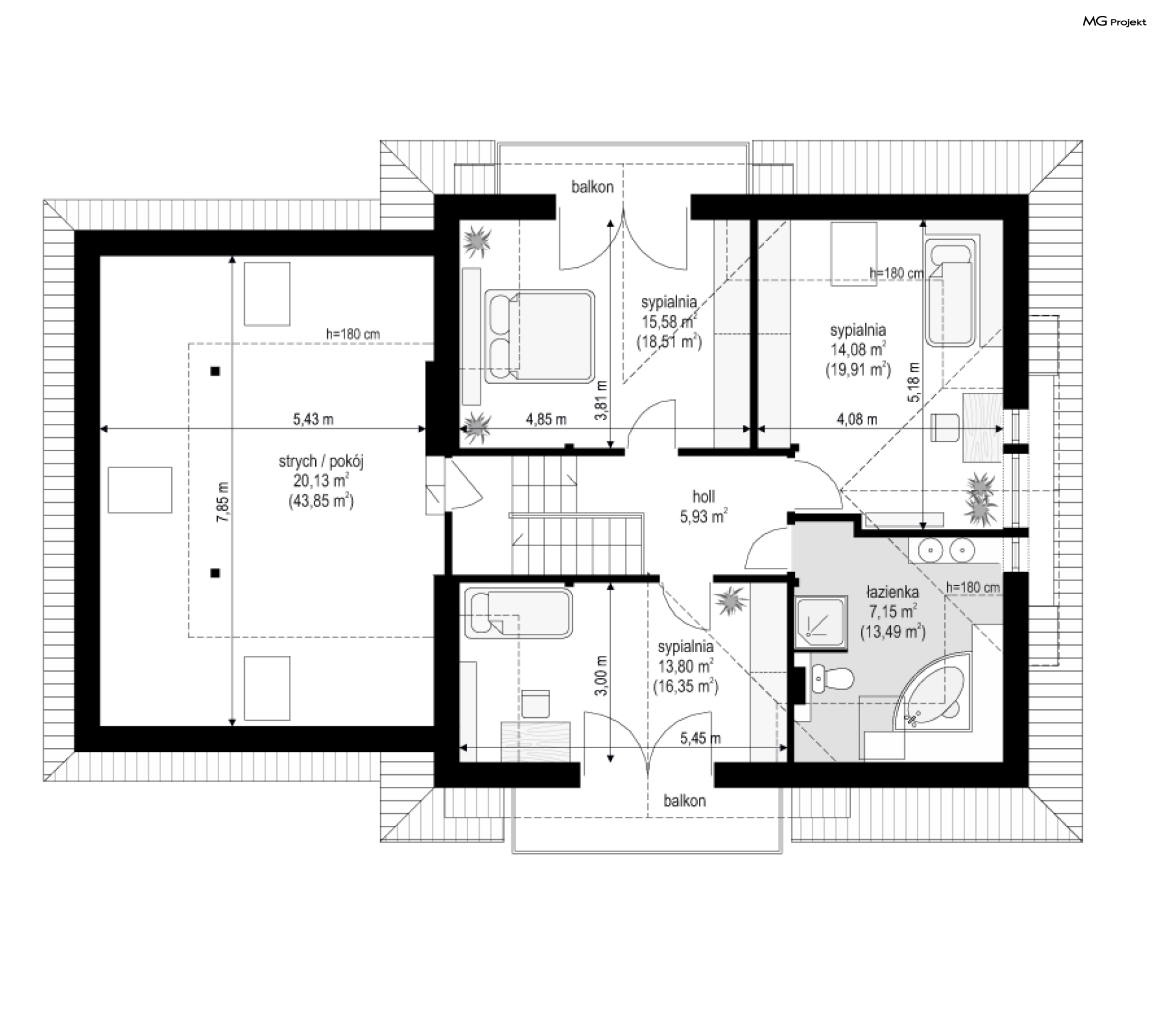
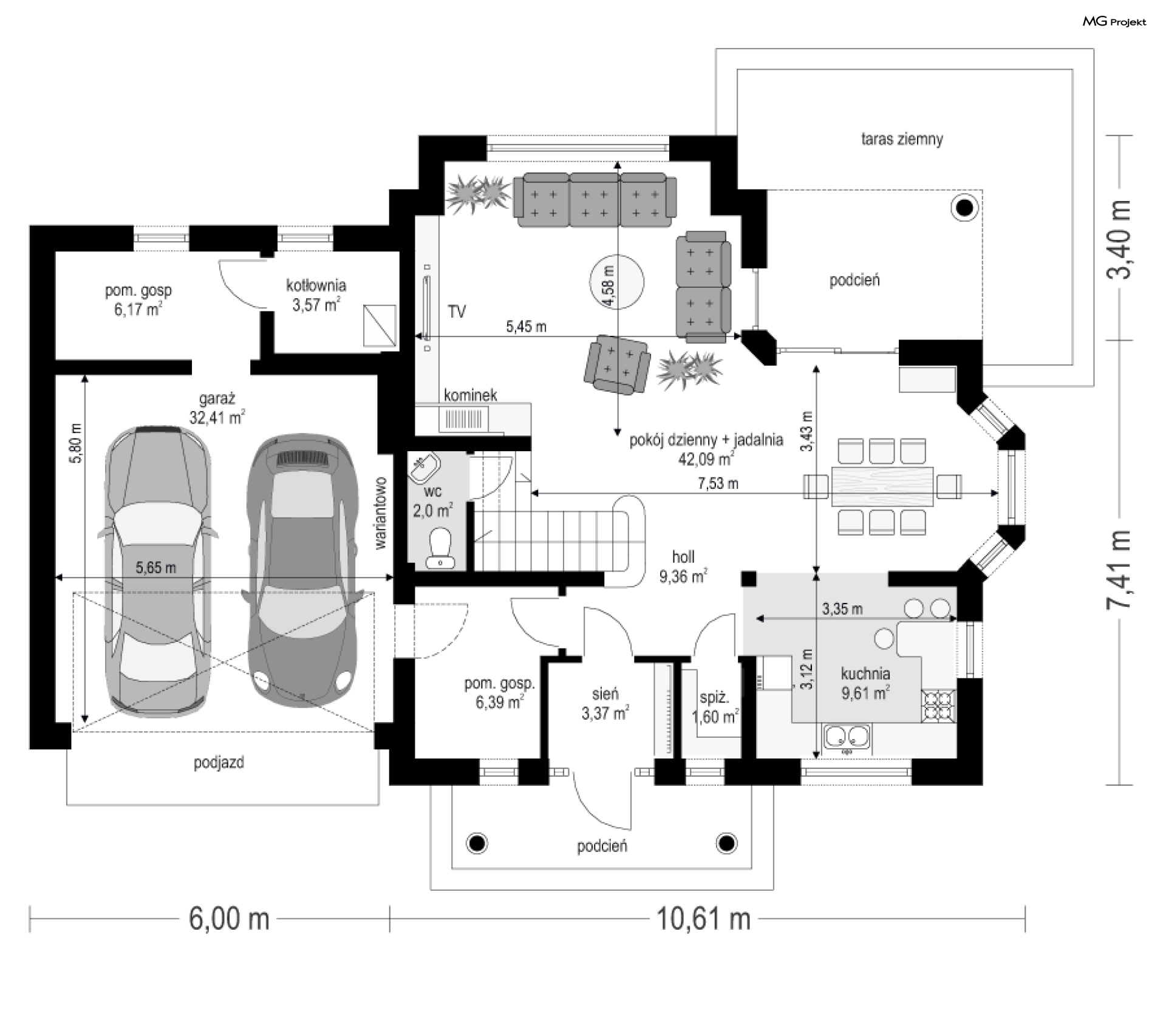
Projekt domu Julka to budynek jednorodzinny parterowy z poddaszem użytkowym dla rodziny 4-5cio osobowej. Projekt domu architektonicznie wzorowany jest na serii popularnych projektów Benedykt. Jest to jednak projekt o mniejszej powierzchni. Wymiary zewnętrzne budynku pozwolą posadowić go na niedużej działce. Mimo niewielkiej powierzchni użytkowej dom jest bardzo funkcjonalny wewnątrz, oraz prezentuje się bardzo dostojnie na zewnątrz. Kopertowy dach Julki z dobudowaną bryłą garażu ozdobiony został szerokimi lukarnami z balkonami. Od strony wejściowej balkon wsparty został na kolumnach tworząc podcień wejściowy, od ogrodu zaprojektowano wykusz z pięknym oknem z salonu. Dodatkowego sznytu domowi dodają wykusz w jadalni, oraz podcień ogrodowy z salonu, wsparty na kolumnie podpierającej narożnik domu. Na parterze zaplanowano pokój dzienny z jadalnią połączony z holem i z częściowo otwartą kuchnią. Reprezentacyjne schody będą stanowiły ozdobę przestrzeni dziennej na parterze. Przy wejściu zaprojektowano dodatkowe pomieszczenie, które może być wykorzystane do celów gospodarczych (wówczas połączone z garażem), lub może być ewentualnie pokoikiem do pracy - gabinetem. W części garażowej znajduje się dwustanowiskowy, wygodny garaż i dwa pomieszczenia gospodarcze w tym kotłownia. W projekcie domu Julka, na poddaszu przewidziano trzy przestronne sypialnie i wygodną łazienkę. Każda z sypialni ma przewidziane ściany z szafami wbudowanymi - można również wygrodzić w nich garderoby. Pracownia oferuje też wersję domu w odbiciu lustrzanym, wersję projektu z garażem jednostanowiskowym (projekt domu Julka 2), wersję przekrytą dachem dwuspadowym (pojekt domu Julka 3), wersję z dachem dwuspadowym i zwężonym garażem (projekt domu Julka 4). tylko zobacz czy sie dobrze zapisalo
-
Projekt szamba szczelnego0 zł399 zł
-
Charakterystyka energetyczna0 zł200 zł
-
Pakiet energooszczędny0 zł150 zł
-
Dziennik budowy0 zł60 zł
-
Tablica budowy0 zł120 zł
-
Wersja elektroniczna projektu550 zł
-
Pakiet kosztorys inwestorski550 zł
-
Pakiet ogrzewanie podłogowe470 zł
-
Powietrzna pompa ciepła470 zł
-
Pakiet wentylacja mechaniczna i kominek DGP470 zł
-
Dodatkowy egzemplarz projektu500 zł
-
Pakiet kotłownia na paliwo stałe470 zł
-
Pakiet instalacja fotowoltaiczna470 zł
-
Pakiet klimatyzacja w domu470 zł
-
Pakiet gruntowa pompa ciepła470 zł
-
Pakiet odkurzacz centralny470 zł
-
Pakiet płaszcz wodny470 zł
-
Pakiet kominek DGP399 zł
-
Projekty altan i grillów ogrodowych650 zł
-
Pakiet instalacja solarna470 zł

opieką konsultacyjną w trakcie budowy domu