Julka 2







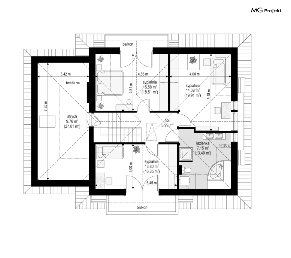
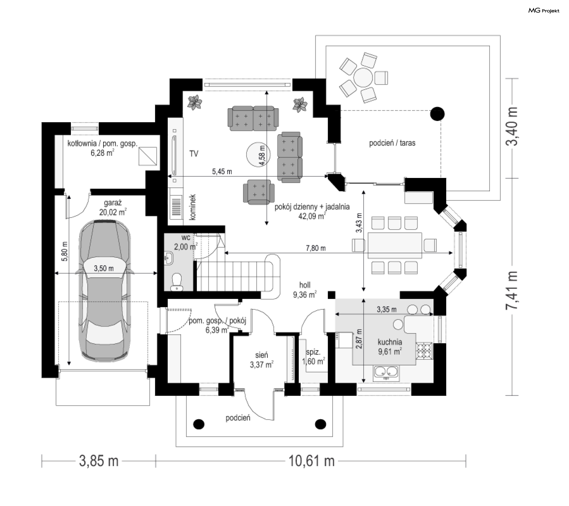
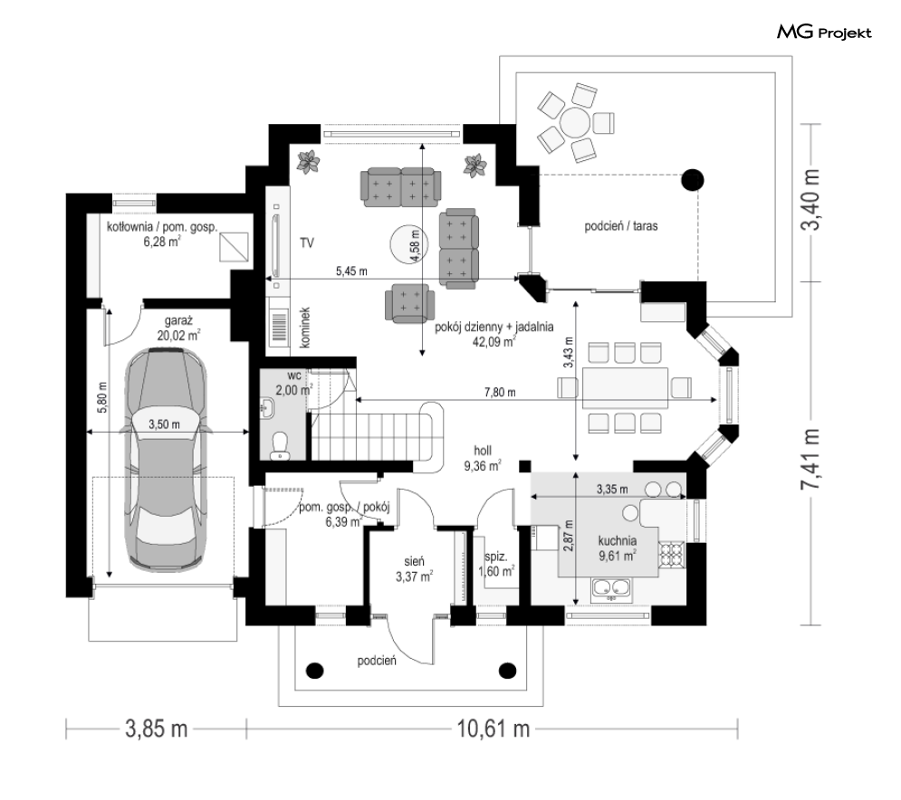
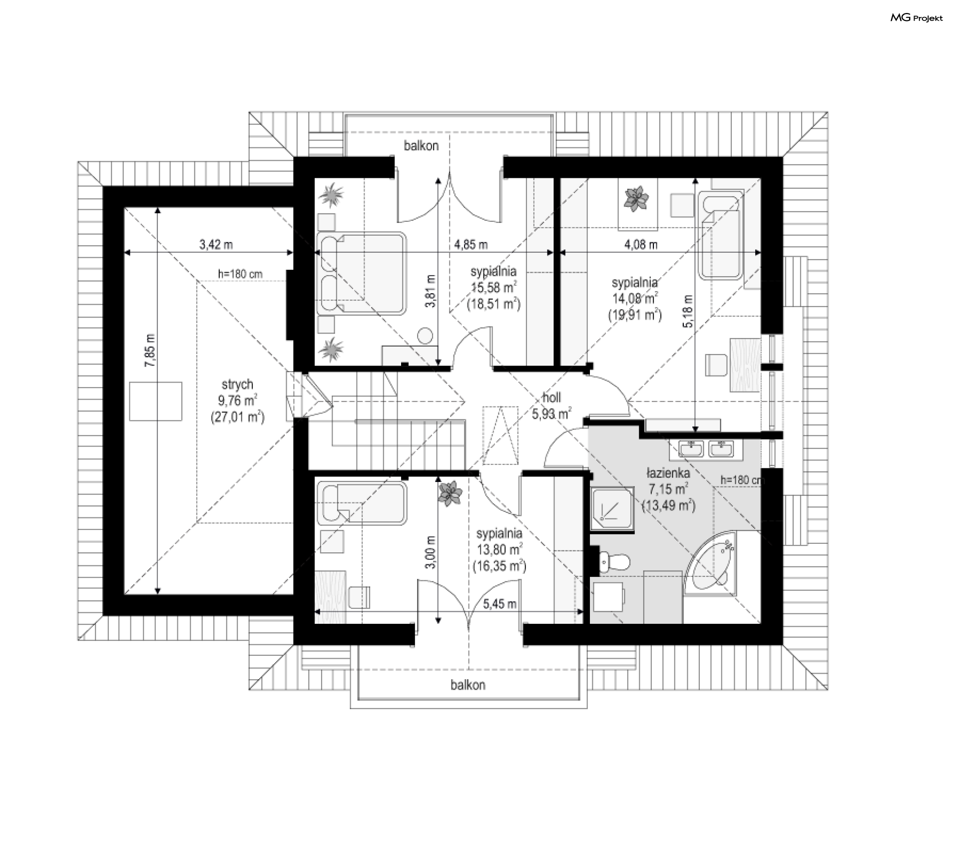
Projekt domu Julka 2 to pomniejszony wariant projektu Julka - z pojedynczym garażem i mniejszym strychem nad garażem. Domek stanowi idealną propozycję dla cztero-pięcioosobowej rodziny, która marzy o własnych czterech ścianach. Projekt domu Julka 2 stworzono na planie kwadratu, z dobudowanym garażem. Parter i poddasze wieńczy kopertowy dach, którego urozmaiceniem są lukarny z balkonami. Architektura zewnętrzna domu to tradycyjny Polski "dachowiec", z ciekawie dobranymi oknami i drzwiami balkonowymi, z ozdobnymi wykuszami i podcieniem ogrodowym, umożliwiającym przebywanie na tarasie w niepogodę. Wejście do domu Julka 2 zaakcentowano dwiema kolumnami, na których wspiera się balkonik frontowej lukarny. Wewnątrz dom zaprojektowano z podziałem na część dzienną na parterze i na część nocną - intymną z sypialniami na poddaszu. Większość powierzchni parteru zajmuje przestronna - jak na tą skalę domu - część dzienna z salonem, jadalnią, holem i półotwartą kuchnią. Schody stanowią dekoracyjny element wnętrza. Pozostała przestrzeń to garaż i pomieszczenia gospodarcze. Istnieje możliwość zagospodarowania pomieszczenia przy wejściu na pokój - gabinet lub biuro (likwidując połączenie z garażem). Na poddaszu miejsce znalazły trzy wygodne sypialnie - każda z własną szeroką lukarną, oraz łazienka. Dodatkowo można zaadaptować strych na dodatkowy pokój. Pracownia dysponuje wariantem odbicia lustrzanego projektu Julka 2 oraz kilkoma wariantami : podstawowa (projekt domu Julka), z dachem dwuspadowym i garażem dwustanowiskowym (projekt domu Julka 3), z garażem jednostanowiskowym (projekt domu Julka 4).
-
Projekt szamba szczelnego0 zł399 zł
-
Charakterystyka energetyczna0 zł200 zł
-
Pakiet energooszczędny0 zł150 zł
-
Dziennik budowy0 zł60 zł
-
Tablica budowy0 zł120 zł
-
Wersja elektroniczna projektu550 zł
-
Pakiet kosztorys inwestorski550 zł
-
Pakiet ogrzewanie podłogowe470 zł
-
Powietrzna pompa ciepła470 zł
-
Pakiet wentylacja mechaniczna i kominek DGP470 zł
-
Dodatkowy egzemplarz projektu500 zł
-
Pakiet kotłownia na paliwo stałe470 zł
-
Pakiet instalacja fotowoltaiczna470 zł
-
Pakiet klimatyzacja w domu470 zł
-
Pakiet gruntowa pompa ciepła470 zł
-
Pakiet odkurzacz centralny470 zł
-
Pakiet płaszcz wodny470 zł
-
Pakiet kominek DGP399 zł
-
Projekty altan i grillów ogrodowych650 zł
-
Pakiet instalacja solarna470 zł

opieką konsultacyjną w trakcie budowy domu