Julka 3







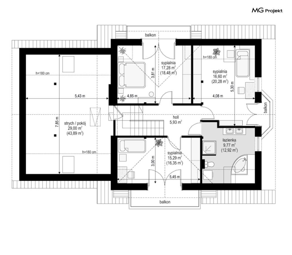
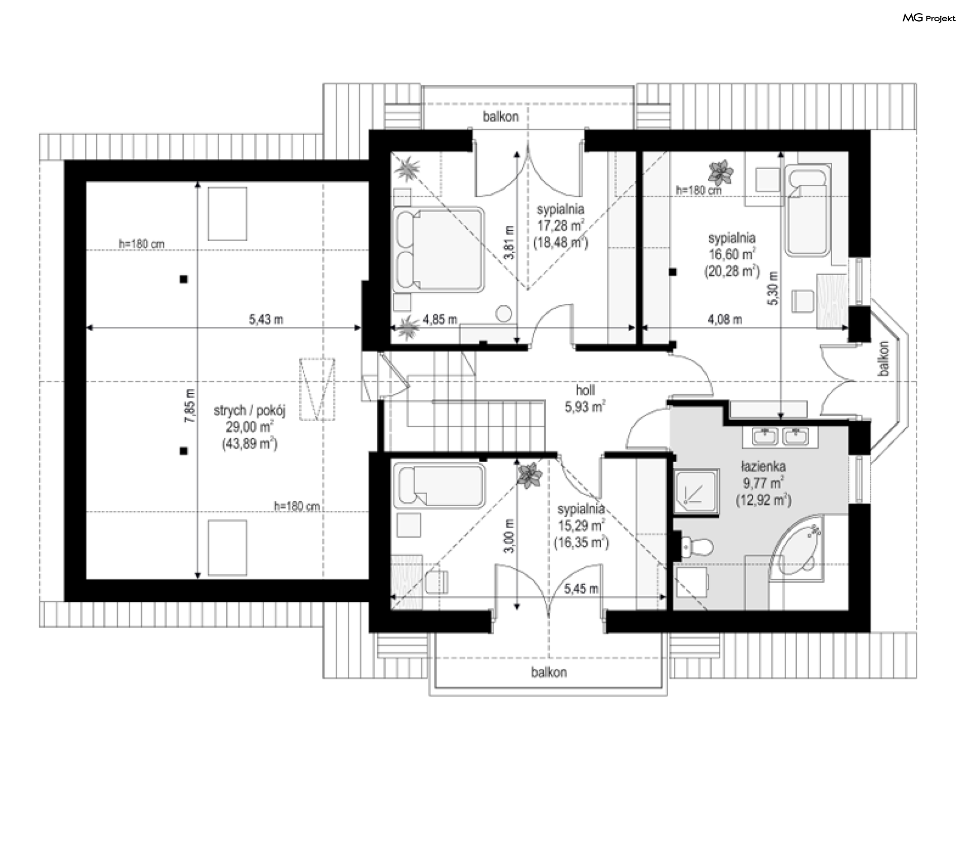
Projekt domu Julka 3 to wersja wariantowa projektu Julka. Budynek o podobnym, jak w wersji podstawowej układzie wnętrz na parterze i poddaszu, ale przekryty dwuspadowymi dachami. Dzięki temu dom będzie można lokalizować na działkach, gdzie przepisy wymagają stosowania dwuspadowych dachów, a zabraniają domów z dachami wielospadowymi. Domek Julka 3, pomimo uproszczenia bryły prezentuje się bardzo atrakcyjnie. W powstałych bocznych szczytach umieszczone zostały dodatkowe okna i balkonik nad wykuszem jadalni. Frontowa i tylna lukarna z balkonami upiększają pozostałe elewacje. Wbudowany w bryłę domu podcień ogrodowy pozwala na korzystanie z tarasu w deszczowe dni. We wnętrzu nadal panuje pierwotny - jak w Julce - podział na przestrzeń dzienną na parterze, z salonem, jadalnią, holem z wyeksponowanymi schodami i częściowo otwartą kuchnią, oraz na sypialnie na poddaszu. W tej wersji projektu sypialnie i łazienka mogą być trochę większe, ponieważ przy dwuspadowym dachu odeszła część "skosów". Również strych nad garażem jest większy i teraz można go z powodzeniem zaadaptować na dwa dodatkowe pokoje. Projekt domu Julka 3 dostępny jest także w odbiciu lustrzanym w wersji bazowej (projekt domu Julka), w nieco mniejszej wersji (projekt domu Julka 2), tańsza w reaizacji (projekt domu Julka 4).
-
Projekt szamba szczelnego0 zł399 zł
-
Charakterystyka energetyczna0 zł200 zł
-
Pakiet energooszczędny0 zł150 zł
-
Dziennik budowy0 zł60 zł
-
Tablica budowy0 zł120 zł
-
Wersja elektroniczna projektu550 zł
-
Pakiet kosztorys inwestorski550 zł
-
Pakiet ogrzewanie podłogowe470 zł
-
Powietrzna pompa ciepła470 zł
-
Pakiet wentylacja mechaniczna i kominek DGP470 zł
-
Dodatkowy egzemplarz projektu500 zł
-
Pakiet kotłownia na paliwo stałe470 zł
-
Pakiet instalacja fotowoltaiczna470 zł
-
Pakiet klimatyzacja w domu470 zł
-
Pakiet gruntowa pompa ciepła470 zł
-
Pakiet odkurzacz centralny470 zł
-
Pakiet płaszcz wodny470 zł
-
Pakiet kominek DGP399 zł
-
Projekty altan i grillów ogrodowych650 zł
-
Pakiet instalacja solarna470 zł

opieką konsultacyjną w trakcie budowy domu
