Bryza 4







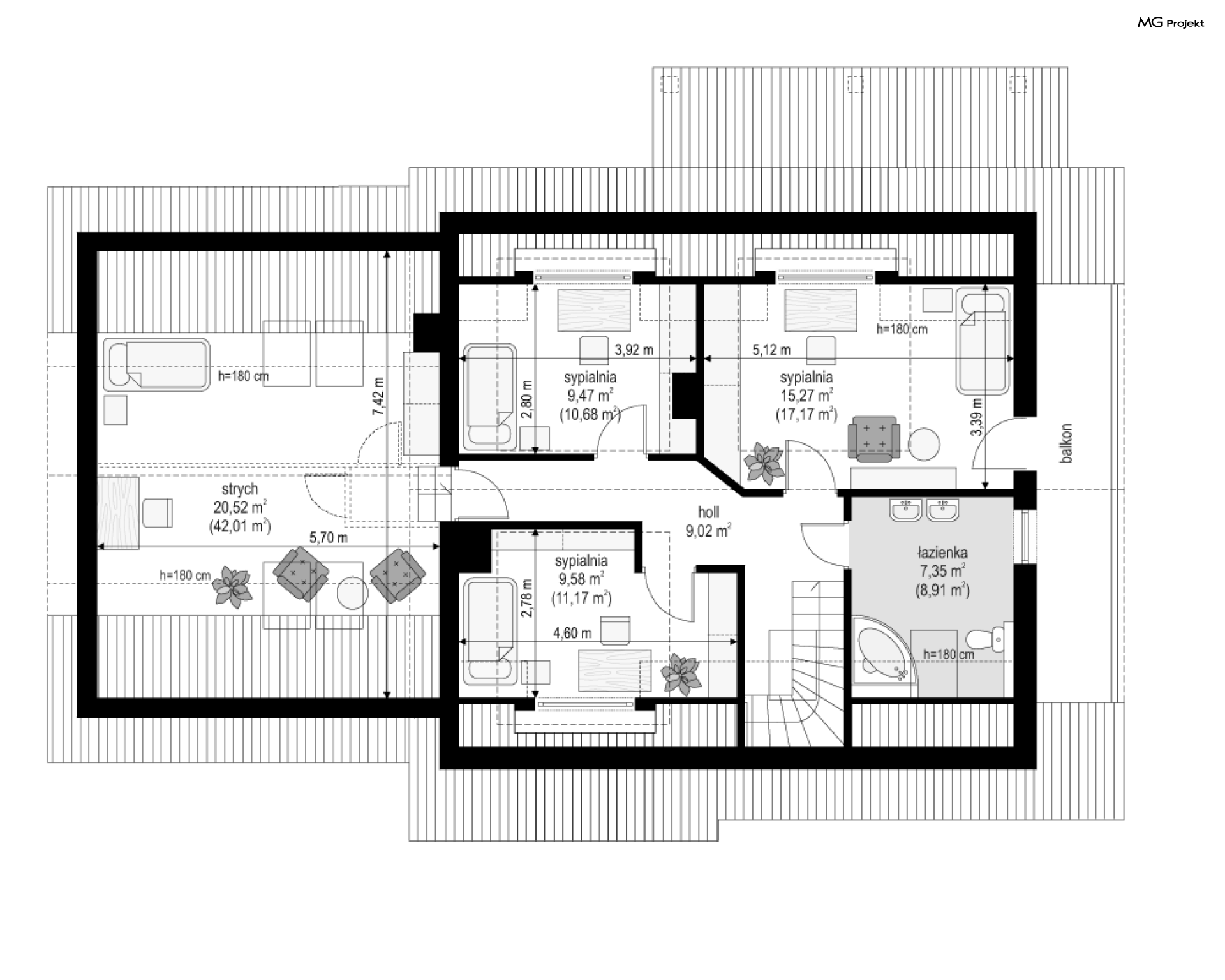
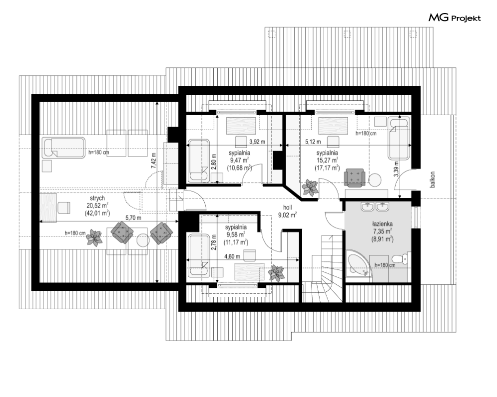
Projekt domu Bryza 4 to kolejna wersja bardzo popularnego projektu z serii Bryz. Dom jest całoroczny, jednorodzinny, przeznaczony do zamieszkania dla 4-6 osobowej rodziny, parterowy z użytkowym poddaszem. Prosta bryła budynku, przekryta jest dwuspadowym dachem. Do głównej bryły dobudowano część garażową z podwójnym garażem. Architektura domu to połączenie nowoczesnych materiałów i kolorystyki z tradycyjną formą budynku. Dzięki temu dom doskonale wkomponuje się w dowolne otoczenie - zarówno podmiejskie ciasne przedmieścia, jak i luźniejszą przestrzeń. Wnętrze domu podzielono na część dzienną na parterze i sypialnie na poddaszu. Na parterze, prócz salonu z kuchnią i holem (z zabiegowymi schodami) zaprojektowano także dodatkowy pokój - na przykład gabinet, wygodną łazienkę, kotłownię i dwustanowiskowy garaż, z pomieszczeniem gospodarczym. Na poddaszu mamy trzy sypialnie z łazienką, oraz strych. Strych w projekcie traktowany jest jako przestrzeń nieużytkowa, ale może on być łatwo zaadaptowany na cele użytkowe. Dzięki temu zyskamy dodatkowy pokój, lub dwa mniejsze pokoiki. Dom ma prostą konstrukcję, jest łatwy z budowie - a przez to niedrogi. Dzięki zwartej bryle można w nim uzyskać dobre parametry energooszczędności. Dodatkowym atutem budynku są dwa zadaszenia tarasu narożnego - rzecz nie do przecenienia w słoneczne dni, jak też przy opadach. Zapraszamy do zapoznania się z pełną ofertą pracowni MG Projekt: Bryza, Bryza 2, Bryza 3, Bryza 5 (NF 40) , Bryza 6 (MDM).
-
Projekt szamba szczelnego0 zł399 zł
-
Charakterystyka energetyczna0 zł200 zł
-
Pakiet energooszczędny0 zł150 zł
-
Dziennik budowy0 zł60 zł
-
Tablica budowy0 zł120 zł
-
Wersja elektroniczna projektu550 zł
-
Pakiet kosztorys inwestorski550 zł
-
Pakiet ogrzewanie podłogowe470 zł
-
Powietrzna pompa ciepła470 zł
-
Pakiet wentylacja mechaniczna i kominek DGP470 zł
-
Dodatkowy egzemplarz projektu500 zł
-
Pakiet kotłownia na paliwo stałe470 zł
-
Pakiet instalacja fotowoltaiczna470 zł
-
Pakiet klimatyzacja w domu470 zł
-
Pakiet gruntowa pompa ciepła470 zł
-
Pakiet odkurzacz centralny470 zł
-
Pakiet płaszcz wodny470 zł
-
Pakiet kominek DGP399 zł
-
Projekty altan i grillów ogrodowych650 zł
-
Pakiet instalacja solarna470 zł

opieką konsultacyjną w trakcie budowy domu
