Kasjopea 4







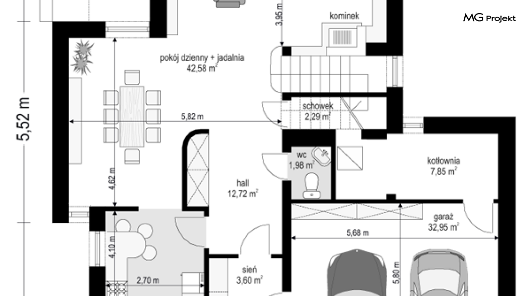
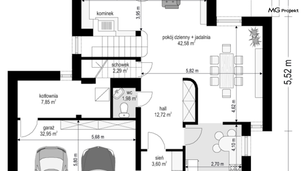
Projekt domu Kasjopea 4 jest wariantową wersją projektu Kasjopea, z powiększonym do dwóch stanowisk garażem. Budynek jest piętrowy, przekryty czterospadowym dachem, a urozmaiceniem prostokątnej bryły jest parterowa część garażu, oraz wykusz jadalni, podcień, balkony i loggie. Nowoczesna architektura budynku jest jednocześnie stonowana, nieprzesadzona, co dodaje domowi elegancji. Wnętrze willi Kasjopea 4 podzielono na część dzienną na parterze - z salonem połączonym z jadalnią, holem i częściowo otwartą kuchnią, oraz sypialnie na piętrze. Na parterze miejsce znalazły garaż i kotłownia. Na piętrze udało się wygospodarować odrębny apartament rodziców, z własną łazienką i garderobą, oraz sypialnie dziecięce, z łazienką dostępną z holu. Dodatkowy, czwarty pokój, można dowolnie zaaranżować - na sypialnię, gabinet, czy na przykład pralnię i suszarnię. Dom jest pełen światła, ma dużo przeszkleń od podłogi do sufitu - szczególnie w otwartym na ogród salonie. Częściowo zadaszony podcieniem taras stanowi rzeczywiste przedłużenie wnętrza domu. Projekt domu Kasjopea 4 dostępny jest w wersji odbicia lustrzanego. Zapraszamy do zapoznania się z pełną ofertą pracowni MG Projekt tej serii: podstawowa (projekt domu Kasjopea) i jej wersja odświeżona (projekt domu Kasjopea 8), bliźniak (projekt domu Kasjopea 2), ze zmienionym układem pomieszczeń (projekt domu Kasjopea 3), komfortowa (projekt domu Kasjopea 5), największa (projekt domu Kasjopea 6), z nowocześniejszą architekturą (projekt domu Kasjopea 7) i z wyższym kątem nachylenia dachu (projekt domu Kasjopea 7 B).

