Kasjopea







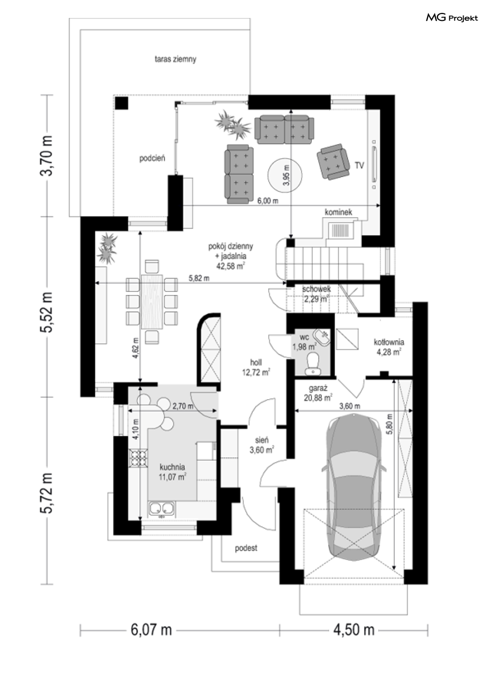
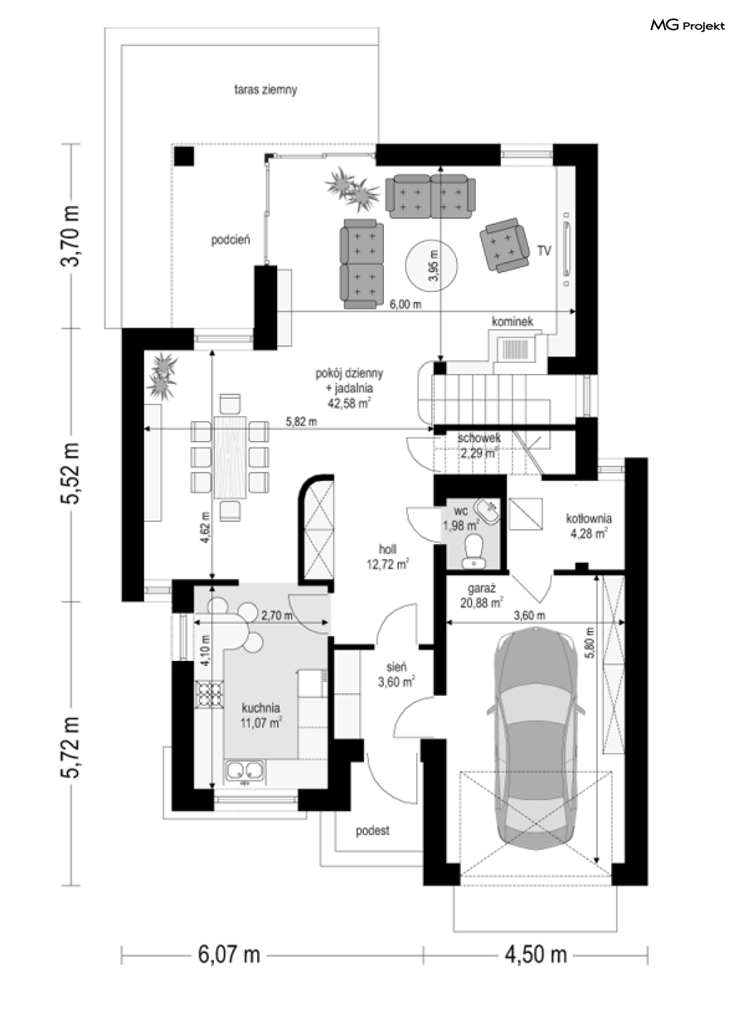
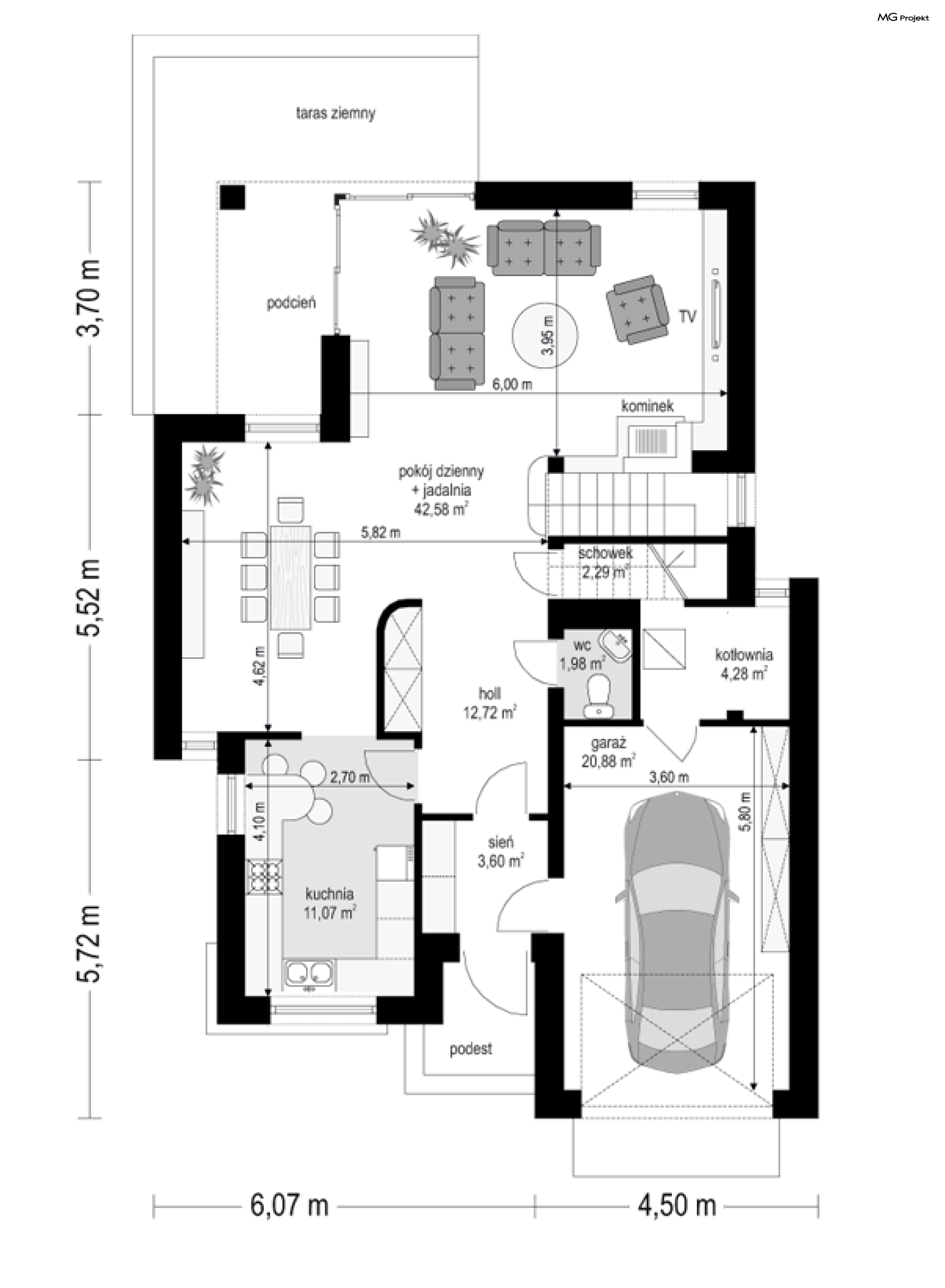
Projekt domu Kasjopea to przeznaczony dla rodziny 4-5 osobowej dom. Budynek zaprojektowano jako piętrowy, przekryty czterospadowym dachem z częściowo wbudowanym w główną bryłę garażem. Prosta forma domu w postaci prostopadłościanu została urozmaicona wystającymi wykuszami i daszkami, a także podcieniami, balkonami i loggią. Dom spodoba się niewątpliwie Klientom gustującym w nowoczesnych formach architektonicznych, ale z dozą konserwatyzmu - jednym słowem nieprzesadzonych. Kształt domu Kasjopea umożliwi lokalizowanie projektu również na wąskiej działce. Wnętrze parteru to: część dzienna, składająca się z salonu z aneksem jadalnym, holu, częściowo otwartej kuchni, oraz pomieszczenie gospodarcze i garaż. Na piętrze zaplanowano z kolei apartament rodziców - z łazienką, garderobą i balkonem, oraz dwie sypialnie dzieci - z łazienką. Dodatkowo zmieścił się jeszcze jeden pokój, który może być wykorzystany jako gabinet do pracy, ewentualnie sypialnia gościnna lub duża garderoba. Projekt domu Kasjopea występuje też w wersji odbicia lustrzanego, wersji odświeżonej (projekt domu Kasjopea 8) oraz w wersji zbliźniaczonej (projekt domu Kasjopea 2), wersji z garażem dwustanowiskowym (projekt domu Kasjopea 3), wersji najmniejszej (projekt domu Kasjopea 4), wersji powiększonej do 211.78 m2 (projekt domu Kasjopea 5), wersji największej (projekt domu Kasjopea 6), z nowocześniejszą architekturą (projekt domu Kasjopea 7) oraz z wyższym kątem nachylenia dachu (projekt domu Kasjopea 7 B).

