Kasjopea 5







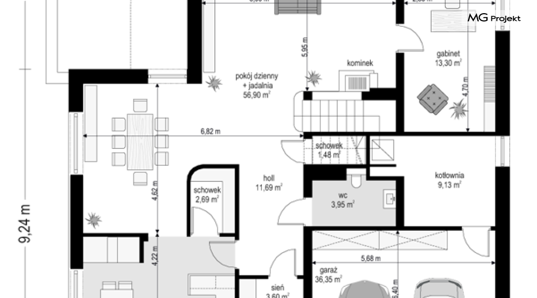
Projekt domu Kasjopea 5 jest wariantową wersją popularnego projektu Kasjopea. Dom został znacznie powiększony i stał się komfortową piętrową willą, z podwójnym garażem. Piętrowy podłużny rdzeń domu przekryty czterospadowym dachem otoczony jest parterowymi przybudówkami. Cała bryła ma urozmaicony kształt, dodatkowo wzbogacony dużymi przeszkleniami, okładzinami ścian, wykuszami i podcieniami. Całość tworzy nowoczesny, acz stonowany wygląd zewnętrzny. Wnętrze budynku podzielono na część dzienną na parterze i sypialnie na piętrze. Parter to przede wszystkim połączone salon, jadalnia i hol. Wyeksponowane reprezentacyjne schody, kominek, narożne okno balkonowe na taras i podcień – to elementy podnoszące atrakcyjność wnętrza. Duża kuchnia z dodatkowym kątem śniadaniowym i spiżarnią jest częściowo otwarta na jadalnię i hol. Na parterze miejsce znalazł też dodatkowy pokój-gabinet, lub sypialnia gościnna, oraz dwustanowiskowy garaż i kotłownia. Na piętrze przewidziano aż cztery pokoje, w tym sypialnię rodziców z oddzielną łazienką i garderobą, dużą ogólnodostępną łazienkę i pralnię. Dla domowników dodatkowo do dyspozycji są strychy - nad piętrem, oraz nad garażem i kotłownią. Projekt domu Kasjopea 5 to prawdziwa twierdza wśród projektów z tej serii - zawiera w sobie wszystkie pomieszczenia jakich można tylko wymagać od dużego komfortowego domu. Dom jest jednocześnie energooszczędny. Ma świetne izolacje, a zastosowane w nim nowoczesne technologie zmniejszają koszty utrzymania domu. Projekt dostępny jest w odbiciu lustrzanym oraz kilku wersjach: podstawowa (projekt domu Kasjopea) i jej wersja odświeżona (projekt domu Kasjopea 8), bliźniak (projekt domu Kasjopea 2), ze zmienionym układem pomieszczeń (projekt domu Kasjopea 3), pomniejszona (projekt domu Kasjopea 4), największa (projekt domu Kasjopea 6), z nowocześniejszą architekturą (projekt domu Kasjopea 7) oraz z wyższym kątem nachylenia dachu (projekt domu Kasjopea 7 B).
