Kasjopea 6







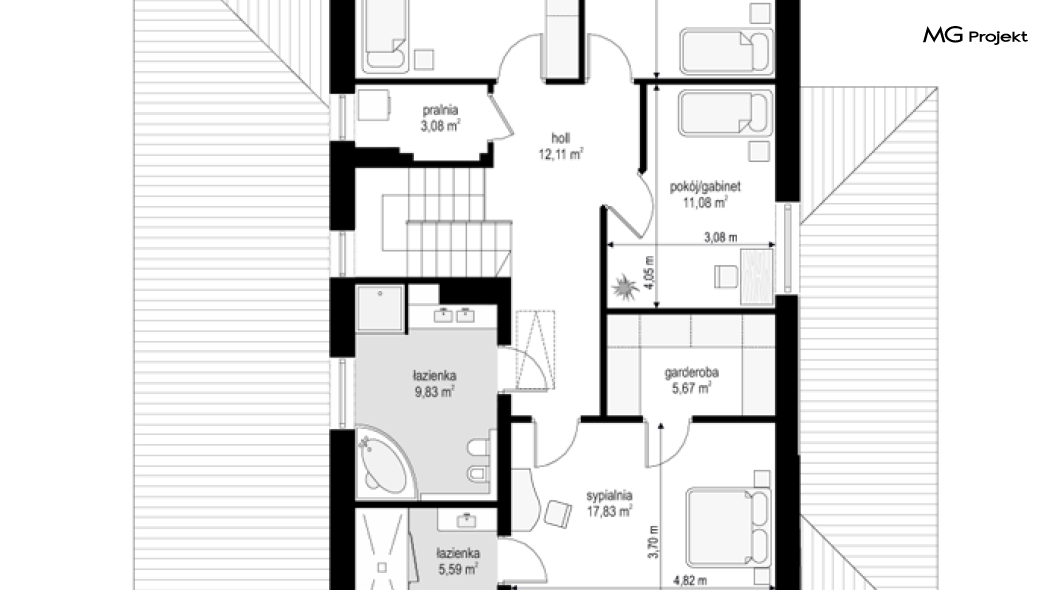
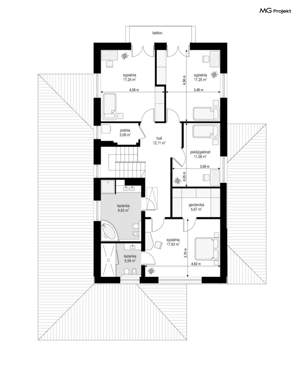
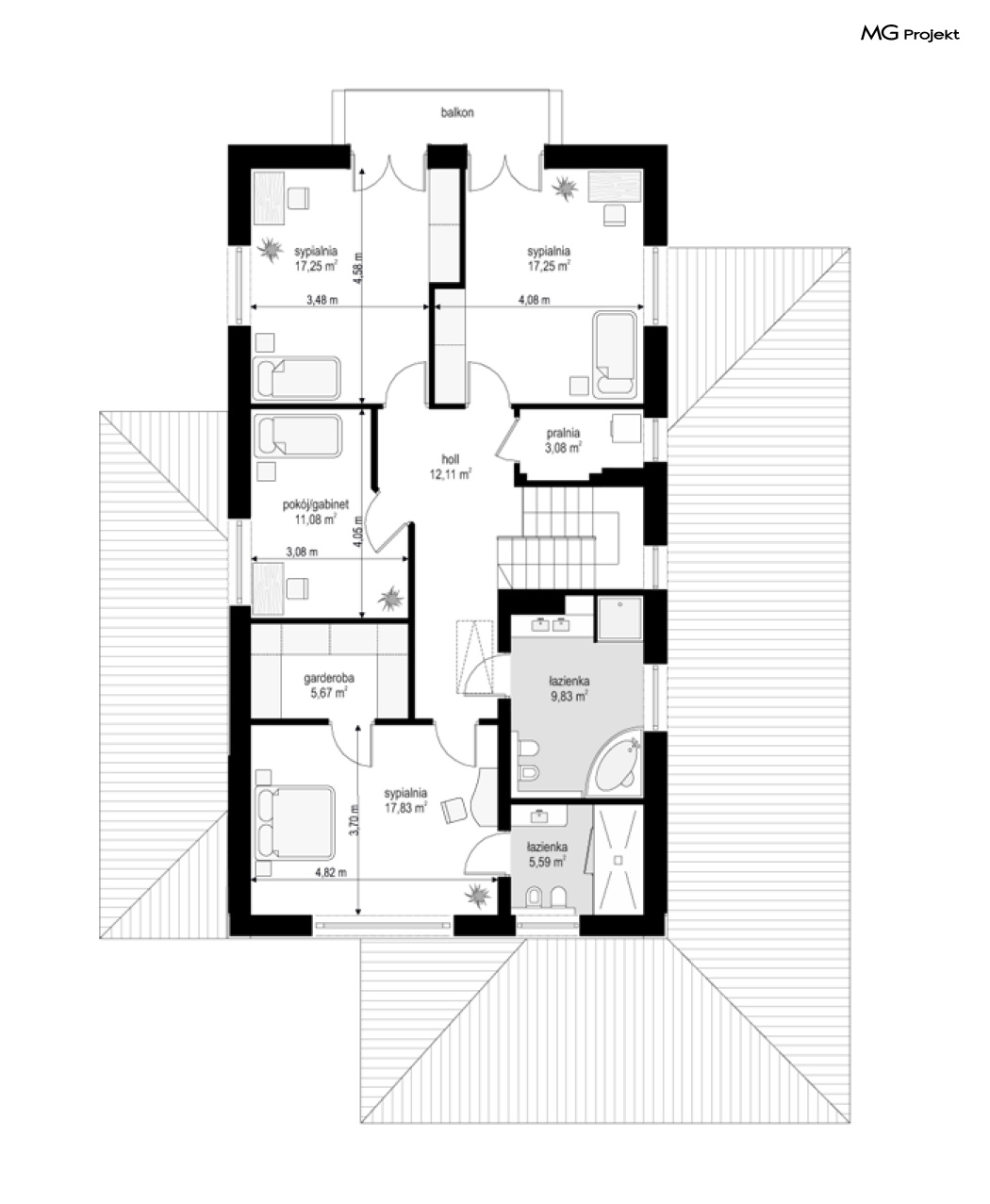
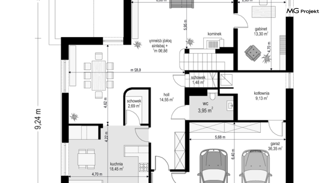
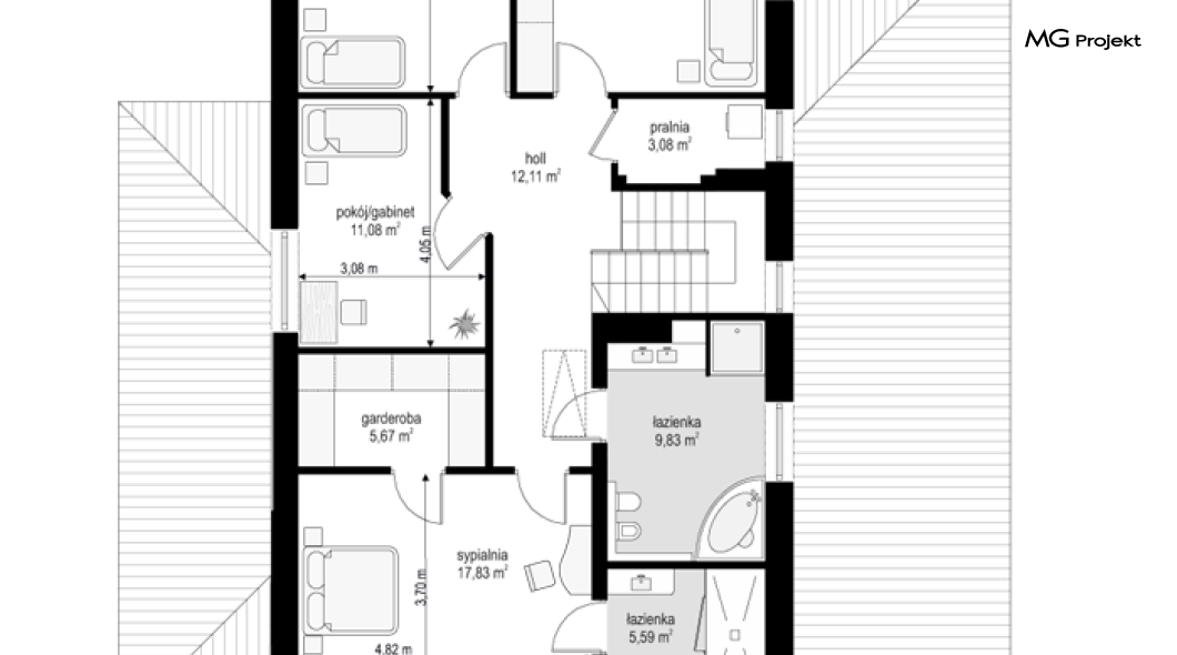
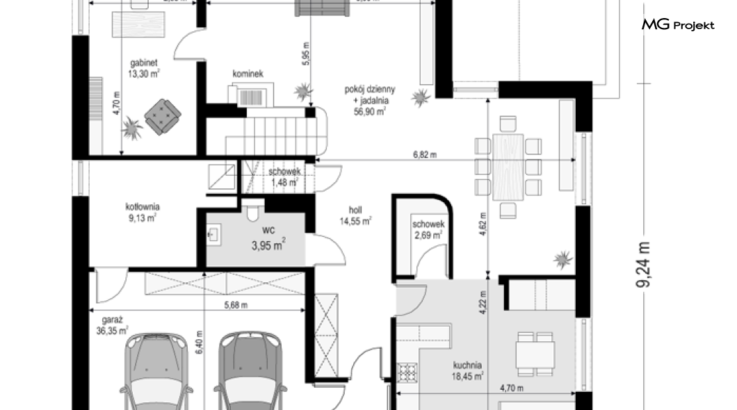
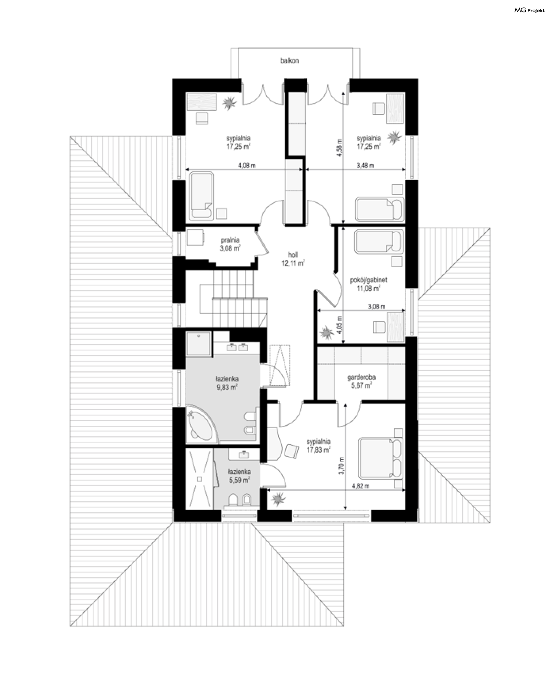
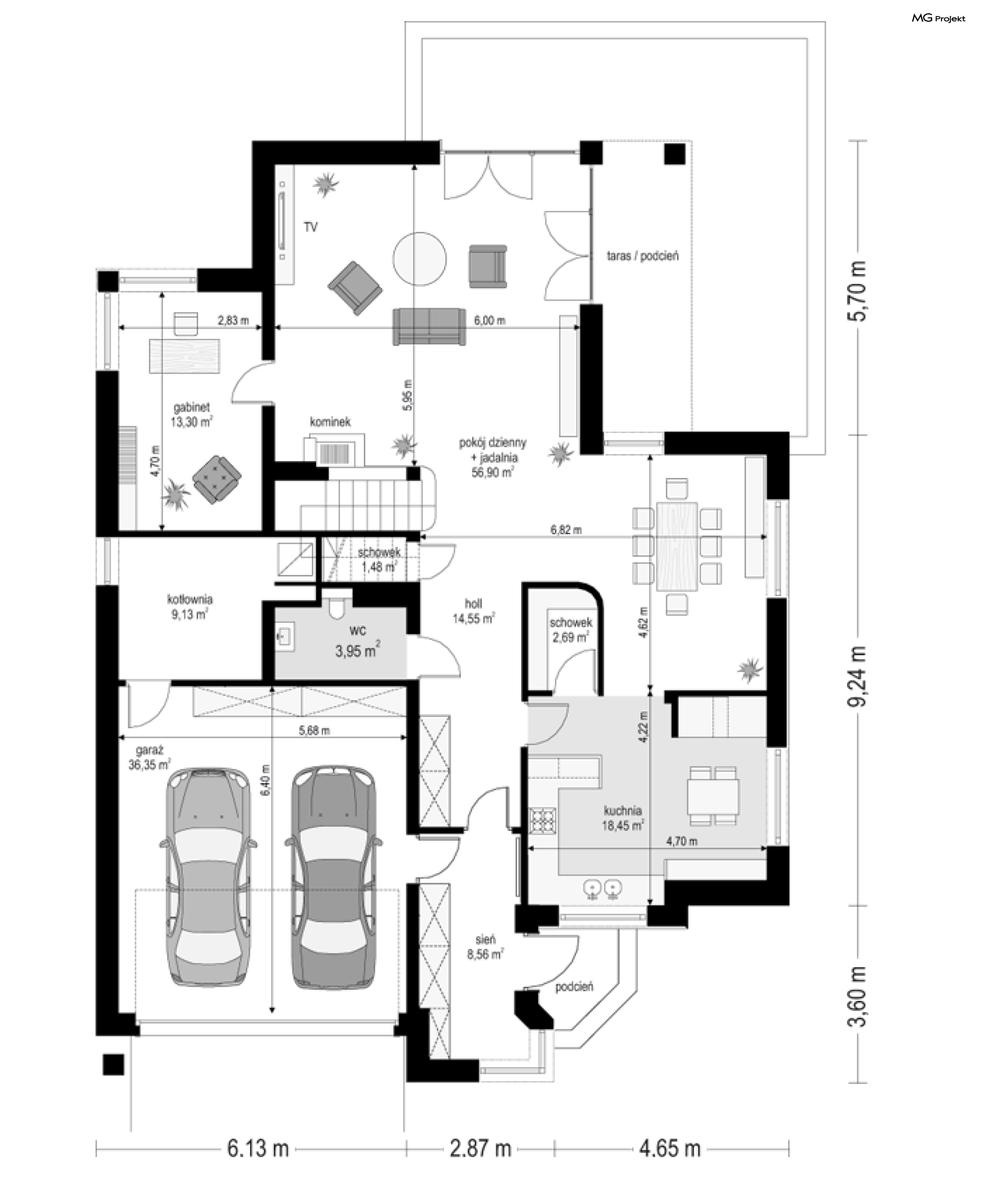
Projekt domu Kasjopea 6 - kolejna wersja wariantowa z popularnej serii. Dom został znacznie powiększony w stosunku do podstawowego modelu i stał się komfortową piętrową willą, z podwójnym garażem i sześcioma pokojami. Piętrowy rdzeń domu przykryty czterospadowym dachem otoczony jest parterowymi częściami od frontu i z obu bocznych elewacji. Ciekawa rozbudowana bryła budynku, wzbogacona jest dużymi przeszkleniami, okładzinami ścian, wykuszami i podcieniami. Całość tworzy nowoczesny i przyjemny dla oka styl. Wnętrze domu podzielono na część dzienną na parterze i sypialnie na piętrze. Parter to przede wszystkim połączony salon, jadalnia i hol. Centralnie umieszczone reprezentacyjne schody, kominek, narożne okno balkonowe na taras – to elementy podnoszące atrakcyjność wnętrza. Duża kuchnia z dodatkowym kątem śniadaniowym i spiżarnią jest częściowo otwarta na jadalnię. Na parterze miejsce znalazł też dodatkowy pokój-gabinet, lub sypialnia gościnna, oraz dwustanowiskowy garaż, kotłownia i naprawdę duży przedsionek. Na piętrze przewidziano aż cztery pokoje, w tym sypialnię rodziców z oddzielną łazienką i garderobą, dużą ogólnodostępną łazienkę i pralnię. Dla domowników dodatkowo do dyspozycji są strychy - nad piętrem, oraz nad garażem i kotłownią. Projekt domu Kasjopea 6 to wygodna willa - zawiera w sobie cały program funkcjonalny jakiego można tylko wymagać od dużego komfortowego domu. Dom jest jednocześnie energooszczędny. Ma świetne izolacje, a zastosowane w nim nowoczesne technologie zmniejszają koszty utrzymania domu. Projekt domu Kasjopea 6 dostępny jest w odbiciu lustrzanym oraz kilku wersjach: podstawowa (projekt domu Kasjopea) i jej wersja odświeżona (projekt domu Kasjopea 8), bliźniak (projekt domu Kasjopea 2), ze zmienionym układem pomieszczeń (projekt domu Kasjopea 3), pomniejszona (projekt domu Kasjopea 4), komfortowa (projekt domu Kasjopea 5), z nowocześniejszą architekturą (projekt domu Kasjopea 7) oraz z wyższym kątem nachylenia dachu (projekt domu Kasjopea 7 B).
