Magnat







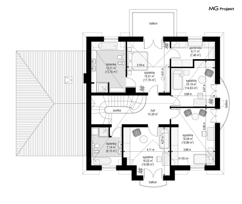
Projekt domu Magnat to reprezentacyjna stylowa willa, nawiązująca do stylistyki dworków i willi międzywojennych. Projekt domu Magnat swój ponadczasowy styl łączy z nowocześnie i funkcjonalnie zaprojektowanym wnętrzem. Dom jest prostokątną, parterową bryłą z poddaszem użytkowym oraz dobudowaną częścią garażową. Budynek został przekryty czterospadowym dachem. Na elewacji frontowej i ogrodowej zaprojektowano dwukondygnacyjne portale, podparte kolumnami, zakończone dwuspadowymi zdobionymi frontonami. Pomimo tego, że główna bryła budynku jest parterowa, poddasze ma bardzo wysoką ścianę kolankową, także prawie cała powierzchnia podłogi górnej kondygnacji jest użytkowa - powyżej wysokości stania człowieka. Wnętrze domu Magnat zaprojektowano wydzielając na parterze dużą przestrzeń dzienną: salonu, jadalni, holu i częściowo otwartej kuchni. Salon z jadalnią mają obniżoną o dwa stopnie podłogę, przez co pomieszczenia te zyskują na wysokości. Piękne reprezentacyjne schody w holu widoczne są również z pokoju dziennego i jadalni. Na parterze mieści się też gabinet - biblioteka (można go zaadaptować na dodatkowy pokój z wejściem z holu) i dodatkowy pokój - na przykład sypialnia. W część gospodarczej mieści się wygodny garaż i duża kotłownia. Na poddaszu przewidziano cztery sypialnie, z apartamentem rodziców, posiadającym własną łazienkę i garderobę, oraz wyjście na taras ogrodowy na piętrze. Pracownia posiada też wersję w standardzie NF40 oraz wersję odbicia lustrzanego projektu Magnat. Zapraszamy do zapoznania się z pełną ofertą pracowni MG Projekt tej serii: projekt domu Magnat 2, projekt domu Magnat 3, projekt domu Magnat 4.
-
Projekt szamba szczelnego0 zł399 zł
-
Charakterystyka energetyczna0 zł200 zł
-
Pakiet energooszczędny0 zł150 zł
-
Dziennik budowy0 zł60 zł
-
Tablica budowy0 zł120 zł
-
Wersja elektroniczna projektu550 zł
-
Pakiet kosztorys inwestorski550 zł
-
Pakiet ogrzewanie podłogowe470 zł
-
Powietrzna pompa ciepła470 zł
-
Pakiet wentylacja mechaniczna i kominek DGP470 zł
-
Dodatkowy egzemplarz projektu500 zł
-
Pakiet kotłownia na paliwo stałe470 zł
-
Pakiet instalacja fotowoltaiczna470 zł
-
Pakiet klimatyzacja w domu470 zł
-
Pakiet gruntowa pompa ciepła470 zł
-
Pakiet odkurzacz centralny470 zł
-
Pakiet płaszcz wodny470 zł
-
Pakiet kominek DGP399 zł
-
Projekty altan i grillów ogrodowych650 zł
-
Pakiet instalacja solarna470 zł

opieką konsultacyjną w trakcie budowy domu