Maja 2







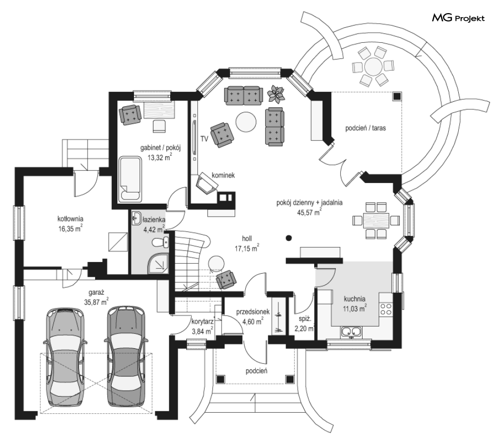
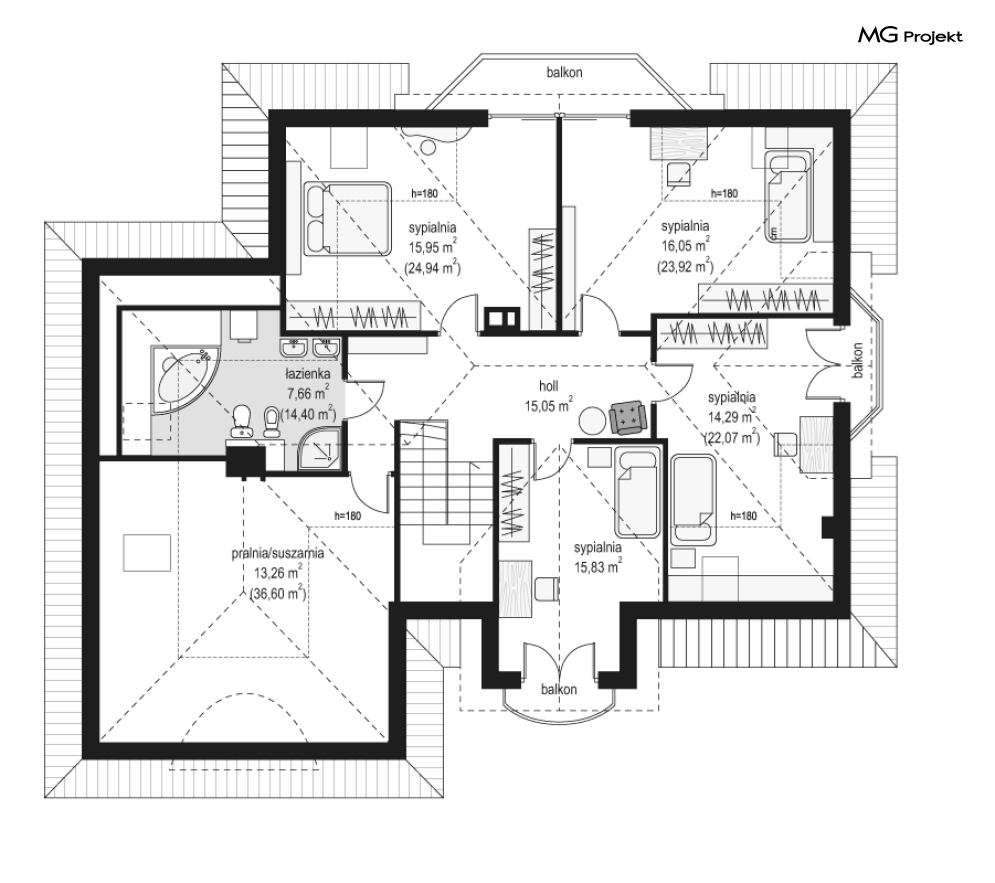
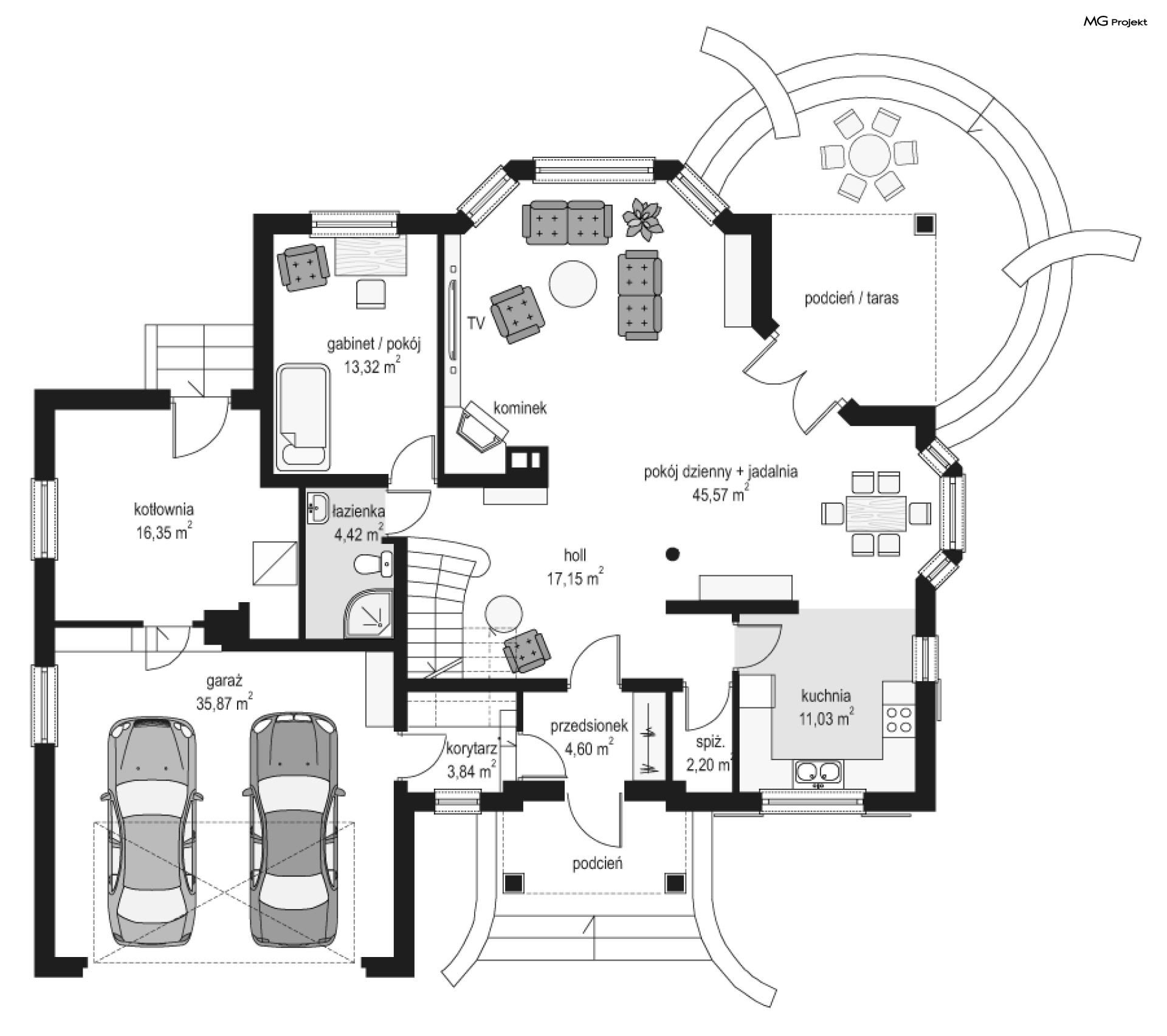
Projekt domu Maja 2 to wersja wariantowa projektu Maja. Od projektu podstawowego różni się podwójnym garażem i powiększonym zapleczem gospodarczym, tak przydatnym w domu. Estetyka zewnętrzna projektu także została zmieniona. Nawiązuje do modnego ostatnio stylu pełnych uroku, jednocześnie sprawiających wrażenie solidności i harmonii domów dla przedstawicieli klasy średniej. Obszerne i komfortowe wnętrze jest dobrze przemyślane i kryje wszystkie potrzebne funkcje, zostało jednak zaplanowane na rozsądnej powierzchni. Projekt domu Maja 2 dostępny jest również w odbiciu lustrzanym oraz inne jego wersje: projekt domu Maja, projekt domu Maja 3 i projekt domu Maja 4. Zapraszamy!
-
Projekt szamba szczelnego0 zł399 zł
-
Charakterystyka energetyczna0 zł200 zł
-
Pakiet energooszczędny0 zł150 zł
-
Dziennik budowy0 zł60 zł
-
Tablica budowy0 zł120 zł
-
Wersja elektroniczna projektu550 zł
-
Pakiet kosztorys inwestorski550 zł
-
Pakiet ogrzewanie podłogowe470 zł
-
Powietrzna pompa ciepła470 zł
-
Pakiet wentylacja mechaniczna i kominek DGP470 zł
-
Dodatkowy egzemplarz projektu500 zł
-
Pakiet kotłownia na paliwo stałe470 zł
-
Pakiet instalacja fotowoltaiczna470 zł
-
Pakiet klimatyzacja w domu470 zł
-
Pakiet gruntowa pompa ciepła470 zł
-
Pakiet odkurzacz centralny470 zł
-
Pakiet płaszcz wodny470 zł
-
Pakiet kominek DGP399 zł
-
Projekty altan i grillów ogrodowych650 zł
-
Pakiet instalacja solarna470 zł

opieką konsultacyjną w trakcie budowy domu
