Na wspólnej







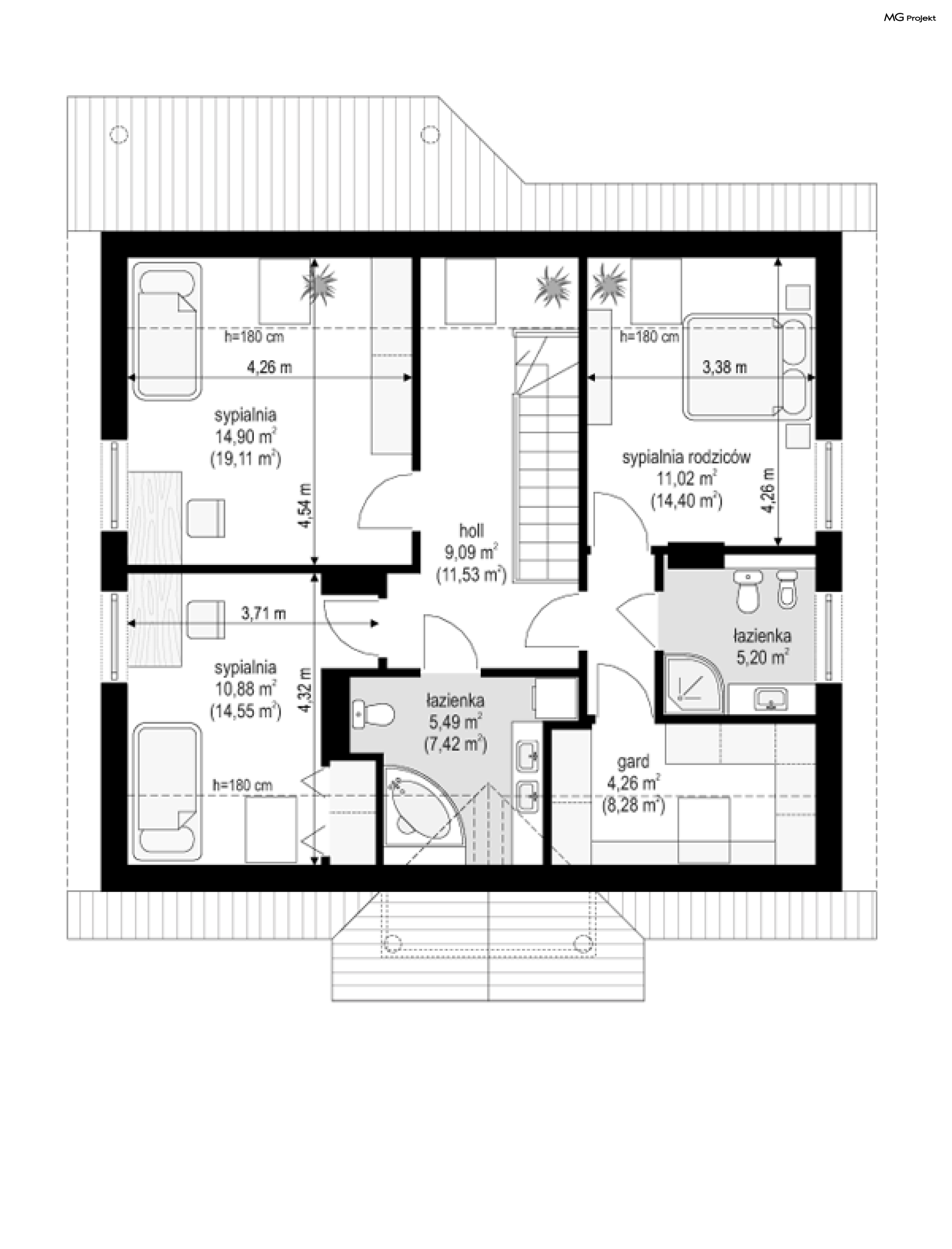
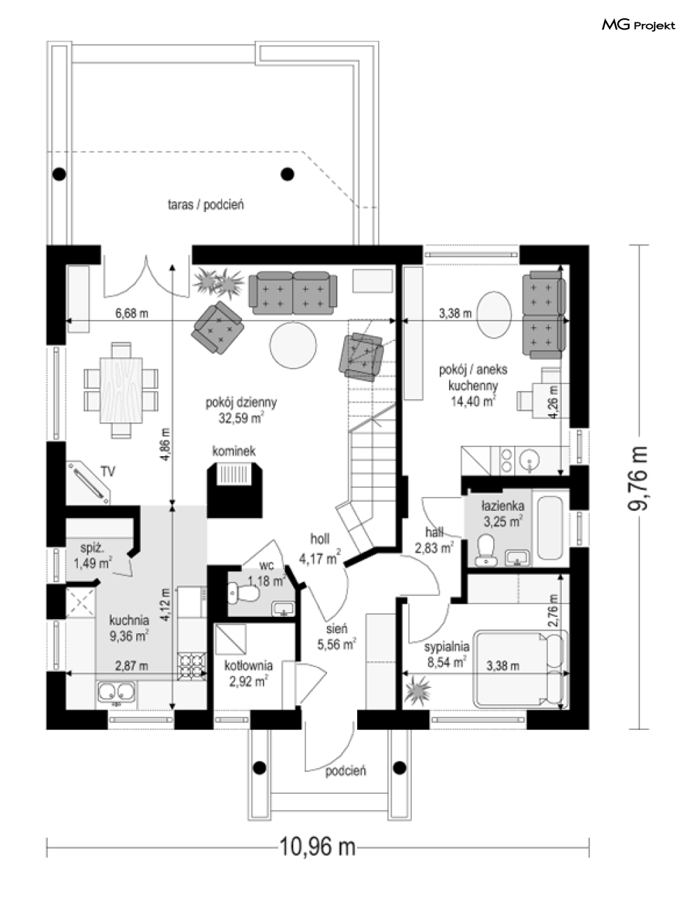
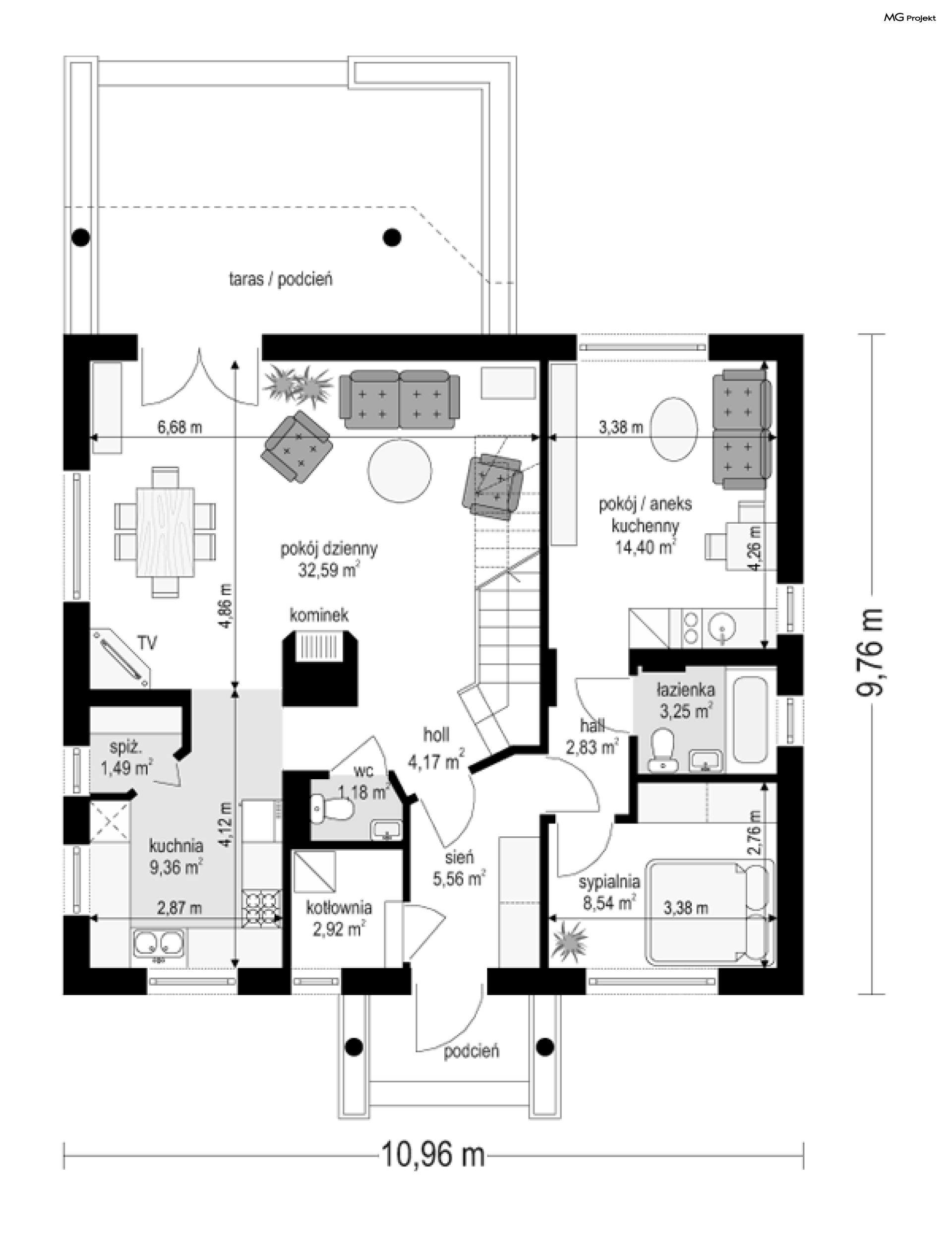
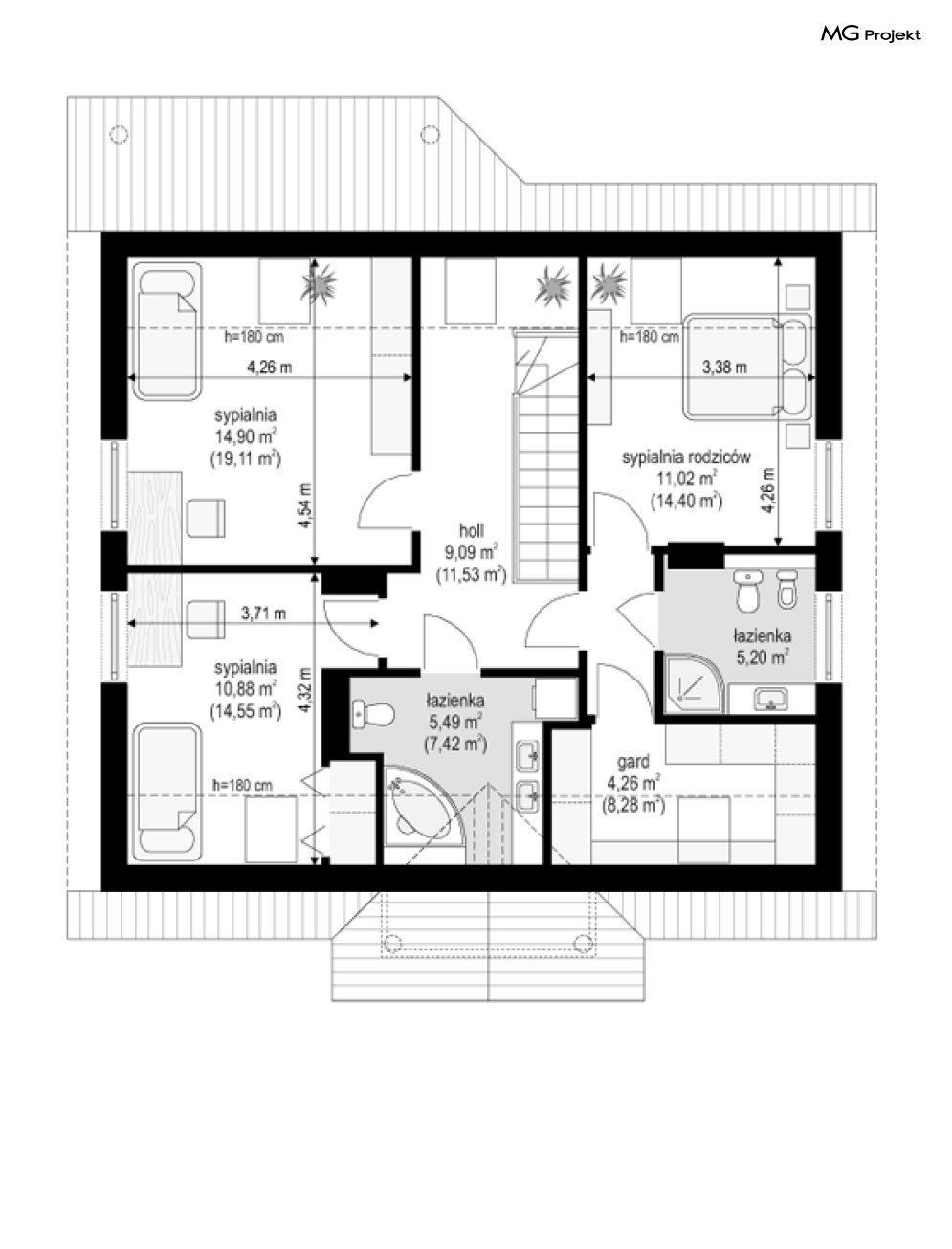
Projekt domu Na Wspólnej to dom jednorodzinny przeznaczony dla trzypokoleniowej rodziny, z odrębnym mieszkaniem dla dziadków lub dorosłych dzieci. Bryła domu jest prosta - rzut parteru o kształcie prostokąta przekryty poddaszem i dachem dwuspadowym. Wejście z domu zaakcentowano frontonem na dwóch kolumnach. Od strony ogrodu przewidziano zadaszony taras. Na parterze zaprojektowano wspólny dla obu mieszkań duży przedsionek z wejściem do kotłowni. W części odrębnego mieszkania znajdują się pokój dzienny z aneksem kuchennym, łazienka i sypialnia. W pozostałej części parteru: pokój dzienny z jadalnią i wygodnymi schodami, oraz kuchnia ze spiżarką. Na poddaszu umieszczono trzy sypialnie z dwiema łazienkami. Jedna z sypialni to oddzielna część państwa domu z ich łazienką i garderobą. Projekt domu Na Wspólnej można również zaadaptować likwidując oddzielne mieszkanie i zamieniając je na garaż i np. gabinet dostępny z pokoju dziennego.
-
Projekt szamba szczelnego0 zł399 zł
-
Charakterystyka energetyczna0 zł200 zł
-
Pakiet energooszczędny0 zł150 zł
-
Dziennik budowy0 zł60 zł
-
Tablica budowy0 zł120 zł
-
Wersja elektroniczna projektu550 zł
-
Pakiet kosztorys inwestorski550 zł
-
Pakiet ogrzewanie podłogowe470 zł
-
Powietrzna pompa ciepła470 zł
-
Pakiet wentylacja mechaniczna i kominek DGP470 zł
-
Dodatkowy egzemplarz projektu500 zł
-
Pakiet kotłownia na paliwo stałe470 zł
-
Pakiet instalacja fotowoltaiczna470 zł
-
Pakiet klimatyzacja w domu470 zł
-
Pakiet gruntowa pompa ciepła470 zł
-
Pakiet odkurzacz centralny470 zł
-
Pakiet płaszcz wodny470 zł
-
Pakiet kominek DGP399 zł
-
Projekty altan i grillów ogrodowych650 zł
-
Pakiet instalacja solarna470 zł

opieką konsultacyjną w trakcie budowy domu