Nowoczesny 2







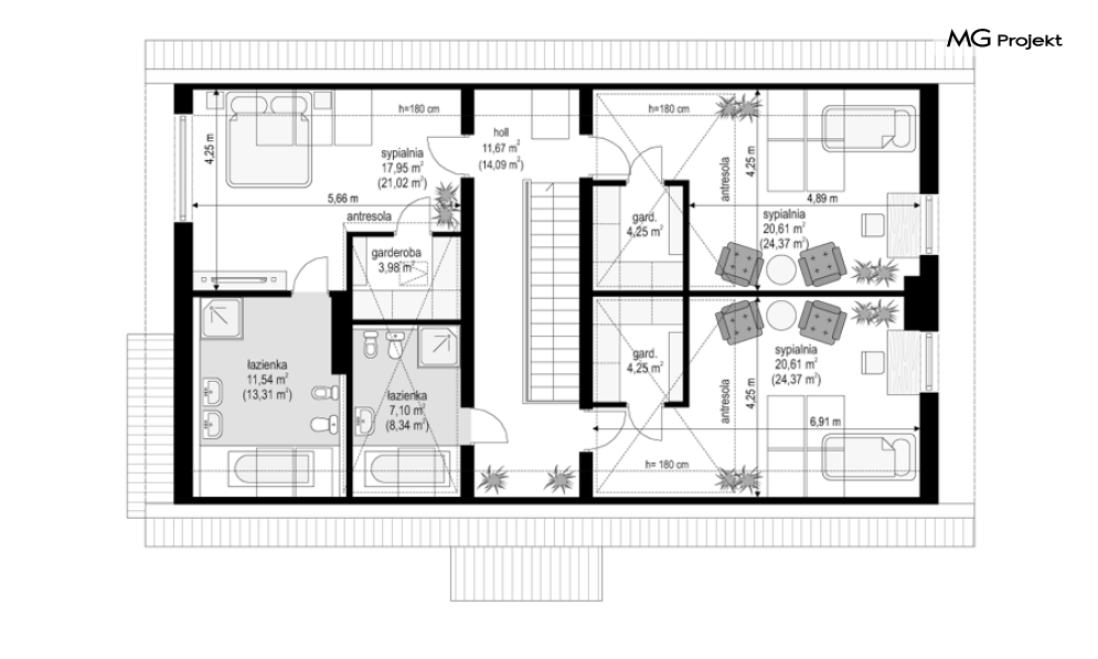
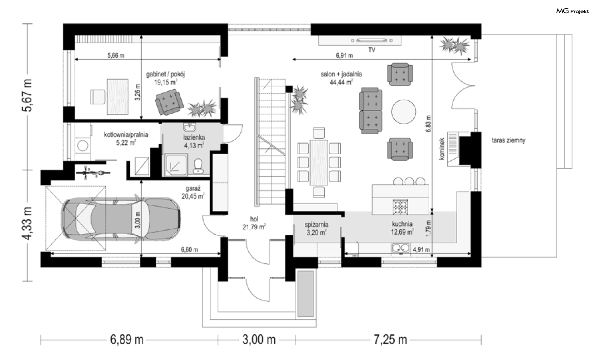
Projekt domu Nowoczesny 2 to propozycja dla Klientów lubiących nowoczesną architekturę i niebojących się wyróżnić z otoczenia. Projekt domu Nowoczesny 2 stworzony został z myślą o Inwestorach ceniących proste, eleganckie rozwiązania. Prostokątna bryła budynku została przekryta symetrycznym dwuspadowym dachem nad poddaszem. Umiejscowienie okien, elementów okładzin elewacji - wszystkie te elementy skomponowano tak, aby dodać domowi dynamiki. W efekcie prostymi środkami, uzyskano bardzo atrakcyjny wygląd. Wnętrze domu również nawiązuje do tego stylu: jasne, klarowne podziały środka tworzą jednocześnie bardzo ciekawe wnętrze. Jednoprzestrzenny salon z jadalnią połączony z kuchnią, łączy się z holem oddzielonym jednobiegowymi schodami na poddasze. Przejścia, przeszklone powierzchnie otwierające wnętrze na ogród, usytuowanie kominka - wszystko składa się na oryginalność wnętrza. Na parterze zaplanowano jeszcze gabinet i garaż z kotłownią. Na poddaszu natomiast miejsce znalazły: sypialnia rodziców z garderobą i łazienką, oraz sypialnie dzieci z łazienką. Dom Nowoczesny 2 pomimo nietypowych detali ma tradycyjną formę budynku z dwuspadowym dachem - to zaowocuje łatwą i niedrogą budową, oraz bezproblemowym zaakceptowaniem przez urząd wydający pozwolenie na budowę. Pracownia posiada również projekt domu Nowoczesny 2 w odbiciu lustrzanym. Zapraszamy!
