Gala







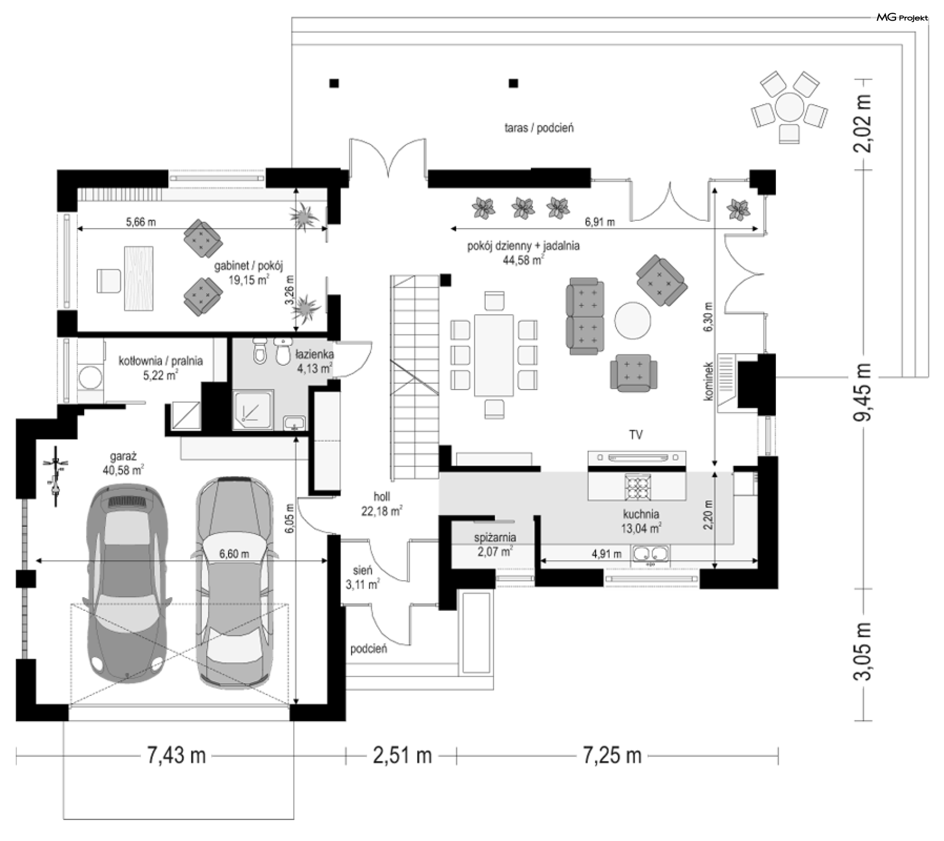
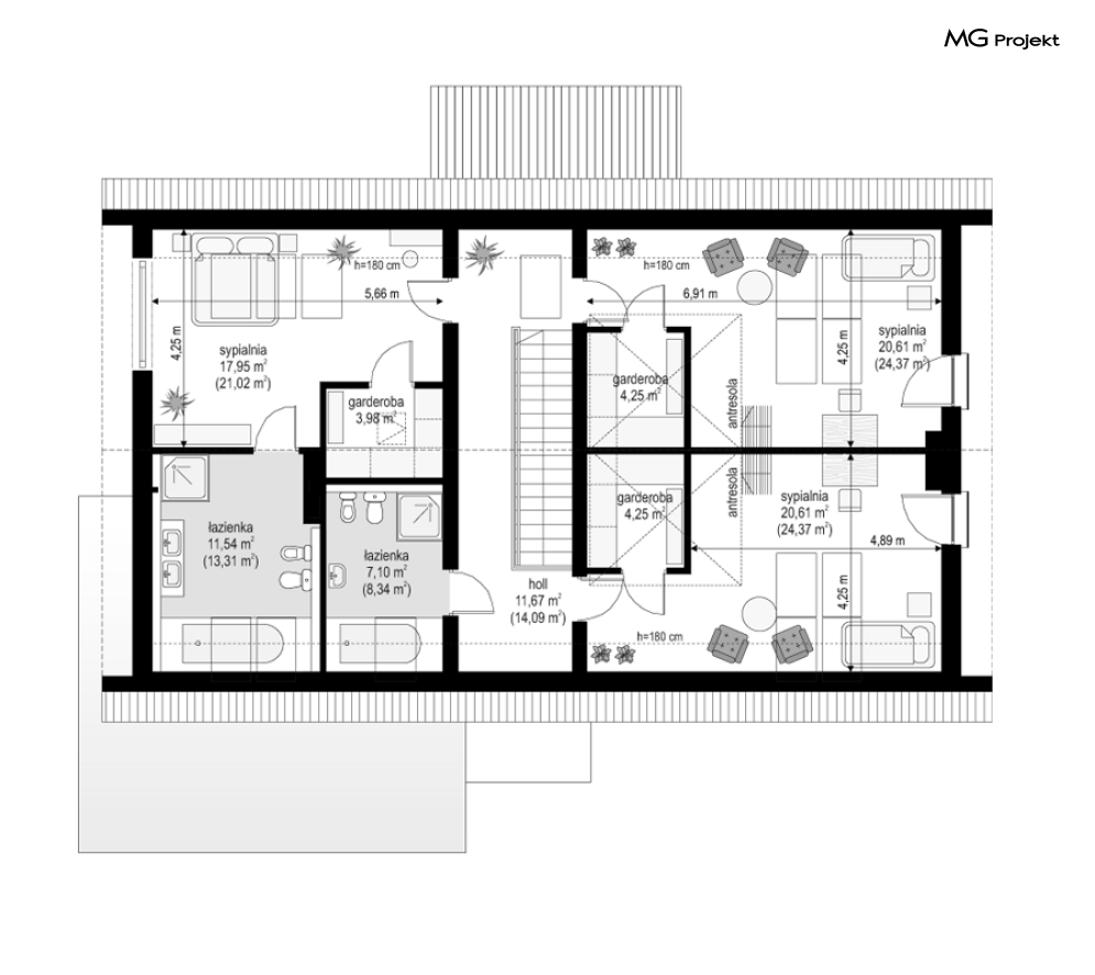
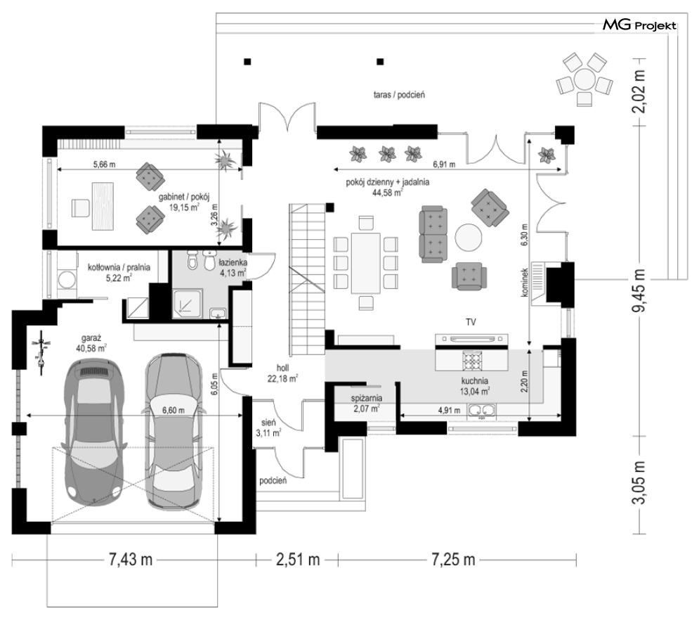
Projekt domu Gala to wygodna, nowoczesna willa dla czterech-sześciu osób. Bryłę budynku zaprojektowano jako parterową z poddaszem użytkowym, o kształcie prostokąta przekrytego dwuspadowym dachem, z dodanymi parterowymi dobudówkami garażu, wejścia, czy podcienia przy tarasie ogrodowym. Projekt domu Gala łączy w sobie tradycyjną formę z awangardowymi, nowoczesnymi rozwiązaniami zastosowanych materiałów, płaskich dachów, czy dużych przeszkleń otwierających wnętrze na ogród. Dzięki takiej architekturze dom Gala dobrze się prezentuje zarówno wśród modnych miejskich willi, jak i na typowej polskiej wsi. Wnętrze domu na parterze przedzielono poprzecznym do bryły holem z jednobiegowymi, bardzo atrakcyjnymi wnętrzarsko schodami. Po jednej stronie zaplanowano część dzienną salonu, jadalni, kuchni, po drugiej - część gospodarczą z garażem i kotłownią, oraz dodatkowy pokój lub gabinet. Na poddaszu mieszczą się sypialnie dziecięce z garderobami i łazienką, oraz apartament rodziców własnym pokojem kąpielowym i garderobą. W ofercie pracowni znajduje się też wersja odbicia lustrzanego projektu domu Gala. Istnieje równiez możliwość zakupu projektu w standardzie NF40.
-
Projekt szamba szczelnego0 zł399 zł
-
Charakterystyka energetyczna0 zł200 zł
-
Pakiet energooszczędny0 zł150 zł
-
Dziennik budowy0 zł60 zł
-
Tablica budowy0 zł120 zł
-
Wersja elektroniczna projektu550 zł
-
Pakiet kosztorys inwestorski550 zł
-
Pakiet ogrzewanie podłogowe470 zł
-
Powietrzna pompa ciepła470 zł
-
Pakiet wentylacja mechaniczna i kominek DGP470 zł
-
Dodatkowy egzemplarz projektu500 zł
-
Pakiet kotłownia na paliwo stałe470 zł
-
Pakiet instalacja fotowoltaiczna470 zł
-
Pakiet klimatyzacja w domu470 zł
-
Pakiet gruntowa pompa ciepła470 zł
-
Pakiet odkurzacz centralny470 zł
-
Pakiet płaszcz wodny470 zł
-
Pakiet kominek DGP399 zł
-
Projekty altan i grillów ogrodowych650 zł
-
Pakiet instalacja solarna470 zł

opieką konsultacyjną w trakcie budowy domu