Orlik







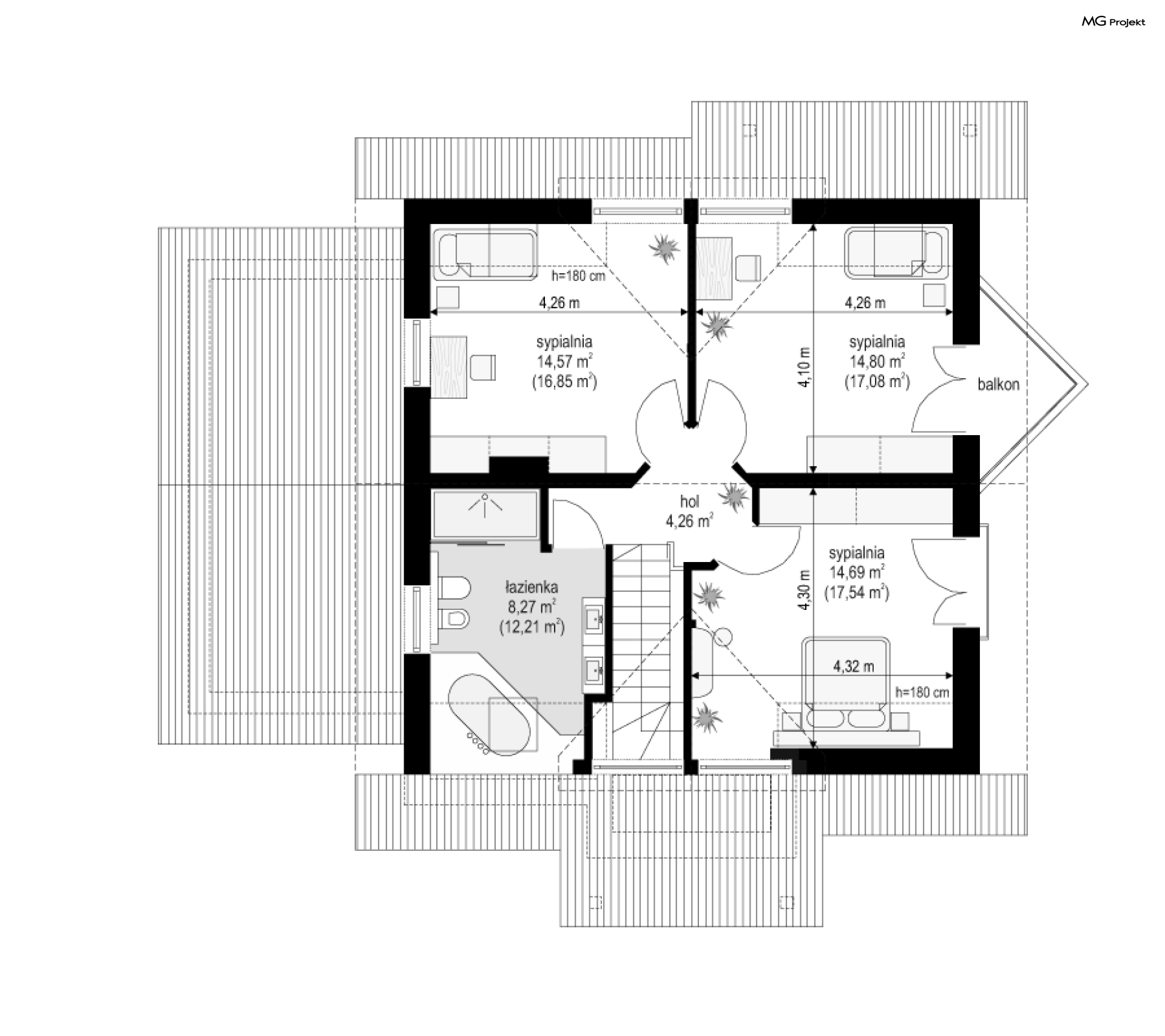
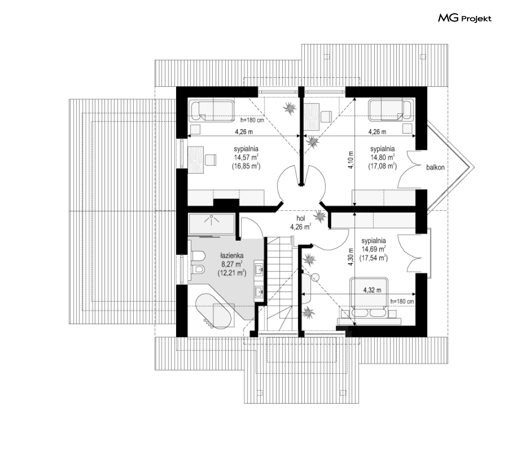
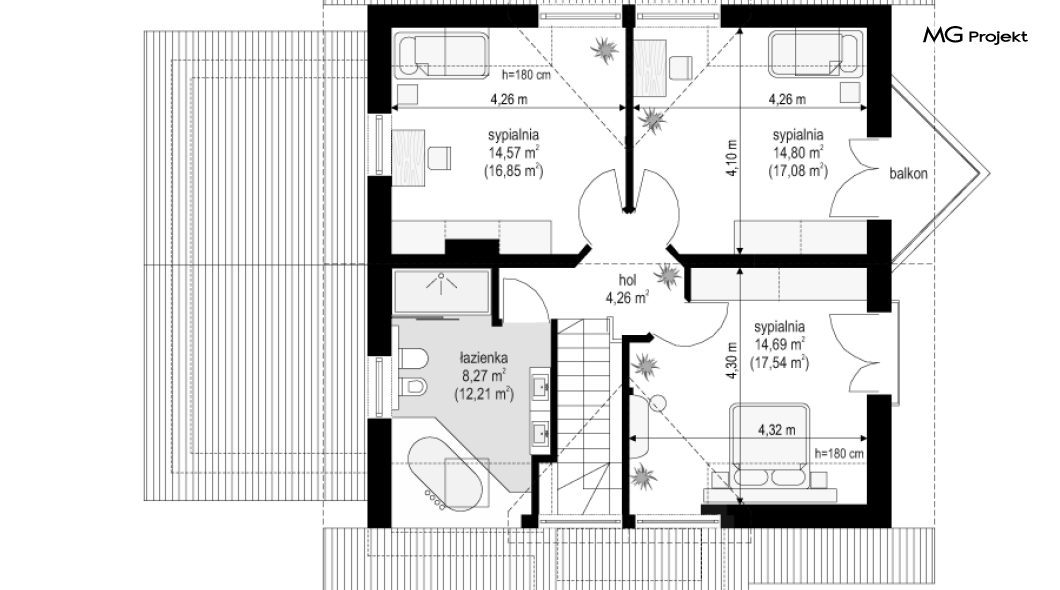
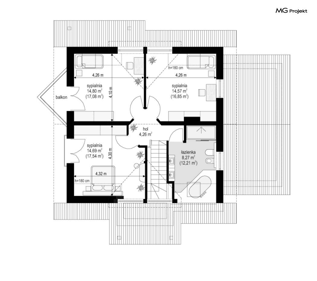
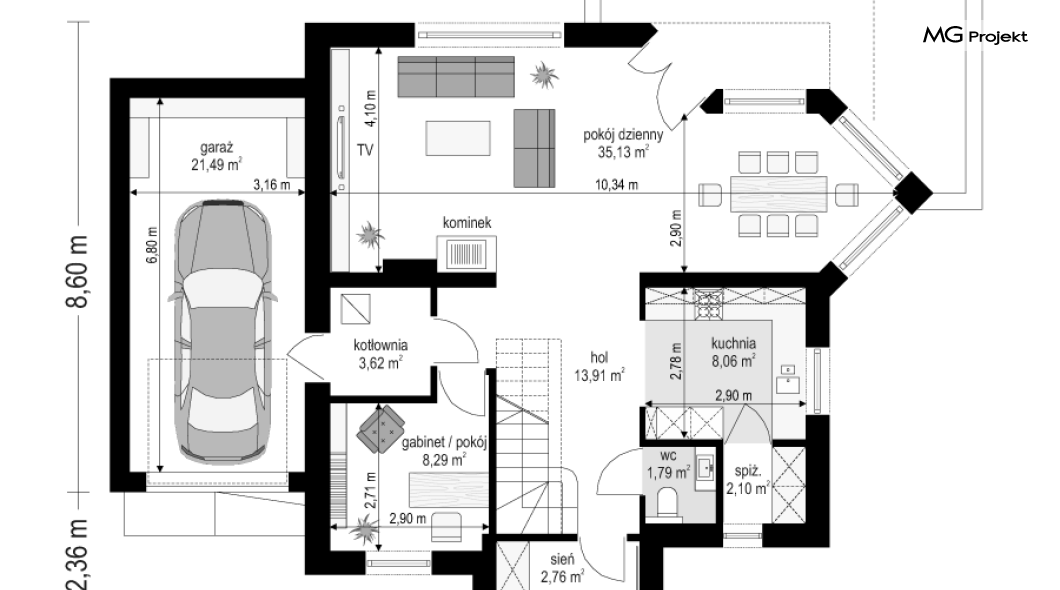
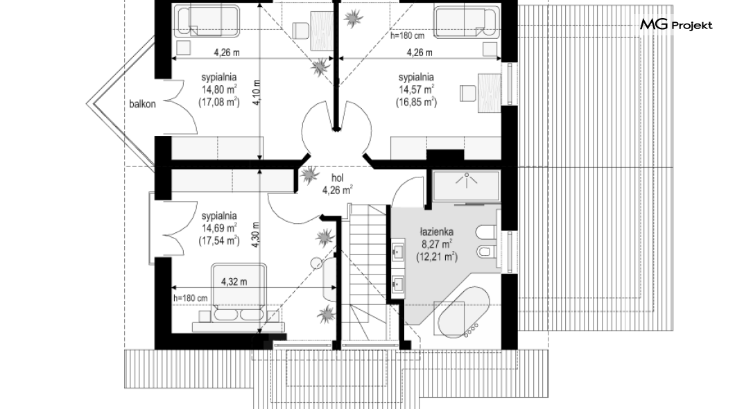
Projekt domu Orlik to uroczy domek jednorodzinny, przeznaczony dla 4-5 osobowej rodziny. Orlik jest domkiem jest parterowym z poddaszem użytkowym, zbudowanym na planie zbliżonym do kwadratu. Przekryty został dwuspadowym dachem z lukarnami. Ma dobudowany garaż również przekryty dwuspadowym dachem. Prostą tradycyjną bryłę budynku wzbogacają dodatki: przedsionek wejściowy z zadaszonym podcieniem wspartym na dwóch kolumnach, trójkątne lukarny z dużymi oknami od frontu i od ogrodu, ciekawy wykusz jadalni połączony z podcieniem salonu i częściowym zadaszeniem tarasu ogrodowego. Całość bryły, jej detale, materiały i kolorystyka tworzą udaną pasującą do siebie całość. Wnętrze Orlika podzielono na część dzienną i gospodarczą na parterze i sypialnie na poddaszu. Jednoprzestrzenne wnętrze połączonych: salonu, jadalni i holu z ładnymi schodami tworzą część dzienną domowników. Zalicza się do niej trochę odcięta od salonu kuchnia ze spiżarnią (można ją łatwo połączyć z jadalnią wykonując otwór w ścianie). Na parterze zaprojektowano dodatkowy pokój – sypialnię lub gabinet, łazienkę, kotłownię i garaż. Na poddaszu umieszczono trzy sypialnie – dwie równej wielkości dziecięce, oraz większą sypialnię rodziców. W pokojach zaprojektowano miejsca na duże szafy wbudowane. Pokoje są na tyle proporcjonalne, że można spróbować również wydzielić z nich garderoby. Wnętrze poddasza dopełnia piękna, dobrze oświetlona łazienka. Nad poddaszem mieszkańcy mają jeszcze do dyspozycji spory strych – bardzo przydatny w niewielkim domu. Projekt domu Orlik jest świetną propozycją na nieduży, energooszczędny, tani w budowie i utrzymaniu dom, w którym jest wystarczająco dużo przestrzeni i pomieszczeń dla rodziny z dwójką-trójką dzieci. Pracownia posiada wersję projektu domu Orlik w odbiciu lustrzanym.
