Bajkowy 2







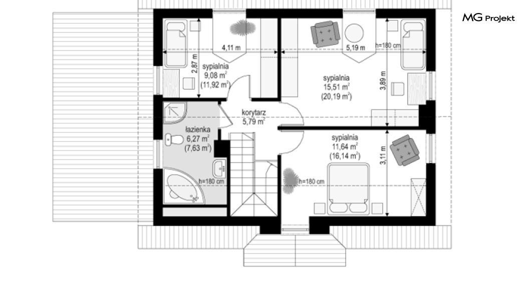
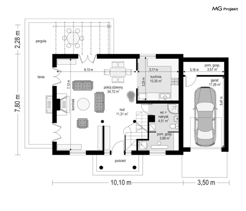
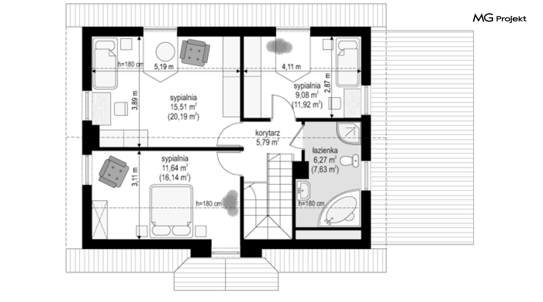
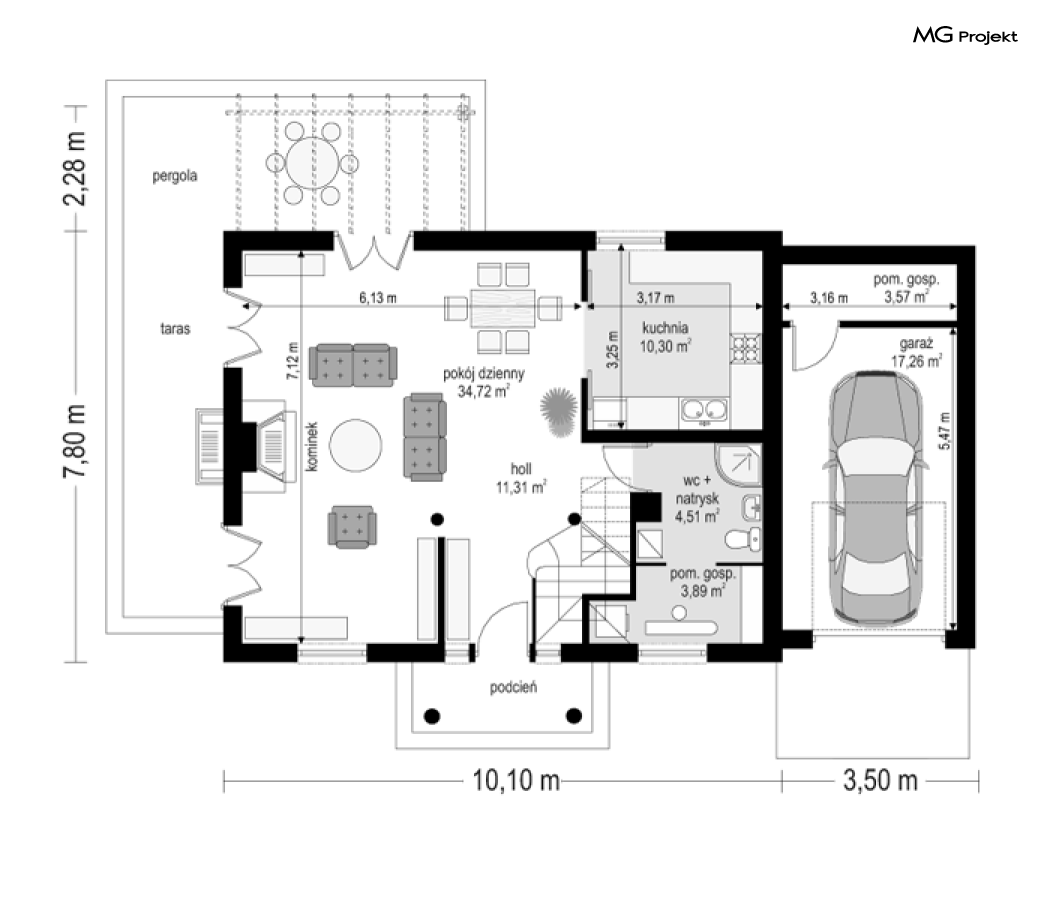
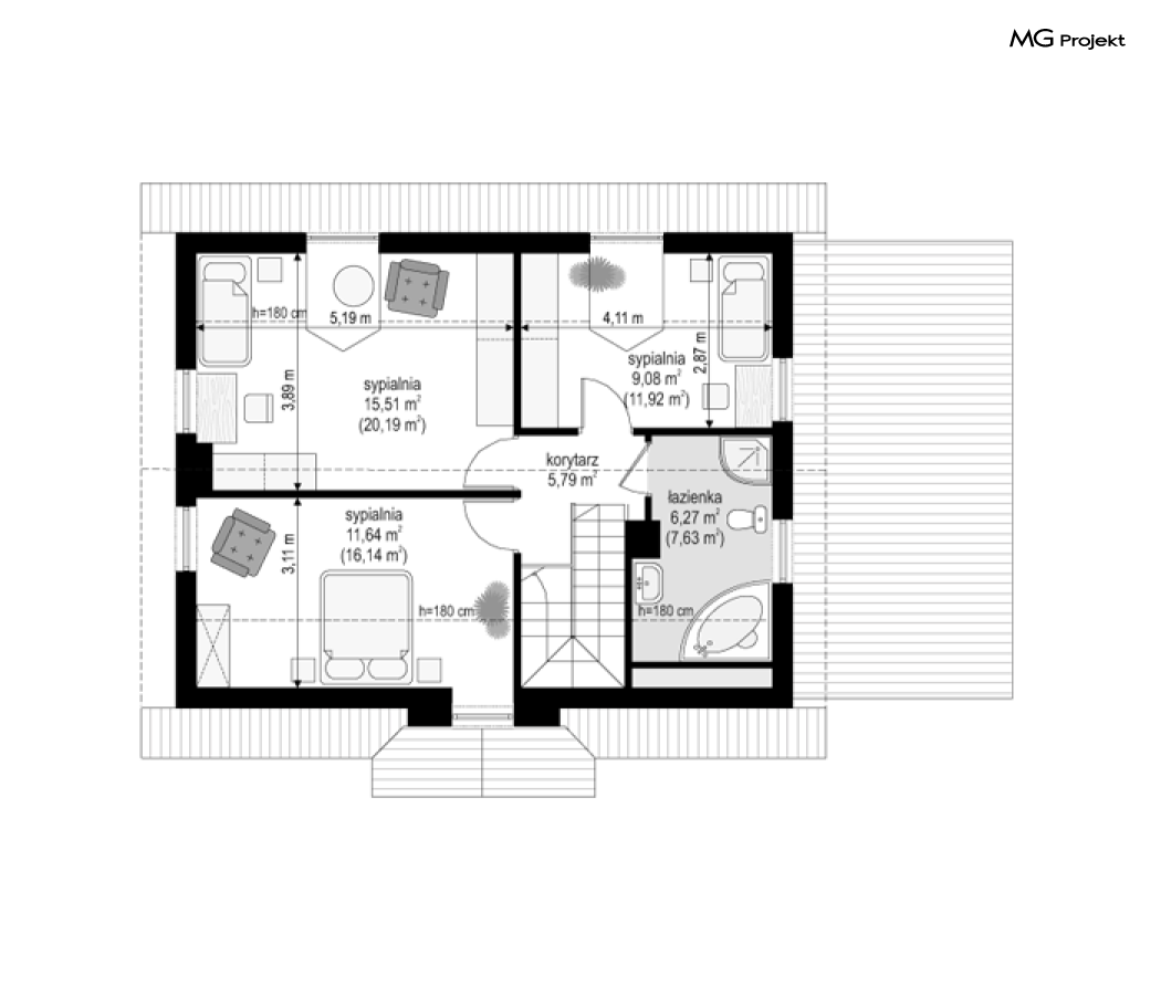
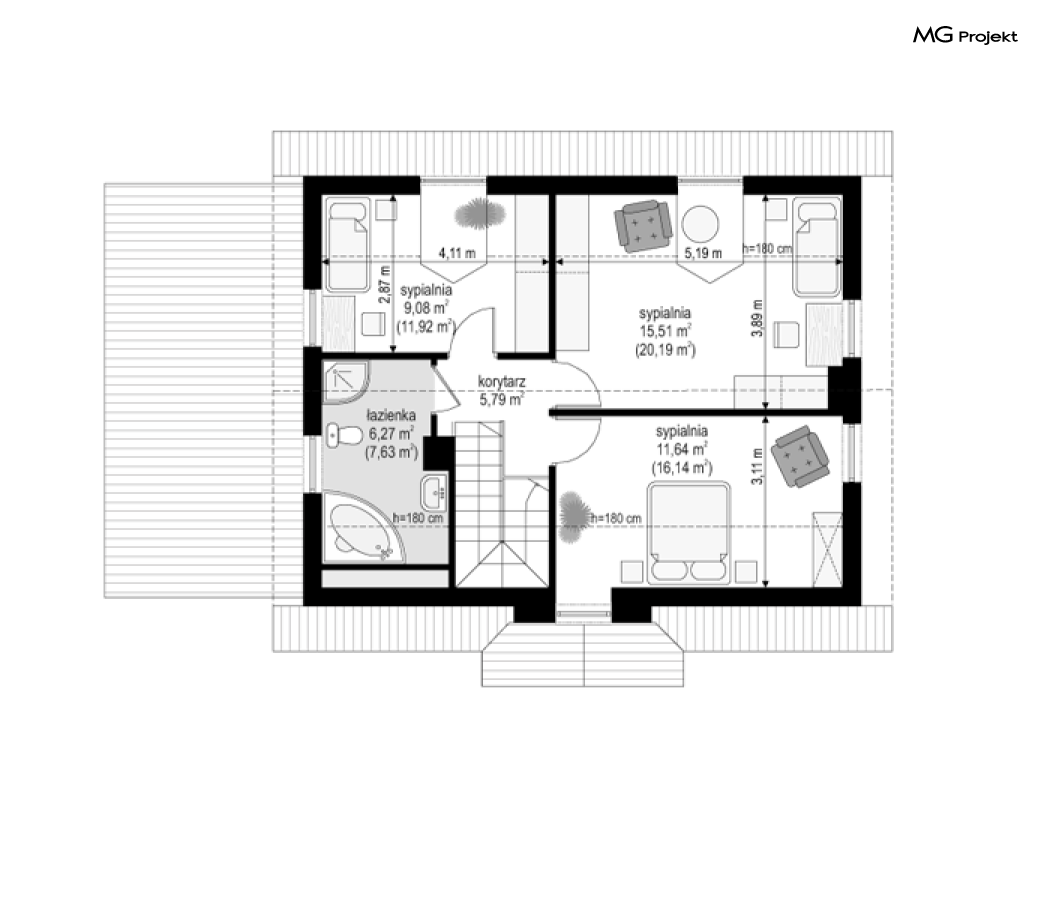
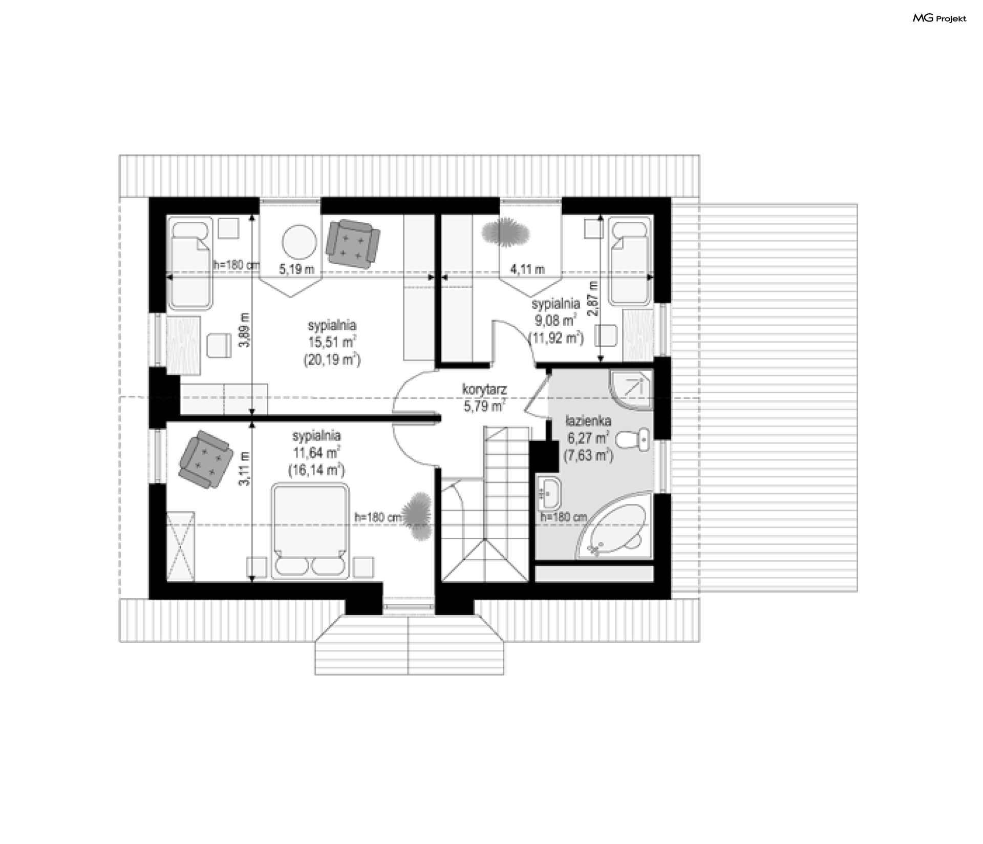
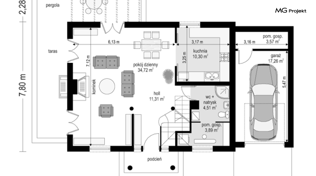
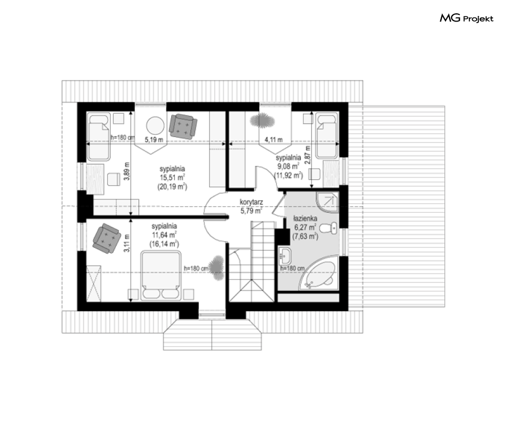
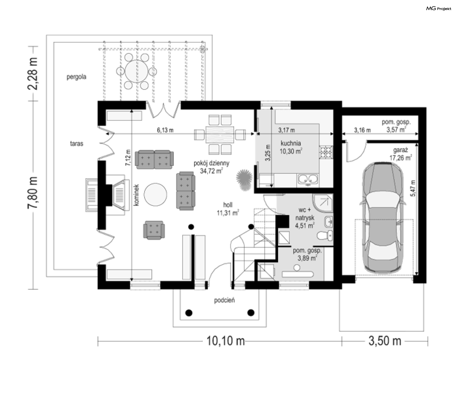
Projekt domu Bajkowy 2 stanowi rozbudowaną wersję projektu Bajkowy. Pierwotny projekt został poszerzony, zrezygnowano też z dodatkowego pokoju na parterze na rzecz powiększenia salonu i kuchni. Obszerny salon z centralnie ustawionym kominkiem i doświetleniem z trzech stron jest bardzo atrakcyjny. W projekcie Bajkowy 2 zaplanowano łazienkę z aneksem gospodarczym z miejscem na kocioł c.o. i pralkę. Na poddaszu budynku zaplanowano trzy sypialnie i drugą łazienkę. Bryła domu nawiązuje do tradycyjnej architektury. Atutem projektu jest uniwersalne położenie i doświetlenie salonu, dzięki czemu dom nadaje się na różne działki. Zapraszamy do zapoznania się z pełną ofertą pracowni MG Projekt: podstawowy projekt domu Bajkowy, komfortowa wersja projekt domu Bajkowy 3, oraz odbicie lustrzane projektu.
