Otwarty 3







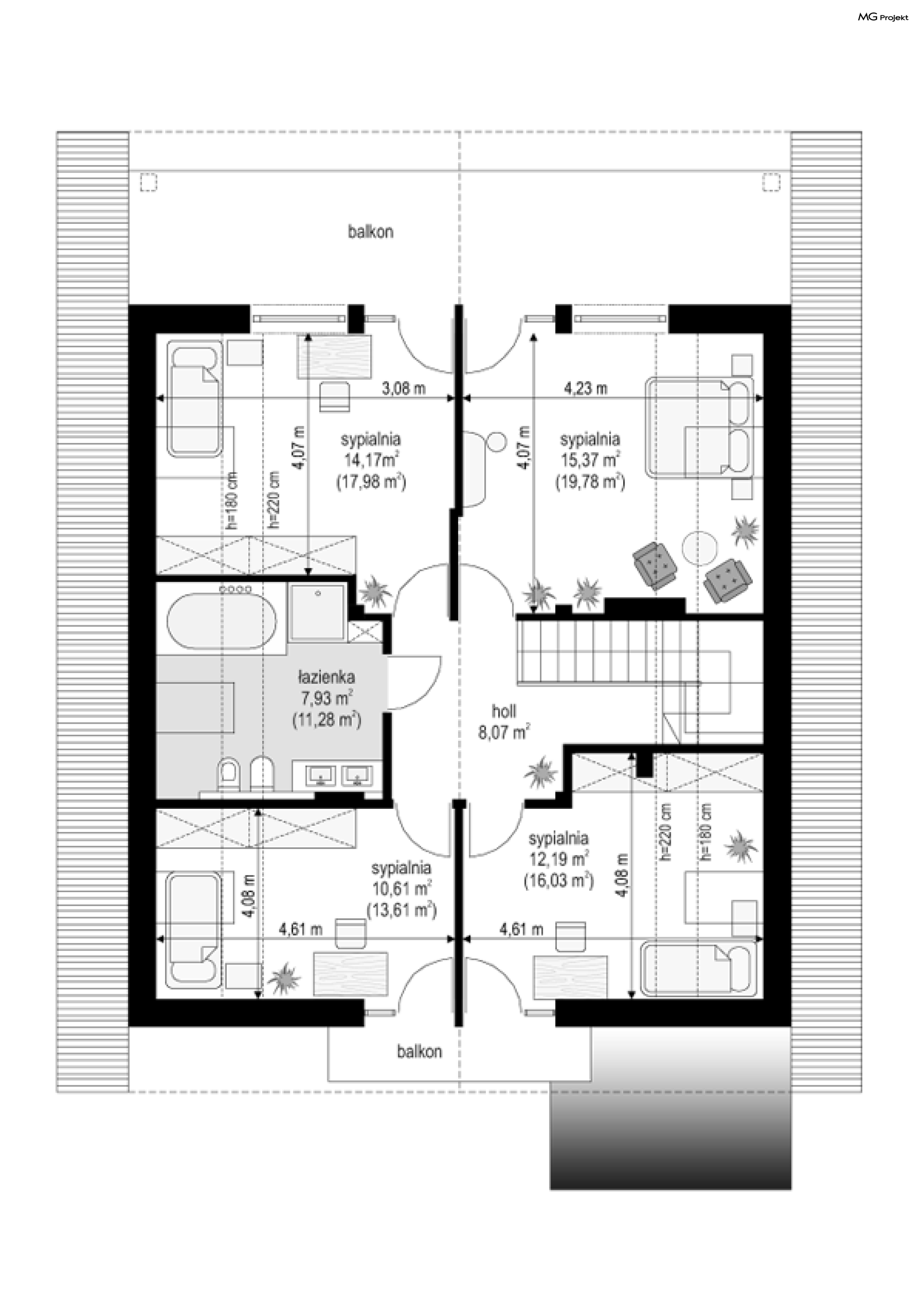
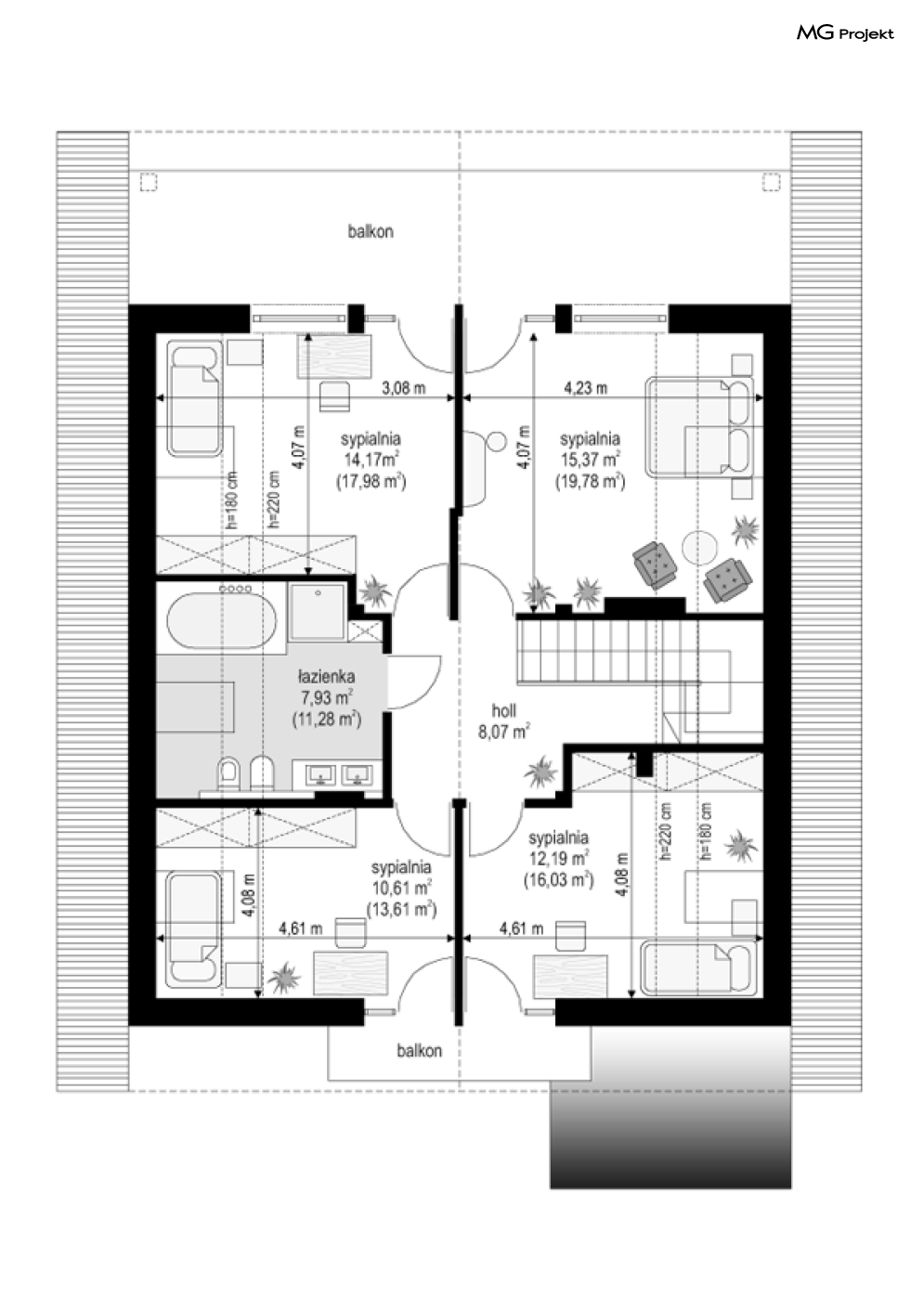
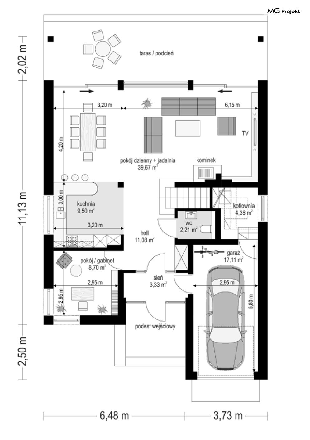
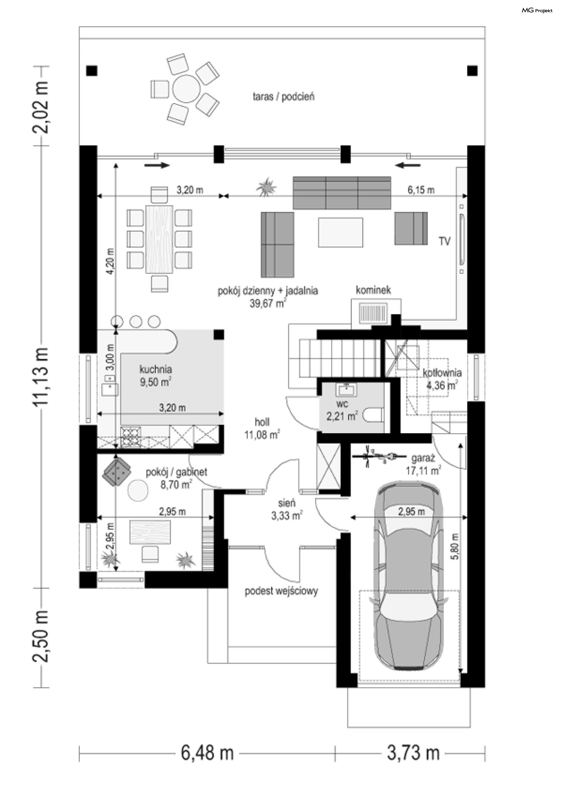
Projekt domu Otwarty 3 to mniejsza wariantowa wersja popularnego projektu Otwarty z naszej pracowni. Dom jest wygodną miejską willą dla cztero-sześcioosobowej rodziny. Zwarta bryła budynku, o prostokątnym rzucie, przekryta jest dwuspadowym symetrycznym dachem. Prostota konstrukcji i architektoniczna oszczędność form łączy się tutaj z ciekawym i dopracowanym detalem, oraz solidnymi nowoczesnymi materiałami. Architektonicznie Projekt domu Otwarty 3 jest propozycją dla osób pragnących domu nowoczesnego, ale jednocześnie w tradycyjnej „skórze” budynku z dwuspadowym dachem. Oglądając projekt od razu rzucają się w oczy piękne przeszklenia konstatujące z fragmentami pełnych ścian. Okien wydaje się być wiele, ale – wbrew pozorom – nie jest ich więcej niż w każdym innym domu - są po prostu inaczej rozmieszczone. Wnętrze domu podzielono na część dzienną i zaplecze techniczne na parterze, oraz sypialnie na poddaszu. Piękny, otwarty na ogród, dzięki oknom balkonowym, salon, łączy się z holem z wyeksponowanymi schodami, oraz częściowo otwartą kuchnią. Przestrzeń dzienna jest fenomenalna jak na tej skali budynek. Wejście do domu – dzięki drzwiom z bocznymi naświetlami – jest reprezentacyjne i bardzo efektowne. Na parterze znajdują się ponadto: dodatkowy pokój - gabinet lub sypialnia, garaż i kotłownia. Na poddaszu zaproponowaliśmy cztery pokoje i duża rodzinną łazienkę. Z powodzeniem można zamienić dwie sypialnie na apartament rodziców z ich własną łazienką i garderobą. Projekt domu Otwarty 3 ma bardzo logiczny układ konstrukcyjny, jest prosty w budowie. Jedyną ekstrawagancją projektu są piękne przeszklenia ogrodowe. Pracownia oferuje też wersję domu w odbiciu lustrzanym, wersję podstawową (projekt domu Otwarty), większą wersję z garażem dwustanowiskowym (projekt domu Otwarty 2) wersję z garażem po lewej stronie i innym układem pomieszczeń (projekt domu Otwarty 4), ze zmienionym układem pomieszczeń (projekt domu Otwarty 4) oraz na węższą działkę (projekt domu Otwarty 5). Zapraszamy!
-
Projekt szamba szczelnego0 zł399 zł
-
Charakterystyka energetyczna0 zł200 zł
-
Pakiet energooszczędny0 zł150 zł
-
Dziennik budowy0 zł60 zł
-
Tablica budowy0 zł120 zł
-
Wersja elektroniczna projektu550 zł
-
Pakiet kosztorys inwestorski550 zł
-
Pakiet ogrzewanie podłogowe470 zł
-
Powietrzna pompa ciepła470 zł
-
Pakiet wentylacja mechaniczna i kominek DGP470 zł
-
Dodatkowy egzemplarz projektu500 zł
-
Pakiet kotłownia na paliwo stałe470 zł
-
Pakiet instalacja fotowoltaiczna470 zł
-
Pakiet klimatyzacja w domu470 zł
-
Pakiet gruntowa pompa ciepła470 zł
-
Pakiet odkurzacz centralny470 zł
-
Pakiet płaszcz wodny470 zł
-
Pakiet kominek DGP399 zł
-
Projekty altan i grillów ogrodowych650 zł
-
Pakiet instalacja solarna470 zł

opieką konsultacyjną w trakcie budowy domu
