Rozwojowy







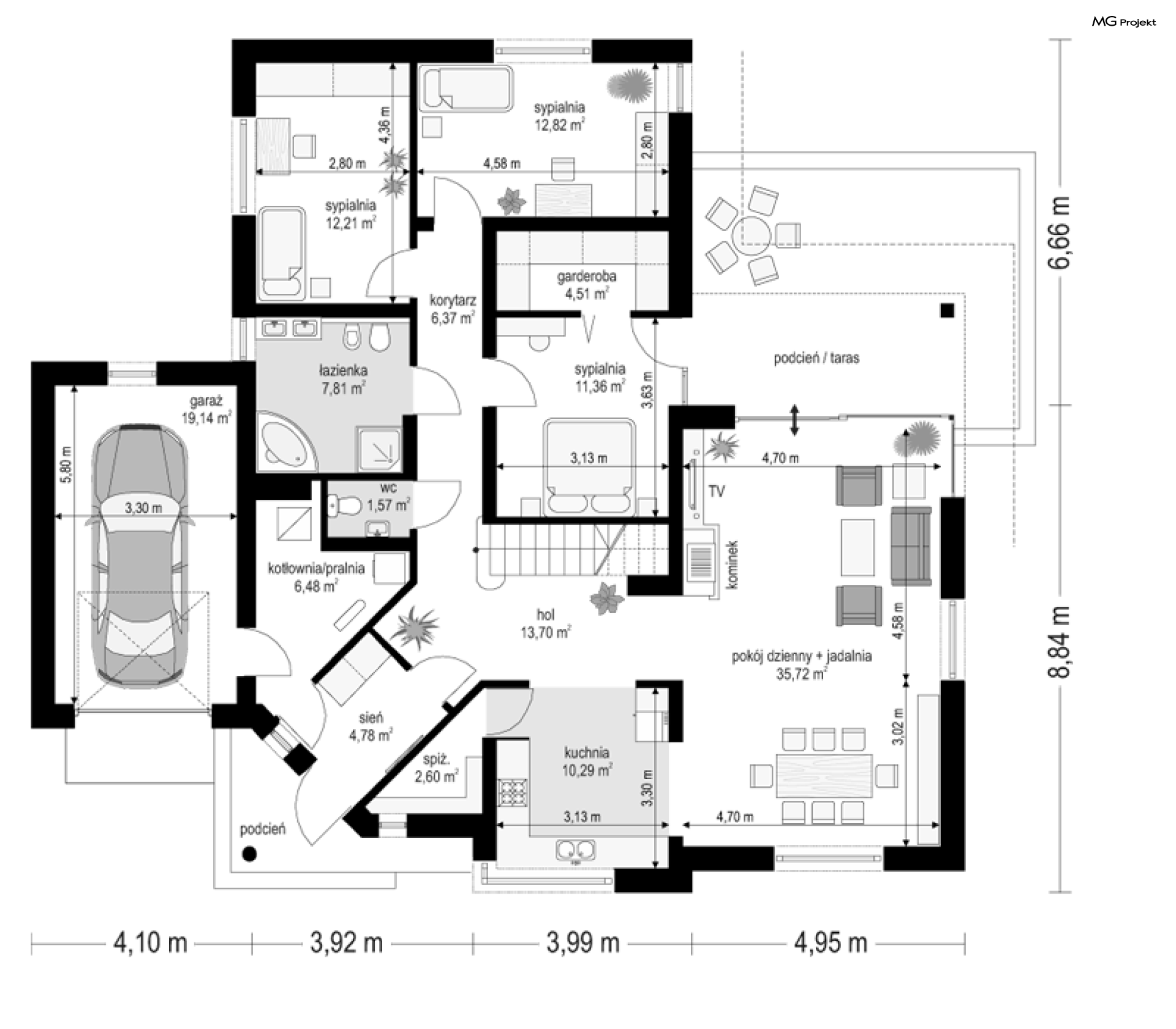
Projekt domu Rozwojowy to propozycja pracowni na nowoczesny, parterowy domek dla cztero-pięcioosobowej rodziny. Projekt domu Rozwojowy zbudowany jest na planie litery L, z dobudowanym garażem. Cały program funkcjonalny domu znajduje się na parterze, a dodatkowo powyżej zaprojektowano duży strych, który można zaadaptować na poddasze użytkowe. Koncepcja Rozwojowego, to możliwość powiększania wnętrza domu o dodatkową przestrzeń po latach mieszkania - bez dużej komplikacji. Dom rośnie wraz z rodziną, z dorastającymi dziećmi, potrzebującymi więcej miejsca. Wnętrze budynku składa się z trzech oddzielnych części: dziennej - z salonem, nocnej - z sypialniami, oraz gospodarczej - z garażem i kotłownią. Część dzienna to obszerny salon, z wyeksponowanym kominkiem i piękną, przeszkloną ścianą - otwarciem na częściowo zadaszony taras i ogród, półotwarta kuchnia, oraz hol ze schodami. Część sypialna natomiast, to: trzy sypialnie z łazienką - w tym sypialnia rodziców z garderobą i wyjściem na taras. Spora przestrzeń techniczno-gospodarcza składa się z: dużej kotłowni, garażu i spiżarni dostępnej z kuchni. Architektura zewnętrzna projektu Rozwojowy to połączenie klasycznej formy wielospadowego, symetrycznego dachu, z nowoczesną linią ścian i otworów okiennych - z narożnymi oknami, wykuszami, fragmentami ścian obłożonymi drewnem. Całość tworzy urozmaiconą niemonotonną całość, z dobrymi proporcjami i zachowaną ludzką skalą budynku. Dom idealnie wpasuje się w otaczającą działkę, dając domownikom niepowtarzalną przyjemność bycia blisko przyrody. Pracownia posiada odbicie lustrzane projektu domu Rozwojowy.
-
Projekt szamba szczelnego0 zł399 zł
-
Charakterystyka energetyczna0 zł200 zł
-
Pakiet energooszczędny0 zł150 zł
-
Dziennik budowy0 zł60 zł
-
Tablica budowy0 zł120 zł
-
Wersja elektroniczna projektu550 zł
-
Pakiet kosztorys inwestorski550 zł
-
Pakiet ogrzewanie podłogowe470 zł
-
Powietrzna pompa ciepła470 zł
-
Pakiet wentylacja mechaniczna i kominek DGP470 zł
-
Dodatkowy egzemplarz projektu500 zł
-
Pakiet kotłownia na paliwo stałe470 zł
-
Pakiet instalacja fotowoltaiczna470 zł
-
Pakiet klimatyzacja w domu470 zł
-
Pakiet gruntowa pompa ciepła470 zł
-
Pakiet odkurzacz centralny470 zł
-
Pakiet płaszcz wodny470 zł
-
Pakiet kominek DGP399 zł
-
Projekty altan i grillów ogrodowych650 zł
-
Pakiet instalacja solarna470 zł

opieką konsultacyjną w trakcie budowy domu
