Zgrabny 5







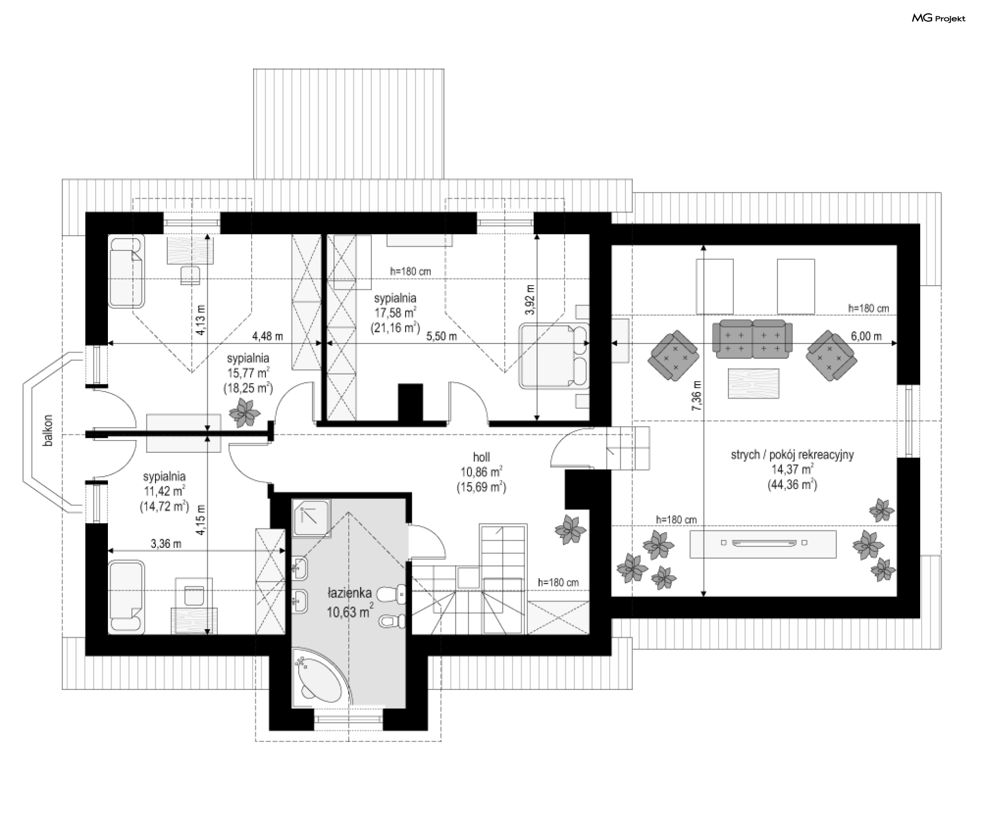
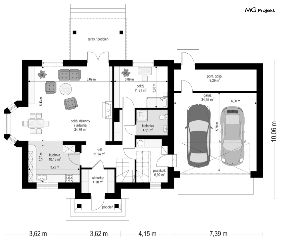
Projekt domu Zgrabny 5 to kolejna odsłona jednego z najpopularniejszych projektów pracowni MG Projekt, domu Zgrabny. Projekt ten posiada dwustanowiskowy garaż i rozbudowaną część mieszkalną. Na parterze zaprojektowano salon z aneksem jadalnym i kuchnią, oraz dodatkowy pokój - sypialnia lub gabinet. Na poddaszu znajdują się trzy przestronne sypialnie z łazienką, oraz duże pomieszczenie uniwersalne nad garażami. W projekcie Zgrabny 5, dzięki podniesieniu ścian kolankowych poddasza pokoje są większe. Lukarny umożliwiły umieszczenie okien w każdym z pokoi. Dom stanowi rozsądną propozycję dla rodziny 4-6 osobowej. Można również zamieszkać w tym domu z dziadkami. Duży garaż wraz z pomieszczeniem gospodarczym to dodatkowy atut projektu. Projekt domu Zgrabny 5 można również zamówić w wersji odbicia lustrzanego oraz inne jego wersje: projekt domu Zgrabny, projekt domu Zgrabny 2, projekt domu Zgrabny 3, projekt domu Zgrabny 4, projekt domu Zgrabny z lukarnami, projekt domu Zgrabny z przedsionkiem. Zapraszamy!
