Biba







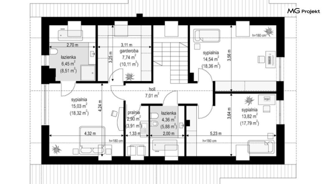
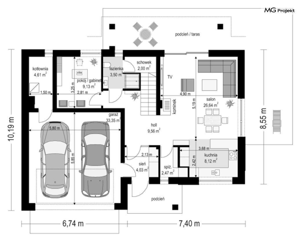
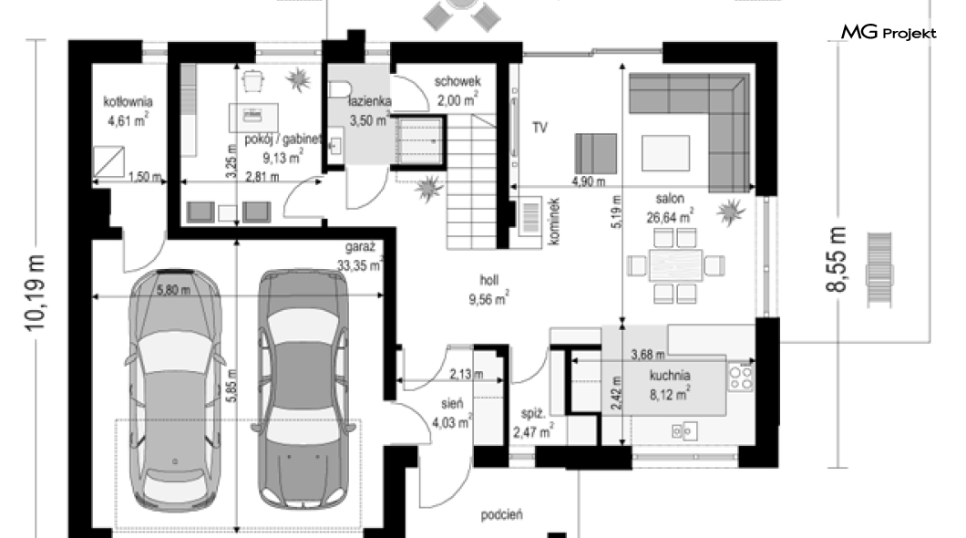
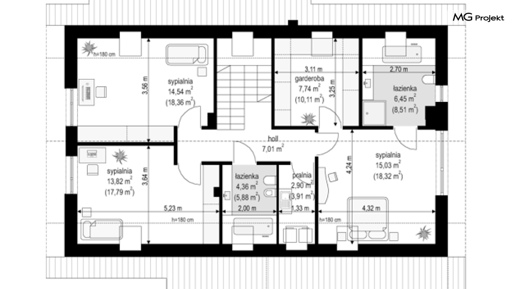
Projekt domu Biba jest kolejną wersją projektu z kolekcji „roztańczonych” domów. Jest on wariantową wersją projektu Party, z dachami spadzistymi nad wystającymi z głównej bryły domu: garażem i zadaszeniem tarasu. Projekt domu Biba pasuje na działkę gdzie plan miejscowy zakazuje stosowania daszków płaskich. Biba - to dom jednorodzinny, parterowy z poddaszem użytkowym, dla cztero-pięcioosobowej rodziny. Ze względu na dodatkowy pokój z łazienką na parterze, może być też odpowiedni dla rodziny trzypokoleniowej, z seniorami. W sensowniej, nie za dużej powierzchni udało się zmieścić cały program użytkowy - wszystkie potrzebne pomieszczenia. W projekcie domu Biba na parterze mamy dużą otwartą przestrzeń dzienną, łączącą salon ze ścianą kominkowo-telewizyjną, kącik na stół jadalny, kuchnię, oraz holl z reprezentacyjnymi schodami. Obok kuchni zaprojektowano spiżarnię z miejscem na dodatkową lodówkę. Wejście do domu zaplanowano przez obszerny przedsionek z szafami, połączony z garażem. Do przedsionka wchodzimy z dużego podcienia wejściowego, a następnie do holu szerokimi szklanymi drzwiami. Nieco na uboczu mamy dodatkowy pokój - gabinet lub sypialnię, oraz łazienkę z natryskiem i przydatnym schowkiem porządkowym pod podestem schodów. Na parterze przewidziano także duży dwustanowiskowy garaż i kotłownię. Na poddaszu mamy układ trzech sypialni, z komfortowym apartamentem rodziców, z własną łazienką i naprawdę ładną garderobą, oraz dwiema sypialniami dziecięcymi z szafami wbudowanymi, łazienką i pralnią dostępną z holu. Na samej górze mamy jeszcze nisty stryszek - domowy magazyn. Biorąc pod uwagę nieprzesadzoną powierzchnię użytkową, w domu udało się zaprojektować naprawdę komfortowe wnętrze. Architektura domu : dosyć prosta bryła z dwuspadowym dachem zyskała nowoczesny acz nie awangardowy wygląd dzięki dużym przeszkleniom połączonym z okładzinami klinkierowymi i drewnianymi. Dom doskonale wpasuje się w dowolne otoczenie, a jego architektura z pewnością będzie ponadczasowa i szybko się nie znudzi. W prostocie tkwi siła. Koszty : także w prostocie tkwią oszczędności. Dzięki nieskomplikowanym kształtom dom będzie łatwy i niedrogi w budowie, a potem w utrzymaniu. Budynek zaprojektowano jako energooszczędny, także koszty ogrzewania również nie zrujnują właścicieli. Projekt domu Biba to dobra solidna propozycja domu jednorodzinnego dla Klientów szukających rozsądnego projektu. Zapraszamy do zapoznania się z całą serią "roztańczonych domów": https://www.mgprojekt.com.pl/makarena, https://www.mgprojekt.com.pl/bolero, https://www.mgprojekt.com.pl/lambada, https://www.mgprojekt.com.pl/party, https://www.mgprojekt.com.pl/party-2, https://www.mgprojekt.com.pl/biba, https://www.mgprojekt.com.pl/tango, https://www.mgprojekt.com.pl/salsa, https://www.mgprojekt.com.pl/rumba, https://www.mgprojekt.com.pl/mambo, https://www.mgprojekt.com.pl/mambo, https://www.mgprojekt.com.pl/fokstrot, https://www.mgprojekt.com.pl/samba.
