Party 2
 
 
 
     
 
 
 
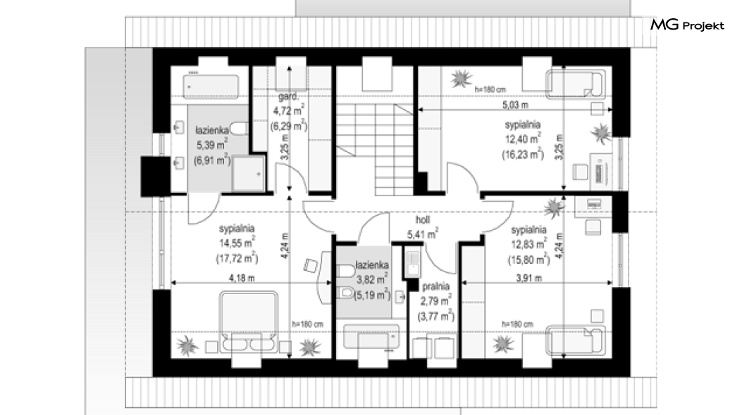
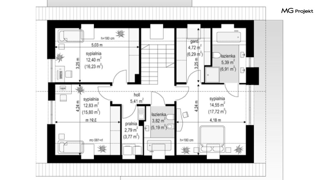
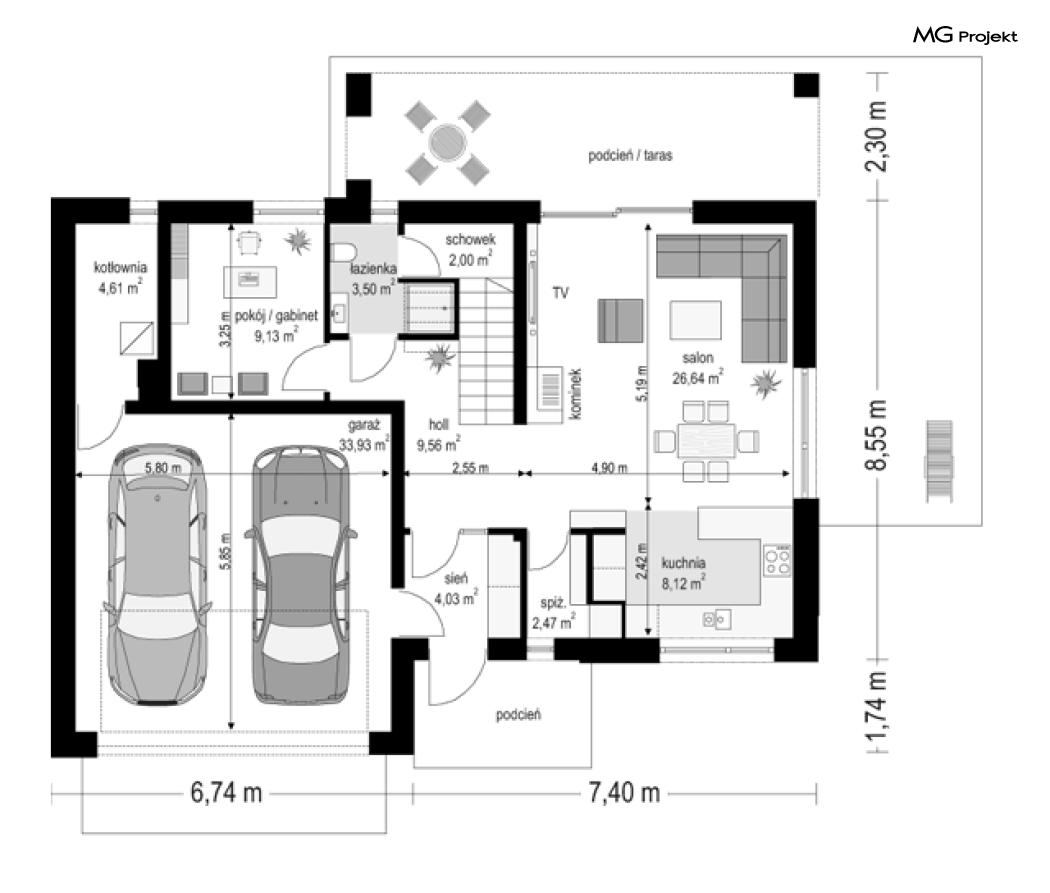
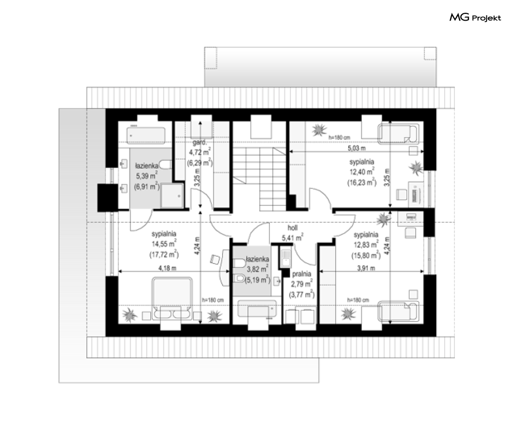
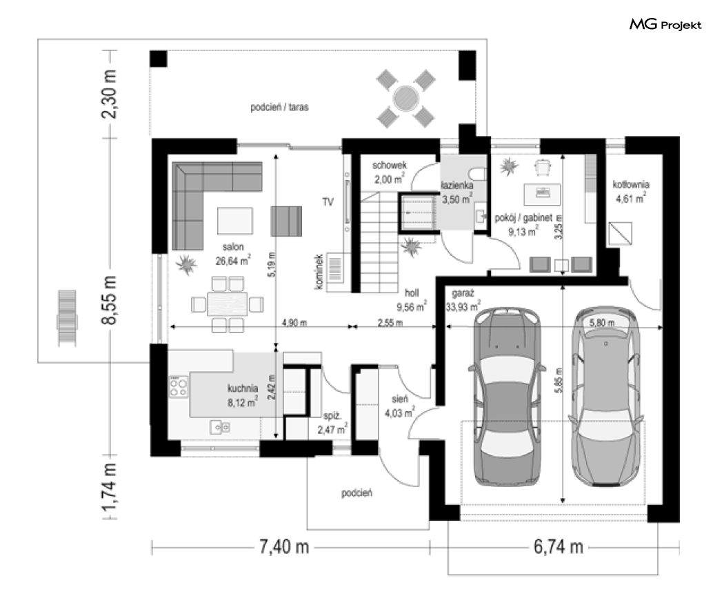
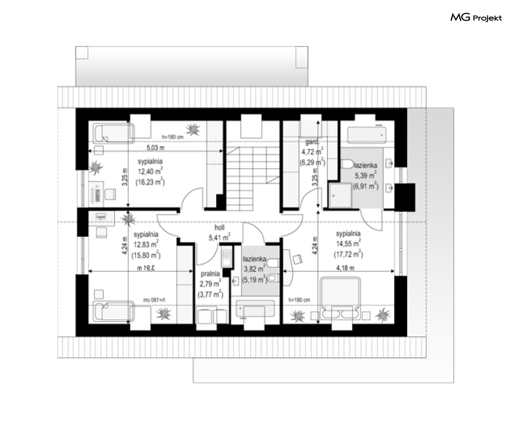
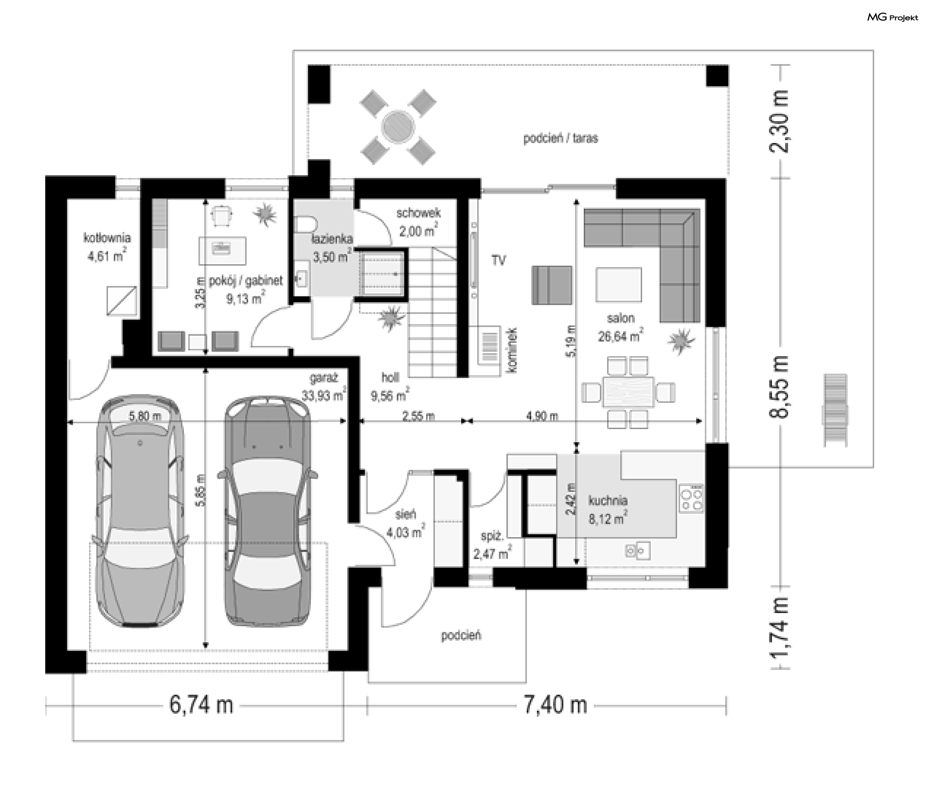
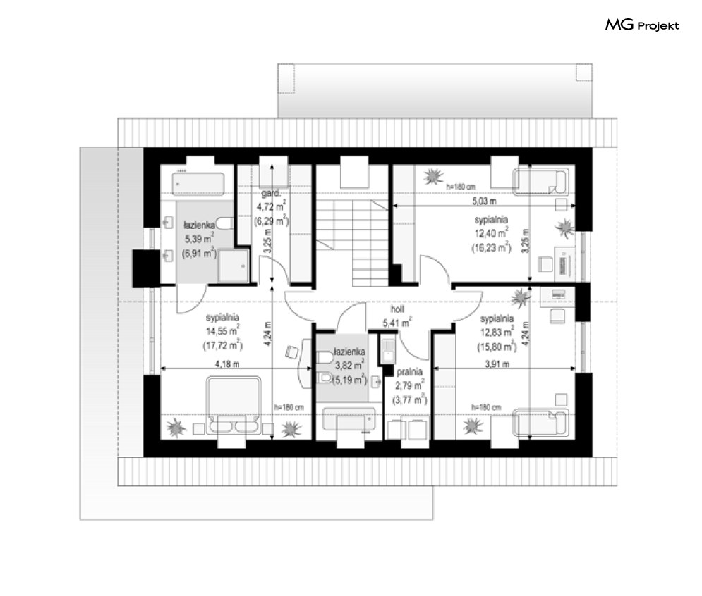
Projekt domu Party 2 jest nową odsłoną popularnego projektu Party. Projekt należy do kolekcji podobnych do siebie domów, różniących się nieco architektoniczną stylistyką i rozwiązaniami - jest to nasza kolekcja „tańczących” domów ;). Warto zapoznać się z każdym z tych domków i wybrać najbardziej odpowiedni dla siebie. „Party 2” to bliźniaczy brat projektu Party, z trochę pomniejszoną bryłą, dostosowaną do aktualnych trendów wśród Inwestorów. Podstawowe zalety sylwetki domu to jego prosta elegancja i bezpretensjonalność. Projekt domu Party 2 ma nowoczesną stylistykę, ale bez awangardowych wodotrysków, które za kilka lat będą niemodne i nudne. Architektura domu jest ponadczasowa i prawdziwa - niczego nie udaje, na nic się nie sili. Prostopadłościenną bryłę budynku przekrywa dwuspadowy dach kryty dachówką (lub na przykład blachą na rąbek). Parter oddzielony jest od reszty elewacji poziomym pasem z okładziny klinkierowej w linii nadproży okien i drzwi. Frontową elewację urozmaica wystający garaż i zadaszenie podestu wejściowego. Od strony ogrodu z kolei mamy duże zadaszenie nad tarasem przykryte płaskim dachem. Wnętrze domu to bardzo wygodne mieszkanie dla cztero-sześcioosobowej rodziny. Dzięki dodatkowemu pokojowi z łazienką na parterze w domu może mieszkać też trzecie pokolenie seniorów. Parter to jedna otwarta przestrzeń holu, salonu i kuchni. Połączone pomieszczenia tworzą bardzo ładną wspólną powierzchnię. Salon ze ścianą kominkowo-telewizyjną i narożnym kątem z kanapami otwiera się dużymi przeszkleniami na otaczający ogród i taras. Kącik ze stołem jadalnym w centralnym miejscu domu łączy salon z kuchnią, częściowo oddzieloną od pokoju dziennego półwyspem z blatów kuchennych. Obok kuchni, za ścianą w pełnej zabudowie AGD zaprojektowano spiżarnię. Do domu wchodzimy obszernym przedsionkiem z szafami, połączonym z garażem wprost przez szerokie przeszklone drzwi do holu z reprezentacyjnymi schodami. Na parterze mamy dodatkowo pokój (sypialnia lub gabinet), łazienkę ze schowkiem porządkowym, duży podwójny garaż i kotłownię. Na poddaszu mamy apartament rodziców z własną łazienką i garderobą, oraz tarasem nad garażem. Z drugiej strony holu są dwie sypialnie dziecięce szafami wbudowanymi, łazienka i pralnia. Dom mimo wcale niedużej powierzchni jest komfortowy i wygodny. Koszty realizacji i eksploatacja : dzięki prostej bryle i konstrukcji budynek jest niedrogi w budowie i będzie tani w późniejszym utrzymaniu. Projekt domu Party 2 to fantastyczny projekt dla Państwa. Zapraszamy do zapoznania się z całą serią "roztańczonych domów": https://www.mgprojekt.com.pl/makarena, https://www.mgprojekt.com.pl/bolero, https://www.mgprojekt.com.pl/lambada, https://www.mgprojekt.com.pl/party, https://www.mgprojekt.com.pl/party-2, https://www.mgprojekt.com.pl/biba, https://www.mgprojekt.com.pl/tango, https://www.mgprojekt.com.pl/salsa, https://www.mgprojekt.com.pl/rumba, https://www.mgprojekt.com.pl/mambo, https://www.mgprojekt.com.pl/mambo, https://www.mgprojekt.com.pl/fokstrot, https://www.mgprojekt.com.pl/samba.
 
 
 
 
 
 
 
 
 
 
 
 
 
 
 
 
 
 
 
 
 
 
 
 
 
 
 
 
 
 
 
 
 
 
 
 
 
 
 
 
 
 
 
 
 
 
 
 
 
 
 
 
 
 
 
 
             
 
 
 
 
 
 
 
 
 
 
 
 
 
 
 
 
 
 
 
                                         
 
                                         
                         
                         
                     
                         
                        