Samba







Projekt domu Samba to jeden z projektów, którego protoplastą jest popularny projekt Party. Razem tworzą kolekcję "roztańczonych" domów.
Samba to projekt domu jednorodzinnego, parterowego z poddaszem użytkowym. Dom parterowy z poddaszem przeznaczony dla cztero-pięcioosobowej rodziny.
Gotowy projekt domku Samba jest tani w budowie, według naszych kosztorysantów koszty budowy domu to 192220 zł za stan surowy zamknięty.
Projekt Samba ma prostą konstrukcję i bardzo atrakcyjną architekturę. Prostokątną bryłę projektu Samba przykrytą dwuspadowym dachem ozdabiają i urozmaicają: wejściowy podcień z wcięciem w bryle budynku i daszkiem, parterowy dobudowany garaż, oraz od strony ogrodowej wycięty narożnik - podcień budynku i wysunięte zadaszenie tarasu. Wcięcie w bryle projektu Samba może być takie jak w gotowym projekcie domu, lub można je w dość łatwy sposób zabudować i powiększyć tym samym salon.
Odpowiednio dobrane materiały wykończeniowe i kolorystyka nadają projektowi domku Samba nowoczesnego wyglądu.
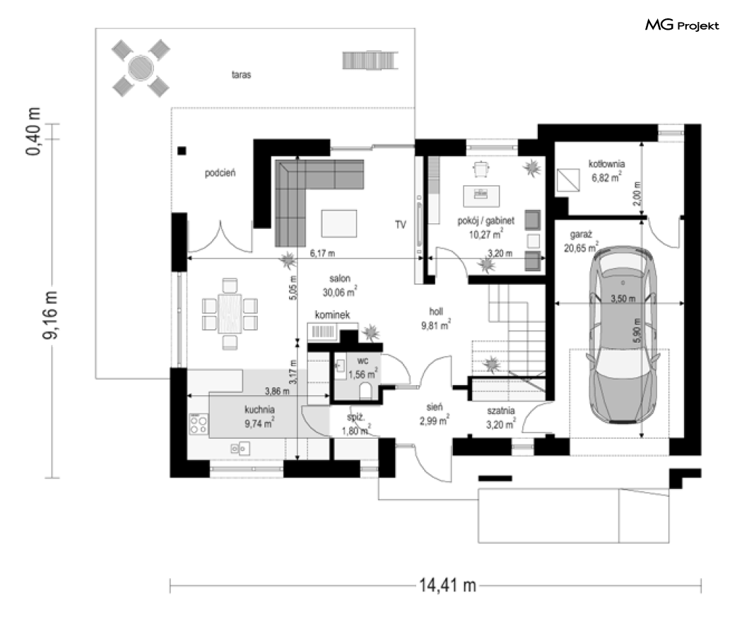
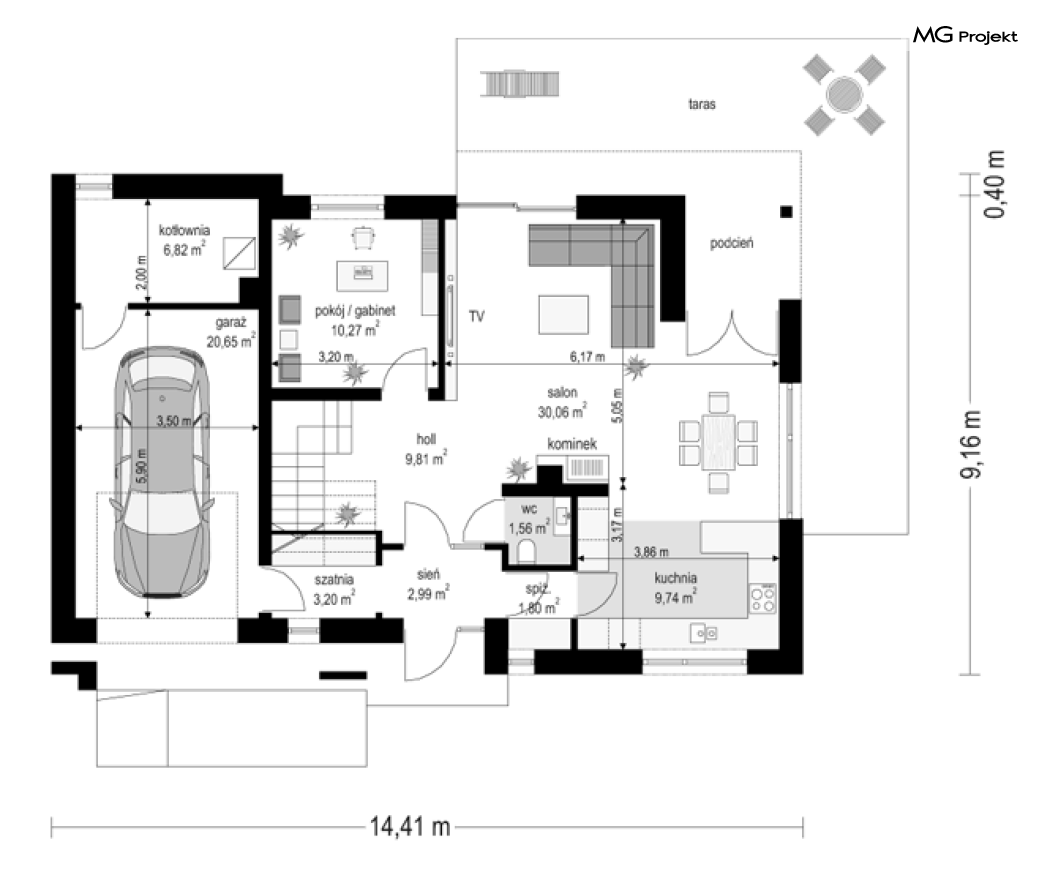
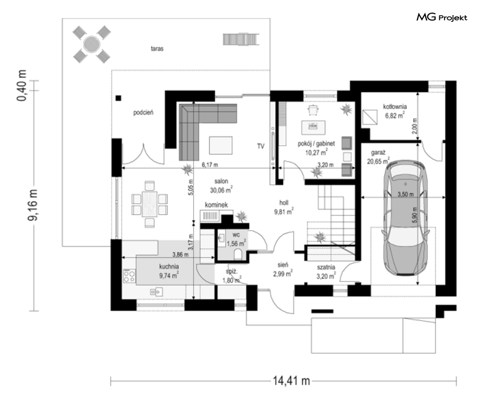
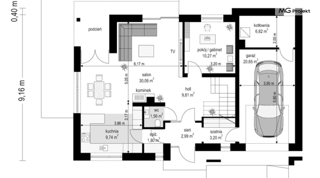
Do wnętrza projektu Samba wchodzimy przez reprezentacyjne drzwi z naświetlem. Drzwi projektu Samba zaprojektowano we wnęce, z podestem przykrytym wystającym daszkiem. Daszek kończy sprytny schowek na drewno do kominka przy drzwiach garażowych.
Z sieni projektu Samba wchodzimy na wprost szerokimi szklanymi drzwiami do holu i salonu, albo na boki: do szatni i garażu, lub w drugą stroną przez spiżarnię do kuchni. W ten sposób zapewniona jest właściwa komunikacja wchodzących do domu - pieszo lub z auta, z zakupami.
W projekcie domu Samba w holu mamy lekko oddzielone od reszty wnętrza schody, wejście do dodatkowego pokoju, oraz szerokie przejście do przestrzeni dziennej budynku, z salonem, jadalnią i kuchnią.
Centralnym miejscem wnętrza projektu Samba jest ściana z kominkiem, wokół którego zaprojektowano pomieszczenia. W salonie mamy też ścianę TV, miejsce na meble wypoczynkowe, jadalnię z wyjściem na taras i ogród, oraz ładną kuchnię oddzieloną półwyspem, połączoną ze spiżarnią projektu Samba. Za garażem projektu Samba umieszczono pomieszczenie kotłowni.
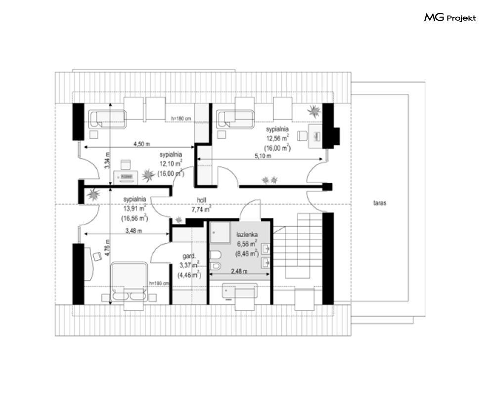
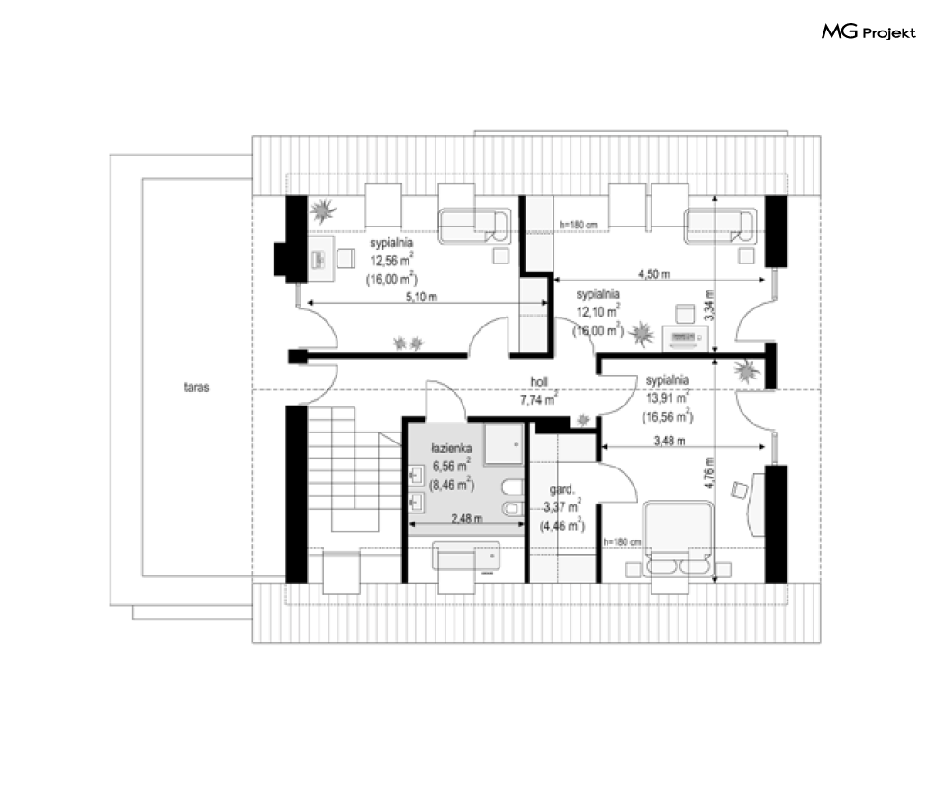
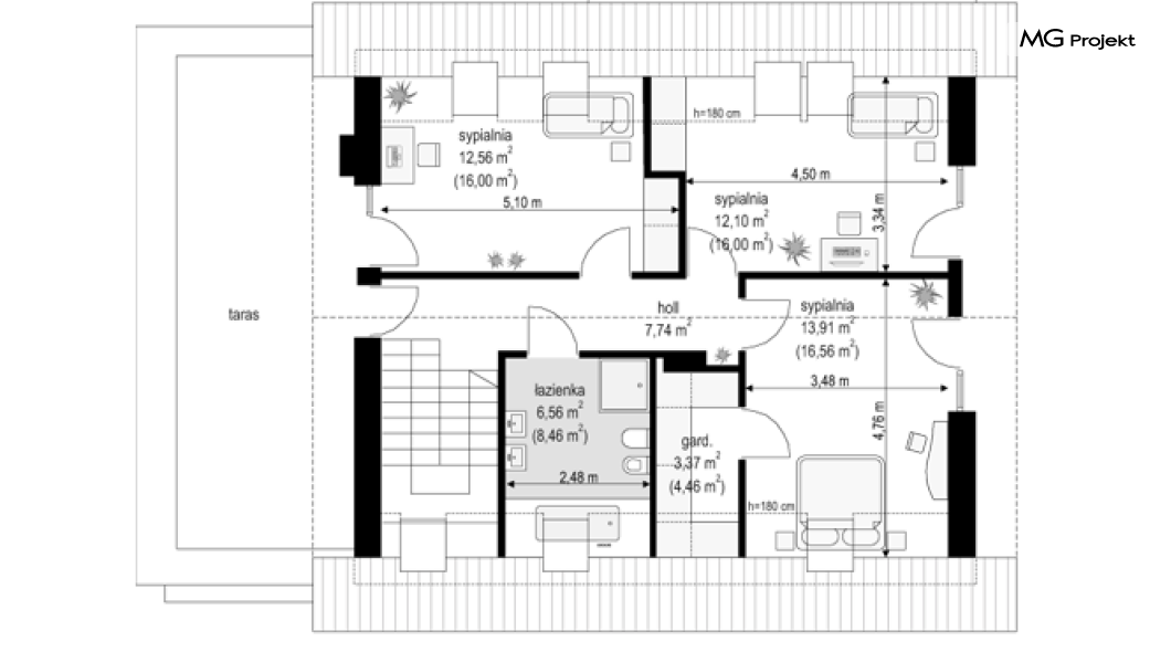
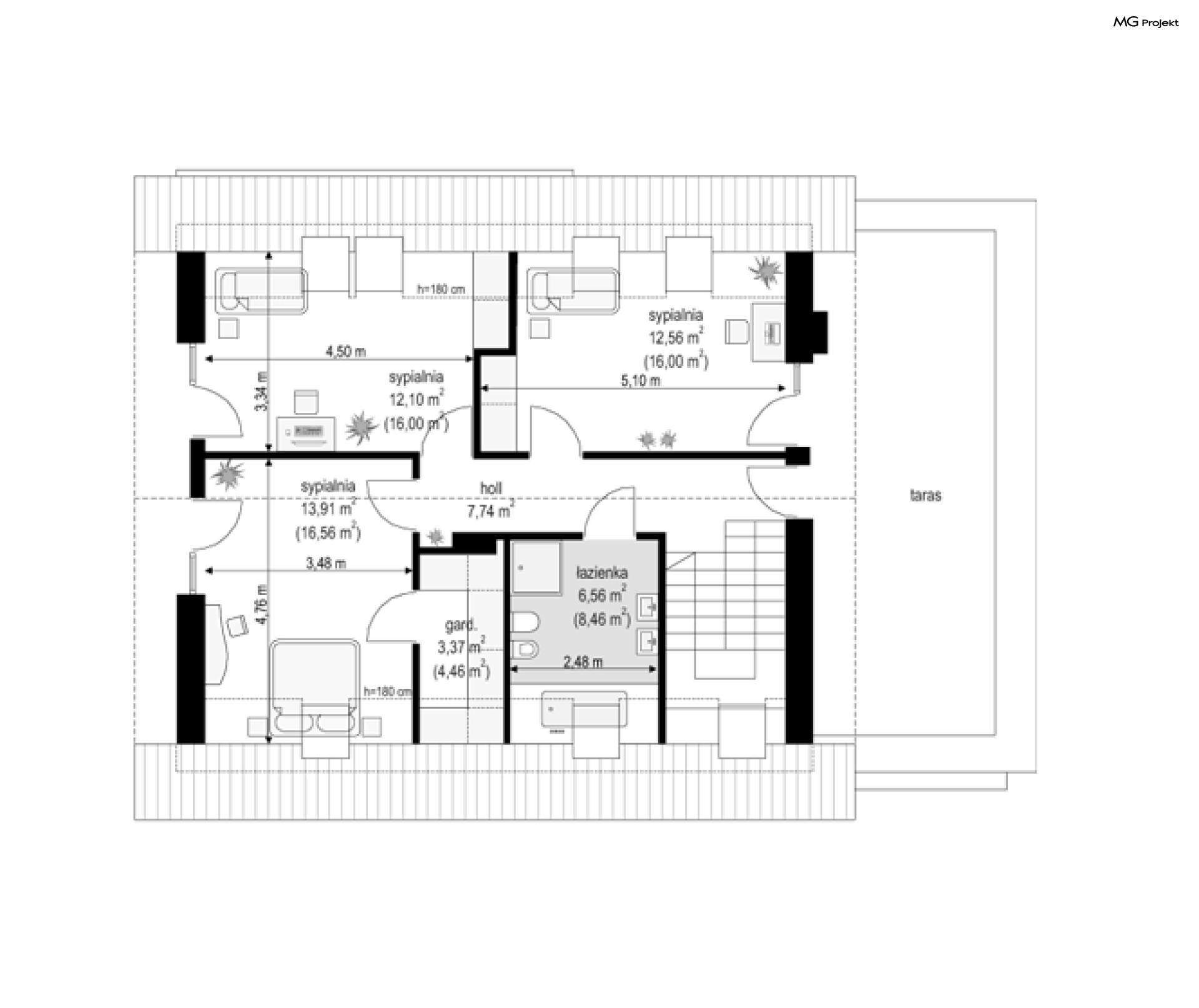
W projekcie domku Samba na poddaszu zaprojektowane zostały trzy sypialnie, oraz ładna łazienka z wanną i prysznicem. Sypialnia rodziców ma własną garderobę - sypialnie dziecięce mają wbudowane szafy.
Projekt domu Samba mimo niedużej powierzchni użytkowej 125,67 m2 jest bardzo komfortowym domem dla pełnej rodziny. Atrakcyjny wygląd projektu Samba, funkcjonalne wnętrze, energooszczędne rozwiązania, oraz niski koszt budowy i późniejszej eksploatacji, powinny przekonać niejednego Inwestora do tego projektu domu. Projekt domu Samba można zamówić również w wersji odbicia lustrzanego. Zapraszamy do zapoznania się z całą serią "roztańczonych domów": https://www.mgprojekt.com.pl/makarena, https://www.mgprojekt.com.pl/bolero, https://www.mgprojekt.com.pl/lambada, https://www.mgprojekt.com.pl/party, https://www.mgprojekt.com.pl/party-2, https://www.mgprojekt.com.pl/biba, https://www.mgprojekt.com.pl/tango, https://www.mgprojekt.com.pl/salsa, https://www.mgprojekt.com.pl/rumba, https://www.mgprojekt.com.pl/mambo, https://www.mgprojekt.com.pl/mambo, https://www.mgprojekt.com.pl/fokstrot, https://www.mgprojekt.com.pl/samba.
