Tango







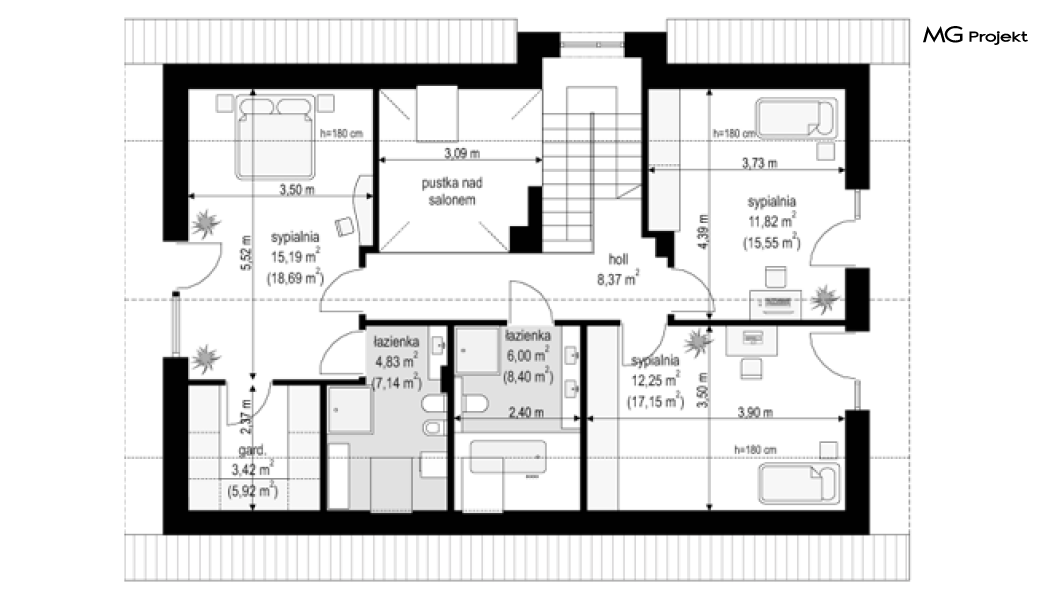
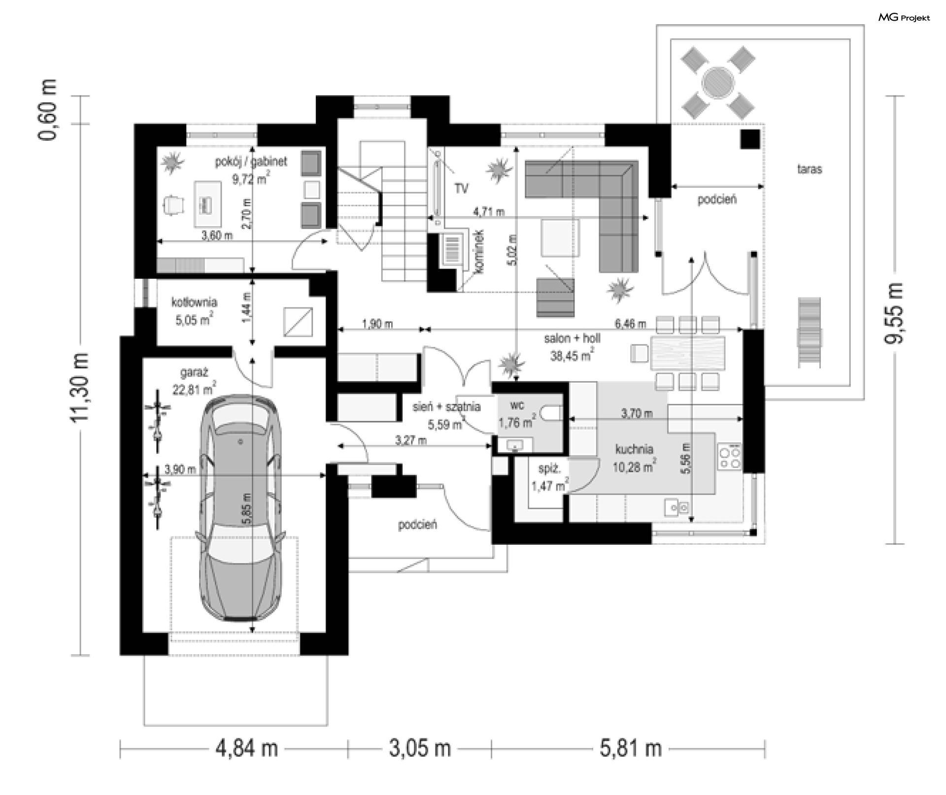
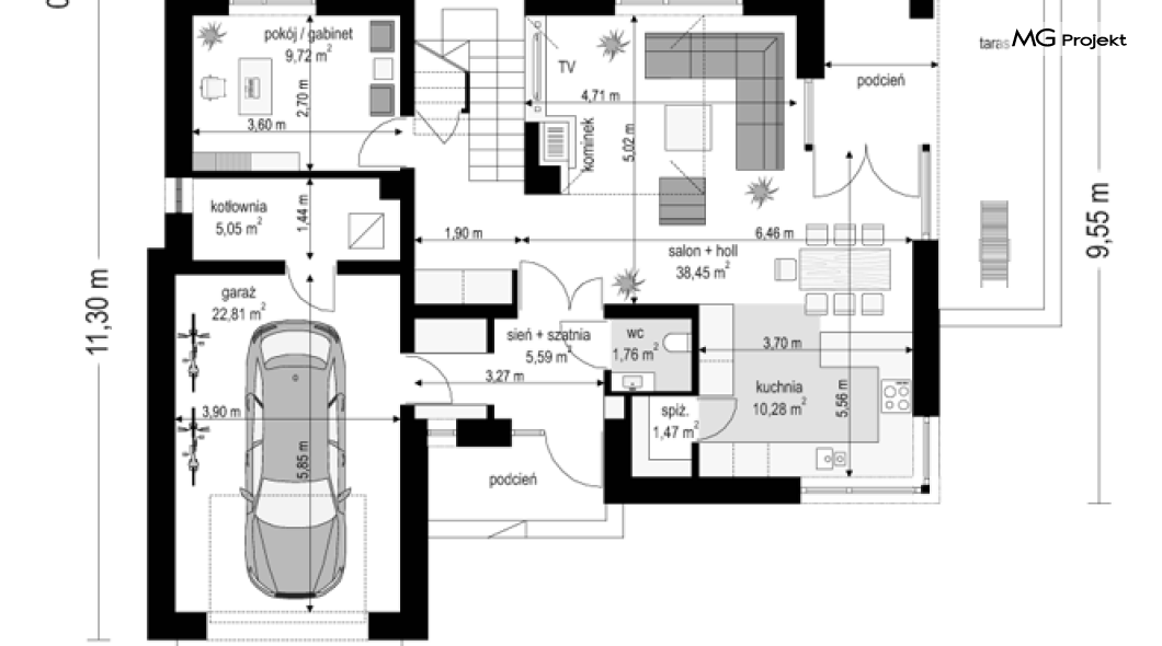
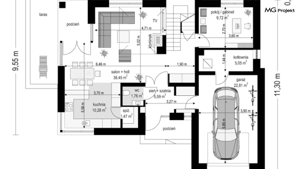
Projekt domu Tango to jeden z projektów z kolekcji „roztańczonych” domów :-), których protoplastą jest popularny projekt Party. Projekt domu Tango to dom jednorodzinny, parterowy z użytkowym poddaszem, przeznaczony dla 4-6 osobowej rodziny. Prostokątna bryła budynku, przekryta jest dwuspadowym symetrycznym dachem. Bryłę urozmaicają : wystająca z obrysu część garażowa, przeszklona wnęka podcienia wejściowego, wycięty narożnik zadaszonej części tarasu od strony ogrodu, czy kubiczna lukarna na podeście klatki schodowej. Projekt domu Tango ma piękne przeszklenia otwierające wnętrze na ogród i dodające atrakcyjnego reprezentacyjnego wyglądu elewacji frontowej. Wykończenie elewacji kamiennymi i drewnianymi wstawkami dodaje bryle nowoczesności i właściwych proporcji. Architektura domu, choć prosta, przyciąga wzrok i zwraca uwagę. Wnętrze „Tanga” jest niemniej ciekawe. Otwarcie przestrzenne - pustka nad salonem i nad schodami powiększa wizualnie cześć dzienną i uatrakcyjnia wnętrze domu. Do domu wchodzimy szerokimi reprezentacyjnymi drzwiami z naświetlem do wygodnej sieni z szatnią, a następnie szerokimi podwójnymi szklanymi drzwiami do holu i salonu. Zdecydowaliśmy się na zaprojektowanie wejścia do wc z przedsionka - bardzo praktyczne rozwiązanie izolujące to pomieszczenie od salonu i gości. Z szatni przechodzimy do wygodnego garażu i kotłowni. Wnętrze dzienne to salon, z centralnym kominkiem, piękne schody połączone z pustką nad salonem, jadalnia i kuchnia ze spiżarnią. Z holu przy schodach dostajemy się do dodatkowego pokoju i schowka porządkowego pod schodami. Na poddaszu umieszczono trzy sypialnie : osobny apartament rodziców, z własną łazienką i garderobą, oraz sypialnie dziecięce, z wbudowanymi szafami i oddzielną łazienką. Sypialnie rozdziela holl- antresola, z widokiem na dół, na salon i na schody. Projekt domu Tango stanowi połączenie prostej tradycyjnej formy z ciekawymi rozwiązaniami architektonicznymi, dodającymi zewnętrzu i wnętrzu atrakcyjności. Prosta konstrukcja i zwarta bryła powodują, że dom jest przy tym niedrogi w budowie i w późniejszej eksploatacji. Projekt domu Tango to doskonała propozycja dla Inwestorów pragnących wyróżnić się spośród wielu identycznych domów. Zapraszamy do zapoznania się z całą serią "roztańczonych domów": https://www.mgprojekt.com.pl/makarena, https://www.mgprojekt.com.pl/bolero, https://www.mgprojekt.com.pl/lambada, https://www.mgprojekt.com.pl/party, https://www.mgprojekt.com.pl/party-2, https://www.mgprojekt.com.pl/biba, https://www.mgprojekt.com.pl/tango, https://www.mgprojekt.com.pl/salsa, https://www.mgprojekt.com.pl/rumba, https://www.mgprojekt.com.pl/mambo, https://www.mgprojekt.com.pl/mambo, https://www.mgprojekt.com.pl/fokstrot, https://www.mgprojekt.com.pl/samba.

