Willa Floryda 3







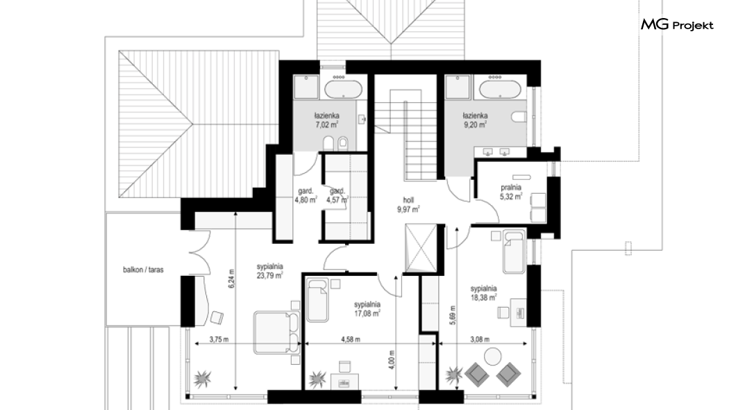
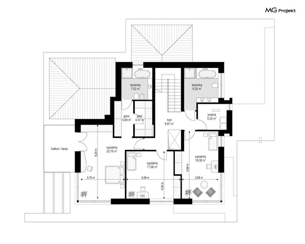
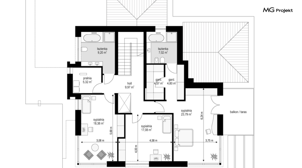
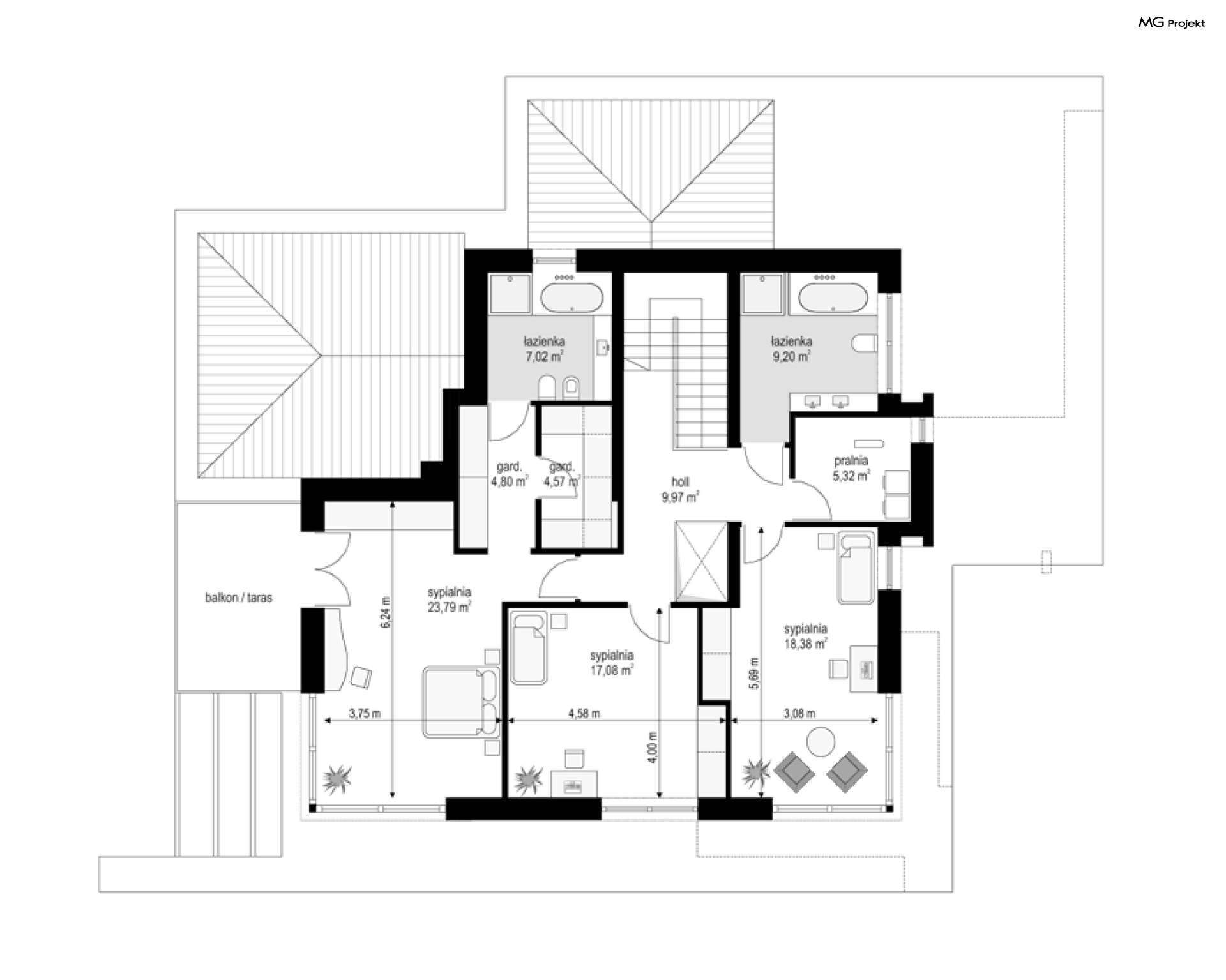
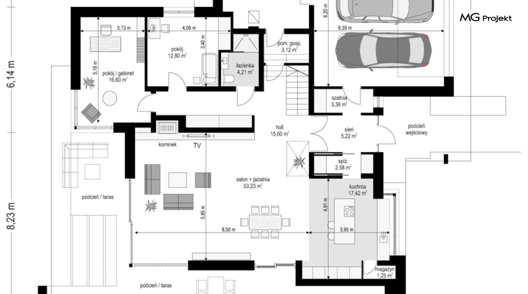
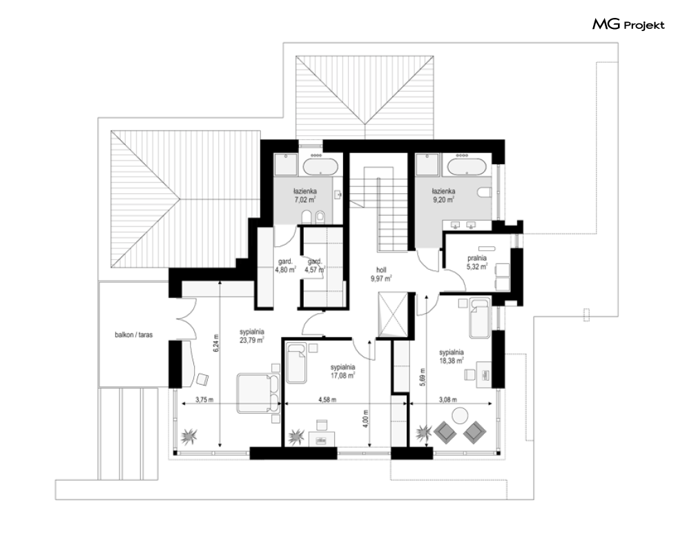
Projekt domu Willa Floryda 3 jest naszą kolejną propozycją projektu z serii nowoczesnych rezydencji Willa Floryda. Dom estetycznie i architektonicznie nawiązuje do serii "Floryd", natomiast układ funkcjonalny i wygląd są zupełnie inne. Budynek jest piętrowy, z dwukondygnacyjnym rdzeniem obudowanym parterowymi częściami od frontu i z tyłu. Dzięki temu bryła jest bardzo urozmaicona i wygląda lekko. Rezydencja Willa Floryda 3 łączy w sobie zalety budynku piętrowego i parterowego, będącego blisko ogrodu i w ludzkiej skali. Elewacje podzielono na poziome pasy: ciemne pasy w grubości kondygnacji i okien, oraz kontrastujące białe pasy w grubości stropów. Jasne części elewacji wystają do przodu, natomiast ciemniejsze fragmenty ścian chowają się, dzięki czemu bryła jest ciekawsza i bardziej rozrzeźbiona. Wejście do domu Willa Floryda 3 zaakcentowane jest pięknym podcieniem, oraz masywną ścianą wykończoną kamieniem, lub betonem architektonicznym. Narożne okno kuchni i przeszklenia piętra dodają frontowi domu lekkości i transparentności. W prawdziwy sposób dom otwiera swoje wnętrze od strony ogrodu. Narożne przeszklenia salonu i sypialni u góry łączą wnętrze z ogrodem. Jednocześnie podcień i pergola oparta na wystającym słupie i podciągu tworzą wewnętrzną przestrzeń tarasową - swoiste patio chroniące prywatność mieszkańców. Nowoczesna sylwetka domu z pewnością wyróżni tą piękną rezydencję z otaczającej nudnej zabudowy. Parter domu Willa Floryda 3 zaprojektowano na planie zbliżonym do kwadratu. Do budynku wchodzimy przez obszerny przedsionek z szatnią, połączony z garażem z jednej strony i spiżarnią i kuchnią z drugiej. W ten sposób zarówno wejście do domu piechotą, jak i przyjazd autem jest wygodny i prowadzi nas w to samo miejsce. Z przedsionka przedostajemy się do holu, z reprezentacyjnymi schodami po prawej i otwartą dużą przestrzenią dzienną po lewej stronie. Pokój dzienny, jadalnia i kuchnia z wyspą łączą się we wspólną niemal 90ciometrową powierzchnię. Salon otwiera się na narożny taras w kształcie litery "L". Na parterze mamy jeszcze dodatkową przestrzeń - dwa pokoje o dowolnym przeznaczeniu - rzadkość w piętrowych domach. Mogą to być sypialnie, lub pokoje do pracy czy rekreacji. Albo może to być wydzielone dodatkowe mieszkanko dla seniorów, lub gosposi. Przestrzeń do dowolnej aranżacji. Z domu Willa Floryda 3 i z garażu dostajemy się też do dużego pomieszczenia gospodarczego - kotłowni. Piętro domu to trzy sypialnie: apartament rodziców z własnymi garderobami i łazienką, oraz sypialnie dzieci z szafami wbudowanymi i łazienką dostępną z holu. Na piętrze mamy też pralnię. Hol piętra połączony jest z parterem otworem schodów, oraz niewielką dziurą w stropie. Projekt domu Willa Floryda 3 jest nowoczesny, luksusowy i komfortowy. Oczywiście projekt Willa Floryda 3 jest budynkiem energooszczędnym - dzięki zastosowanym materiałom i instalacjom. Zapraszamy do zapoznania się z pełną ofertą pracowni MG Projekt: Willa Floryda 2, Willa Floryda, Willa Floryda 4, Rezydencja Floryda, Rezydencja Floryda 2.
