Dom z widokiem E







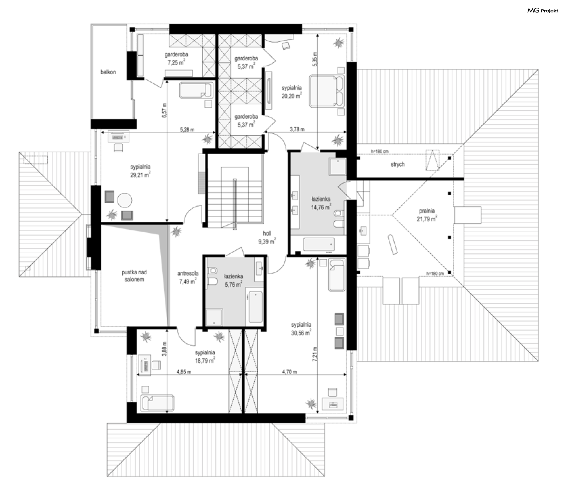
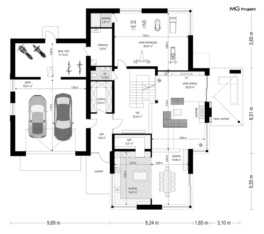
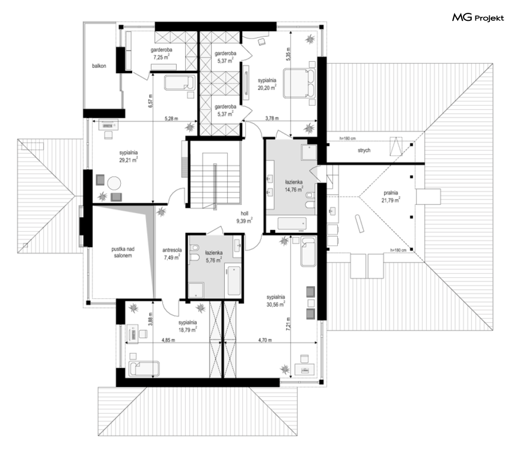
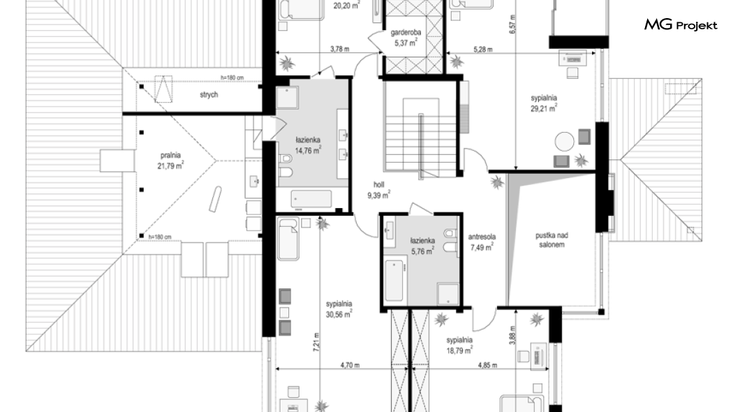
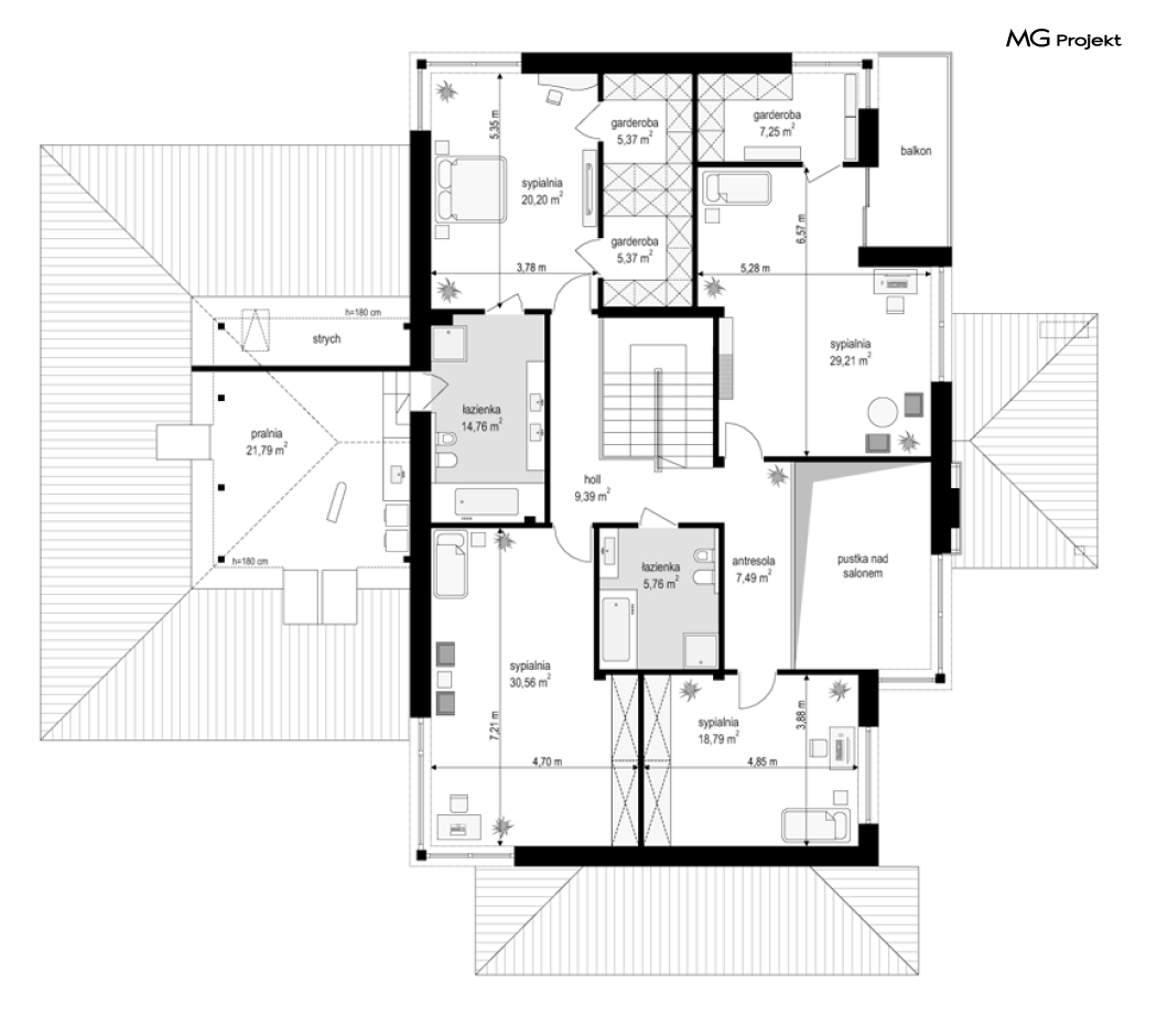
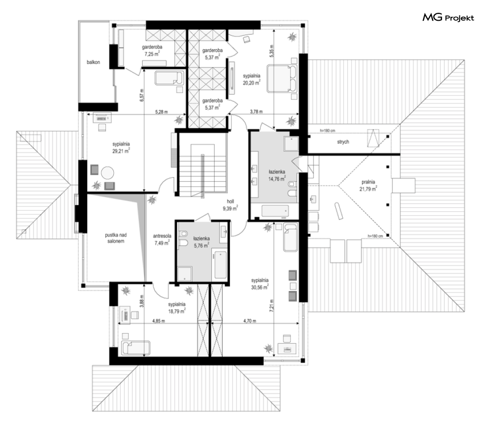
Projekt domu Dom z widokiem E to wersja wariantowa popularnego projektu Dom z widokiem. Projekt różni się od podstawowego wariantu zwiększoną bryłą i powierzchnią zabudowy (główna bryła budynku przedłużona jest o niemal 2 metry), oraz zmienionym – zmniejszonym nachyleniem połaci dachowych, przez co budynek jest trochę niższy. Dom jest też nieco węższy – ma węższy salon, przez co zmieści się na węższej działce i ma węższą elewację frontową niż w podstawowym projekcie. Projekt domu Dom z widokiem E został zaprojektowany jako dwukondygnacyjna nowoczesna miejska willa, składająca się z głównej piętrowej bryły przykrytej czterospadowym dachem, oraz dobudowanej części garażowej -parterowej, przykrytej trzyspadowym niższym dachem. Wygląd domu podkreślają charakterystyczne narożne duże przeszklenia , oraz ściany podzielone poziomymi pasami o zróżnicowanym wykończeniu - z kamienia, drewna lub tynku. Elewacja ogrodowa (boczna) przez cofnięcie salonu jest niemal jedną długą ścianą otwierającą dom na otaczający ogród. Wejście domu podkreślone jest wciętym podcieniem z podestem i szerokimi drzwiami wejściowymi z naświetlami. Od strony ogrodu z kolei elewację ozdabia częściowe zadaszenie tarasu i szerokie okna balkonowe. Wnętrze domu podzielono na część dzienną i gospodarczą na parterze, oraz sypialnie na piętrze. Do domu wchodzimy obszernym przedsionkiem z szatnią wprost do reprezentacyjnego holu i dalej do salonu, jadalni i kuchni. Nad salonem nie przewidziano pustki - jedynym połączeniem przestrzeni parteru z piętrem jest szeroki otwór schodów dwubiegowych. Na parterze przewidziano też dodatkowy pokój - gabinet lub sypialnię gościnną, łazienkę, kotłownię, oraz ładny garaż z zapleczem gospodarczym. Na piętrze mamy trzy bazowe sypialnie z dwiema łazienkami (w tym apartament rodziców z łazienką i garderobą), oraz miejsce na dodatkowe dwa pokoje – przestrzeń do dowolnego wykorzystania i aranżacji. Projekt domu Dom z widokiem E jest luksusową willą o dużej przestrzeni, do wygodnego komfortowego mieszkania. Dla dowolnie dużej rodziny. Budynek dzięki zastosowaniu energooszczędnych rozwiązań instalacyjnych i nowoczesnych ciepłych materiałów, będzie niedrogi w późniejszej eksploatacji. Zapraszamy do zapoznania się z pełną ofertą pracowni MG Projekt tej serii: Dom z widokiem, Dom z widokiem 2, Dom z widokiem 2C, Dom z widokiem 3, Dom z widokiem 3F, Dom z widokiem 4, Dom z widokiem 5, Dom z widokiem 6, Dom z widokiem 6B, Dom z widokiem B.
-
Projekt szamba szczelnego0 zł399 zł
-
Charakterystyka energetyczna0 zł200 zł
-
Pakiet energooszczędny0 zł150 zł
-
Dziennik budowy0 zł60 zł
-
Tablica budowy0 zł120 zł
-
Wersja elektroniczna projektu550 zł
-
Pakiet kosztorys inwestorski550 zł
-
Pakiet ogrzewanie podłogowe470 zł
-
Powietrzna pompa ciepła470 zł
-
Pakiet wentylacja mechaniczna i kominek DGP470 zł
-
Dodatkowy egzemplarz projektu500 zł
-
Pakiet kotłownia na paliwo stałe470 zł
-
Pakiet instalacja fotowoltaiczna470 zł
-
Pakiet klimatyzacja w domu470 zł
-
Pakiet gruntowa pompa ciepła470 zł
-
Pakiet odkurzacz centralny470 zł
-
Pakiet płaszcz wodny470 zł
-
Pakiet kominek DGP399 zł
-
Projekty altan i grillów ogrodowych650 zł
-
Pakiet instalacja solarna470 zł

opieką konsultacyjną w trakcie budowy domu