Willa Floryda







Projekt domu Willa Floryda to luksusowa rezydencja dla 4-7 osobowej rodziny. Bardzo komfortowa, wygodna piętrowa Willa Floryda przeznaczona jest na podmiejską ładną działkę. Architektura Willi Florydy łączy w sobie nowoczesną formę i funkcjonalność rozwiązań. Zarówno okazały wygląd zewnętrzny, jak i obszerne reprezentacyjne wnętrze mają za zadanie podkreślać status i dobry gust właścicieli.
Bryła budynku Willa Floryda
Front domu Willa Floryda został ozdobiony kamienną dwukondygnacyjną ścianą. Wejście szerokimi drzwiami wiedzie przez zadaszony podest wprost do przeszklonego przedsionka, holu i salonu z pięknym wysokim oknem z widokiem na ogród. Osoba wchodząca do domu ma to wielkie okno i wysoki salon przed sobą. W elewacji frontowej sprytnie ukryto drzwi do wielkiego garażu pod dachem zadaszonych miejsc parkingowych. Strona ogrodowa domu Willa Floryda to duże przeszklenia, elewacja podzielona na poziome pasy, oraz wiszące balkony i tarasy - wszystko otwierające wnętrze domu na otaczający ogród.
Willa Floryda wnętrze
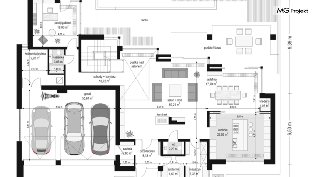
We wnętrzu domy Willa Floryda zaprojektowano na parterze piękną reprezentacyjną przestrzeń dzienną, z połączonych pomieszczeń holu, salonu, jadalni, pięknej klatki schodowej, oraz dużej kuchni. W projekcie Willa Floryda na parterze znajdują się dodatkowe pomieszczenia gospodarcze, techniczne, oraz potrójny garaż i gabinet. Piętro willi to cztery piękne sypialnie z własnymi garderobami i łazienkami, oraz antresola łącząca piętro z salonem na parterze i pokój rekreacyjny z tarasem. Dom Willa Floryda został zaprojektowany funkcjonalnie i z dużym poszanowaniem przestrzeni. Założeniem było uzyskanie maksymalnie dobrego efektu na nie zbyt dużej powierzchni, żeby nie stracić ludzkiej skali.
Projekt Willa Floryda z pewnością jest propozycją dla majętnych inwestorów, nie szukających jednocześnie taniej, krzykliwej elegancji. Pracownia MGProjekt dysponuje kilkoma wersjami projektu Willa Floryda, ich odbiciami lutrzanymi, oraz wariantami. Według kosztorysantów MGProjekt koszt budowy domu Willa Floryda do stanu surowego zamkniętego to 574448 zł. Zapraszamy do zapoznania się z pełną ofertą pracowni MG Projekt: projekt domu Willa Floryda 2, projekt domu Willa Floryda 3, projekt domu Willa Floryda 4, projekt domu Willa Floryda 5, projekt domu Willa Floryda 6, projekt domu Willa Floryda 7, projekt domu Willa Floryda 8, projekt domu Rezydencja Floryda, projekt domu Rezydencja Floryda 2.
