Parterowy 4







Projekt domu Parterowy 4 to kolejna propozycja z serii cieszących się dużą popularnością projektów Parterowych z MGProjekt. Tym razem to dom o dachu dwuspadowym, prosty w budowie i o nieskomplikowanej bryle. Prosta bryła nie jest jednak nieudanym kompromisem - ciekawe detale, materiały, ładne przeszklenia otwierające wnętrze na ogród tworzą w sumie bardzo atrakcyjny dom jednorodzinny. Całość domu przykrywa prostokątny dwuspadowy dach o kącie nachylenia 25 stopni, kryjący niewielki strych, który stanowi dodatkową przestrzeń do wykorzystania przez domowników - magazyn "rzeczy wszelkich".
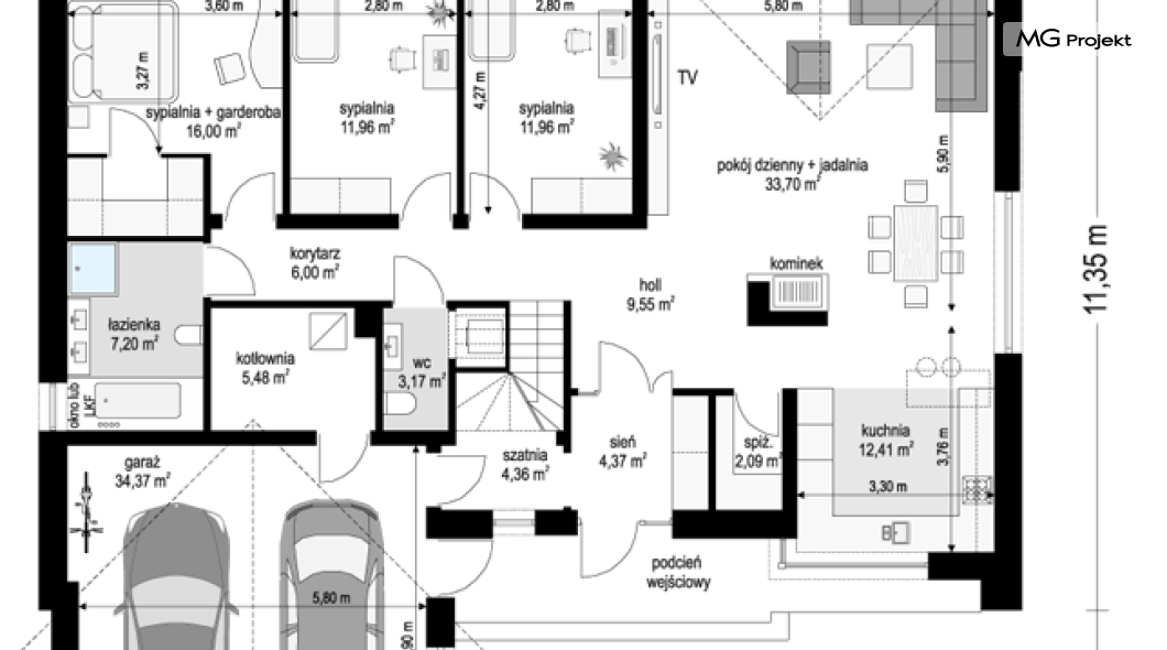
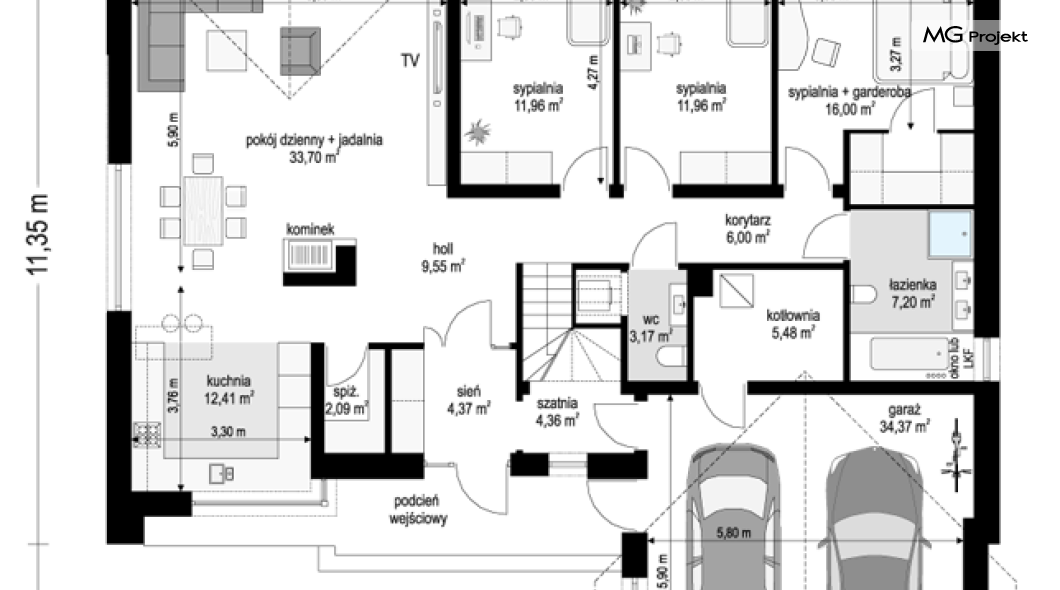
Wnętrze domu Parterowy 4: wszelkie funkcje mieszczą się na jednym poziomie, na parterze. Z ładnego przedsionka domostwa przechodzimy do holu i do części dziennej, z salonem, jadalnią i kuchnią. Kuchnia z narożnym oknem otwiera się na front domu. Obok kuchni mieści się spiżarnia. Z salonu mamy dwa duże okna - z jadalni na ogród, oraz przesuwne drzwi balkonowe - na taras i piękny podcień.Z holu przechodzimy korytarzem do części nocnej z sypialniami. Mieszczą się tutaj sypialnie: rodziców z garderobą, oraz dwa pokoje dzieci z szafami wbudowanymi. Wszystkie pokoje mają wyjścia na taras. Dodatkowo zaprojektowano łazienkę, oraz wc z kącikiem na pralkę i suszarkę. Z sieni mamy przejście przez szatnię do dwustanowiskowego garażu i kotłowni. Na strych wchodzimy schodami dostępnymi z holu. Strych to ponad 60 m2 dodatkowej przestrzeni. Może to być po prostu magazyn, a można z biegiem czasu wykorzystać tą powierzchnię jako poddasze użytkowe - wystarczy dodać kilka okien i już! Projekt domu Parterowy 4 został zaprojektowany w prostej, łatwej do budowy bryle. Budynek ma zwarty plan, będzie niedrogi w ogrzewaniu i tani w późniejszej eksploatacji. Zastosowane materiały i rozwiązania są energooszczędne. Projekt domu Parterowy 4 to doskonała propozycja dla Inwersorów chcących uzyskać maksymalny efekt z zainwestowanych przez siebie pieniędzy. Chcący ładnego, ale i praktycznego, oraz funkcjonalnego mieszkania dla siebie i swojej rodziny.
Projekt domku Parterowy 4 można zamówić w odbiciu lustrzanym. Dostępne są także wariantowe projekty domów z serii Parterowych. Zapraszamy do zapoznania się z pełną ofertą pracowni MG Projekt: Parterowy, Parterowy 2, Parterowy 3.

