Parterowy 4 B







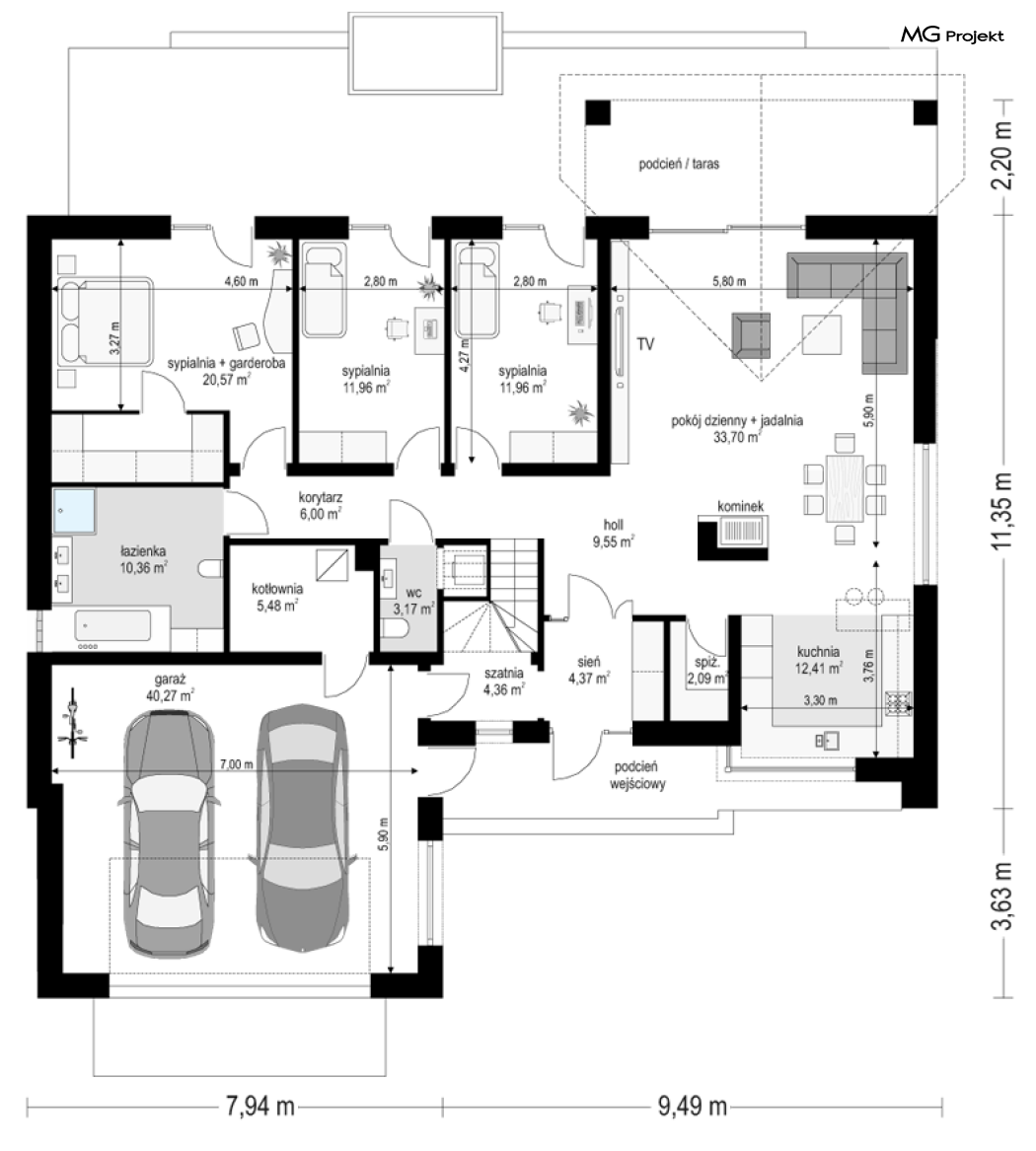
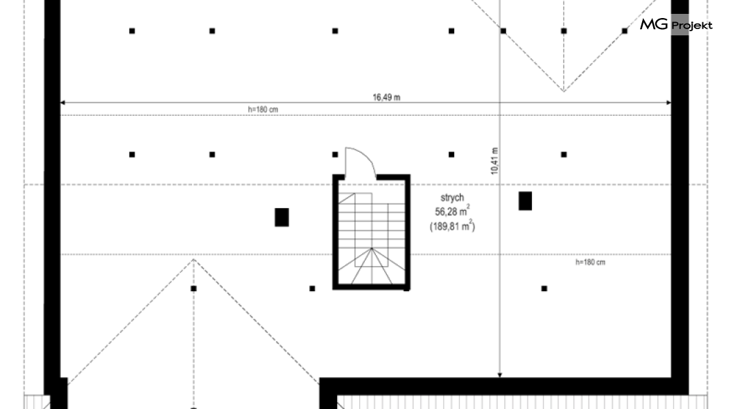
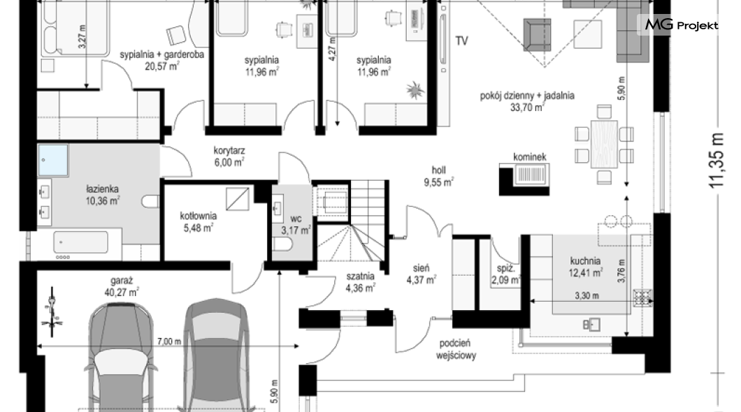
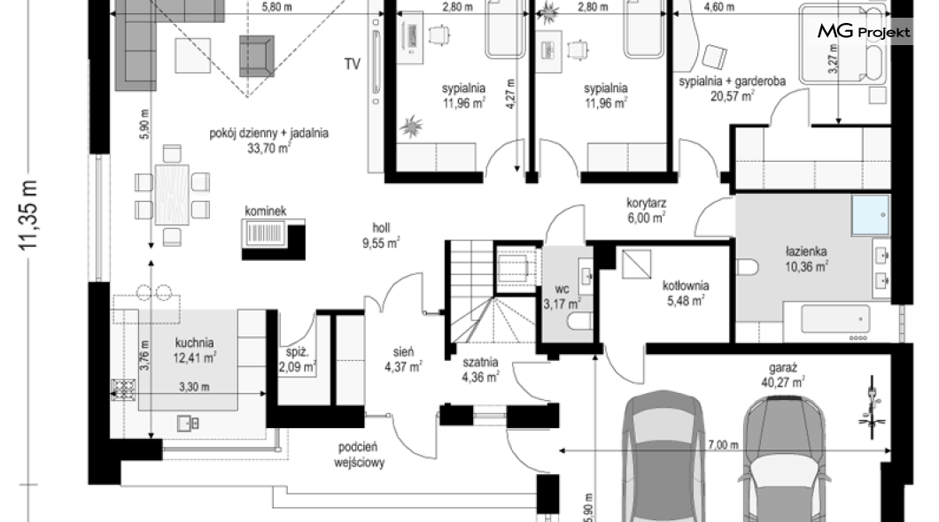
Projekt domu Parterowy 4 B to kolejna propozycja z serii cieszących się dużą popularnością projektów Parterowych z MGProjekt. Jest to poszerzony wariant popularnego projektu Parterowy 4. Dom zaprojektowano jako prostokątną parterową bryłę, przykrytą dwuspadowym dachem, z dodanymi wystającymi częściami garażu i zadaszenia nad tarasem salonu. Budynek ma prostą bryłę, ozdobioną nowoczesnymi detalami i materiałami elewacyjnymi. Duże ładne przeszklenia, podział elewacji na poziome pasy, ciekawa stonowana kolorystyka dodają budynkowi elegancji i sznytu. Front domu urozmaicono ciekawie zakomponowanym podcieniem wejściowym z narożnym oknem kuchennym. Od strony ogrodu elewację ozdabiają ładne przeszklenia z salonu i pokoi sypialnych. Całość budynku przykryta jest łagodnym dachem o kącie nachylenia 25 stopni, w którym kryje się duża przestrzeń strychowa nad parterem do dowolnego wykorzystania. Wszystkie pomieszczenia i funkcje domu mieszczą się na parterze na rozległym jego planie. Do domu wchodzimy szerokimi drzwiami wejściowymi z naświetlem bocznym wprost do przedsionka z szatnią i dalej do otwartego jednoprzestrzennego wnętrza holu, salonu i kuchni. W salonie zaprojektowano centralnie ustawioną ścianę kominkową, oraz drugą ścianę - rozrywkową z telewizorem. Częściowo zakryta ładna kuchnia odgrodzona jest pełnowymiarowym stołem jadalnym. W bok od przestrzeni dziennej przechodzimy korytarzem do części z sypialniami – sypialni rodziców z garderobą, dwóch sypialni dziecięcych, oraz dużej łazienki. W części gospodarczej domu dostępnej z przedsionka znajdziemy podwójny szeroki garaż, oraz pomieszczenie kotłowni. Nad całością domu zaprojektowano dużą przestrzeń strychową do dowolnej aranżacji i wykorzystania. Parterowy 4 B jest powiększoną – poszerzoną wersją bazowego projektu. Budynek ma prostą konstrukcję i nie powinien być trudny ani drogi w budowie. Dzięki zwartej bryłe, dobrym izolacjom termicznym i zastosowanym nowoczesnym instalacjom, dom będzie tani w przyszłej eksploatacji. Parterowy 4 to świetna propozycja dla Inwestorów planujących budować ładny i praktyczny dom parterowy - o z jednej strony prostej architekturze, ale z drugiej strony wyróżniający się ciekawym detalem.Projekt domku Parterowy 4 B można zamówić w odbiciu lustrzanym. Dostępne są także wariantowe projekty domów z serii Parterowych. Zapraszamy do zapoznania się z pełną ofertą pracowni MG Projekt: Parterowy, Parterowy 2, Parterowy 3.
