Oszust 2







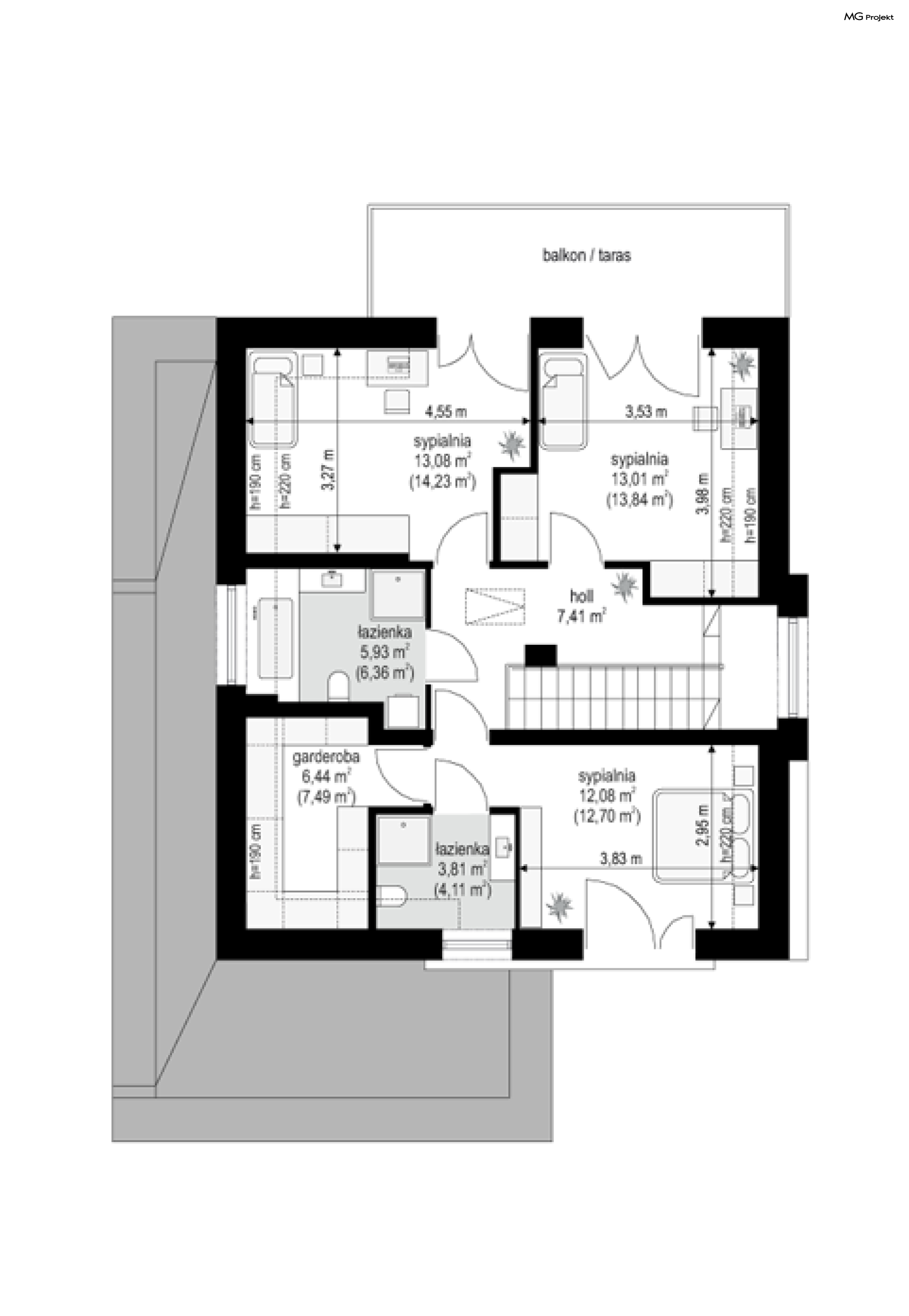
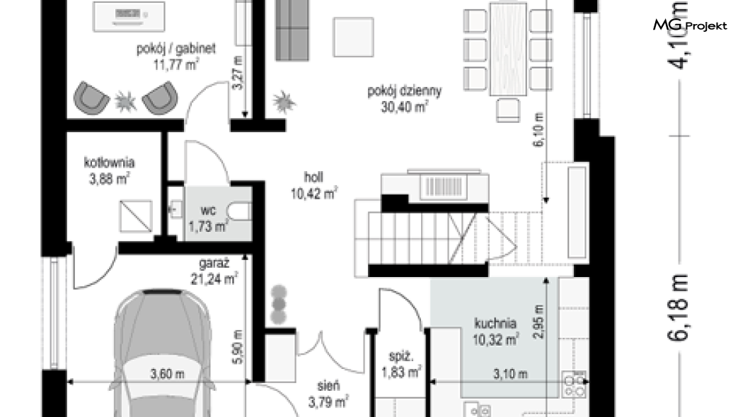
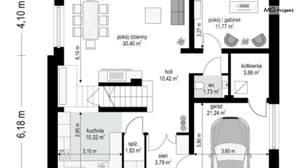
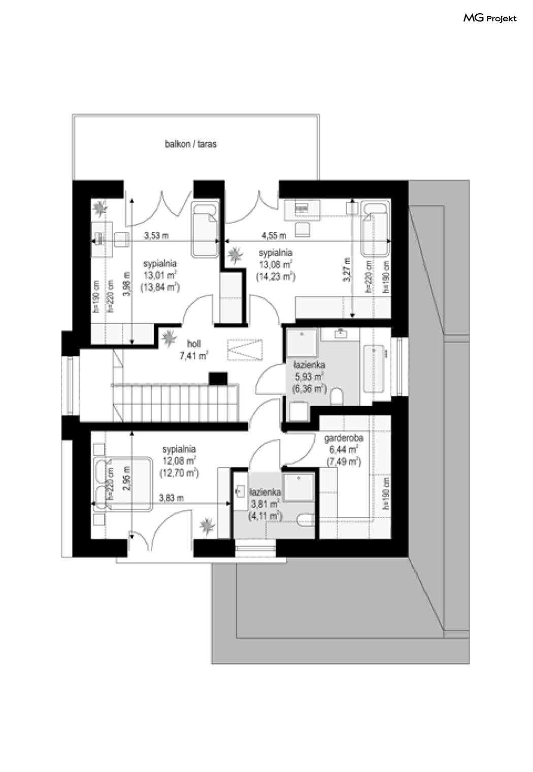
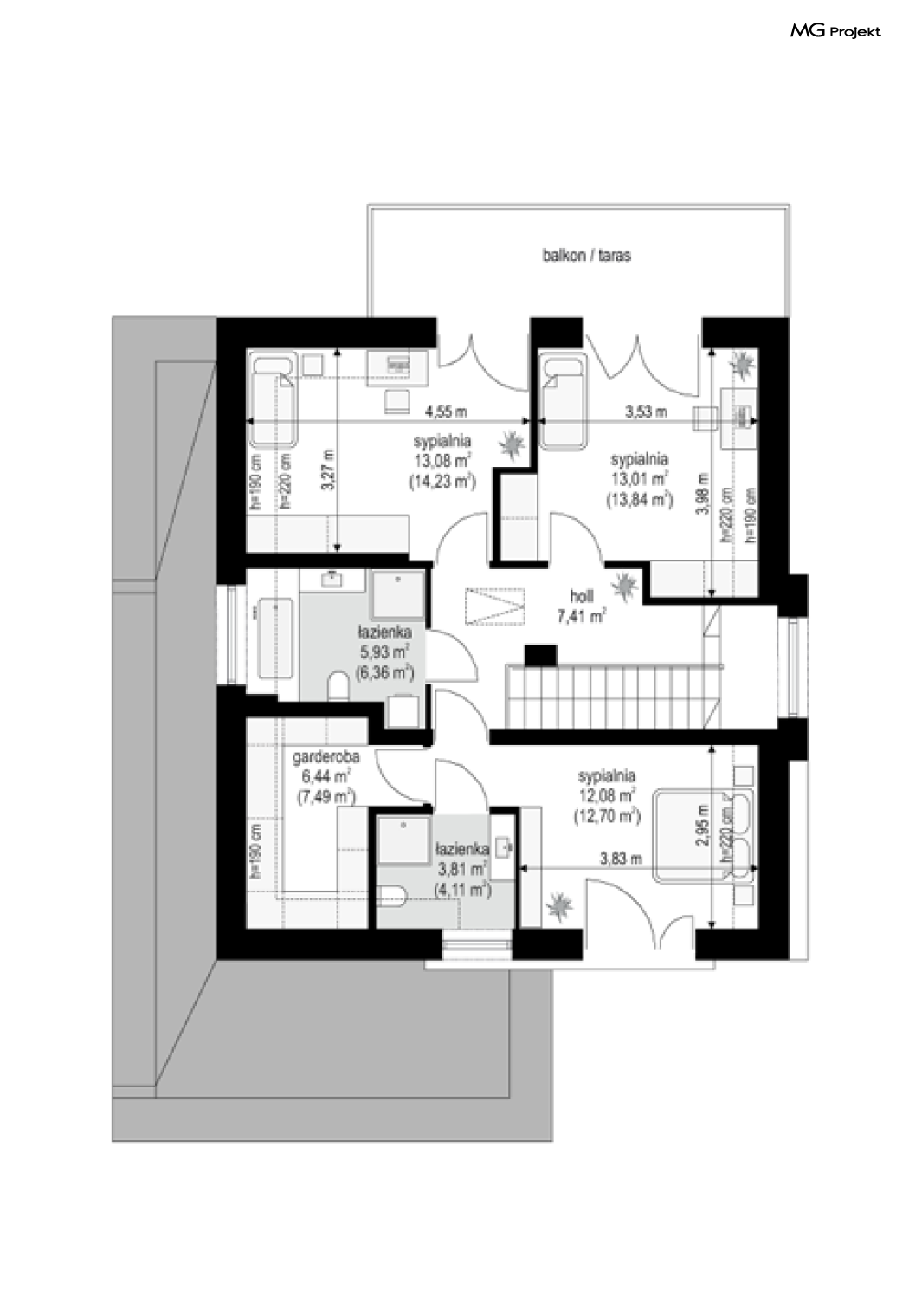
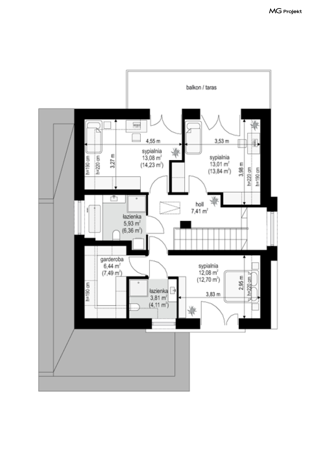
Projekt domu Oszust 2 jest wariantową wersją projektu Oszust - z mniejszą powierzchnią zabudowy, z pojedynczym garażem, oraz z węższą szerokością elewacji frontowej. Projekt jest propozycją dla Inwestorów chcących wybudować piętrowy dom, ale posiadających działkę, na której zapisy urbanistyczne wykluczają taką możliwość. Zatem projekt domu Oszust 2, choć wygląda prawie jak budynek piętrowy i ma górną kondygnację z pomieszczeniami praktycznie bez skosów, jest formalnie projektem domu z poddaszem użytkowym. Architektura domu Oszust 2 jest nowoczesna - łączą się tu w atrakcyjną całość duże przeszklenia, poziome pasy wykończeń elewacji w kontrastujących barwach, dobudowane parterowe bryły wystającego garażu i zadaszenia tarasu. Zwartą bryłę przykrywa czterospadowy dach. Dzięki różnicy w wysokości dachu, na piętrze mieszczą się normalne duże okna doświetlające pokoje górnej kondygnacji. Wnętrze domu : do domu wchodzimy przez wygodny przedsionek do holu i do jednoprzestrzennej części dziennej z wyeksponowaną na środku salonu ścianą kominkowo – telewizyjną, ze schodami na piętro w tle. Od frontu mamy wygodną kuchnię ze spiżarnią, a od ogrodu dodatkowy pokój – gabinet i wc. Z sieni przechodzimy też do garażu i kotłowni. Duże przeszklenia salonu otwierają wnętrze domu na zadaszony taras i otaczający ogród. Na górze mamy oddzielny apartament rodziców z własną łazienką i garderobą, oraz dwie sypialnie dziecięce z ogólną łazienką. Na poddaszu niemal na całej powierzchni uzyskano wysokość stania - nie ma tu skosów utrudniających poruszanie się. Projekt domu Oszust 2 mimo w sumie niedużej powierzchni użytkowej mieści w sobie cały potrzebny program funkcjonalny do w pełni komfortowego życia kilkuosobowej rodziny. Dom zaprojektowano z nowoczesnych i energooszczędnych materiałów. Będzie tani w eksploatacji, a jednocześnie niedrogi i nietrudny w budowie. Zapraszamy do zapoznania się z pełną ofertą pracowni MG Projekt: https://www.mgprojekt.com.pl/oszust, https://www.mgprojekt.com.pl/oszust-wariant-b, https://www.mgprojekt.com.pl/oszust-2.
