Dom na Dębowej







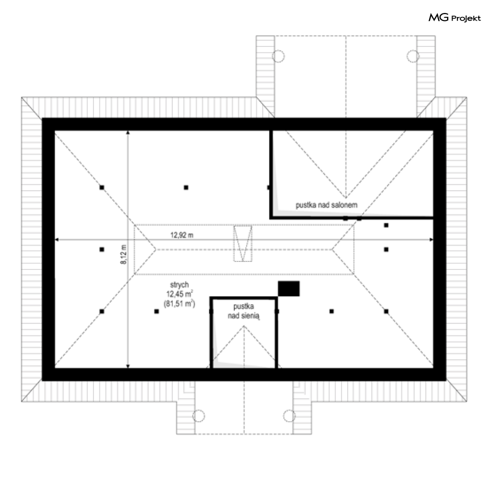
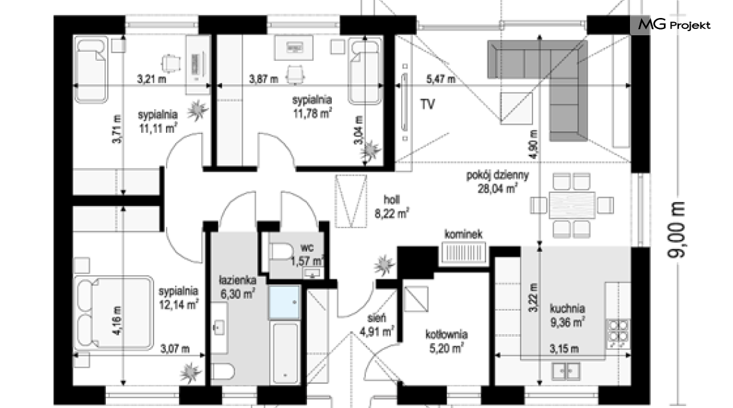
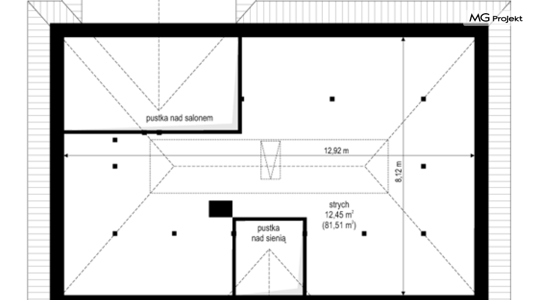
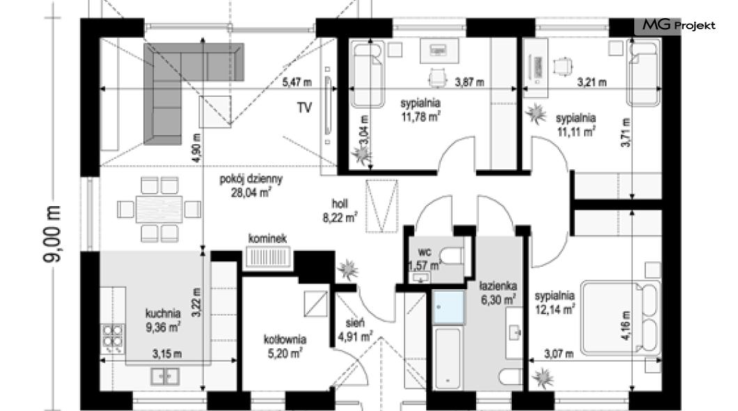
Projekt domu Dom na dębowej to projekt domku jednorodzinnego, dla rodziny 4osobowej, zaprojektowany w stylistyce dworkowej. Prostokątna parterowa bryła domu, przykryta została czterospadowym dachem. Na środku elewacji frontowej umieszczono reprezentacyjny portyk wejściowy, z eleganckimi drzwiami wejściowymi z naświetlami. Symetrię elewacji frontowej przełamano we wnętrzu, aby zaprojektować funkcjonalne nowoczesne wnętrze domu. Od strony ogrodu zaprojektowano piękne szerokie przeszklenie otwierające salon na zadaszony taras i ogród. Wnętrze domu ma dość typowy, funkcjonalny układ, z podziałem na część dzienną z salonem i nocną z sypialniami. Do budynku wchodzimy przez wygodny przedsionek połączony z kotłownią, do holu i pokoju dziennego. połączonego z otwartą kuchnią. W salonie przewidziano miejsce na meble wypoczynkowe, stół jadalny, jak również ścianę telewizyjną i osobno – kominkową. W części nocnej znajdziemy trzy sypialnie z szafami wbudowanymi i łazienkę z osobnym wc. Dom jak na swoją niewielką powierzchnię jest bardzo funkcjonalny i wygodny. Projekt domu Dom na Dębowej ma pokoje kształtne i niemałe. Przestrzeń dzienna to łącznie prawie 50 m2. Budynek ma prostą bryłę i konstrukcję. W wersji ekonomicznej z konstrukcją dachu z wiązarów, część murowana ogranicza się do ścian zewnętrznych parteru. Prosta i szybka budowa, nieskomplikowana konstrukcja, te elementy pozwolą zaoszczędzić czas i pieniądze. W budynku zaprojektowano bardzo dobre izolacje termiczne, oraz nowoczesne instalacje, dzięki czemu będzie tani w późniejszej eksploatacji. Projekt domu Dom na Dębowej to idealna propozycja projektu dla osób lubiących klasyczną architekturę dworkową i rezydencjonalną, ale którzy nie chcą wydawać majątku na swój przyszły dom, tylko zbudować ekonomiczny, wygodny, a przy tym ładny domek. Zapraszamy !

