Hiacynt







Projekt domu Hiacynt to projekt parterowego domu jednorodzinnego z poddaszem użytkowym, o powierzchni użytkowej 210,18 m2 (kubatura 1128,00 m³). Projekt Hiacynt przeznaczony jest dla 4-6 domowników. Dom Hiacynt zwieńczony jest wielospadowym dachem. Kąt nachylenia dachu wynosi 35 stopni. Architektura projektu Hiacynt jest nowoczesna i łączy w sobie tradycyjną bryłę ze spadzistym dachem z atrakcyjnym detalem architektonicznym. Projekt Hiacynt można zrealizować na działce o minimalnych wymiarach 24,19x26,46 m.
Projekt domu Hiacynt bryła budynku
Bryłę projektu Hiacynt zaplanowano na planie litery "T" - poddasze przekryte jest dachem w literę "L", a fragmenty zadaszenia nad garażem, podestem wejściowym i tarasem przykryto dodatkowymi płaskimi dachami. W elewacjach budynku zastosowano poziome pasowe podziały o zróżnicowanej kolorystyce i materiale. Od dołu mamy tu przeszklenia, potem nadproża wieńczące kondygnację parteru i wreszcie pas poddasza ze ścianami kolankowymi i dachem. Ten projekt parterowego domu jednorodzinnego ma duże okna, które otwierają wnętrze na ogród. Okładziny ścian z betonu architektonicznego i drewna są niewątpliwie ozdobami budynku i podkreślają jego nowoczesny charakter i styl życia domowników.
Projekt domu Hiacynt wnętrze
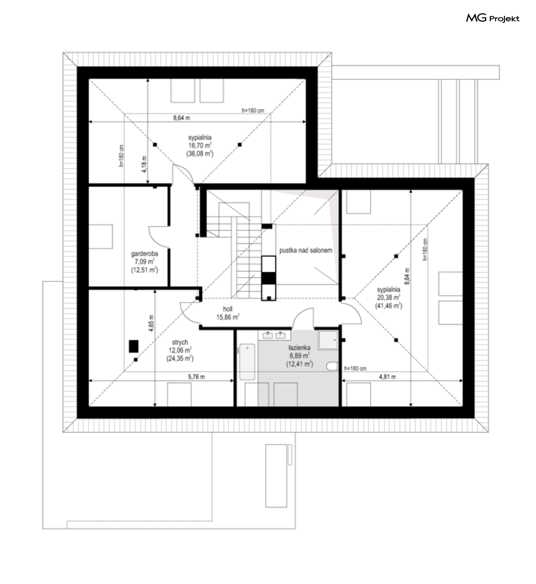
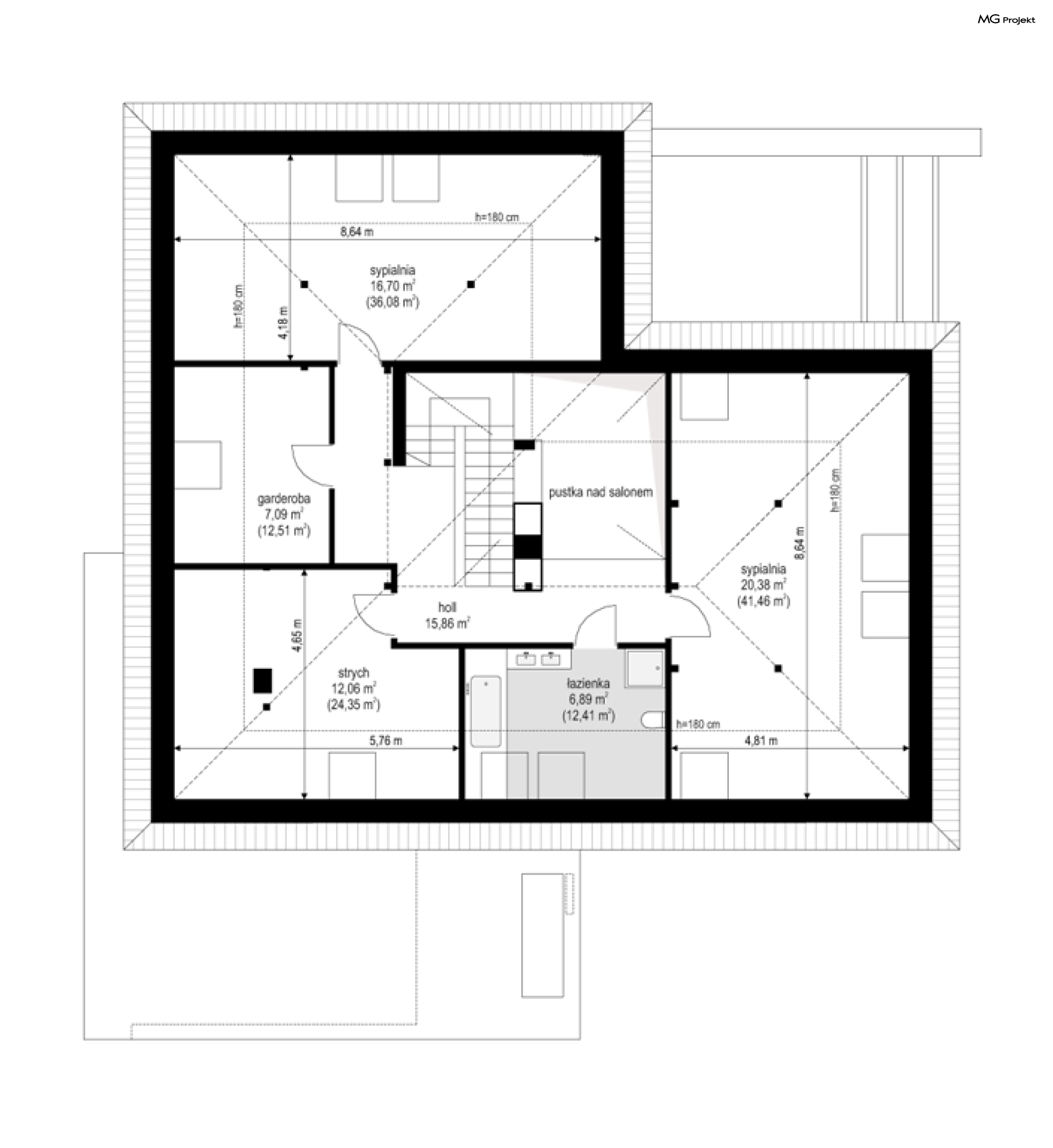
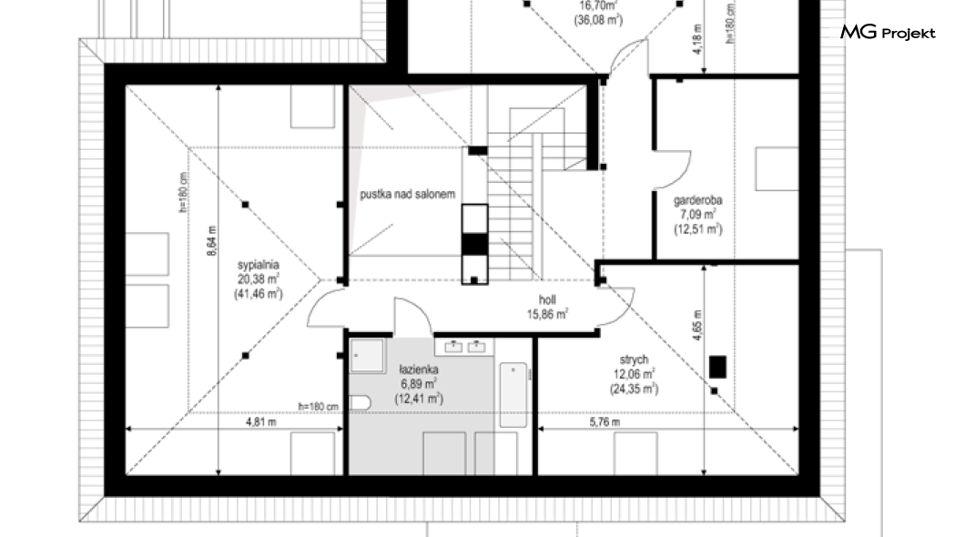
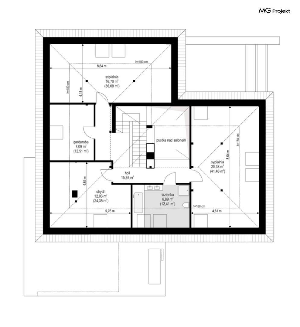
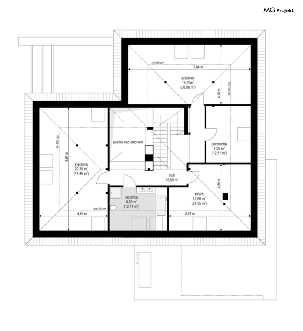
Wnętrze projektu domku jednorodzinnego Hiacynt podzielono na część dzienną z otwartą przestrzenią salonu z otwarciem — pustką z antresolą na poddaszu, na część gospodarczą budynku — z garażem i pomieszczeniami gospodarczymi, oraz na dwie części sypialniane: na parterze, z sypialnią rodziców i dodatkowym pokojem, z dwiema lub trzema sypialniami na poddaszu.
Gotowy projekt domu Hiacynt 1 ma bardzo elastyczny program funkcjonalny — może być wykorzystany w różny sposób. Można mieszkać tylko na parterze albo zagospodarować całe wnętrze budynku. Dom może "rosnąć" i zmieniać się wraz z potrzebami domowników. Powierzchnia użytkowa 210 m2 w zupełności wystarczy dla 4-6 osobowej rodziny.
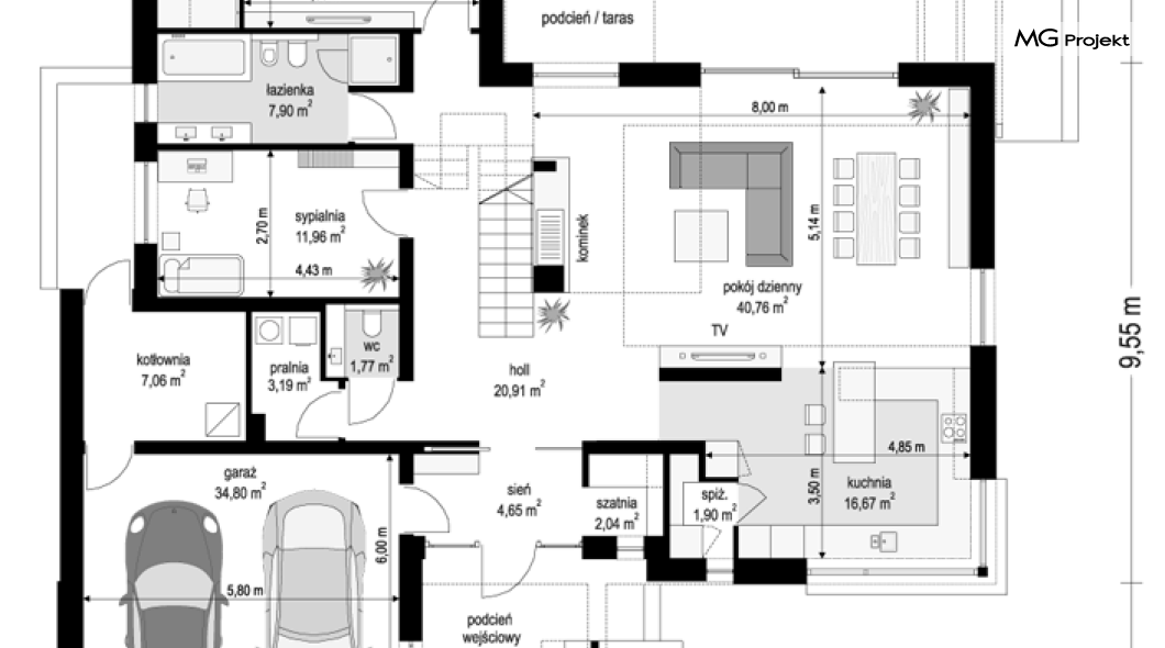
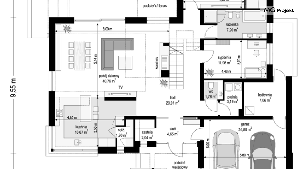
W Hiacyncie na parterze mamy piękny salon z jadalnią. Centralnie ustawione w pokoju dziennym meble wypoczynkowe zorientowane są na ścianę telewizyjną oraz na kominek, będący wraz ze schodami ozdobą wnętrza budynku. Z salonu projektu Hiacynt wychodzimy na częściowo osłonięty pergolą taras z dużym podcieniem. Od frontu przechodzimy do kuchni ze spiżarnią, otwartej na salon i ulicę. Na lewo od reprezentacyjnego przedsionka projektu hiacynt, gdzie znajdziemy także szatnię, przechodzimy do garażu, kotłowni i pralni. W części projektu Hiacynt za schodami mamy apartament rodziców z otwartą na taras sypialnią, garderobami i łazienką, oraz dodatkowy pokój-gabinet lub sypialnię. Na poddaszu budynku mieszczą się dodatkowe pokoje sypialne.
Koszty budowy domu Hiacynt
Gotowy projekt domu jednorodzinnego Hiacynt jest energooszczędny — zastosowanie nowoczesnych materiałów budowlanych, izolacji i instalacji pozwala na tanie utrzymanie domostwa. Dzięki zoptymalizowanej bryle koszty budowy projektu budynku Hiacynt są zminimalizowane.
Projekt domu jednorodzinnego Hiacynt to niewątpliwie willa dla osób lubiących nowoczesną architekturę, wyróżniającą się spośród otaczających budowli bez wyrazu. Dom Hiacynt swoją formą, sylwetką i detalem budynku stara się oddać nowoczesny i bezkompromisowy charakter i styl życia przyszłych domowników.
W gotowym projekcie domu Hiacynt można wprowadzać zmiany, a pracownia do każdej dokumentacji dołącza bezpłatnie "Zgodę na zmiany", dzięki której modyfikacje do projektu Hiacynt może wprowadzić każdy projektant z uprawnieniami w Polsce. Do projektu Hiacynt można zamówić dodatkowe pakiety rysunków, które rozszerzają funkcjonalność domu, poprawiają wygodę użytkowania budynku czy energooszczędność projektu Hiacynt. Są to na przykład pakiet kotłownia na paliwo stałe, dziennik budowy, tablica budowy czy instalacja fotowoltaiczna. Zapraszamy do zapoznania się z innymi projektami: https://www.mgprojekt.com.pl/hiacynt-2, https://www.mgprojekt.com.pl/hiacynt-3, https://www.mgprojekt.com.pl/hiacynt-4, https://www.mgprojekt.com.pl/hiacynt-5, https://www.mgprojekt.com.pl/hiacynt-6, https://www.mgprojekt.com.pl/hiacynt-7, https://www.mgprojekt.com.pl/hiacynt-7-b, https://www.mgprojekt.com.pl/hiacynt-8. Projekty domów Hiacynt z pracowni MGProjekt dostępne są w odbiciu lustrzanym.

