Parterowy Wąski







Projekt domu Parterowy Wąski to projekt parterowego domu jednorodzinnego, nawiązującego do cieszących się popularnością domów z serii ”Parterowy”. Tym razem proponujemy dom na wąską działkę o szerokości poniżej 20 m - prezentujemy dwie wersje architektury: tradycyjną - Parterowy Wąski 1 oraz nowoczesną – Parterowy Wąski 2.
Architektura domu Parterowy Wąski
W projekcie domu Parterowy Wąski bryła budynku jest prostokątna, przykryta dwuspadowym dachem, z dobudowanym gankiem wejściowym, oraz wysuniętą sypialnią przykrytą poprzecznym dachem. Elewację frontową projektu Parterowy Wąski ozdobiono pięknym wejściowym portykiem z kolumnami, przez który - przez drzwi z naświetlami wchodzimy do wnętrza. Od strony ogrodowej projekt domu Parterowy Wąski ma szerokie przeszklone drzwi z salonu na taras i podcień. Tradycyjna architektura projektu Parterowy Wąski, zaakcentowane wejście, okna z podziałami, przywołują wrażenie stylowej willi - niewielkiej ale bardzo reprezentacyjnej.
Projekt domu Parterowy Wąski wnętrze
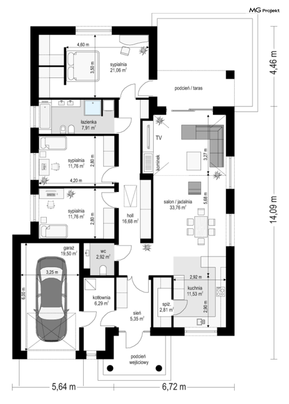
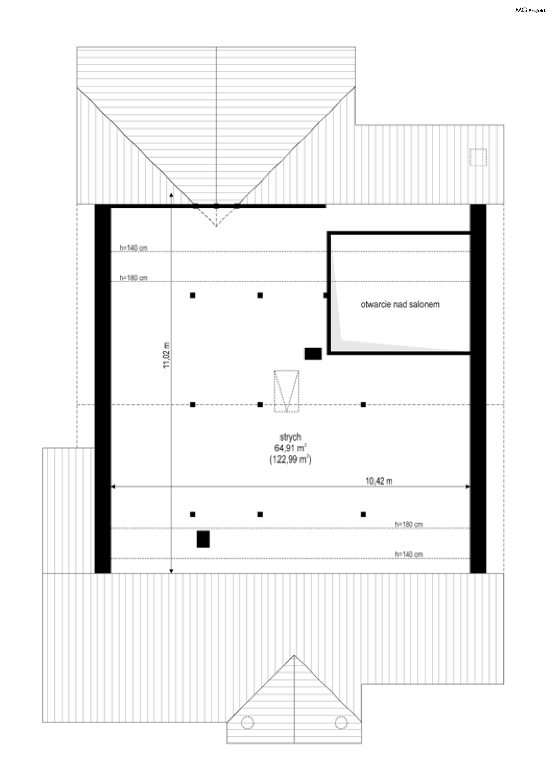
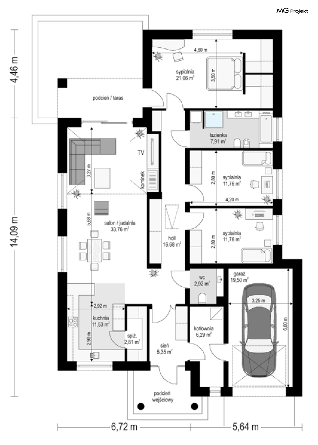
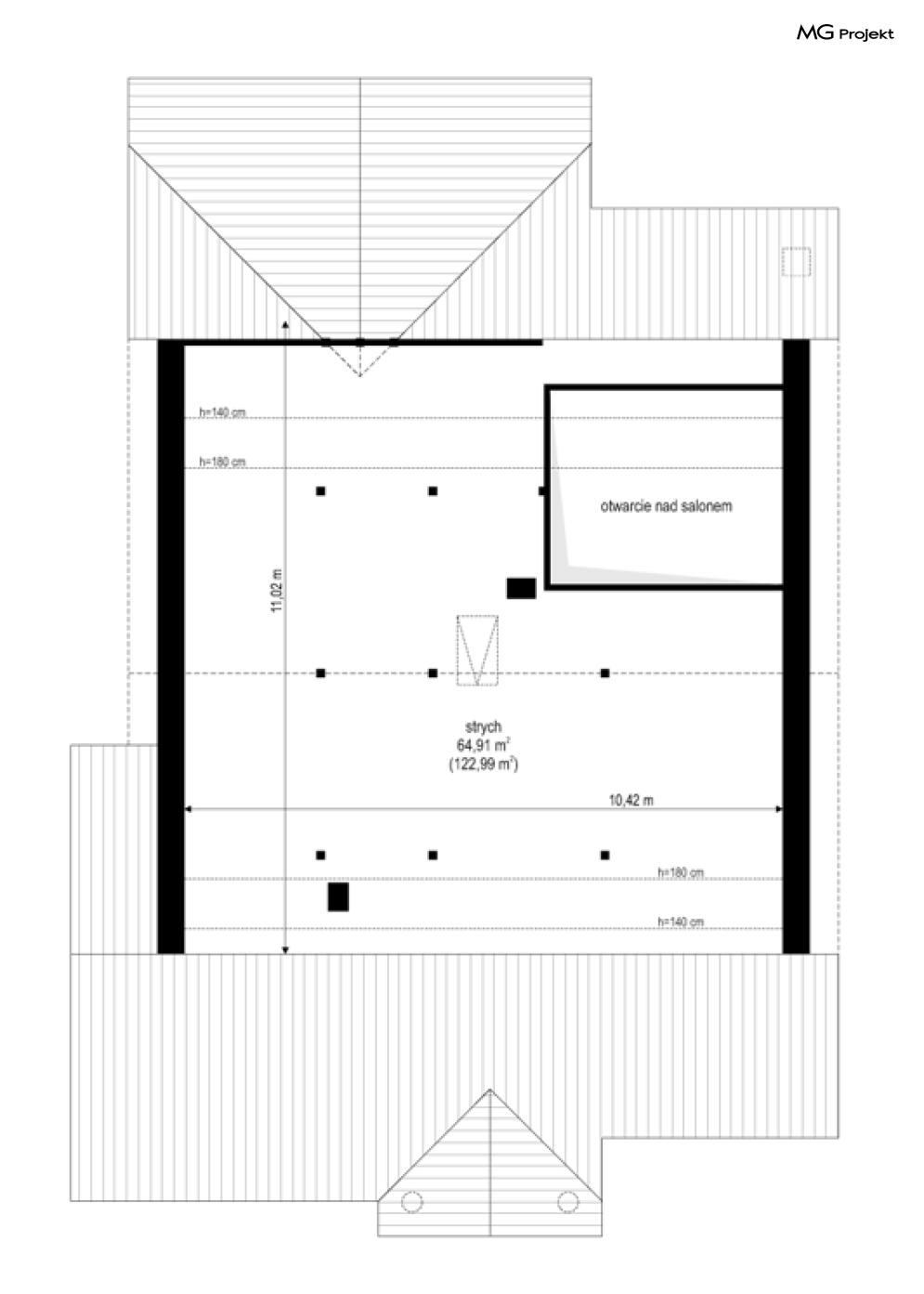
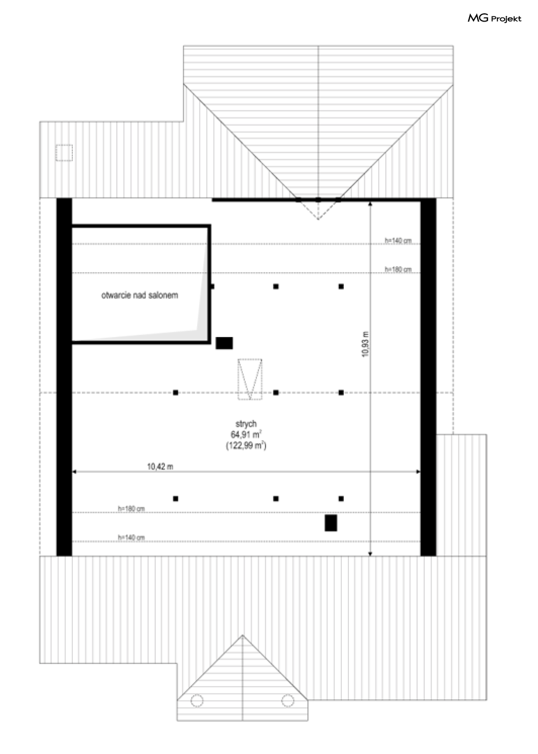
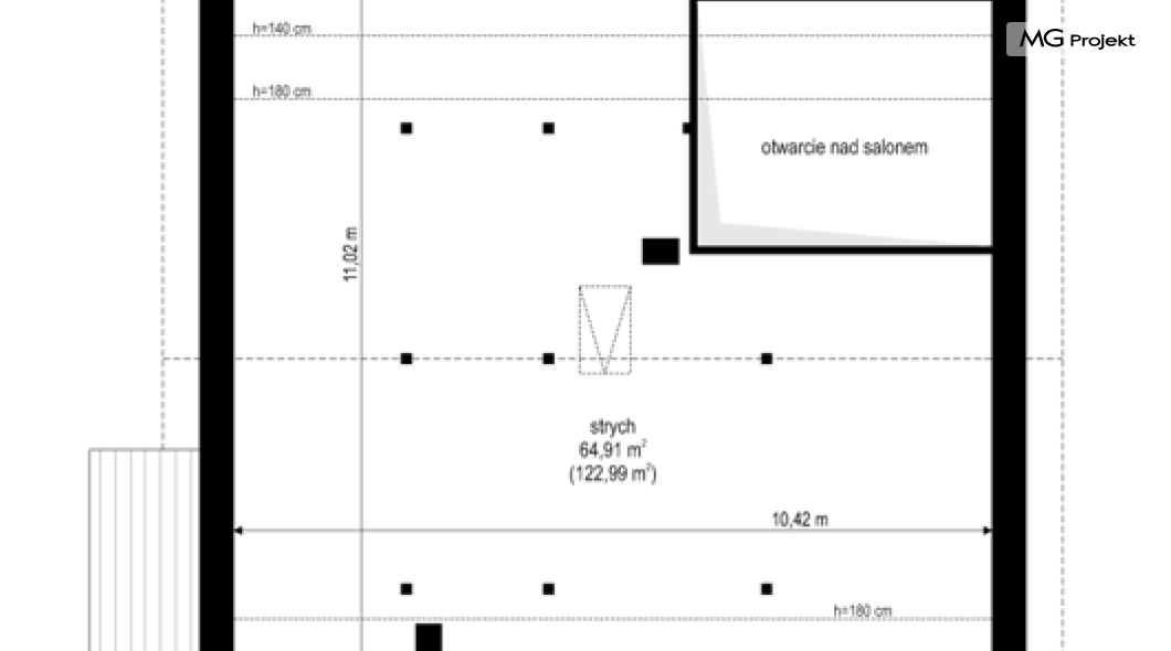
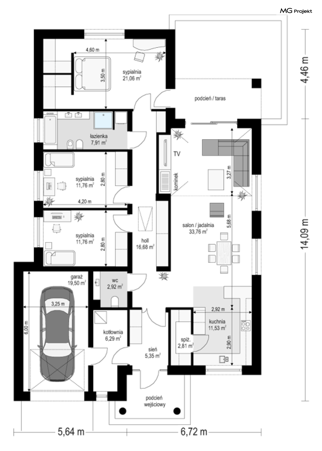
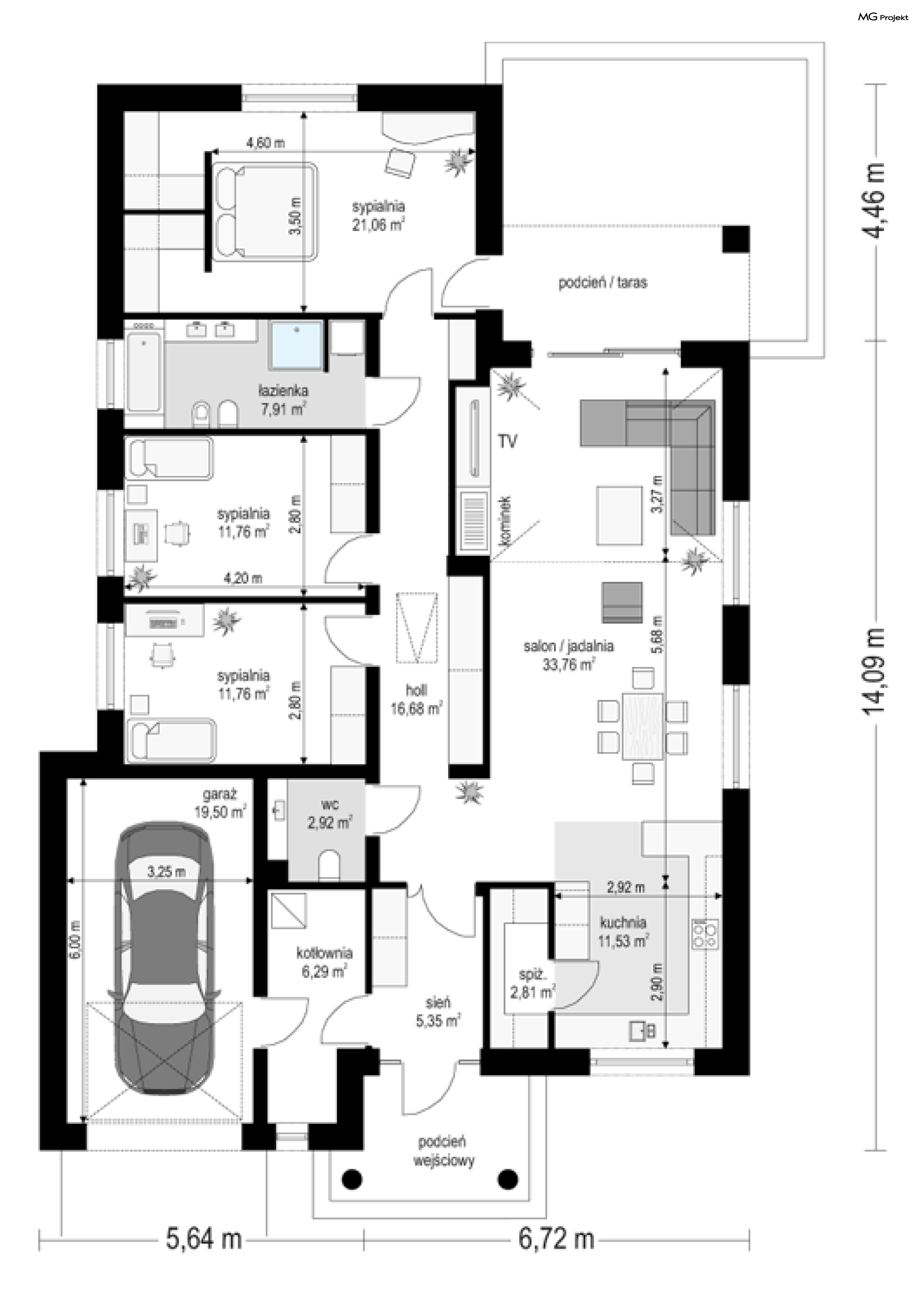
W projekcie domu jednorodzinnego Parterowy Wąski wnętrze parteru podzielone zostało na część dzienną - z salonem, cześć gospodarczą - z garażem i kotłownią, oraz sypialnie. Do wnętrza budynku wchodzimy wygodnym przedsionkiem, do holu połączonego z salonem z jadalnią i kuchnią ze spiżarką. Salon w projekcie domku Parterowy Wąski ma podniesiony aż do dachu sufit nad częścią z meblami wypoczynkowymi, kominkiem i ścianą TV. Na lewo od wejścia z przedsionka projektu Parterowy Wąski przechodzimy do kotłowni i garażu. Przechodząc holem i korytarzem wgłąb domku, trafiamy do sypialni - rodziców z garderobami, dwóch dziecięcych i dużej łazienki. W projekcie domu Parterowy Wąski nad parterem mamy do dyspozycji duży strych, który może być przestrzenią magazynową, lub po doprojektowaniu schodów można go zaadaptować na dodatkowe poddasze użytkowe powiększając w ten sposób powierzchnię użytkową projektu domku Parterowy Wąski – jeśli oczywiście zajdzie taka potrzeba.
Parterowy Wąski budowa
Niewielki projekt domu Parterowy Wąski został zaprojektowany jako budynek energooszczędny. Jego bardzo dobre izolacje, nowoczesne instalacje sprawią, że koszt utrzymania budynku będzie niewielki. Projekt domu Parterowy wąski powinien przypaść do gustu osobom, które chcą postawić niewielki, ale w pełni wyposażony dom jednorodzinny, w tradycyjnej architekturze, a dysponują dość wąską parcelą. Projekt domu Parterowy Wąski ma prostą w budowie bryłę - dom będzie więc łatwy do wybudowania i poradzi sobie z tym każdy wykonawca. W wersji podstawowej projekt domu Parterowy Wąski ma nad parterem strop żelbetowy monolityczny i tradycyjną więźbę dachową, ale projekt budynku występuje też w drugiej wersji - bardziej ekonomicznej - z prefabrykowaną więźbą dachową i stropem z wiązarów kratownicowych, których wykonanie z montażem pracownia MG Projekt zaleca w naszym zakładzie prefabrykacji MG Domy. Gotowy projekt domu Parterowy Wąski można zamówić także w wersji odbicia lustrzanego.

