Willa Floryda 5








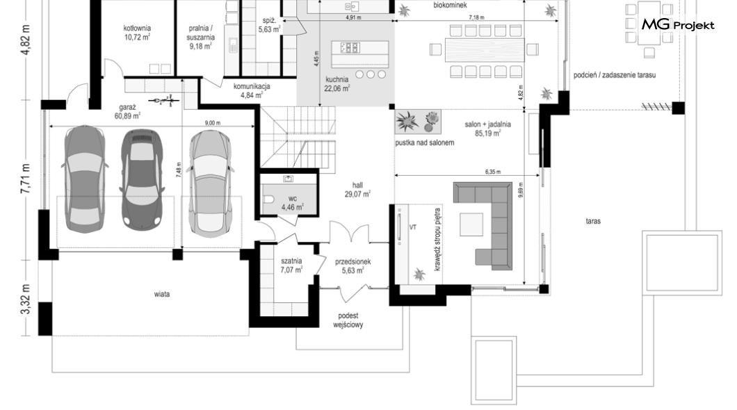
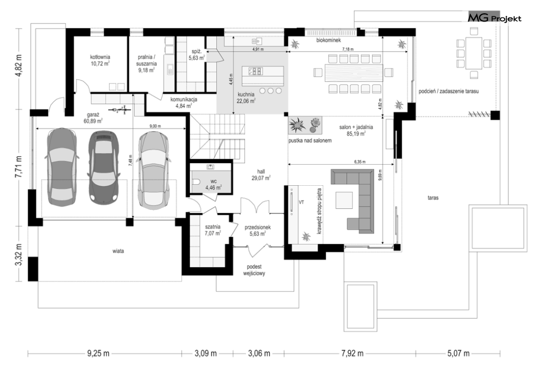
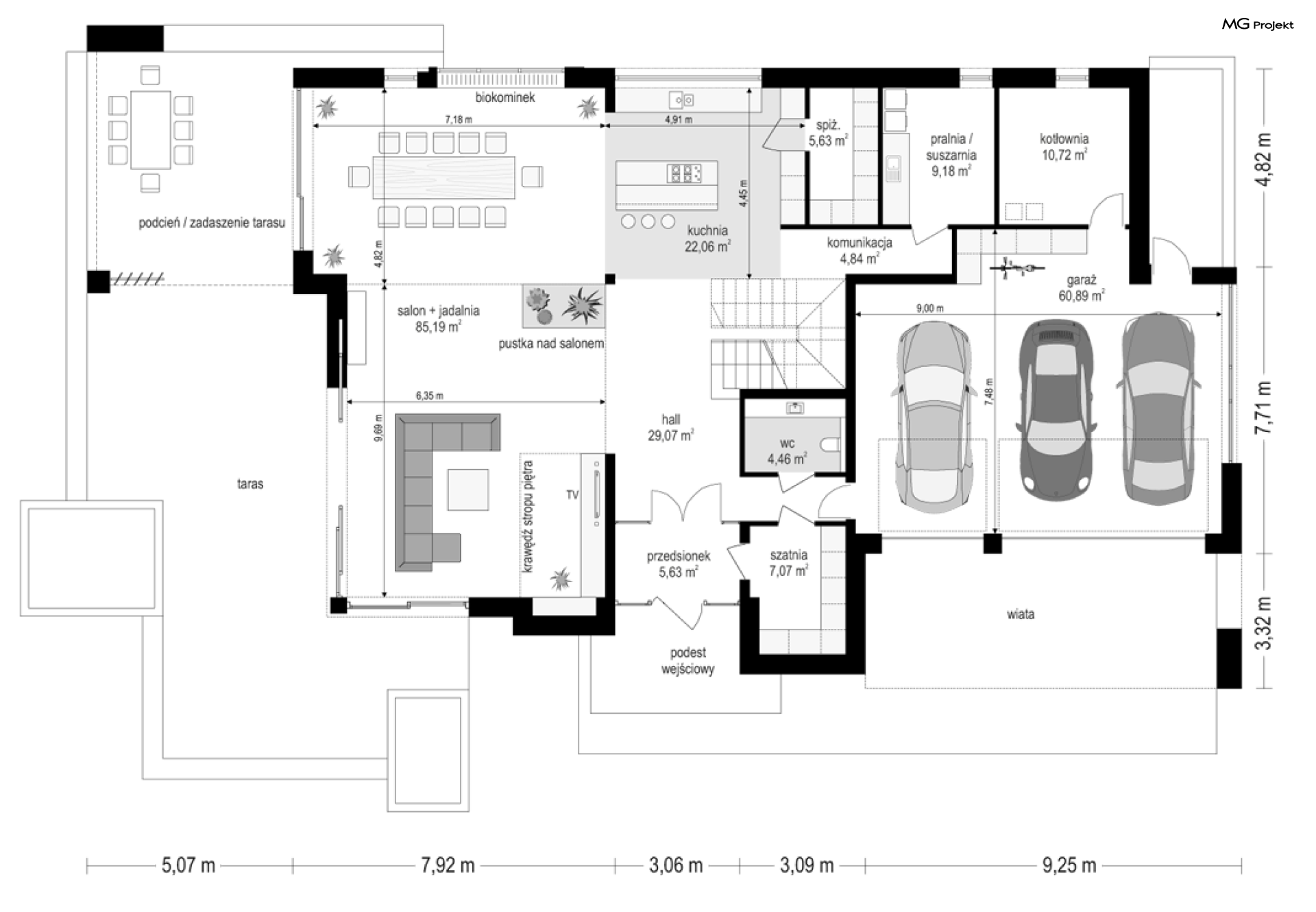
Projekt domu Willa Floryda 5 jest kolejnym z projektów luksusowych rezydencji z serii „Willa Floryda”. Dom jest komfortową, piętrową willą, przeznaczoną na działkę z bocznym lub frontowym ogrodem. Architektura domu łączy w sobie nowoczesną formę z funkcjonalnie rozwiązanym wnętrzem. Stylowa urozmaicona bryła, oraz reprezentacyjne wnętrze podkreślą status i dobry gust właścicieli. Rozczłonkowana piętrowa sylwetka domu przykryta jest czterospadowym dachem, praktycznie niewidocznym z wysokości oczu człowieka, dając wrażenie budynku z płaskim dachem, przy – tak naprawdę zadaszeniu spadzistym ( częstym wymogu w zapisach warunków zabudowy ). Elewacje podzielone zostały na pasy okien przeplecionych białymi belkami oddzielającymi kondygnacje, wprowadzają rytm i porządek. Do budynku wchodzimy eleganckimi szerokimi drzwiami wejściowymi z bocznymi naświetlami pod zadaszeniem balkonu. Front domu ozdabia tutaj pionowa dwukondygnacyjna ściana z naświetlem, duże okna w narożnikach elewacji, oraz wygodna wiata przed trzystanowiskowym garażem.
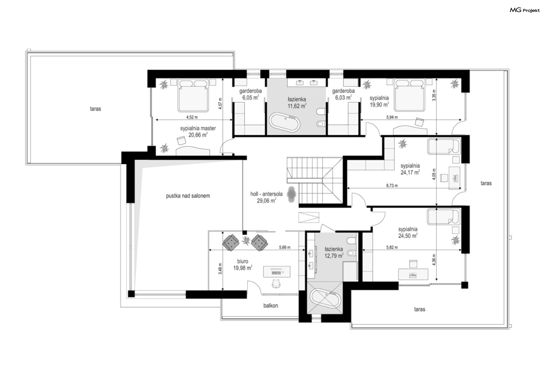
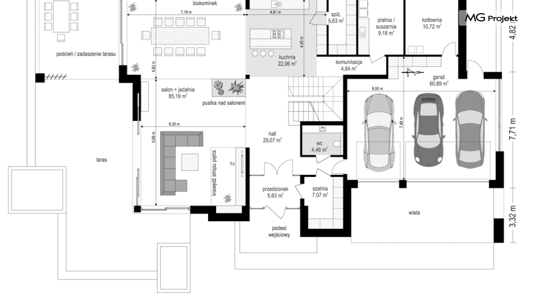
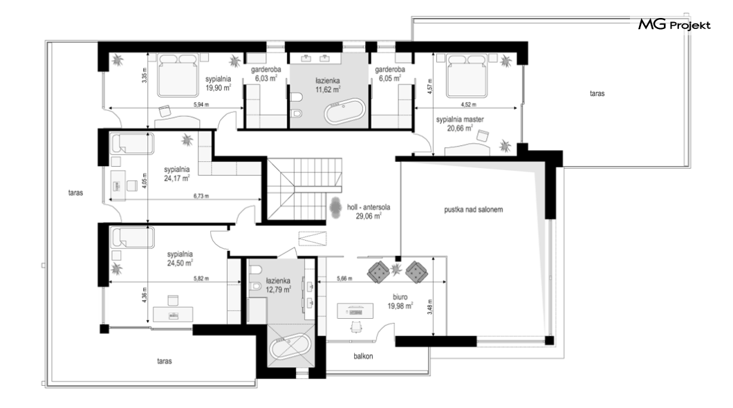
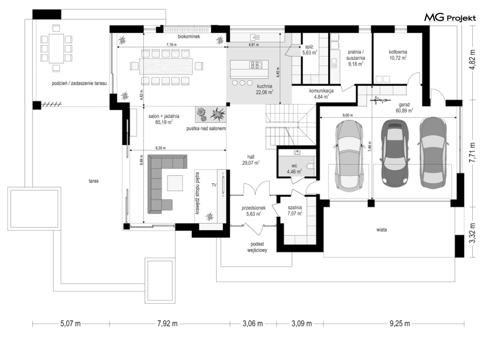
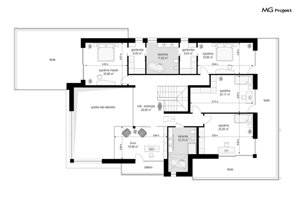
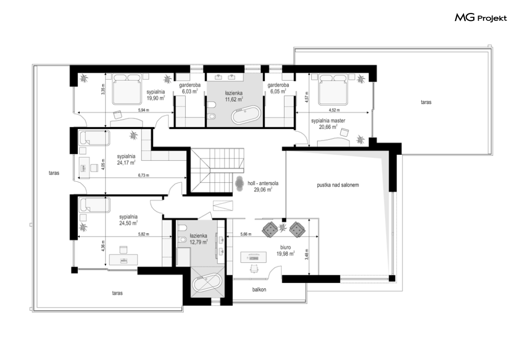
Elewacją ogrodową jest w Willi Florydzie 5 elewacja boczna domu z dużym zadaszonym tarasem - miejscem wieczornych biesiad, oraz wielkimi narożnymi przeszkleniami salonu. Wnętrze parteru to przede wszystkim ogromna jednoprzestrzenna powierzchni połączonych pomieszczeń holu, salonu, jadalni i kuchni. To prawie 150 m2 swobodnej, otwartej przestrzeni dziennej. Mieszczą się tutaj reprezentacyjne schody na piętro, salon z dużą pustką i otwarciem na antresolę powyżej, z rozkosznym kompletem wypoczynkowym i ścianą telewizyjną. Mamy tutaj jadalnię ze stołem na 14 lub więcej osób i pięknym kominkiem gazowym, mamy kuchnię z wyspą, a na środku ogródek na reprezentacyjne rośliny i mnóstwo miejsca na ekspozycję wyjątkowych obrazów i innych dzieł sztuki. Wszystko skąpane jest w świetle szerokich dwukondygnacyjnych przeszkleń. Na zapleczu za kuchnią mamy pomieszczenia gospodarcze jak pralnia, spiżarnia, czy kotłownia. Przy wejściu : szatnię, toaletę i przejście do trzystanowiskowego garażu. Piętro domu to z kolei sypialnia master z garderobami i łazienką, oraz z dodatkowym rezerwowym pokojem i dwie sypialnie dziecięce z własną drugą łazienką. Nad salonem wisi pięknie przeszklone pomieszczenie biura domowego lub biblioteki, oraz otwierająca się na parter i na ogród antresola. Wszystkie pokoje na piętrze mają swoje wyjścia na okalające tarasy. Sypialnia master ma osobny bardzo duży taras z widokiem na ogród. Willa Floryda 5 to kolejna propozycja dużego luksusowego domu dla odważnych Inwestorów, chcących spełnić swoje marzenia o wyjątkowym miejscu do życia, chcących cieszyć się nietuzinkową - nowoczesną zarazem niekrzykliwą a gustowną architekturą. Zapraszamy do zapoznania się z pełną ofertą pracowni MG Projekt: Willa Floryda 2, Willa Floryda, Willa Floryda 3, Willa Floryda 4, Rezydencja Floryda, Rezydencja Floryda 2.
