Willa rodzinna 2







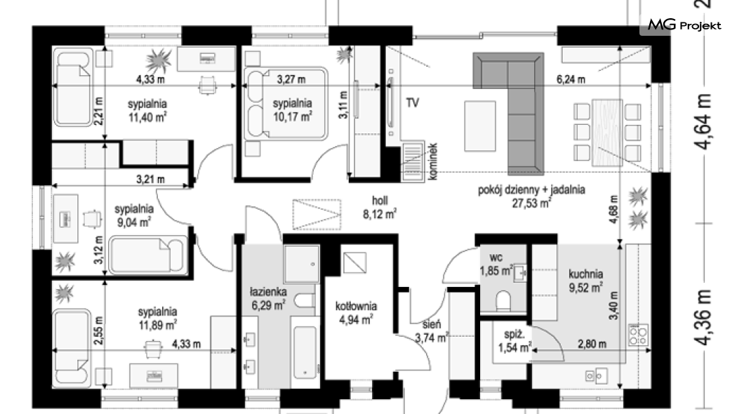
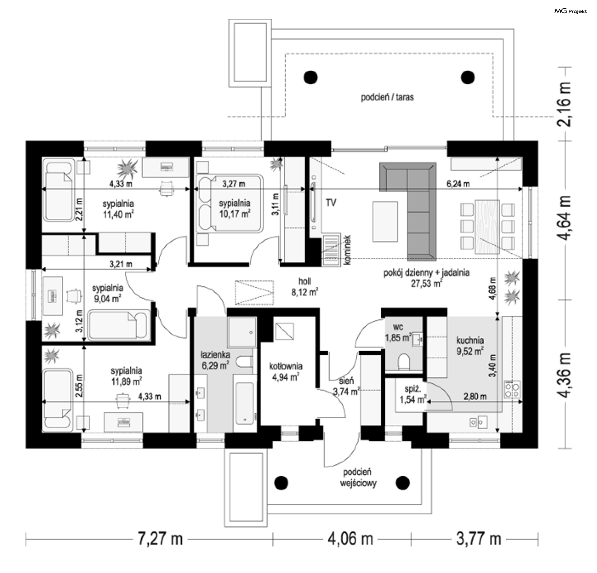
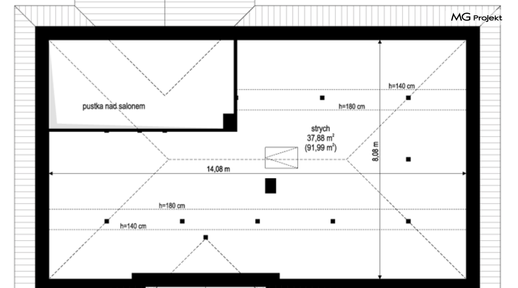
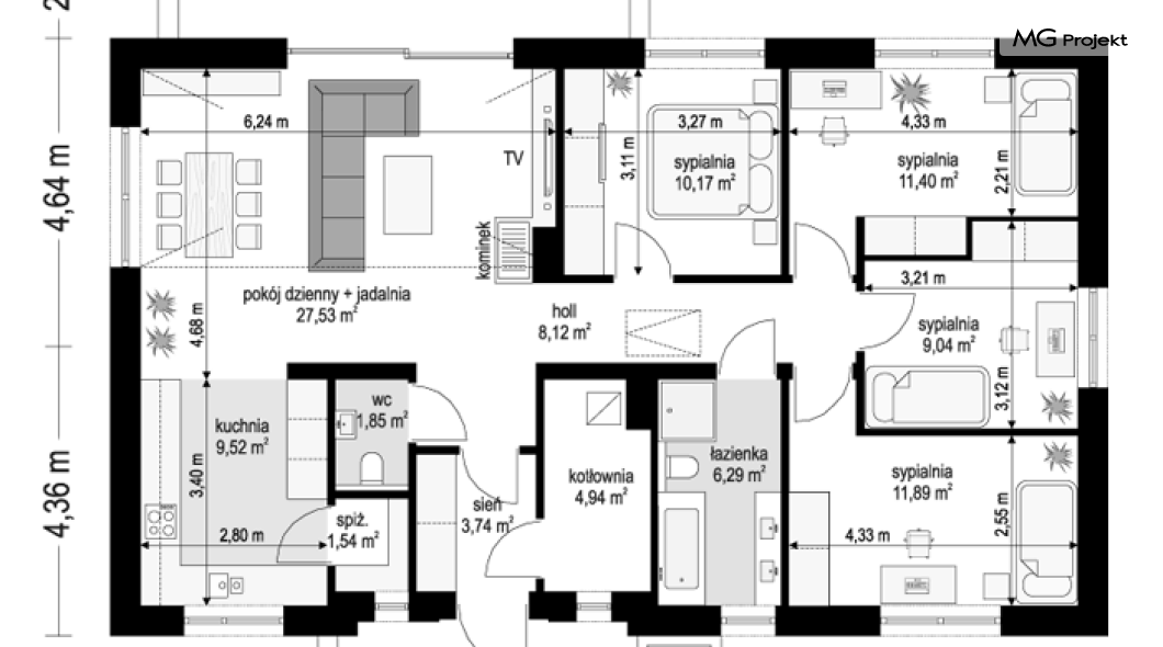
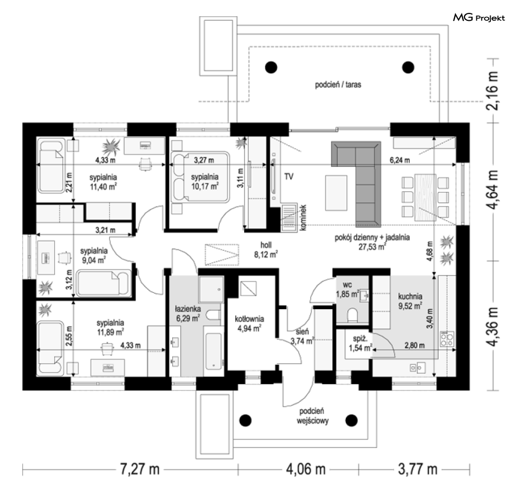
Projekt domu Willa rodzinna 2 to projekt z serii „willi rodzinnych”. Jest to wygodny parterowy dom dla 4-5 osobowej rodziny, z czterema sypialniami, nawiązujący swoją architekturą i stylem do dworkowej architektury 20 wieku. Budynek został zaprojektowany na planie prostokąta, przykryty czterospadowym dachem i urozmaicony dwoma poprzecznymi zadaszeniami. Front domu ozdabia elegancji portyk wejściowy wsparty na dwóch kolumnach, z piękną owalną kolebką i reprezentacyjnymi drzwiami frontowymi z bocznymi naświetlami. Od strony ogrodu elewacja tylna urozmaicona jest zadaszeniem tarasu na kolumnach, z ciekawym belkowaniem, stanowiące oprawę dla pięknego wysokiego przeszklenia salonu z łukowym naświetlem wpuszczającym światło do salonu z otwartym wysokim sufitem. Proporcje bryły, zastosowane materiały i detale tworzą elegancką wysokiej jakości architekturę i stanowią doskonałą oprawę dla komfortu życia w parterowym domu - blisko ogrodu. Oryginalna architektura wyróżnia ten „Willę rodzinną 2” spośród innych porterówek o podobnej wielkości i funkcjonalności. Na gościach z pewnością duże wrażenie zrobi zarówno reprezentacyjne wejście, jak i pustka nad salonem i ogromne przeszklenia otwierające wnętrze pokoju dziennego na ogród. Wnętrze budynku podzielono na część dzienną - z salonem, holem i kuchnią, oraz część nocną. W domu przewidziano aż cztery pokoje sypialne – rzadkość w tego rodzaju projektach. Można oczywiście podzielić je inaczej - na przykład na 3 pokoje, lub jeden z nich przeznaczyć na domowe biuro. Kotłownia dostępna z przedsionka może być zasilana kotłem gazowym lub pompą ciepła, ale też i kotłem na paliwo stałe – stosownie do wyboru Inwestora.Blisko 40-metrowa przestrzeń dzienna z kuchnią, kącikiem jadalnym i wypoczynkowym ze ścianą telewizyjno-kominkową stanowi centrum domu. Otwarty sufit nad salonem dodaje wrażenie przestrzeni wnętrza i uatrakcyjnia je. „Willa rodzinna 2” to doskonała propozycja dla osób planujących budowę wygodnego i funkcjonalnego parterowego domu, energooszczędnego i niedrogiego w późniejszej eksploatacji. Jednocześnie domu będącego spełnieniem marzenia o własnym małym dworku, które tak wielu z nas skrywa głęboko w sercu. Zapraszamy - spełnijcie swoje marzenie!
