Wspaniały 3






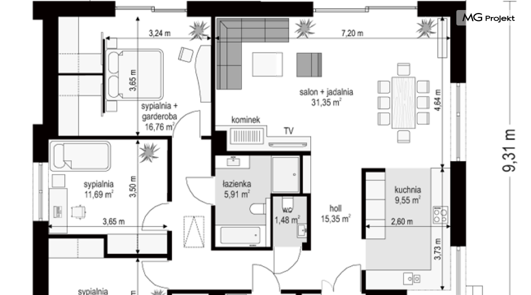
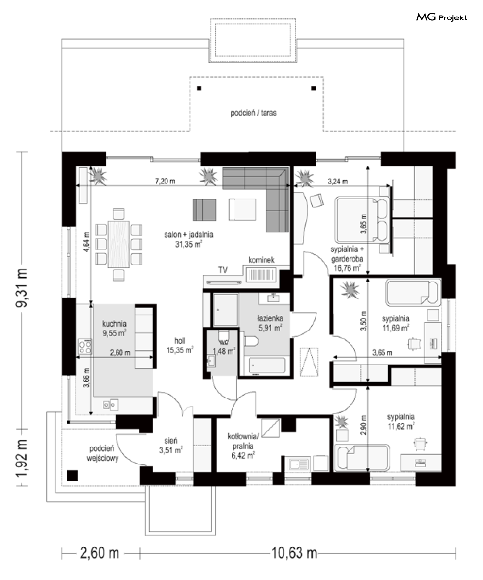
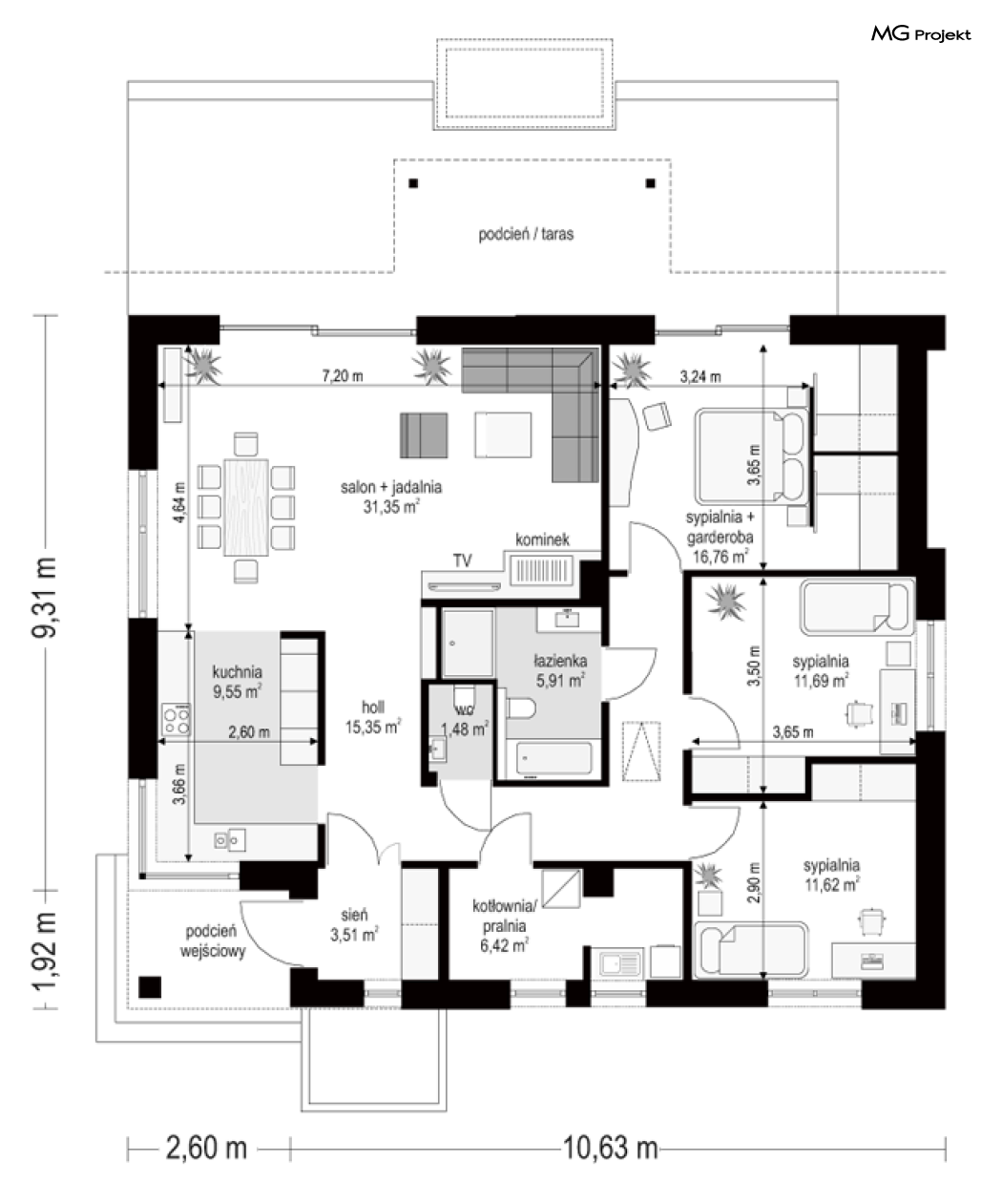
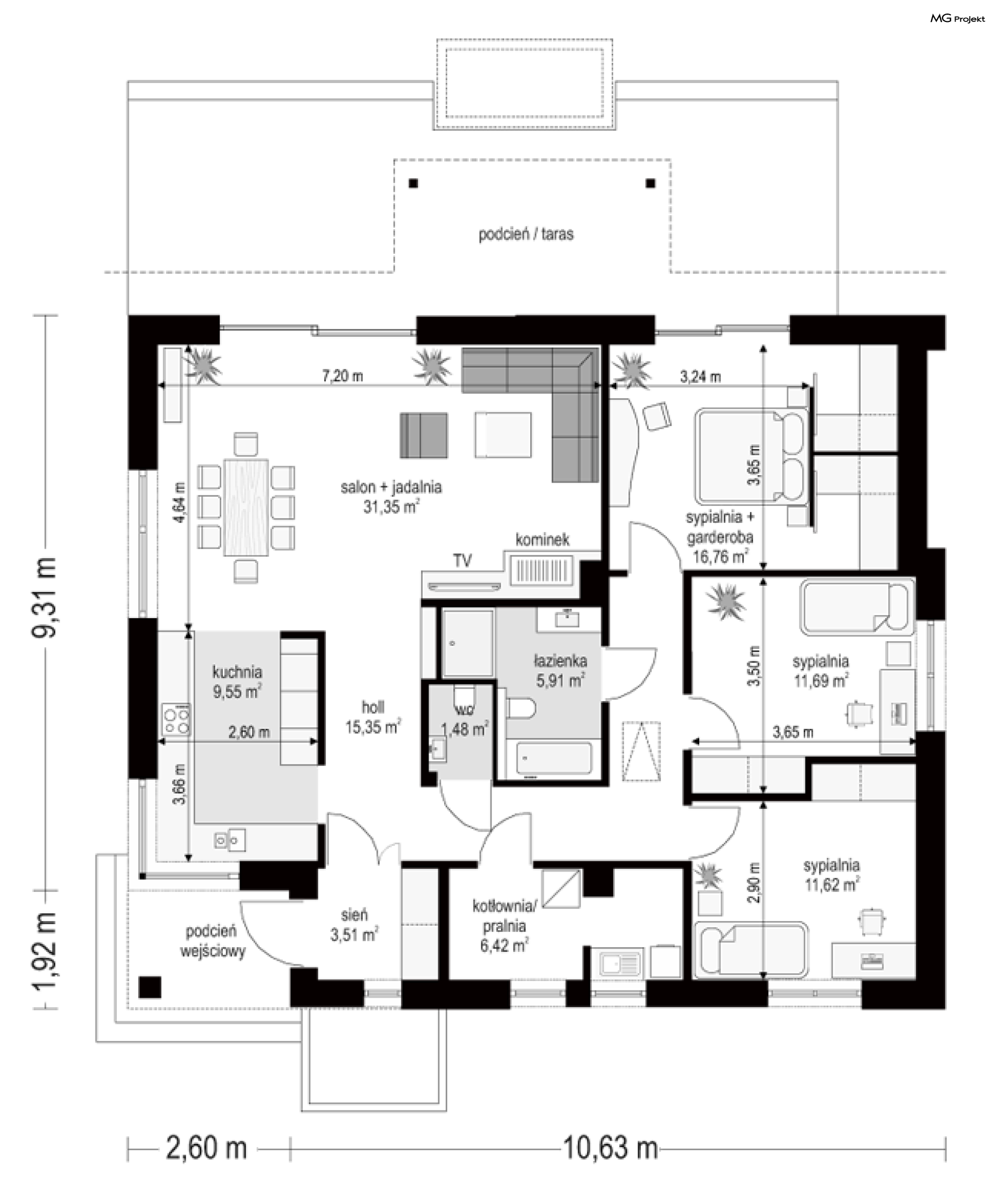
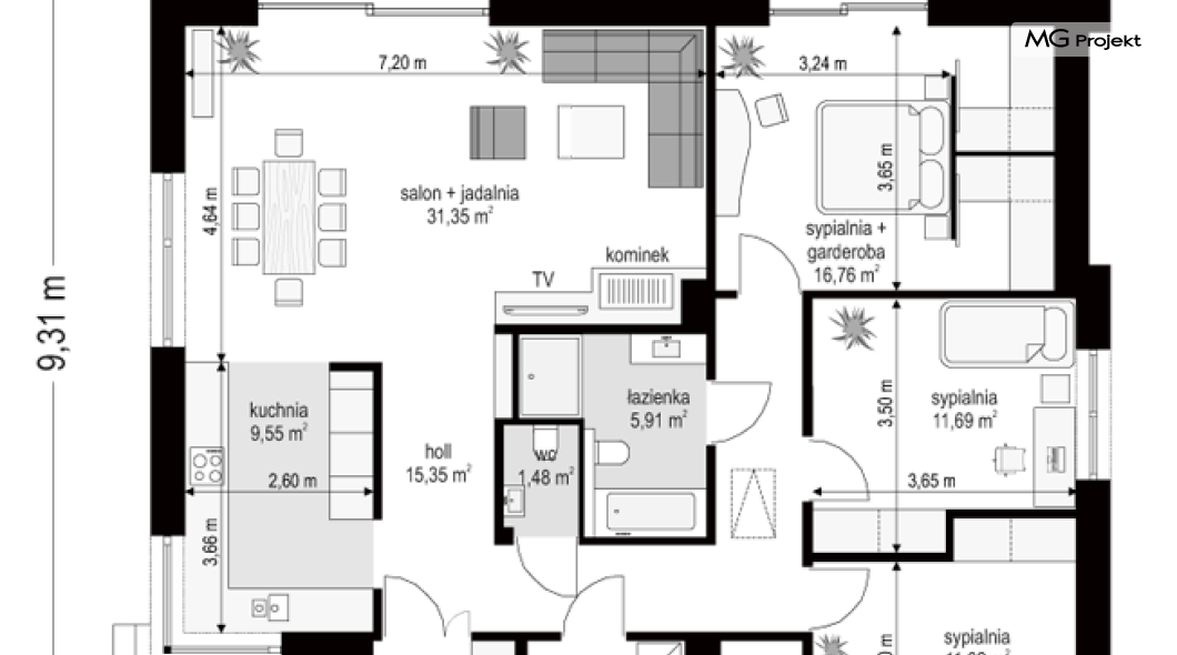
Projekt domu Wspaniały 3 to projekt z serii naszych domków „Wspaniałych”. Jest to budynek parterowy, zbudowany na planie prostokąta, przykryty czterospadowym dachem. Dom mimo swojej prostej formy i bryły, ma ciekawą nowoczesną architekturę, przełamującą monotonię i nudę wielu innych parterówek. Dzięki zastosowanym detalom i materiałom dom jest oryginalny i inny. Mimo swojej niedużej powierzchni robi wrażenie komfortowego i przestronnego. Dzięki lokalizacji wejścia do domu w narożniku bryły, budynek może być ustawiony na działce z ogrodem zarówno z tyłu domu, jak i z boku, albo nawet od frontu - przy niekorzystnej lokalizacji względem stron świata. Taki układ bryły i funkcji daje bardzo duże możliwości adaptacji projektu na działce – rzadko spotykane w innych projektach. Narożny podcień wejściowy, narożne okno kuchenne, podział elewacji na poziome pasy, czy zadaszenie tarasu ogrodowego, stanowią piękne urozmaicenie architektury budynku. Duże przeszklenia otwierają wnętrze na otaczający ogród. Wnętrze podzielono na jednoprzestrzenną powierzchnię połączonego salonu z jadalnią i kuchnią, oraz na cześć nocną z trzema sypialniami. Sypialnia rodziców ma dwie oddzielne garderoby –jej i jego, sypialnie dziecięce mają wbudowane w ścianę szafy wnękowe. Dodatkowe pomieszczenia gospodarcze - kotłownia i pralnia dopełniają wnętrze. Centralnym miejscem części dziennej jest pięknie skomponowana ściana telewizyjno – kominkowa.Przez narożne okno kuchenne można podziwiać ogród i obserwować wejście i front domu. Dom ma prostą konstrukcję, prostą bryłę, jest łatwy i niedrogi w budowie. We „Wspaniałym 3” przewidziano strop nad parterem ora konstrukcję dachu w postaci konstrukcji z wiązarów prefabrykowanych drewnianych, co znacznie uprasza i przyspiesza budowę i obniża jej koszt. Nad parterem znajduje się dodatkowa przestrzeń strychowa do dowolnego wykorzystania. Dom jest energooszczędny, ma bardzo dobre izolacje i zastosowane nowoczesne instalacje, dzięki czemu będzie tani w eksploatacji. „Wspaniały 3” jest odpowiedzią dla Inwestorów poszukujących projektu prostego i nowoczesnego domu, z funkcjonalnym wnętrzem i ciekawą architekturą - niedrogiego i łatwego w budowie. Zapraszamy !
-
Projekt szamba szczelnego0 zł399 zł
-
Charakterystyka energetyczna0 zł200 zł
-
Pakiet energooszczędny0 zł150 zł
-
Dziennik budowy0 zł60 zł
-
Tablica budowy0 zł120 zł
-
Wersja elektroniczna projektu550 zł
-
Pakiet kosztorys inwestorski550 zł
-
Pakiet ogrzewanie podłogowe470 zł
-
Powietrzna pompa ciepła470 zł
-
Pakiet wentylacja mechaniczna i kominek DGP470 zł
-
Dodatkowy egzemplarz projektu500 zł
-
Pakiet kotłownia na paliwo stałe470 zł
-
Pakiet instalacja fotowoltaiczna470 zł
-
Pakiet klimatyzacja w domu470 zł
-
Pakiet gruntowa pompa ciepła470 zł
-
Pakiet odkurzacz centralny470 zł
-
Pakiet płaszcz wodny470 zł
-
Pakiet kominek DGP399 zł
-
Projekty altan i grillów ogrodowych650 zł
-
Pakiet instalacja solarna470 zł

opieką konsultacyjną w trakcie budowy domu